
OPEN SEED
진도의 바다는 한때 풍요의 상징이었으나, 최근 급격한 수온 상승으로 어류의 생존과 양식 산업 전반에 심각한 위기를 가져왔습니다. 실제로 진도 연안의 수온이 최근 월평균 21℃ 내외로 측정된 바 있으며, 이는 기존의 생물 서식·성장 최적 범위를 벗어나는 새로운 변화가 되고 있습니다. 이것은 단순한 환경 문제에서 더 나아가 지역 경제와 생태의 지속가능성을 위협하고 있는 바, 본 계획은 단순한 생산/배양시설이 아닌, 지역사회의 지속가능함을 목표로 진도의 바람과 조류, 수온의 흐름을 수용하고 내열성 품종 개발 및 지역 산업 연계의 거점으로서 지역사회와 공존하는 [열린 종자 플랫폼]의 역할을 담고자 합니다.
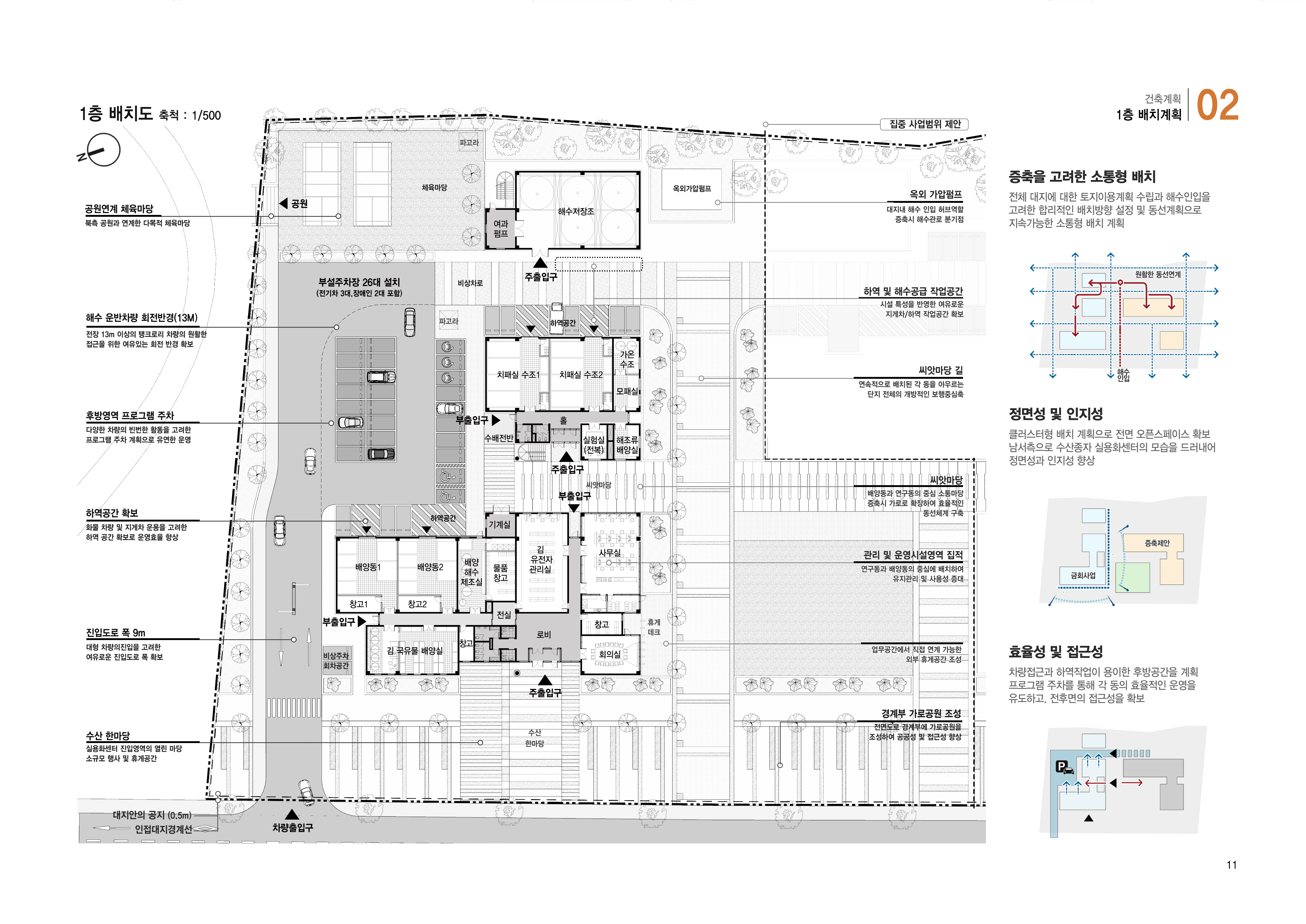
계획의 주안점
본 계획은 배양시설에 적합한 환경을 조성하기 위해 자연 환기와 일사 제어를 적극 활용하여 수온을 안정화하고, 지속 가능한 시설 운영을 도모하는 것을 핵심으로 한다. 농공단지 내 입지의 낮은 인지도와 접근성 문제를 해결하기 위해, 개별동으로 구성된 건축군을 시각적으로 통합하여 공공시설로서의 전면성과 인식을 강화한다. 또한, 향후 확장을 고려한 장기적인 부지 이용 전략을 수립하여 운영의 유연성과 경제성을 동시에 확보하고자 한다.
STEP 01-배양시설 특성을 고려한 기후환경 활용
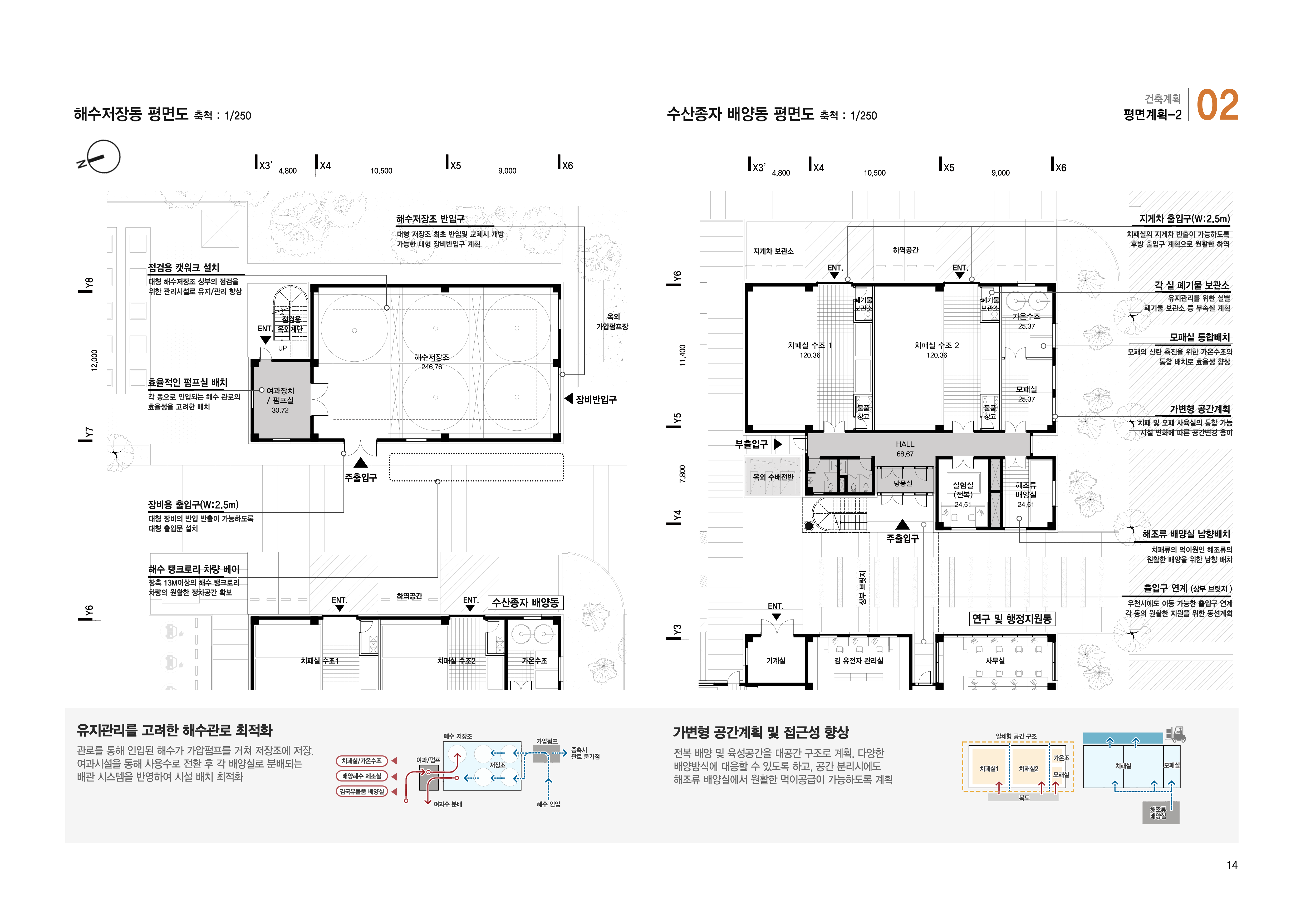
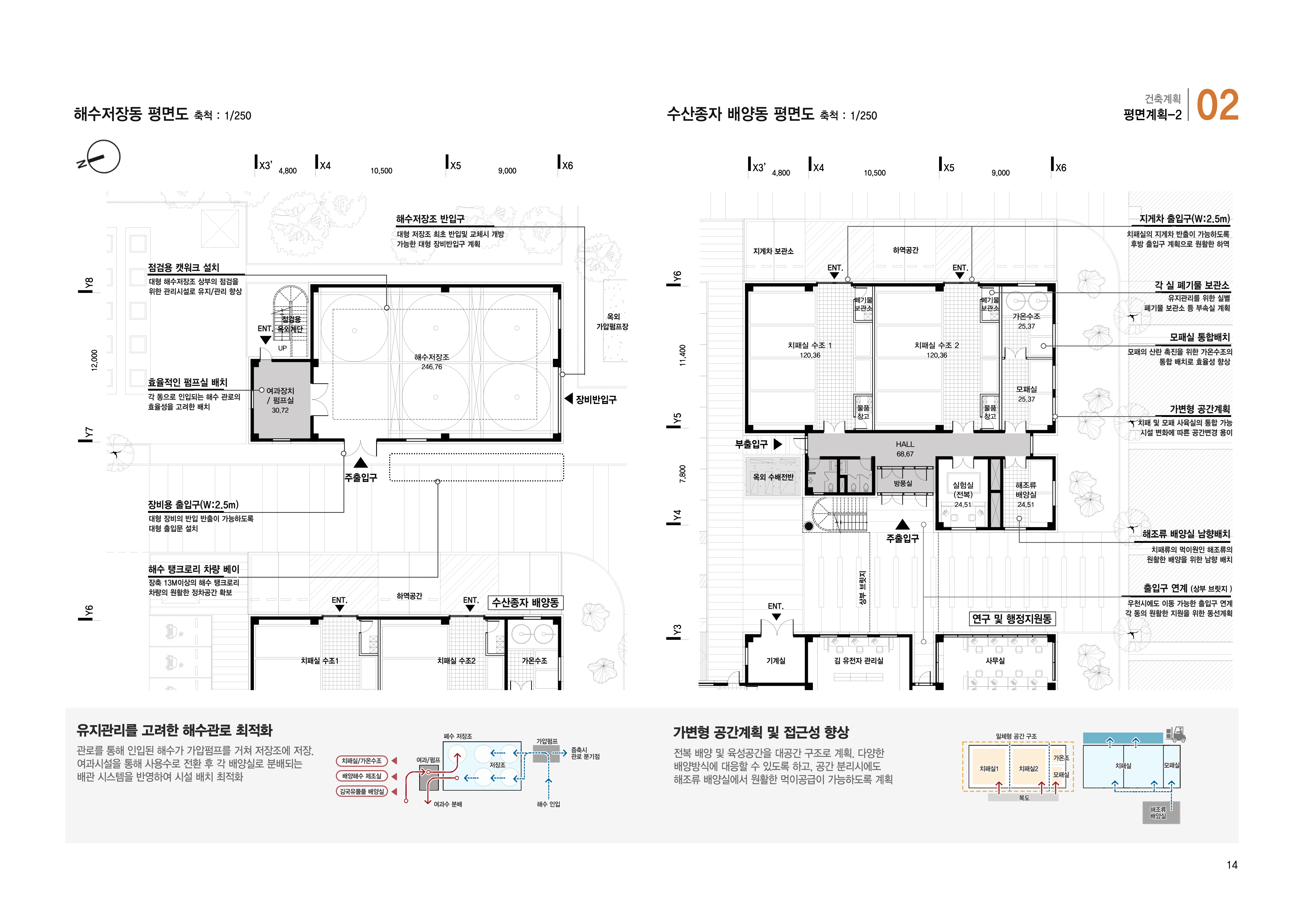
해양생물의 급격한 수온 변화는 집단폐사를 초래하며 특히 고온에 취약한 대상 종자의 특성상 배양시설의 냉방부하 비중이 높다. 따라서,일사량 조절과 원활한 환기는 안전성과 경제성 측면에서 필수적이므로 기류와 향을 고려, 남북축의 분동 배치로 바람길 조성이 요구된다.
STEP 02-인지성과 정면성 확보
군내농공단지 내 대상지의 입지는 접근성과 인지성이 매우 취약하다. 따라서 공공시설로서 접근성과 정면성의 확보가 우선적으로 요구되며 시설규모상 단층 규모임을 감안하여 인지성 향상을 위해 세개의 별동을 하나의 건축물로 크게 드러내야 할 필요성이 있다.
STEP 03-증축사업을 고려한 토지이용계획 수립
대상지의 규모에 비해 절반 수준인 금회 사업을 계획하기에 앞서 증축시에도 합리적인 토지이용과 원활한 운영을 위해 기본계획을 수립. 특히 효과적인 해수설비 인프라를 계획, 배치에 반영하고 증축시 지속가능한 가이드 라인을 제시하고자 함
[Functional Land_use]_기능 중심의 마스터 플랜
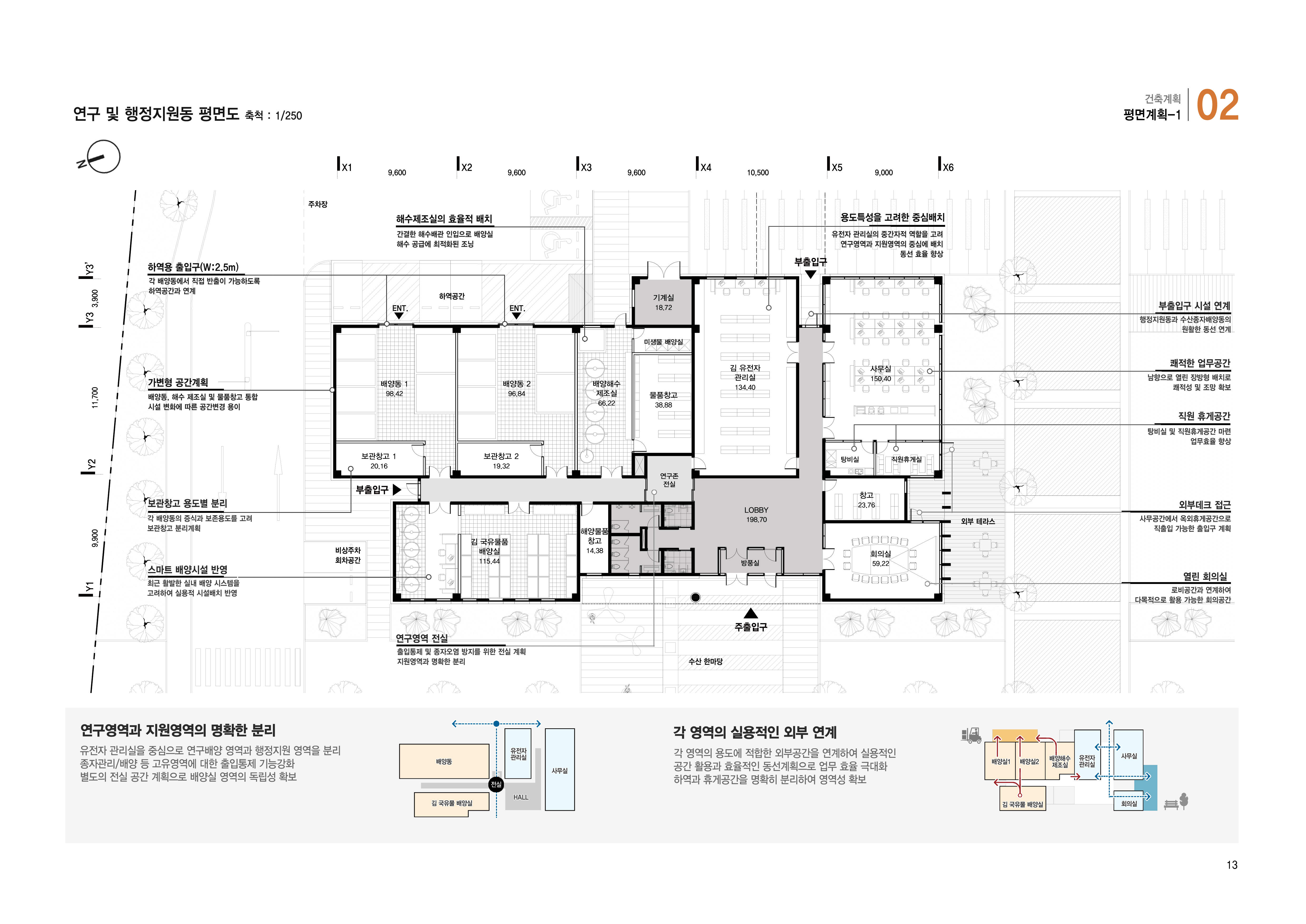
해수활용과 연구대상의 물류이동, 그리고 증축예정 사항을 종합적으로 분석하여 최적의 효율을 달성할 수 있는 마스터플랜 선행. 간결한 설비를 위한 각 동 병렬배치와 서비스 공간의 원활한 접근을 위한 실용적인 조닝 계획 수립
[Open & Link]_지역사회와 함께하는 열린 실용화 센터
산업단지 입지와 시설 특성을 고려하여 수평성을 강조. 정렬된 된 매스안에서 리듬감 있는 반복을 통해 친숙한 정체성을 부여. 남측과 도로측으로 펼친 형태로 인지성과 정면성을 확보하고, 재료의 대비를 통해 시각적인 깊이감으로 열린 경관 조성
[Weaving the Layer]_소통의 매개체
배양영역, 연구영역, 행정영역들을 세개의 레이어로 설정하고 건축을 통해 지역 교류 공간, 연구/배양, 후방 서비스 공간을 직조하듯 엮어내어 효율적인 이용과 영역의 독립성 및 상호교류 극대화












건축사사무소 하루
2등작_ 건축사사무소 하루
대표건축가 정승철
대지면적 17,992.8㎡
연면적 1,739.30㎡
건축면적 1,885.75㎡
건폐율 10.48%
용적률 9.67%
층수 지상1층
구조 SRC기둥 + 철골보
주차대수 26대 (일반 21 / 전기차 3 / 장애인 2)
대표건축가 정승철
디자인팀 정승철, 박유정
발주처 진도군
'Plans' 카테고리의 다른 글
| 진동보훈문화관 건립사업 설계공모_ 2등작 / 그랑건축사사무소 (0) | 2025.12.08 |
|---|---|
| 내포-서산 공연예술지원센터(복합문화공간) 건립사업 건축설계 용역 설계공모_ 당선작 / (주)종합건축사사무소선기획 (0) | 2025.12.08 |
| 청소년 복합놀이 문화공간 조성 사업 설계공모_ 당선작 / 건축사사무소 고광 (0) | 2025.12.03 |
| 진밭골 목재친화도시 목재커뮤니티센터 건립공사 국제지명 설계공모_ 참가작 / Terroir + 내러티브 아키텍츠 (0) | 2025.12.03 |
| 조정훈련장 조성사업 기본 및 실시설계공모(일반설계공모)_ 3등작 / 안들 건축사사무소 (0) | 2025.12.01 |
마실와이드 | 등록번호 : 서울, 아03630 | 등록일자 : 2015년 03월 11일 | 마실와이드 | 발행ㆍ편집인 : 김명규 | 청소년보호책임자 : 최지희 | 발행소 : 서울시 마포구 월드컵로8길 45-8 1층 | 발행일자 : 매일



