
꿈과 감각을 깨우는, 청소년들의 작은 도시
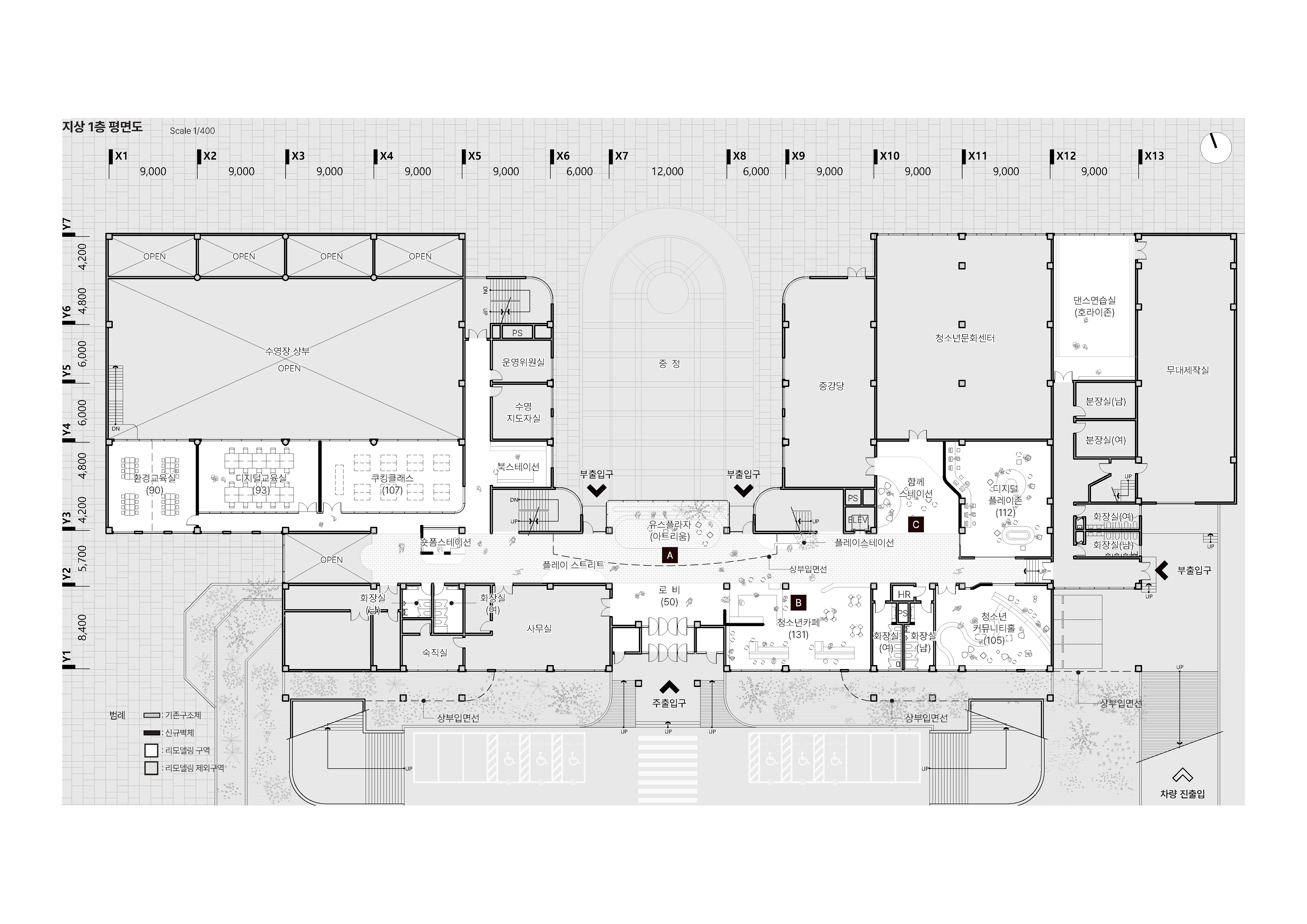
본 프로젝트는 늘푸른전당 1층을 청소년의 감각·경험·문화가 중심이 되는 ‘청소년 마이크로 시티(Youth Micro-City)’로 재해석하는 공간 개선 계획이다. 청소년은 이곳에서 단순한 이용자가 아닌, 배움·놀이·창작·휴식·만남을 스스로 조직하는 도시의 시민이자 주체가 된다.
공간 구성은 도시가 가진 구조와 장소성을 실내로 가져오는 방식으로 전개된다. 광장, 거리, 카페, 스튜디오, 극장과 같은 도시 언어를 실내 환경에 적용하여 기존 프로그램을 자연스럽게 연결하고 확장한다. 특히 기존의 넓은 복도는 단순한 이동 통로가 아니라 탐험·머묾·관계·관찰이 일어나는 도시의 거리(Street)으로 재구성된다.
이 회랑을 따라 배치되는 ‘스테이션(Station)’들은 즉흥적 창작, 관찰, 휴식, 상호작용이 발생하는 소규모 도시 거점(urban pocket node)으로 기능한다. 청소년들은 수업 후 자연스럽게 촬영을 하거나, 떠오르는 생각을 기록하고, 친구와 활동을 시도하며, 잠시 머물러 자신의 리듬을 회복한다. 이동의 순간부터 경험이 시작되며, 흐름 속에서 창의성이 자라는 역동적 문화 지대가 형성된다.
프로그램은 고정된 구획을 벗어나 흐르듯 연결되고, 경계는 낮아지며 시선은 열린다. 직선의 축은 늘푸른전당 1층의 공식적 주동선(도시의 메인 스트리트)을 의미하고, 그 위에 유기적으로 얽히는 곡선은 청소년들이 남기는 감각적 흔적·경험의 발자국을 상징한다. 이 두 흐름이 만나는 지점마다 스테이션을 배치해 발견의 장소, 포켓 플레이 스팟, 소규모 알코브 공간으로 작동하도록 한다.
결과적으로 늘푸른전당 1층은 청소년의 일상·상상·문화적 에너지가 축적되는 작은 도시의 첫 층으로 재탄생한다. 이곳에서 청소년은 어른의 질서가 아닌 자신들의 속도와 방식으로 관계를 만들고 성장하는 주인공이 된다.






건축사사무소 고광
당선작_ 건축사사무소 고광
대표건축가 김재석
대지면적 31,780.00㎡
연면적 11,957.02㎡
건축면적 4,593.93㎡
건폐율 14.46%
용적률 29.46%
층수 지하 2층, 지상 3층
구조 철근콘크리트구조
대표건축가 김재석
디자인팀 김혜림
발주처 창원특례시
'Plans' 카테고리의 다른 글
| 진밭골 목재친화도시 목재커뮤니티센터 건립공사 국제지명 설계공모_ 참가작 / Terroir + 내러티브 아키텍츠 (0) | 2025.12.03 |
|---|---|
| 조정훈련장 조성사업 기본 및 실시설계공모(일반설계공모)_ 3등작 / 안들 건축사사무소 (0) | 2025.12.01 |
| 사천시 공공산후조리원 건립사업 설계공모_ 3등작 / 오앤에이건축사사무소 (0) | 2025.12.01 |
| 봉화노인복지센터 기능보강사업 설계공모_ 4등작 / 안들 건축사사무소 (0) | 2025.11.26 |
| 북원도서관 신축사업 설계용역_ 5등작 / 위즈스케일건축사사무소 (0) | 2025.11.26 |
마실와이드 | 등록번호 : 서울, 아03630 | 등록일자 : 2015년 03월 11일 | 마실와이드 | 발행ㆍ편집인 : 김명규 | 청소년보호책임자 : 최지희 | 발행소 : 서울시 마포구 월드컵로8길 45-8 1층 | 발행일자 : 매일



