
커뮤니티 영역에서 바라본 동강측 주거블럭
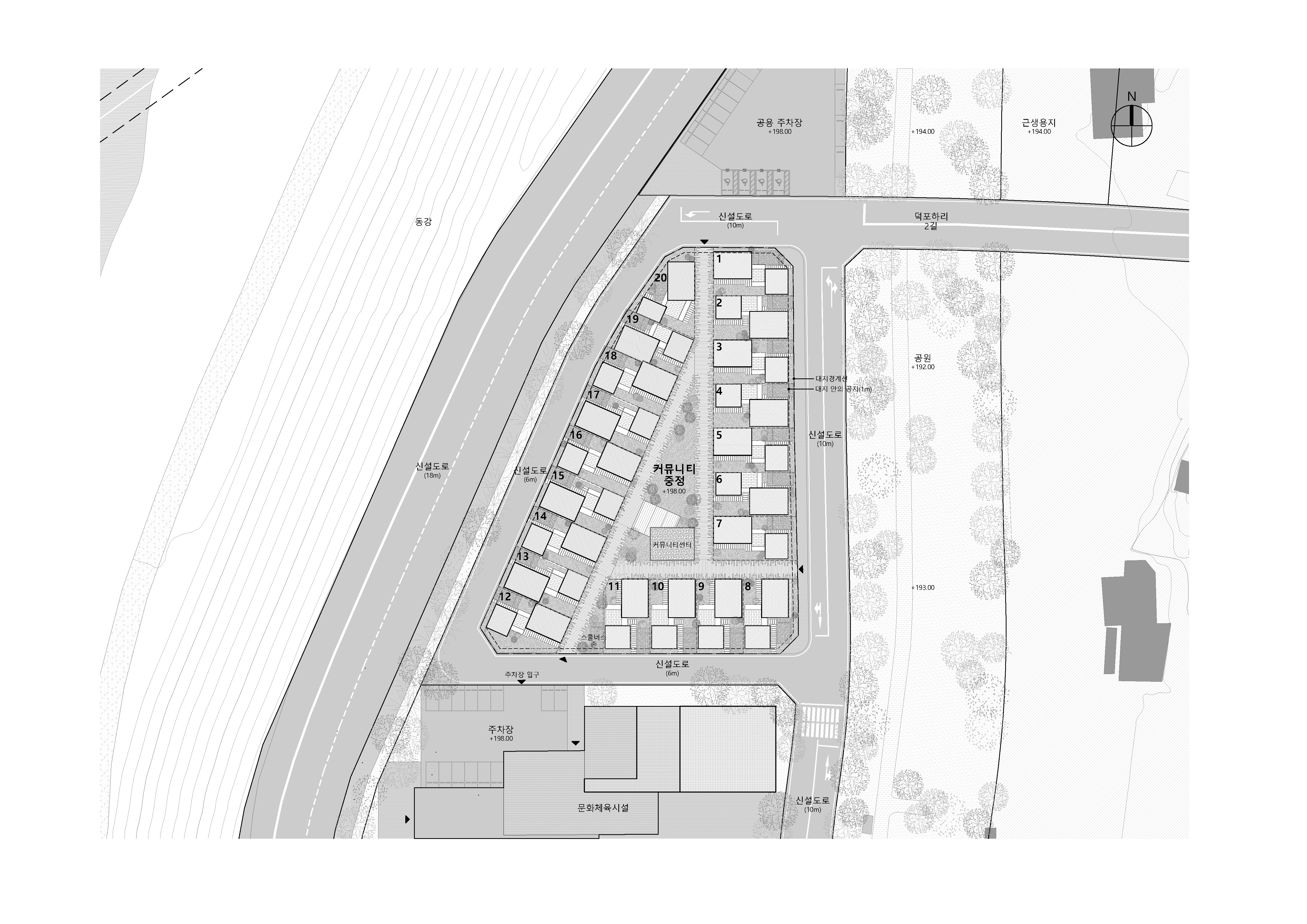
서로 어긋나 배치된 주거모듈들은 그 사이를 통해 동강으로의 시야와 공기의 흐름을 제공하고 그 틈에 위치한 각 주호의 정원은 낮은 울타리를 통해 안전하고 아늑한 커뮤니티 영역과 연결된다. 커뮤니티 영역과 맞닿은 각 주호의 별채는 어린이 놀이방, 공부방, 작업실 등 마을의 필요를 위한 준공공공간으로도 사용될 수 있다.










스튜디오인로코 건축사사무소
당선작_ 스튜디오인로코 건축사사무소(http://www.inloco.kr)
대표건축가 강승현
대지면적 3,513.00㎡
연면적 1,925.56㎡
건축면적 1,253.30㎡
건폐율 35.68%
용적률 54.81%
최고높이 6.7m
층수 지상2층
구조 철근콘크리트조
대표건축가 강승현
주차대수 21대
발주처 영월군청 지역개발실
'Plans' 카테고리의 다른 글
| 진동보훈문화관 건립사업 설계공모_ 2등작 / 그랑건축사사무소 (0) | 2025.12.08 |
|---|---|
| 지역맞춤형 수산종자 실용화센터 건립사업 건축 설계공모_ 2등작 / 건축사사무소 하루 (0) | 2025.12.08 |
| 내포-서산 공연예술지원센터(복합문화공간) 건립사업 건축설계 용역 설계공모_ 당선작 / (주)종합건축사사무소선기획 (0) | 2025.12.08 |
| 청소년 복합놀이 문화공간 조성 사업 설계공모_ 당선작 / 건축사사무소 고광 (0) | 2025.12.03 |
| 진밭골 목재친화도시 목재커뮤니티센터 건립공사 국제지명 설계공모_ 참가작 / Terroir + 내러티브 아키텍츠 (0) | 2025.12.03 |
마실와이드 | 등록번호 : 서울, 아03630 | 등록일자 : 2015년 03월 11일 | 마실와이드 | 발행ㆍ편집인 : 김명규 | 청소년보호책임자 : 최지희 | 발행소 : 서울시 마포구 월드컵로8길 45-8 1층 | 발행일자 : 매일



