
Grand Bayview Qianhai
셴전의 새로운 주거 타이포로지, 그랜드 베이뷰 치안하이(Grand Bayview Qianhai)가 완공되며 첫 입주민을 맞이했다. 이 프로젝트는 집중적인 업무 중심의 라이프스타일을 가진 젊은 전문직 인구를 위한 ‘웰니스·커뮤니티 기반 주거 모델’을 목표로 한다. 설계를 맡은 포스터 앤 파트너스(Foster + Partners)는 두 개의 타워를 부챗살 형태로 배치해 조망과 자연채광을 극대화하고, 외곽부의 프라이버시는 강화하는 동시에 중심부에 다양한 커뮤니티 공간을 집중시켰다.
루크 폭스(Luke Fox) 포스터 앤 파트너스 스튜디오 대표는 “우리는 입주자의 생활 패턴에 맞춰 프라이버시와 공동체성을 균형 있게 배치하는 데 초점을 맞췄다”고 설명한다. 각 층에 공유 테라스가 계획되어 자연 환기와 조절된 채광을 확보했고, 지상부의 녹지 네트워크는 주변 그린벨트와 연결되며 도심 속에서도 자연과 재접속할 수 있는 환경을 만들었다.
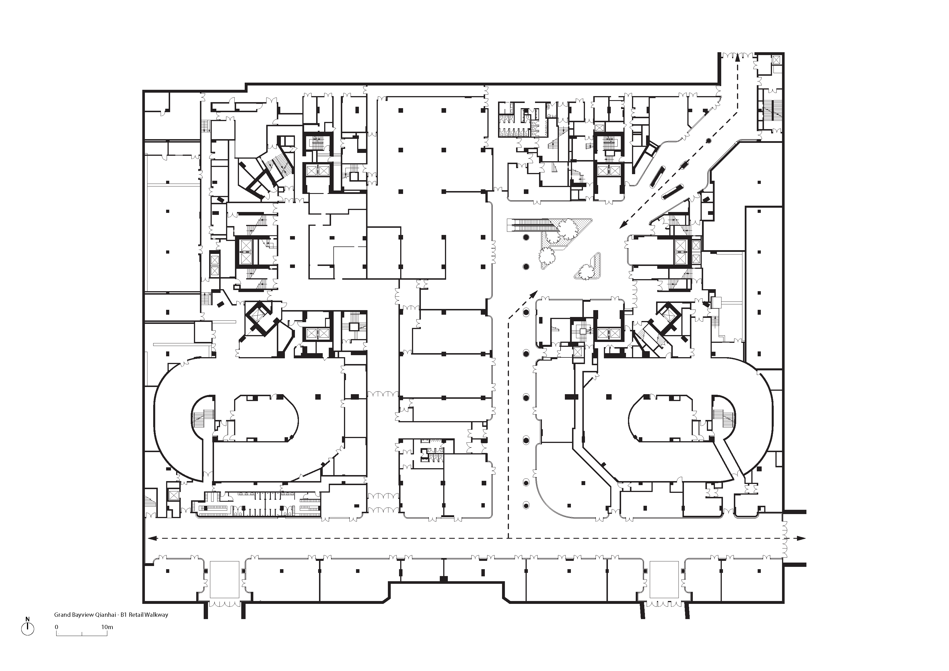
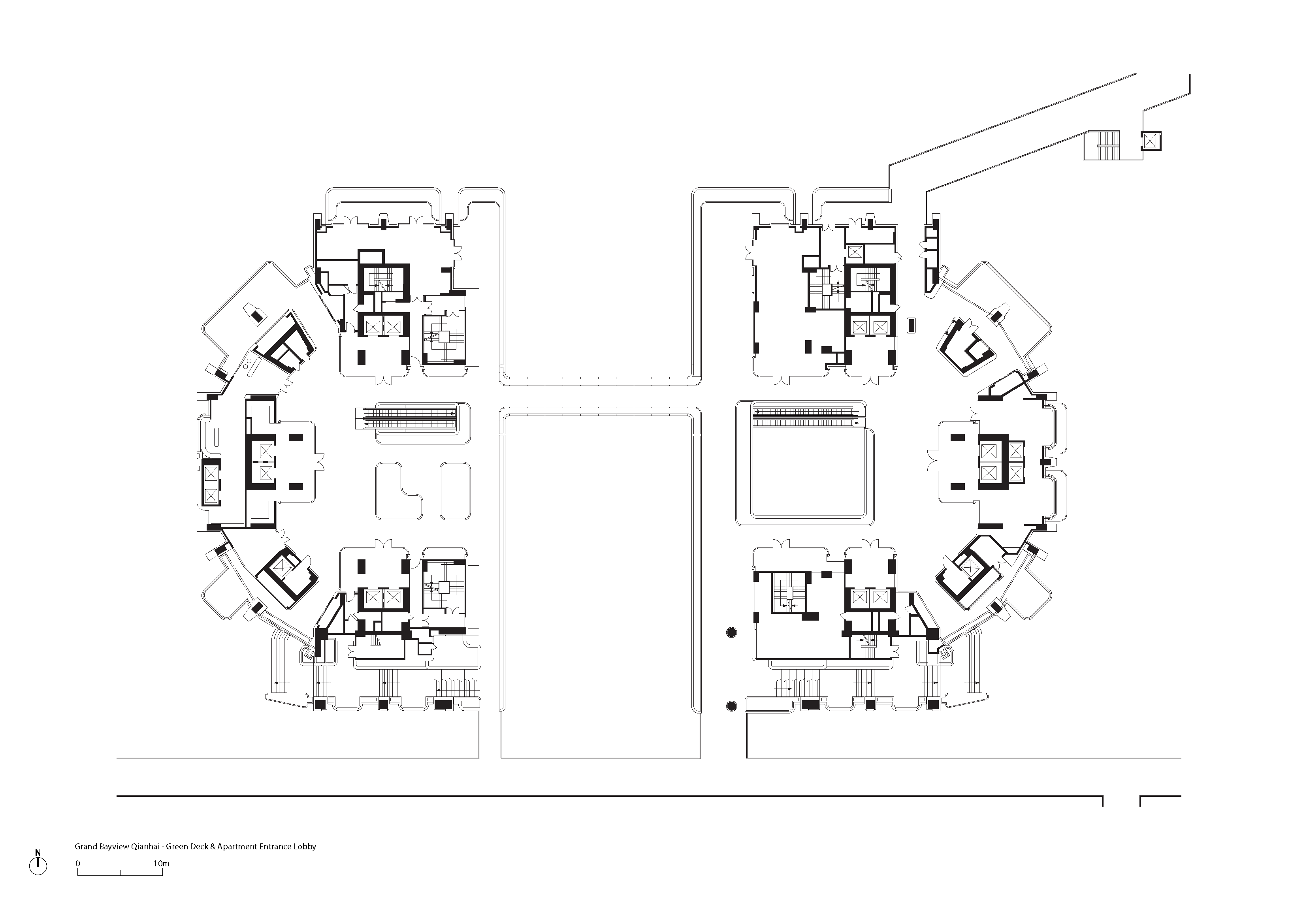
두 타워는 높이 180m 규모로, 2층 데크는 구이완(Guiwan)의 고가 보행 네트워크와 직접 연결되어 주변 대지와 유기적으로 이어지는 전이 공간을 형성한다. 수직으로 올라갈수록 층마다 배치된 테라스는 다양한 커뮤니티 활동을 유도하며, 식재가 더해져 각 층에서 일관된 ‘도착 경험(Arrival Sequence)’을 제공한다.
스카이가든은 모든 입주자가 공유하는 핵심 커뮤니티 플랫폼이다. 도시 조망이 극적으로 열리는 삼중고(Triple-height) 공간으로 계획되었으며, 루버 그늘막과 식재가 어우러져 사적이면서도 개방적인 분위기를 만든다. 이곳은 운동 클래스, 이벤트 등 다양한 프로그램을 수용하는 입체적 커뮤니티 인프라다.
유닛 구성은 향후 통합이나 확장이 가능하도록 높은 유연성을 갖춘 모듈형으로 설계되었다. 전체 상부 구조는 경량 철골로 제작해 공사 기간을 단축하고 품질을 제어했으며, 프리캐스트 요소를 적극 활용해 현장 폐기물을 줄이고 탄소 배출을 최소화했다.
포스터 앤 파트너스의 페리 입(Perry Ip) 파트너는 “이 프로젝트는 건강, 웰빙, 커뮤니티를 중심에 둔 새로운 도시 주거 경험을 제시한다”고 말했다. 이 프로젝트는 고밀도 도시에서의 생활 방식이 어떻게 재정의될 수 있는지, 그리고 수직 주거 환경이 어떻게 더 건강하고 균형 잡힌 라이프스타일을 지원할 수 있는지를 보여주는 사례로 자리 잡을 것이다.

















건축가 포스터+파트너스(Foster + Partners)
위치 중국, 셴전
용도 공동주택
대지면적 14,700㎡
연면적 1,980㎡
규모 지하 3층, 지상 54층
준공 2025
발주자 Shenzhen Qianhai Talents Apartment Ltd
사진작가 Nigel Young / Foster + Partners
'Architecture Project > Multifamily' 카테고리의 다른 글
| 완충과 공백으로 조직된 다층형 메종네트 주거 / 휴고 고노 아키텍트 어소시에이츠 (0) | 2025.12.19 |
|---|---|
| 태양과 그림자를 직조하는 건축: 심포니 타워의 기후 대응형 입면 구조 / 자하 하디드 아키텍츠 (0) | 2025.12.11 |
| 적벽돌로 짜인 새로운 일상, 틀에서 벗어난 집 / 지인(주) 스튜디오 메이드 (0) | 2025.11.17 |
| 안정의 파사드, 사회적 회복을 위한 건축의 언어 / 아틀리에 뒤 퐁 (0) | 2025.11.07 |
| 입방체의 리듬, 법규와 상상력이 만든 루프탑 하우징 / 피피에이지 아키텍츠 (0) | 2025.10.22 |
마실와이드 | 등록번호 : 서울, 아03630 | 등록일자 : 2015년 03월 11일 | 마실와이드 | 발행ㆍ편집인 : 김명규 | 청소년보호책임자 : 최지희 | 발행소 : 서울시 마포구 월드컵로8길 45-8 1층 | 발행일자 : 매일



