
Blueriot | Deveron Workspace
건축가는 1990년대 포스트모던 건물에 자리한 데버론 오피스를 전면적으로 재구성하는 ‘블루라이엇(Blueriot)’ 프로젝트를 맡았다. 의뢰인은 항공과 다이빙이라는 두 가지 개인적 취향을 공간에 반영해 달라고 요청했고, 건축가는 이를 ‘심해’와 ‘하늘’이라는 대조적 감각으로 해석해 하나의 개념으로 통합했다. 리노베이션의 목표는 기능적 업무환경과 강한 분위기, 그리고 명확한 콘셉트를 동시에 갖춘 공간을 만드는 것이었다.
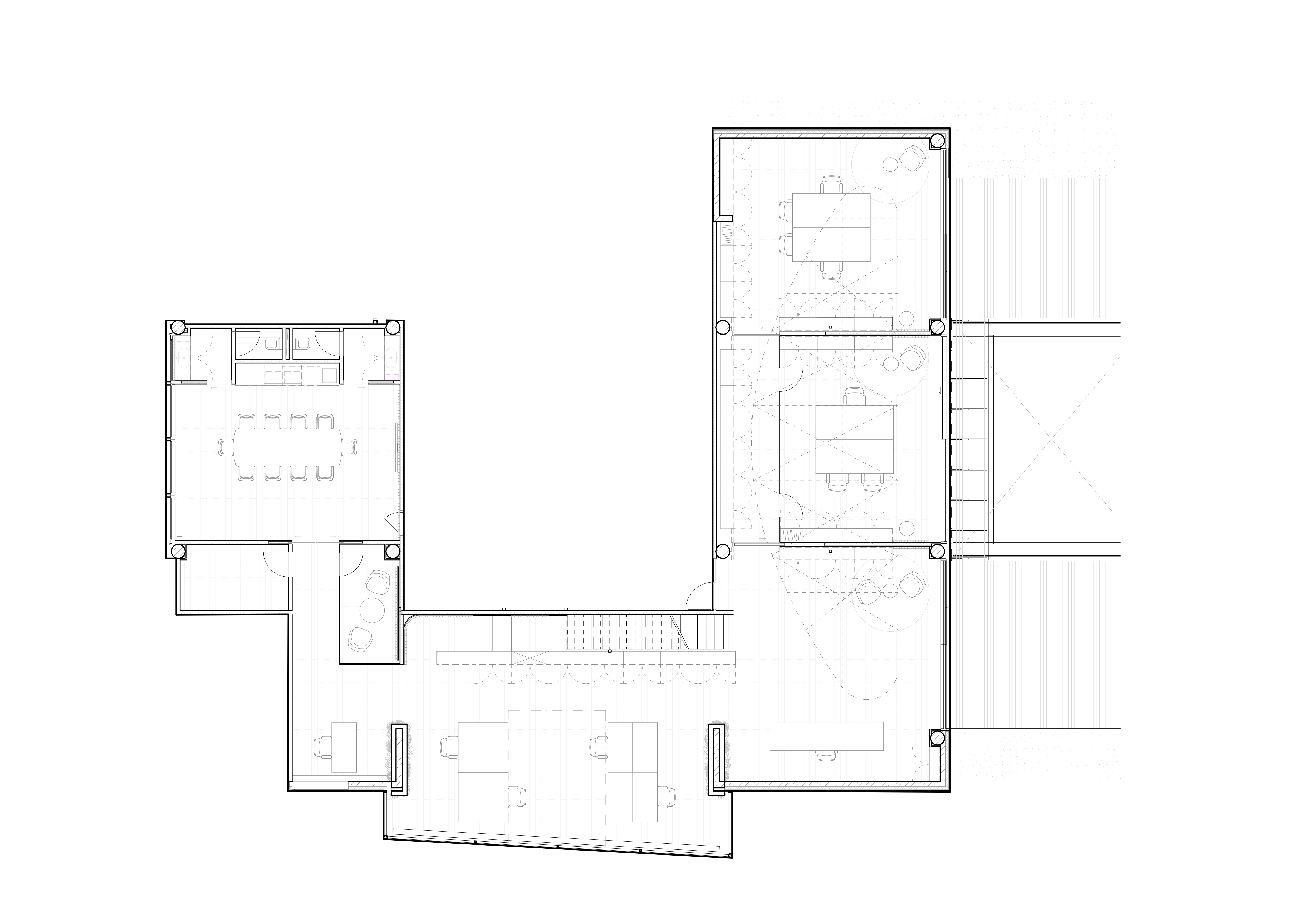
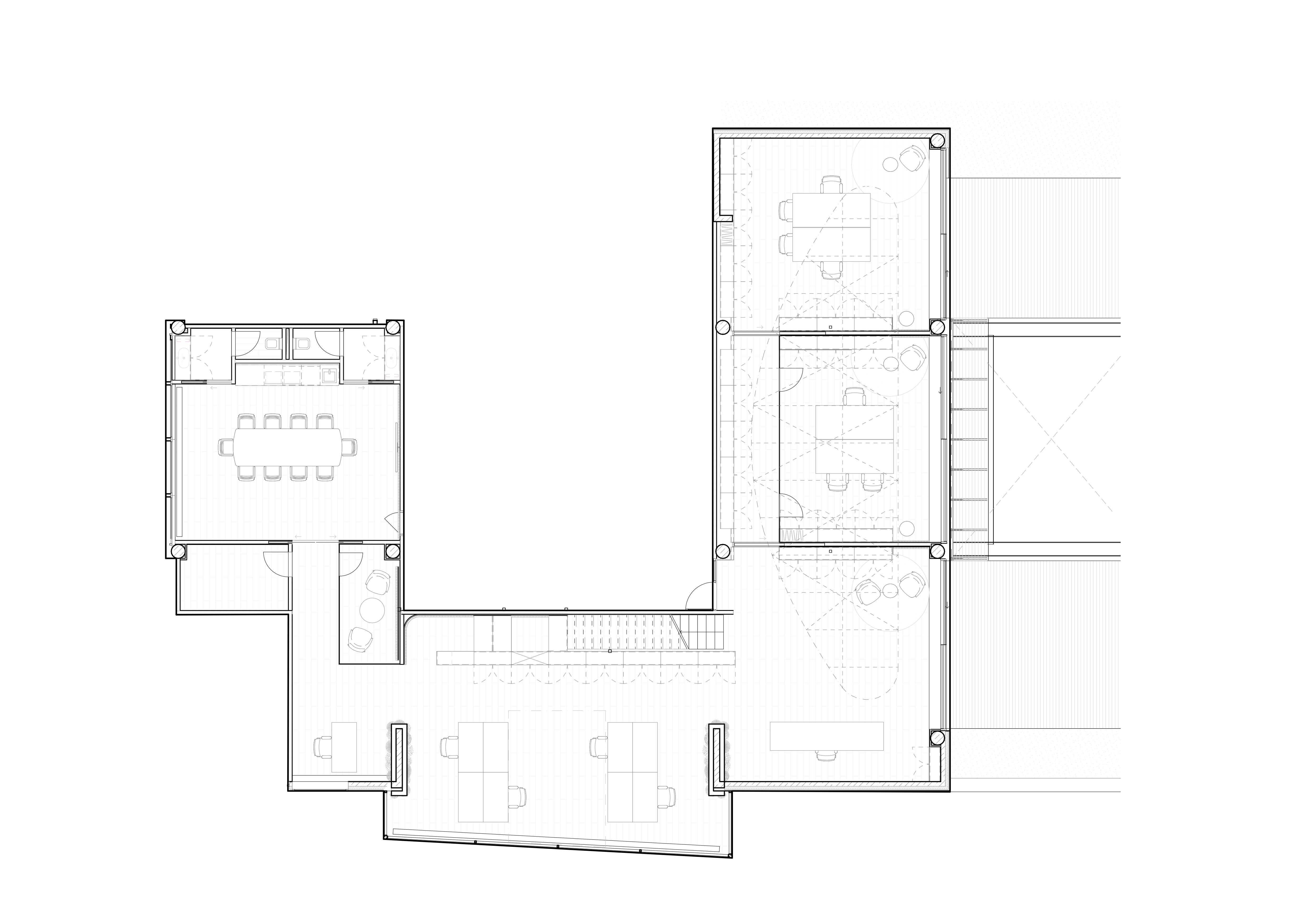
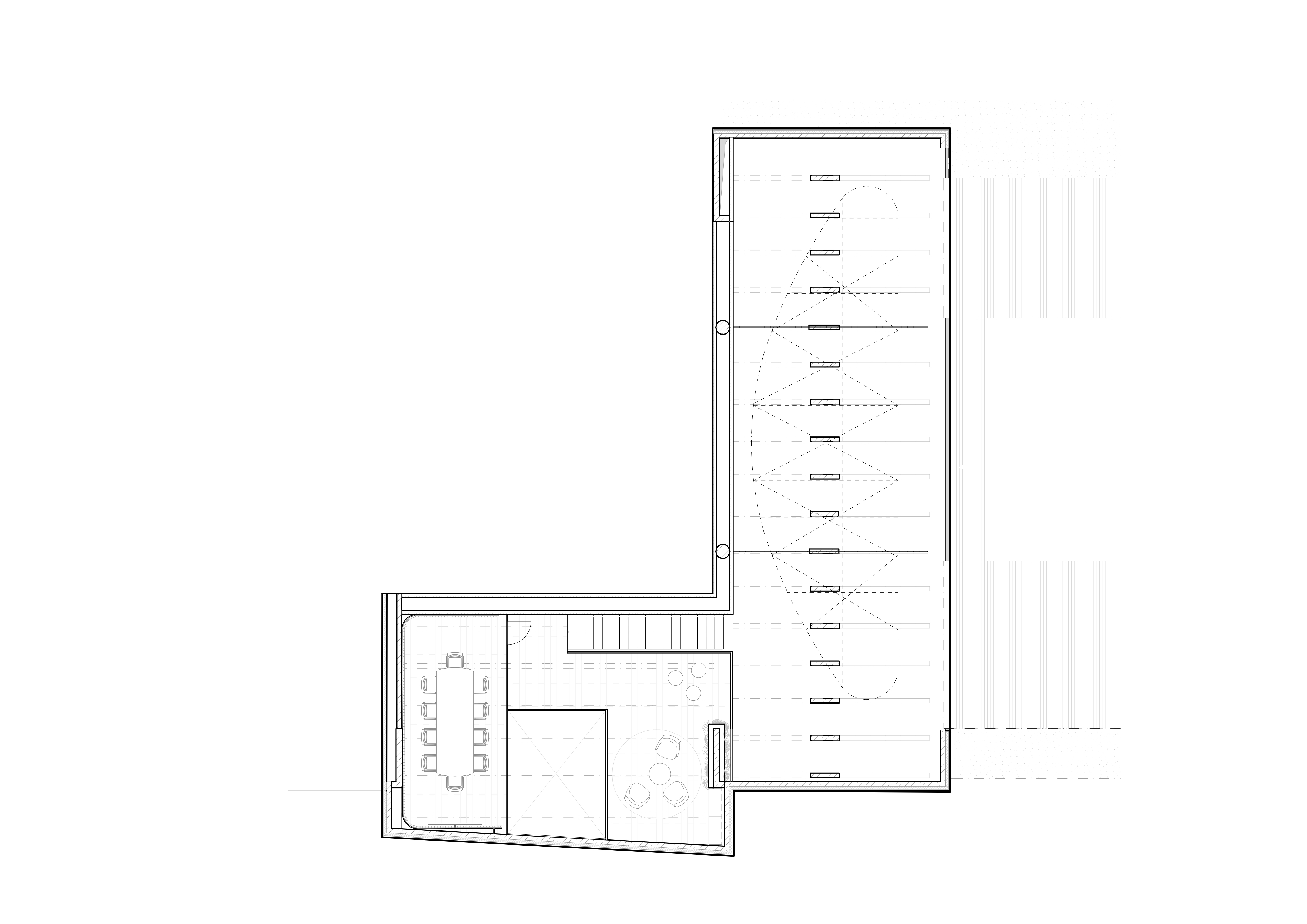
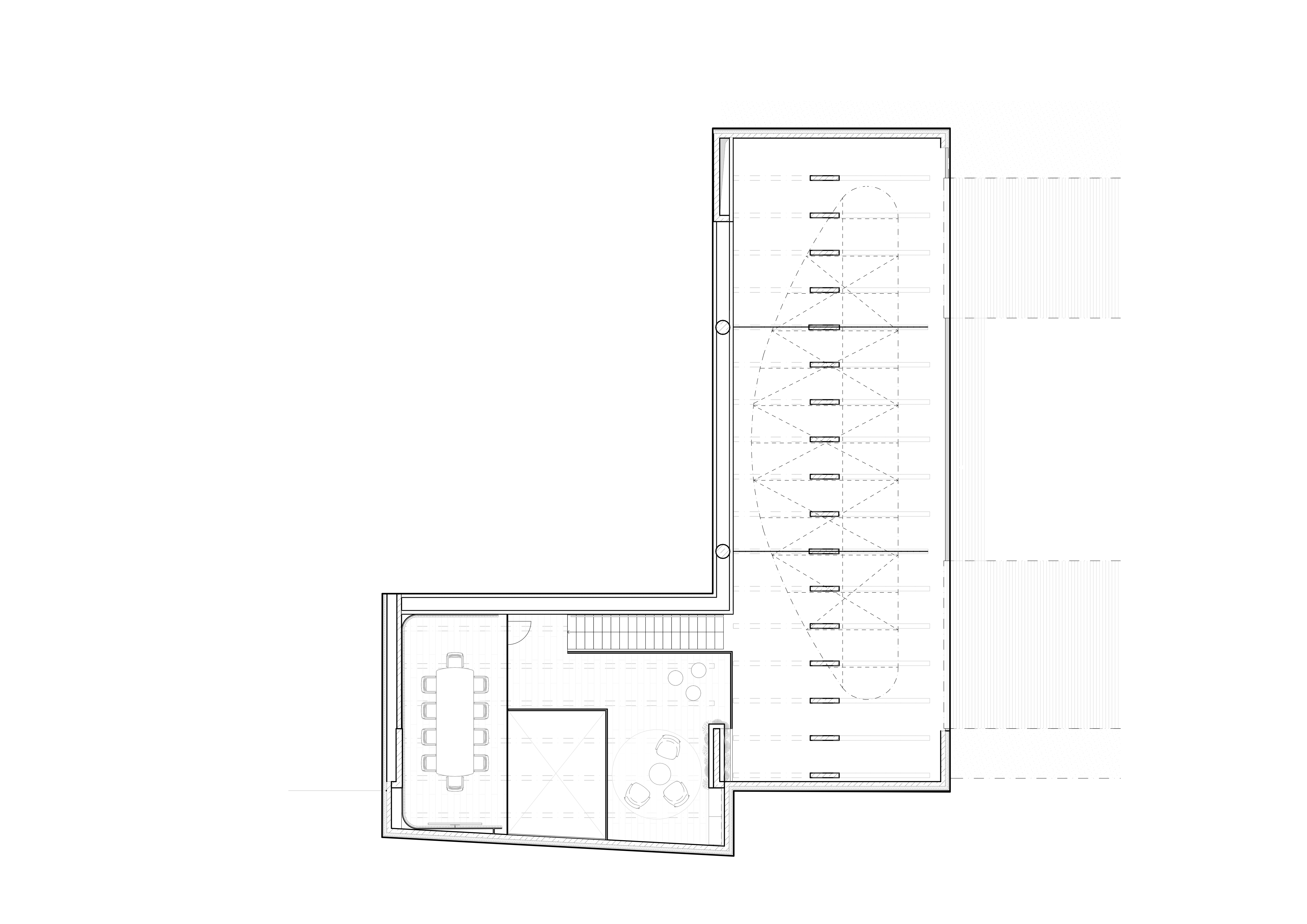
기존 실내는 석고보드 벽체와 카세트 천장으로 인해 자연광이 거의 들어오지 않고 공간성이 단절된 상태였다. 건축가는 내부 레이어를 걷어내며 이 건물이 본래 지닌 구조적 볼륨을 드러냈다. 특히 모놀리식 형태의 거대한 볼트는 그동안 숨겨져 있던 공간적 힘을 다시 공간의 중심으로 끌어올렸다.
새로운 공간 구성은 이 볼트와 대비되는 스케노그래피적 장치를 통해 완성된다. 건축가는 볼트를 뒤집힌 선체처럼 인식하고, 그 아래에 고래의 골격과 블레리오 비행기의 날개에서 영감을 얻은 ‘고래의 날개(Whale Wing)’ 설치물을 떠 있게 했다. 이 구조물은 빛을 분산하고 움직임을 만들어내며, 동쪽의 전면 유리 파사드가 받아들이는 자연광과 함께 공간의 분위기를 크게 확장한다. 심해의 깊이감과 비행의 가벼움이 한 공간에서 교차하는 셈이다.
사용된 재료와 색채 역시 항공·해양적 미감을 따른다. 알루미늄과 스테인리스 디테일, ‘레드 바론’을 연상시키는 코럴 레드, 심도 있는 인디고 컬러가 조합되어 강한 대비를 만들고, 바리솔(Barrisol) 조명 천장과 컬러 글레이즈를 입힌 노출 콘크리트가 이를 부드럽게 받쳐준다. 반사면과 조명 연출은 시각적 깊이를 확장하며, 기존 기둥에 감아 올린 식물은 자연성을 공간에 끌어들인다.
프로젝트의 핵심 과제는 음향·조명 환경의 최적화였다. 길이 16m에 이르는 ‘고래의 날개’는 알루미늄과 3D 프린팅 부품으로 제작되었고, 미세 타공된 바리솔 막이 아래층에 적용되어 음향을 흡수하면서도 균일한 광확산을 제공한다. 공조 흐름 또한 이 구조물에 통합됐다. 오픈 공간과 회의실에는 바리솔 클림(Barrisol Clim) 시스템을 도입해 천장 속 이중막을 통해 냉방·환기·공조를 해결하고, 깔끔한 건축적 표현을 유지했다.
블루라이엇 프로젝트는 바다의 깊이와 하늘의 개방감을 하나의 건축적 언어로 묶어내며, 기술적 실험과 감각적 경험을 결합한 사무환경을 구현했다. 이는 단순한 인테리어를 넘어, 업무 공간이 창의성과 몰입을 촉발하는 ‘경험의 장’이 될 수 있음을 보여주는 사례다.























위치 체코, 프라하, 카하융 1233/2
연면적 350㎡
규모 지상 2층
설계기간 2023
준공 2024
대표건축가 tomáš císař
발주자 Deveron
사진작가 Alex Shoots Buildings
'Interior Project > Office' 카테고리의 다른 글
| 회의실과 키친을 중심으로 재구성한 엔지니어링 오피스 리노베이션 / 스튜디오 코스모 (0) | 2025.12.19 |
|---|---|
| 곡선 타일과 자연광이 조직한 팔라츠 아크로폴리스의 공유 업무 공간 / 마르코 마이오 아키텍츠 (0) | 2025.12.09 |
| 제약을 창의성으로 바꾼 0 Club 인테리어 / 디디에이에이 (0) | 2025.09.18 |
| 업무공간과 쇼룸을 연결한, 이안기획 오피스 / 디자인스튜디오 모노 (0) | 2025.09.04 |
| 빛으로 조화되는 쿠웨이트 대사관 / 아키텍키드 (0) | 2025.07.14 |
마실와이드 | 등록번호 : 서울, 아03630 | 등록일자 : 2015년 03월 11일 | 마실와이드 | 발행ㆍ편집인 : 김명규 | 청소년보호책임자 : 최지희 | 발행소 : 서울시 마포구 월드컵로8길 45-8 1층 | 발행일자 : 매일



