
Pudis Offices | Phase 01
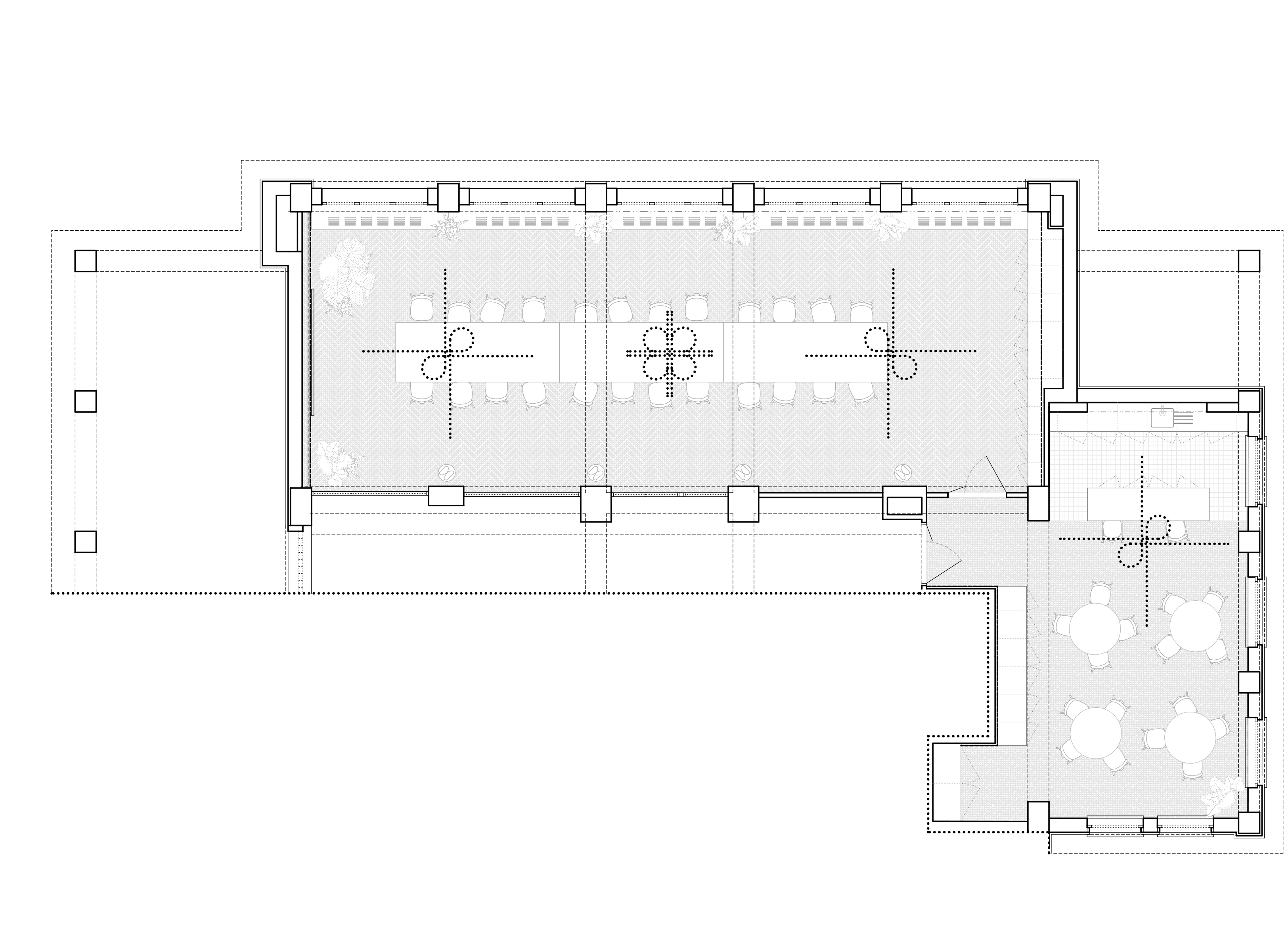
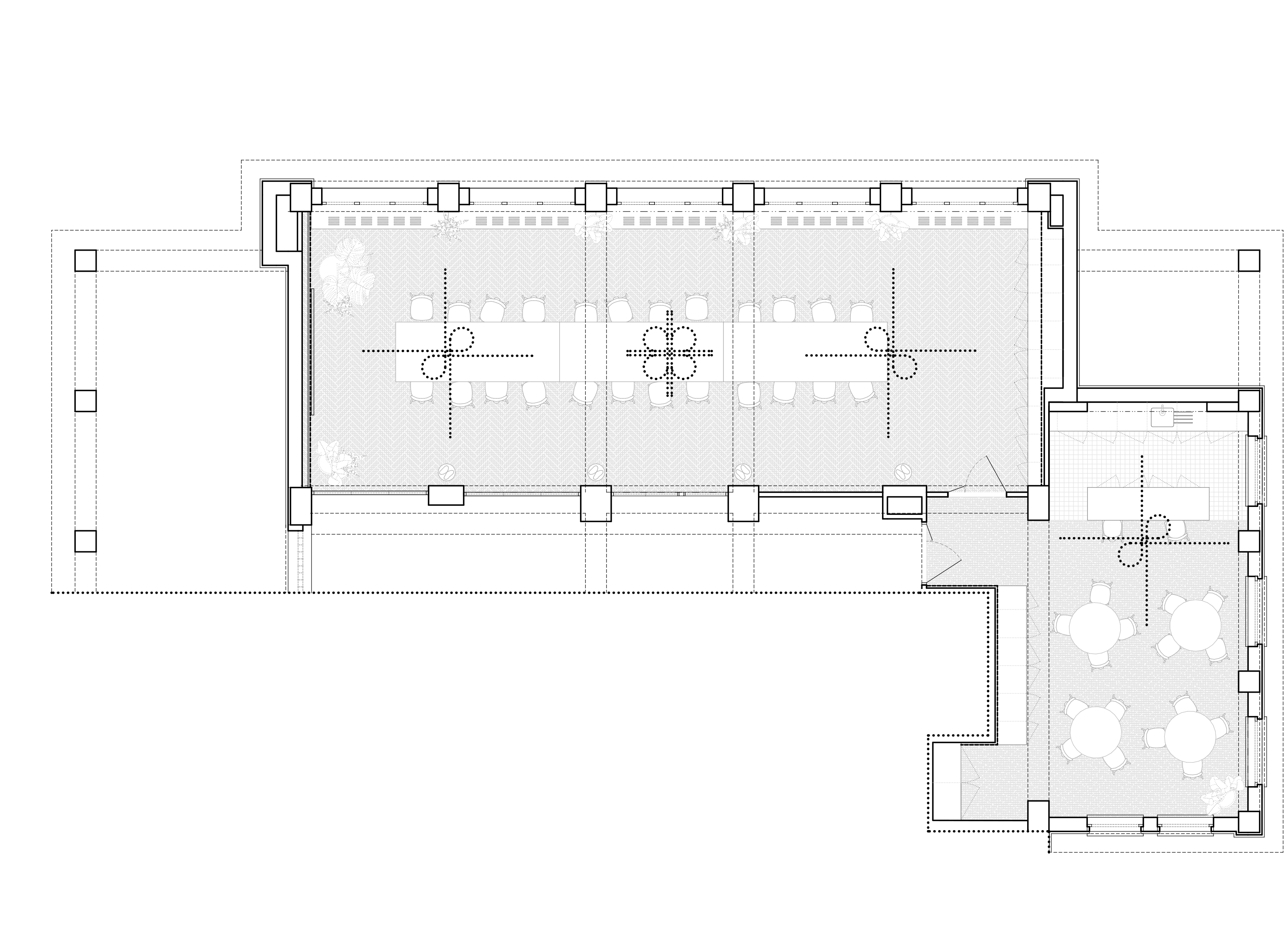
이번 리노베이션의 1단계는 직원 편의시설 개선에 초점을 맞췄다. 기존의 대형 주방과 식당은 더 이상 실제 사용 방식에 적합하지 않았는데, 직원들의 식사는 외부에서 제공되며 대부분 개인 사무실에서 식사를 해결하고 있었기 때문이다. 이에 따라 건축가는 식사 준비보다는 간단한 데우기와 고급 커피 머신 사용에 적합한 아늑한 소형 키친을 새롭게 구성했고, 이 공간은 비공식적인 소통과 휴식의 장소로도 기능한다. 기존 식당 공간은 26석 규모의 회의실로 전환되어, 점차 확장되는 팀을 위한 핵심 회의 공간으로 활용되고 있다.
전 과정의 설계를 담당한 스튜디오 코스모(Studio COSMO)는 건물 고유의 건축적 성격을 존중하는 것을 가장 중요한 설계 원칙으로 삼았다. 리노베이션 과정에서는 부적절하게 추가되었던 가벽, 천장 마감, 걸레받이, 노출 배선 등을 제거하고, 내부를 원형에 가깝게 복원했다. 이를 통해 건물의 본질적인 요소인 콘크리트 구조 프레임, 풍부한 자연광, 오크 마루 바닥이 다시 드러났으며, 이 요소들은 회사의 시각적 아이덴티티와 절제된 방식으로 결합되었다.
십자 교차로 형태의 기존 로고는 KNOW HOW solutions에 의해 새롭게 재해석되었고, 이는 인테리어 디자인 전반의 주요 영감이 되었다. 스튜디오 코스모는 이 로고 모티프를 공간 안으로 확장해, 교차로 형태를 연상시키는 맞춤형 조명 기구를 직접 디자인했다. 이러한 요소들은 회사의 전문 분야인 토목·인프라 설계와 실내 공간의 미학을 상징적으로 연결한다.
재료 선택 역시 공간의 정밀하고 현대적인 성격을 강조한다. 키친 공간에는 스테인리스 스틸 마감과 세라믹 아일랜드가 적용되었고, 회의실에는 로고 패턴이 반영된 맞춤형 MDF 패널이 설치되었다. 이와 같은 특수 제작 가구와 디테일 요소들은 브릭(Brick)사의 협업을 통해 구현되었다.

























디자이너 스튜디오 코스모(Studio COSMO)
위치 체코, 프라하, 포드바바스카 거리 1014/20
용도 업무시설
연면적 162㎡
규모 지상 1층
설계기간 2024 - 2025
준공 2025
발주자 PUDIS
사진작가 Petr Moschner
'Interior Project > Office' 카테고리의 다른 글
| 남아있던 공장을 사무실로, 기존의 공간 위에 현재를 덧입히다 / 익소이 디자인 스튜디오 (0) | 2026.04.08 |
|---|---|
| 분홍 프레임 너머로 이어지는 전시와 일상의 무대 / 카르바호 에르마노스 (0) | 2026.01.12 |
| 곡선 타일과 자연광이 조직한 팔라츠 아크로폴리스의 공유 업무 공간 / 마르코 마이오 아키텍츠 (0) | 2025.12.09 |
| 고래의 골격과 비행기의 날개를 닮은 사무실, 블루라이엇 리노베이션 / 시사르스튜디오 (0) | 2025.11.25 |
| 제약을 창의성으로 바꾼 0 Club 인테리어 / 디디에이에이 (0) | 2025.09.18 |
