
프라하 지즈코프 지구의 역사적 건물 팔라츠 아크로폴리스에 자리한 470㎡ 규모의 이번 리노베이션은, 과거 여러 공간으로 나뉘어 닫혀 있던 층을 현대적 공유 업무 공간으로 재구성한 프로젝트다.
1990년대, 이 건물의 실내 분위기는 예술가 프란티셰크 스칼라가 만든 독특한 문화적 감수성으로 형성됐다. 이번 개편은 그 언어를 모방하기보다, 그 정신을 조용하게 이어받되 지금의 업무 환경에 어울리는 차분하고 명료한 공간으로 번역하는 방향을 선택했다.
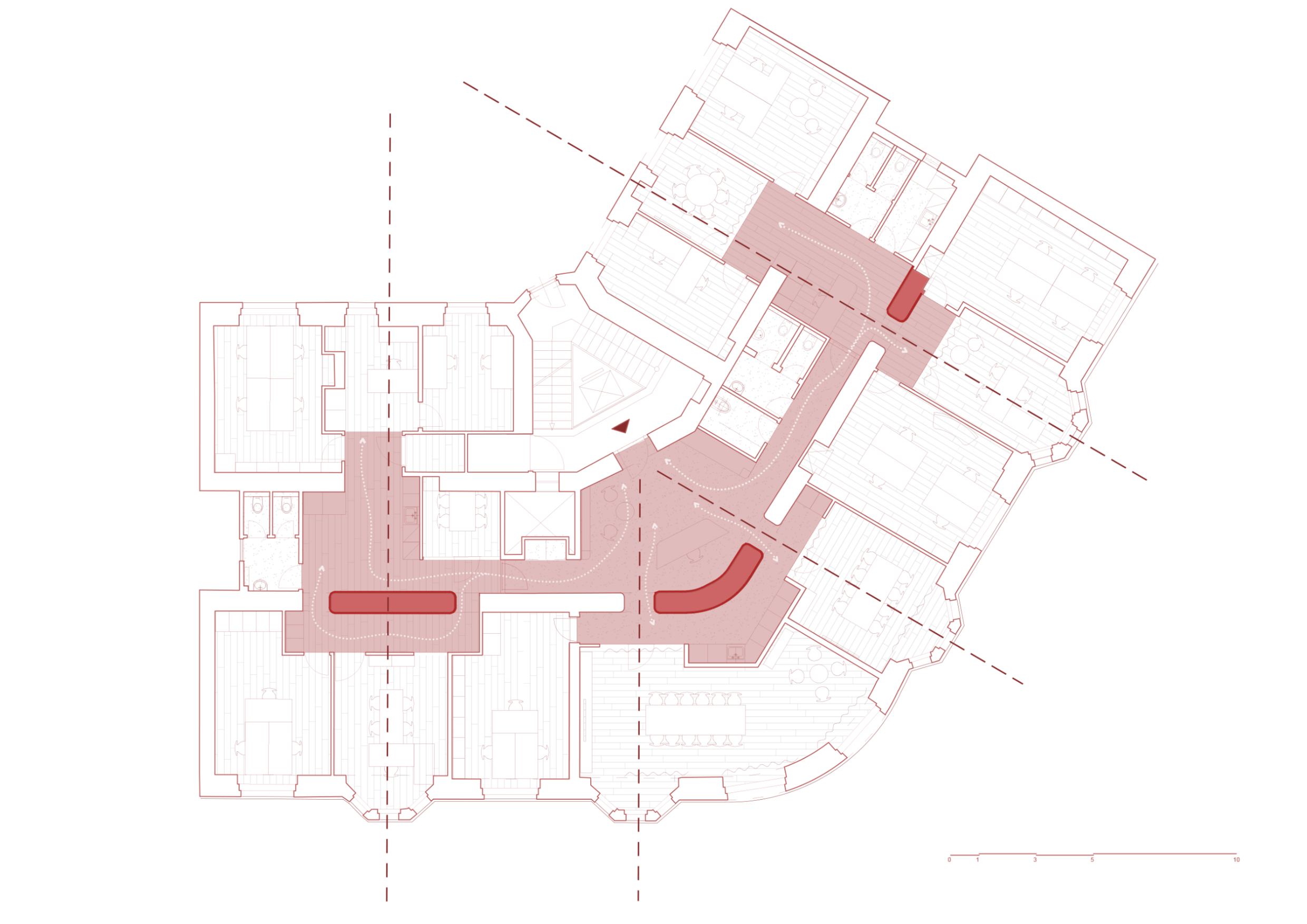
설계의 중심은 공유 허브다. 이 허브는 층 전체의 사회적 중심이자 순환을 이끄는 축으로 작동하며, 좌우 파사드에서 들어오는 자연광이 허브와 리셉션을 관통해 공간에 깊이를 부여한다.
전체 공간은 정돈된 재료 팔레트를 통해 일관성을 확보했다. 어둡고 단절된 복도는 완만한 곡선을 가진 통로로 바뀌었고, 이곳을 감싸는 붉은 세라믹 타일은 프로젝트의 핵심적 디자인 요소가 되었다. 같은 소재는 화장실에서는 더 밝은 톤으로 쓰여, 층 전체에 조용한 연속성을 만들어낸다.
이 타일 표면을 오크 마루와 오크 가구, 창 프레임이 따뜻하게 받쳐주며, 공유 공간에 배치된 맞춤 월넛 회의 테이블은 촉감적 대비를 이루어 공간의 깊이를 더한다. 조명은 곡선과 질감을 부드럽게 강조하며 흐름을 자연스럽게 이끌어준다.
층 전체는 개방도와 성격이 다른 회의실·업무실이 함께 구성되어 있다. 이 층을 사용하는 팀들은 공간·부동산·의사결정 등 공통 관심사를 중심으로 협업하지만, 동시에 집중이 필요한 개별 업무도 수행해야 한다. 이를 위해 공간은 마주침을 유도하는 공용 영역과 집중을 위한 조용한 영역이 교차하도록 설계됐다. 유리 파티션은 음향적 안정성을 확보하면서도 시각적 연속성을 유지한다.
결국 팔라츠 아크로폴리스의 이 새로운 사무 공간은, 건물이 지닌 문화적 정신을 현재의 업무 방식에 맞게 재해석한 공간이다. 역사적 맥락은 전면으로 드러나는 장식 대신, 공간 경험을 조용히 감싸는 배경으로 자리한다. 그 결과는 생산성과 여유를 균형 있게 품은, understated하면서도 오래 지속될 업무 환경이다.



























건축가 마르코 마이오 아키텍츠 (Marco Maio Architects)
위치 체코, 프라하, 파프르스코바 거리 1535/2번지, 140 00
용도 업무시설
건축면적 470㎡
규모 지상 1층
준공 2025
디자인팀 David Pesek Muller, Mylana Sydorenko, Kateřina Zapletalová
발주자 Realitní Fond Praha, Advokacie Praha, 2OPF
사진작가 Alex Shoots Buildings
'Interior Project > Office' 카테고리의 다른 글
| 분홍 프레임 너머로 이어지는 전시와 일상의 무대 / 카르바호 에르마노스 (0) | 2026.01.12 |
|---|---|
| 회의실과 키친을 중심으로 재구성한 엔지니어링 오피스 리노베이션 / 스튜디오 코스모 (0) | 2025.12.19 |
| 고래의 골격과 비행기의 날개를 닮은 사무실, 블루라이엇 리노베이션 / 시사르스튜디오 (0) | 2025.11.25 |
| 제약을 창의성으로 바꾼 0 Club 인테리어 / 디디에이에이 (0) | 2025.09.18 |
| 업무공간과 쇼룸을 연결한, 이안기획 오피스 / 디자인스튜디오 모노 (0) | 2025.09.04 |
마실와이드 | 등록번호 : 서울, 아03630 | 등록일자 : 2015년 03월 11일 | 마실와이드 | 발행ㆍ편집인 : 김명규 | 청소년보호책임자 : 최지희 | 발행소 : 서울시 마포구 월드컵로8길 45-8 1층 | 발행일자 : 매일



