
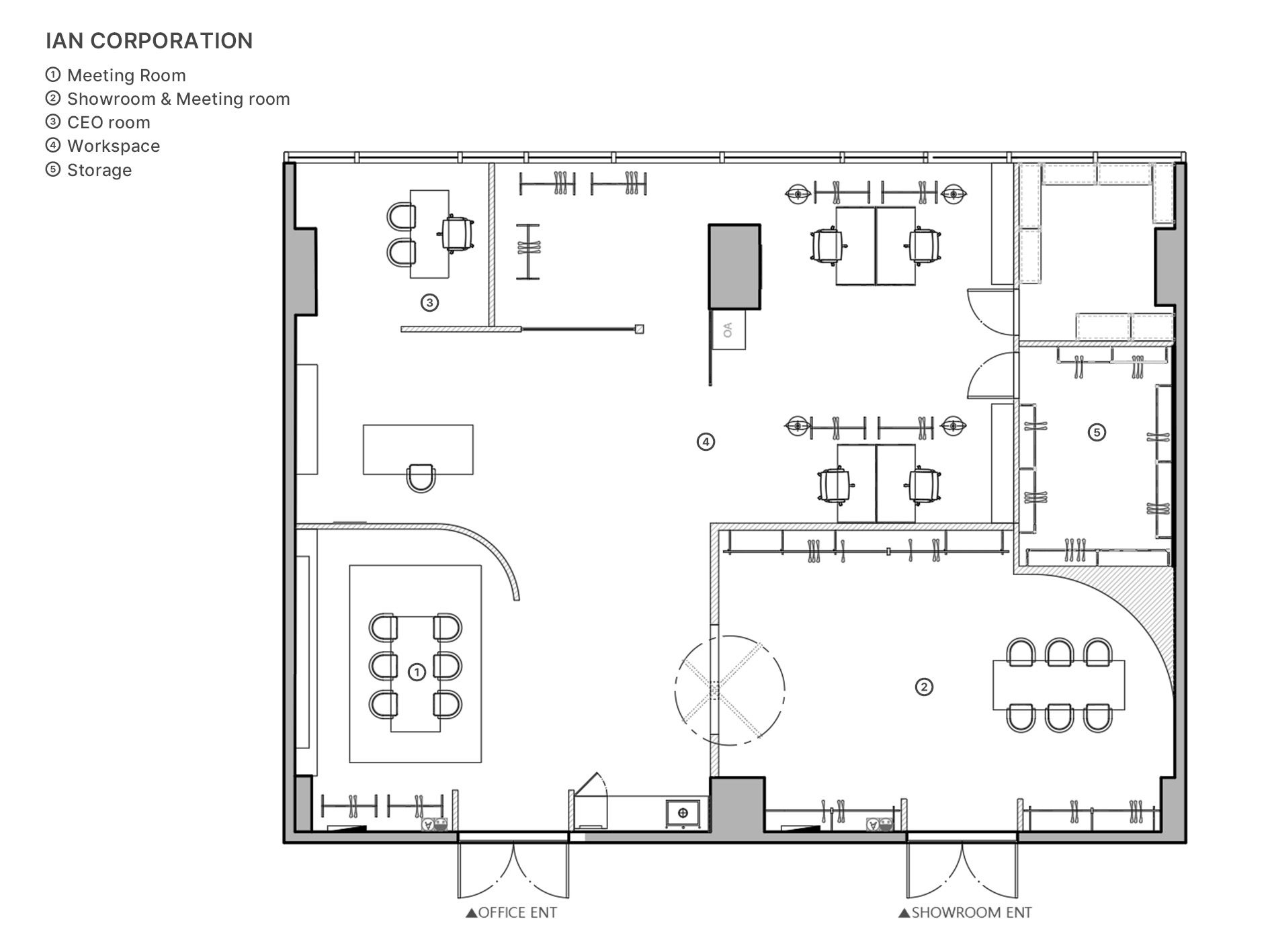
성수동 지식산업센터에 위치한 이안기획 오피스 & 쇼룸은 의류 디자인과 브랜드 협업이라는 두 가지 기능을 하나의 공간에 담은 복합 사무공간이다. 사무공간과 쇼룸을 유기적으로 연결해 브랜드 소통의 허브를 구현하고, 창의성과 실용성이 공존하는 업무환경을 계획했다. 세련된 그레이 톤과 스틸 소재로 도시적 감각을 담았으며, 노출 콘크리트 바닥은 거친 질감과 쿨한 무드를 더했다.
오피스와 쇼룸은 독립된 출입구로 구성되어 기능을 분리한다. 쇼룸 입구는 스틸 도어로 마감해 프라이버시를 확보했고, 오피스 입구는 반투명 세로 패턴 유리로 개방감을 강조했다. 오피스 내부에서 가장 먼저 마주하는 미팅룸은 와이드한 테이블을 중심으로 자유로운 소통이 가능하며, 자체 제작한 스틸 격자 선반과 수납장으로 실용성과 미니멀리즘을 동시에 구현했다. 라운딩 처리된 파티션과 수직 와이어 조명은 몰입감을 형성하고, 오픈형 탕비 공간은 클라이언트를 위한 환대를 완성한다.
쇼룸은 의류 샘플을 선보이는 핵심 공간으로, 오피스와 쇼룸을 잇는 폭 2m의 와이드 회전 도어가 하이라이트다. 한쪽은 스틸, 다른 한쪽은 전신 거울로 마감해 기능성과 디자인적 포인트를 모두 확보했다. 스페셜 그레이 도장 벽체는 백색 오피스와 대비를 이루고, 양면 행거 시스템은 다양한 샘플을 효율적으로 전시한다. 라운드 마감 벽체는 직선 위주의 구조에 볼륨감을 더하며, Ingo Maurer의 팬던트 조명과 자체 제작한 조형적 테이블은 공간의 예술성을 높였다.
업무 공간은 프라이빗 데스크존과 공용 데스크존으로 나누어 집중과 협업을 동시에 지원한다. 각 데스크는 마네킹, 행거, 원단 스와치 전용 수납장을 갖추어 디자인 업무의 효율성을 높였다. 오피스 파티션은 출입문과의 디자인 통일성을 위해 반투명 폴리카보네이트 패널로 제작했으며, 천장과 바닥에서 띄운 구조로 자연광이 확산되도록 계획했다.































디자이너 디자인스튜디오 모노(Design Studio Mono)
위치 서울시 성동구
용도 업무시설
건축면적 198㎡
디자인팀 오수현, 강예은, 신지수
준공 2025
사진작가 박세은
'Interior Project > Office' 카테고리의 다른 글
| 고래의 골격과 비행기의 날개를 닮은 사무실, 블루라이엇 리노베이션 / 시사르스튜디오 (0) | 2025.11.25 |
|---|---|
| 제약을 창의성으로 바꾼 0 Club 인테리어 / 디디에이에이 (0) | 2025.09.18 |
| 빛으로 조화되는 쿠웨이트 대사관 / 아키텍키드 (0) | 2025.07.14 |
| 레보루션-코닉스 사옥 리노베이션 / 휴고 코노 아키텍트 어소시에이츠 (0) | 2025.07.10 |
| 모듈로 구성하는 생물 친화 실험공간 / 에콜로직스튜디오 엘알 (0) | 2025.04.28 |
마실와이드 | 등록번호 : 서울, 아03630 | 등록일자 : 2015년 03월 11일 | 마실와이드 | 발행ㆍ편집인 : 김명규 | 청소년보호책임자 : 최지희 | 발행소 : 서울시 마포구 월드컵로8길 45-8 1층 | 발행일자 : 매일



