
자생적 풍경_ Autogenous landscape
광활한 평야로 이루어진 경작지 위에 새로운 도시가 쓰여지려하고 있다. 드넓은 경작지의 풍경은 이제 물리적인 힘이 가해져 변형과 변용의 반복을 통해 인위적 환경으로 변화를 거듭하며, 의료복지타운의 새로운 풍경이 자리 할 것이다.
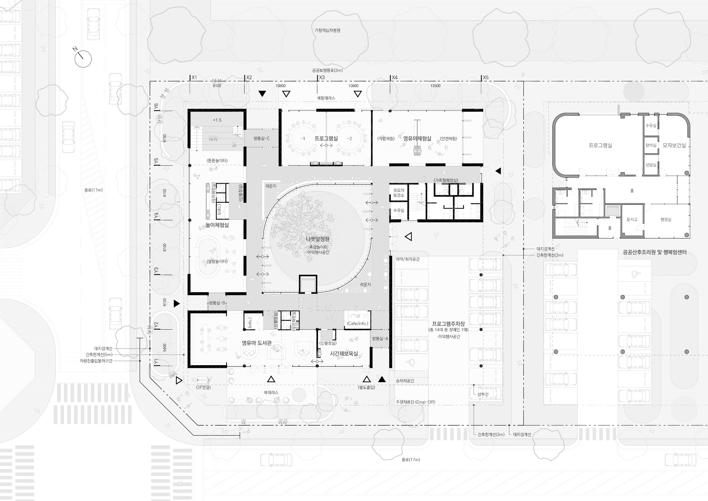
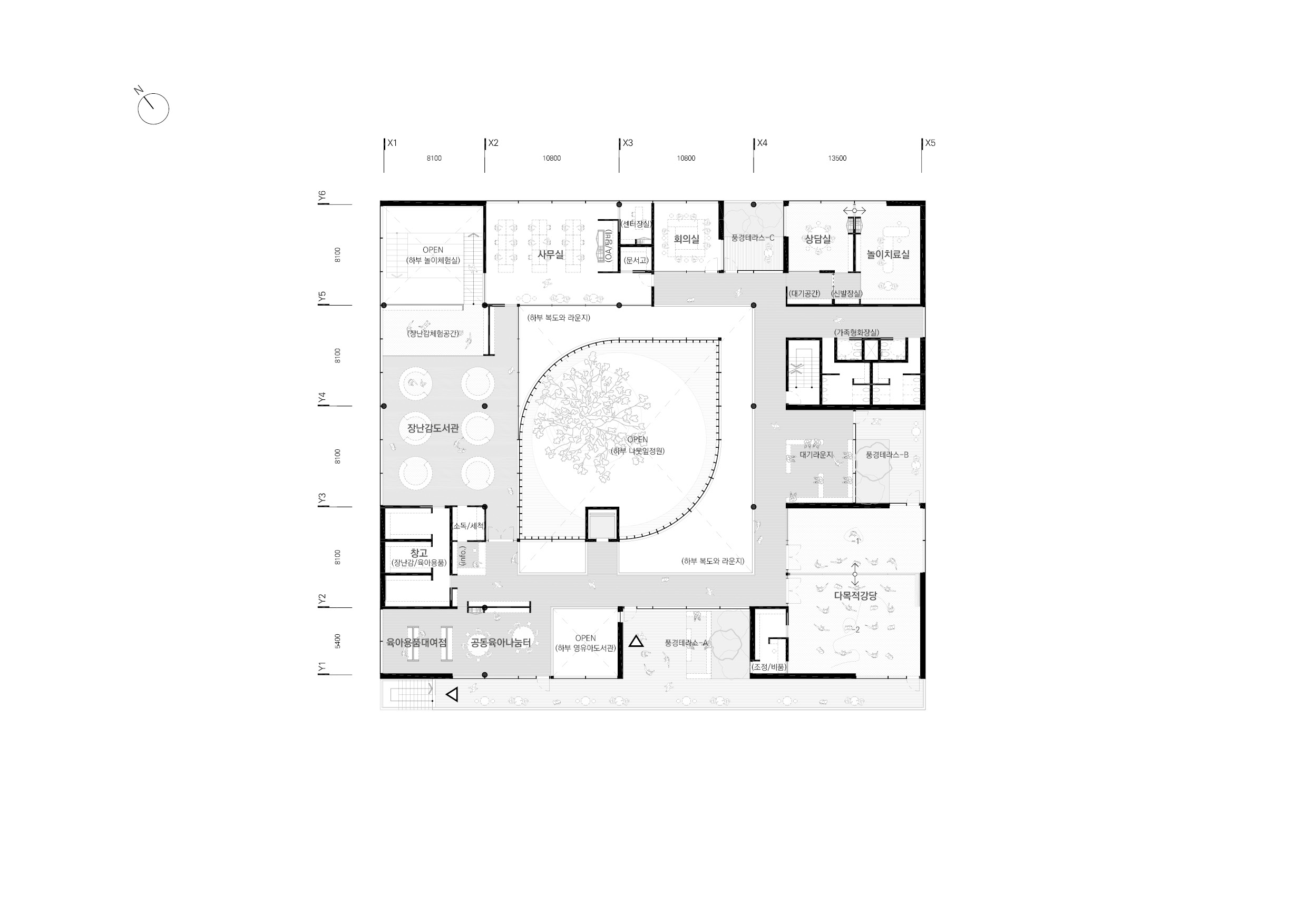
이러한 도시계획의 일환으로 형성되는 육아드림센터는 도시계획 상 세면의 길(보행로와 공공보행통로)를 마주하며, 공공건축물(공공산후조리원 및 행복맘센터)로 한면을 구축 한 사분위의 경계를 구성하게 된다.
이렇게 설정 되어진 경계면들의 적극적인 해석을 통해 구체적인 대응과 동시에 육아드림센터가 지니는 그 목적성과 활기로움들을 부여 할 수 있는 새로운 연속되는 풍경과 느슨한 경계_ Scenery landscape을 제안한다.
연속되는 풍경과 느슨한 경계_ Scenery landscape를 이루기 위한 경계면의 설정
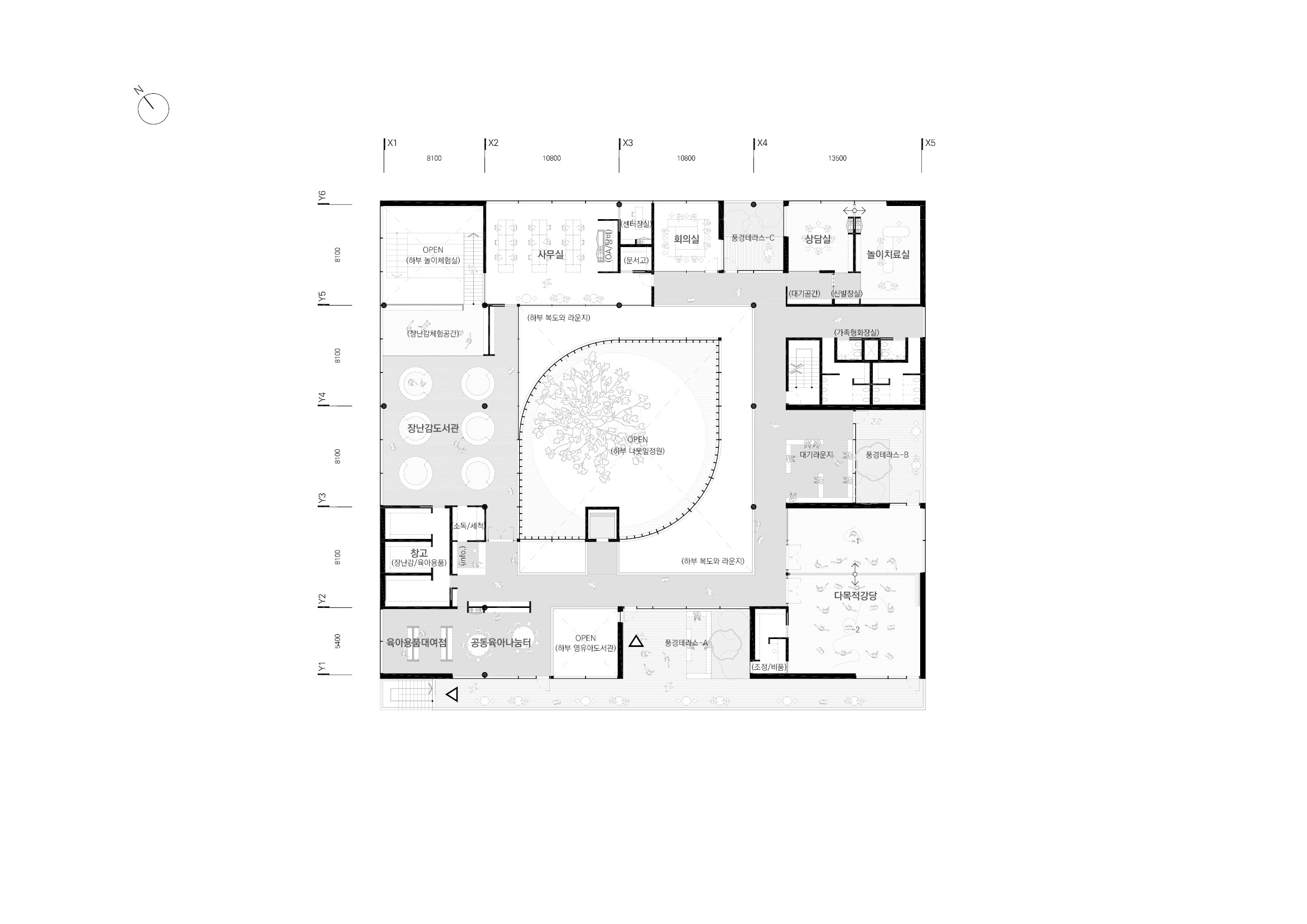
- 동측편의 경계면_ 공공산후조리원 및 행복맘센터로 부터 풍경을 연속하여 하나의 공공적 가치를 지향하는 풍경을 연출
- 남측편의 경계면_ 열린 경작지의 풍경을 내부공간으로 끌어들여, 온화로운 공간적 분위기와 감각을 지닌 공간을 형성
- 북서편의 경계면_ 보행로와 공공보행로로 부터 선명한 인지성과 공간적/시지각적 확장을 유도하는 느슨한 경계
결국, 우리의 계획은 의료복지타운의 도시계획 중 극히 일부분에 계획을 하고 있으나, 장소의 전체가 변화하는 과정 속 하나임이 분명하다. 이에 우리는 스스럼없이 녹아들어 공공성의 절합화와 공간의 잠재력을 확장하여, 공동체의식의 복기와 공공성을 획득하려한다. 장소의 어떠한 공간들은 아이들의 안전한 놀이터가 되기도 하고, 어떠한 공간들은 언제나 열려 그 누구나 온화로움을 느낄 수 있는 익명적 공간이 되기도 한다.
또한 프로그램의 확장(공간적 확장)을 통해 이벤트를 수용하며, 지역주민들에게 삶의 정보와 교육을 제공하는 실천적 장소가 되기도 한다. 이렇게 생성되어질 육아드림센터는 완전히 정제된 하나의 완결함을 거부하고, 주민스스로가 참여하는 다원화된 공동체의식을 지향한다. 이러한 일상적 풍경들의 시퀀스가 생성될 때 자생적 풍경_ Autogenous landscape로 부를 수 있다.
자생적 풍경_ Autogenous landscape를 이루기 위한 몇가지 개념적 요소들
- 프로그램의 규정_ 지침에서 요구되는 기능에 순응하되, 이용자의 '쓰임'을 극대화 할 수 있는 프로그램의 해석과 재분배
- 정원과 마당들_ 아이들의 행복한 비명소리가 가득한 안전함으로 에워진 완연한 자연적 정원의 발현
- 열린풍경과 테라스들_ 보호자들간의 삶의 정보와 소통이 활발히 이루어지는 온화로운 공간들
- 열린동선과 공용공간들_ 사분위에 모두 접근이 용이하고, 보이드/천창/편화 된 공용부를 통해 밝고 명랑한 공간적 감각을 지닌 공용부










건축사사무소 이재
당선작_ 건축사사무소 이재(https://studioije.com/)
대표건축가 정재림
대지면적 2,800㎡
연면적 2,190.27㎡
건축면적 1,532.75㎡
건폐율 54.74%
용적률 73.54%
최고높이 10.1m
층수 지하 1층, 지상 2층
구조 철근콘크리트 구조
대표건축가 정재림
디자인팀 문형규, 최수영
조경면적 950㎡
주차대수 14대(장애인1대, 일반13대)
발주처 거창군청
'Plans' 카테고리의 다른 글
| 진성면 기초생활거점 조성사업 설계공모_ 3등작 / 오더메이드 건축사사무소 (0) | 2025.11.10 |
|---|---|
| 봉산면 행정복지센터 건립 설계 공모_ 2등작 / 주식회사 이안서우건축사사무소 (0) | 2025.11.10 |
| 남도음식사관학교 조성사업_ 2등작 / 스튜디오 로사이 건축사사무소 (0) | 2025.11.05 |
| 봉하마을 숙박기반시설 조성사업 건축설계 공모_ 3등작 / 화인종합건축사사무소 (0) | 2025.11.03 |
| 한강경찰대 여의도본대 이전·신축 제안설계공모_ 2등작 / 토도아키텍츠 건축사사무소 (0) | 2025.11.03 |
마실와이드 | 등록번호 : 서울, 아03630 | 등록일자 : 2015년 03월 11일 | 마실와이드 | 발행ㆍ편집인 : 김명규 | 청소년보호책임자 : 최지희 | 발행소 : 서울시 마포구 월드컵로8길 45-8 1층 | 발행일자 : 매일



