
함께 머무는 곳, 이어지는 마을
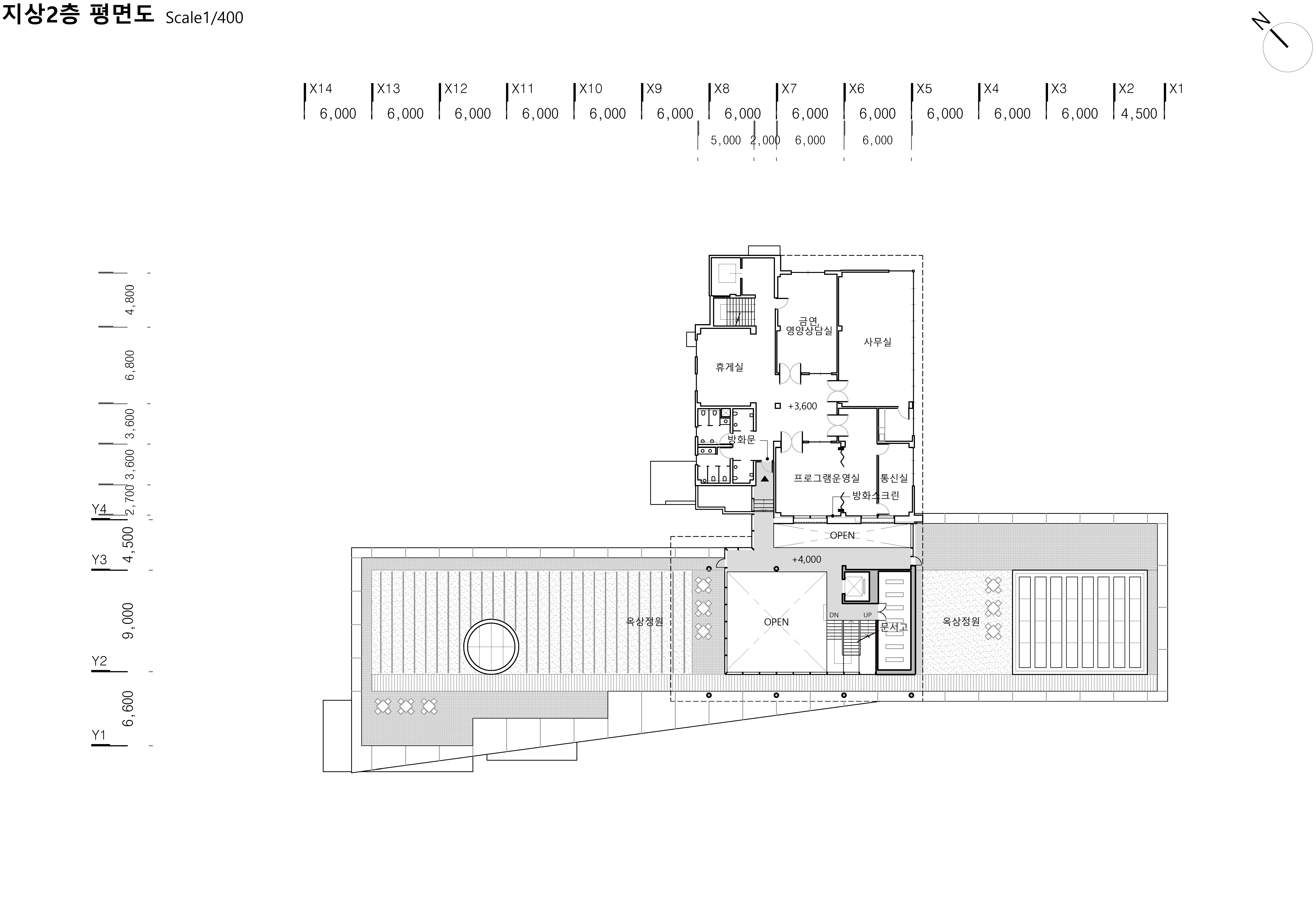
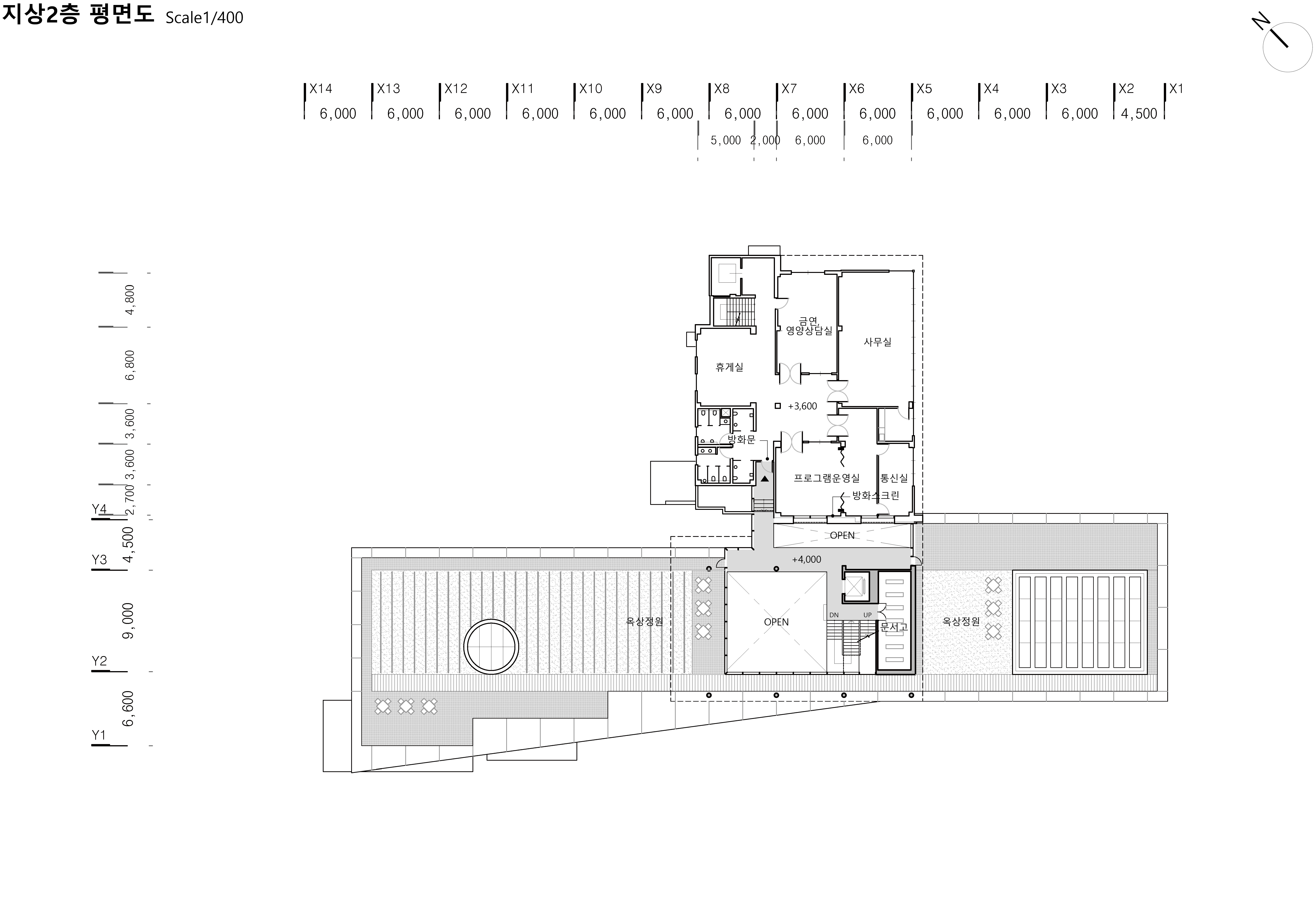
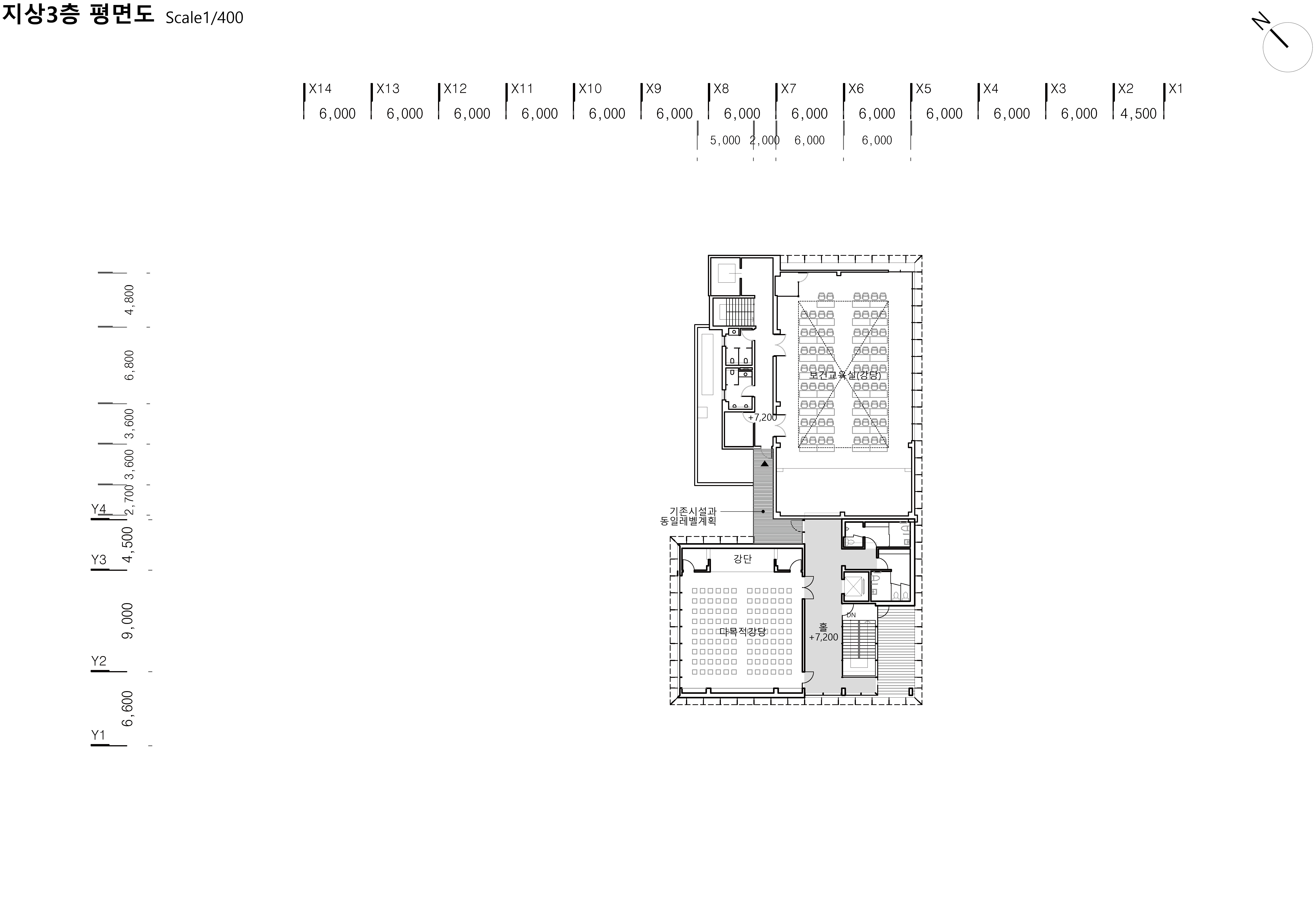
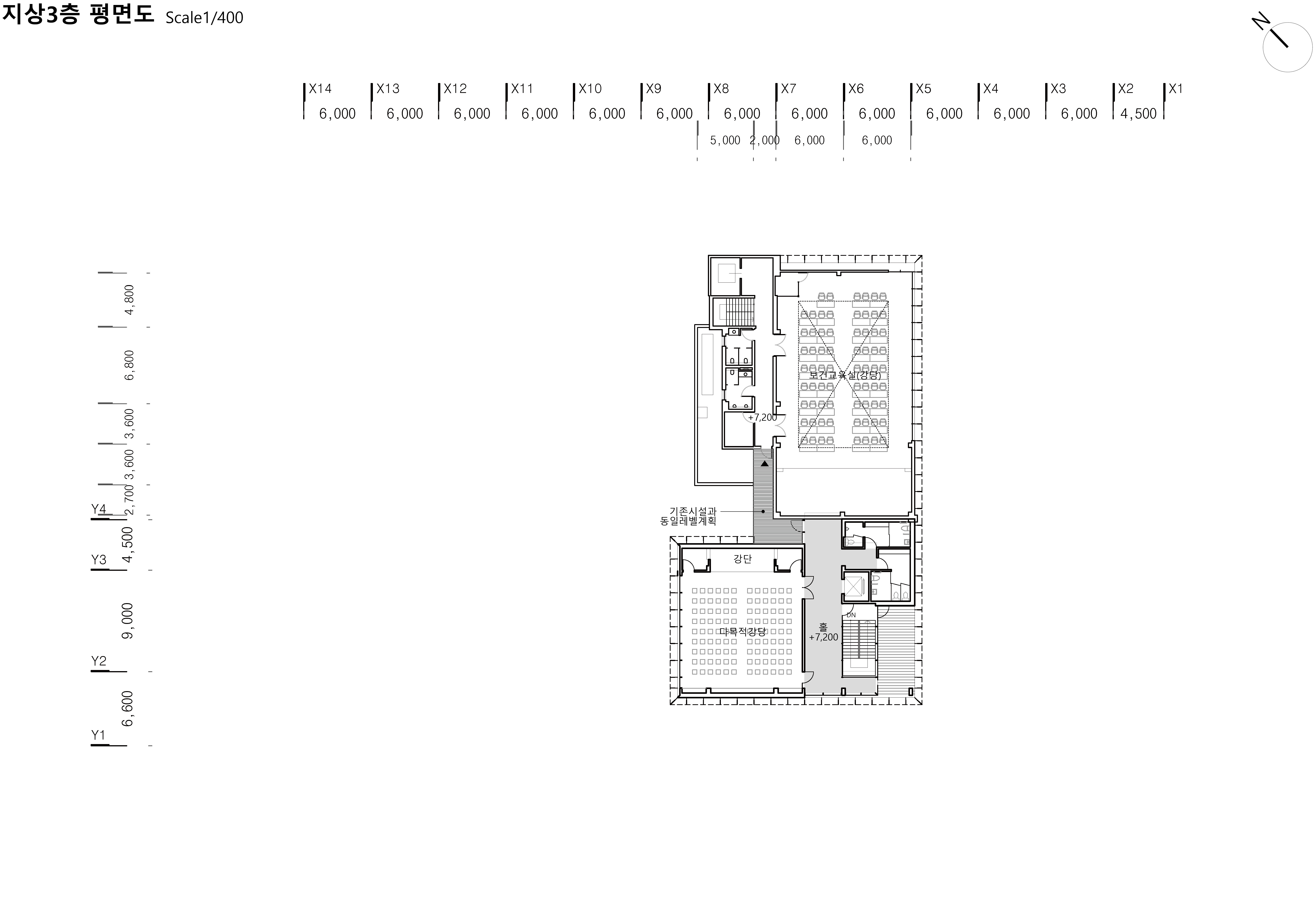
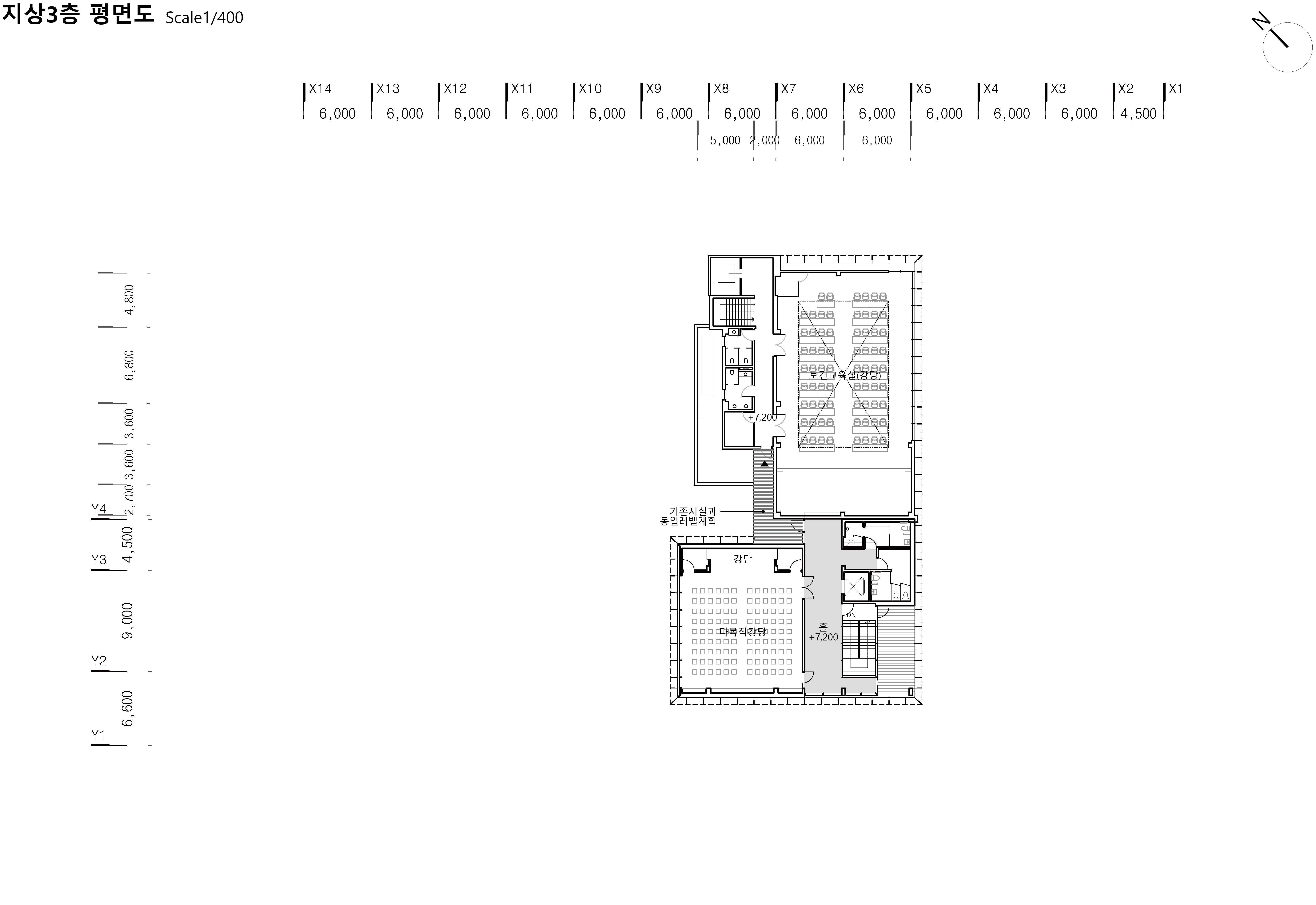
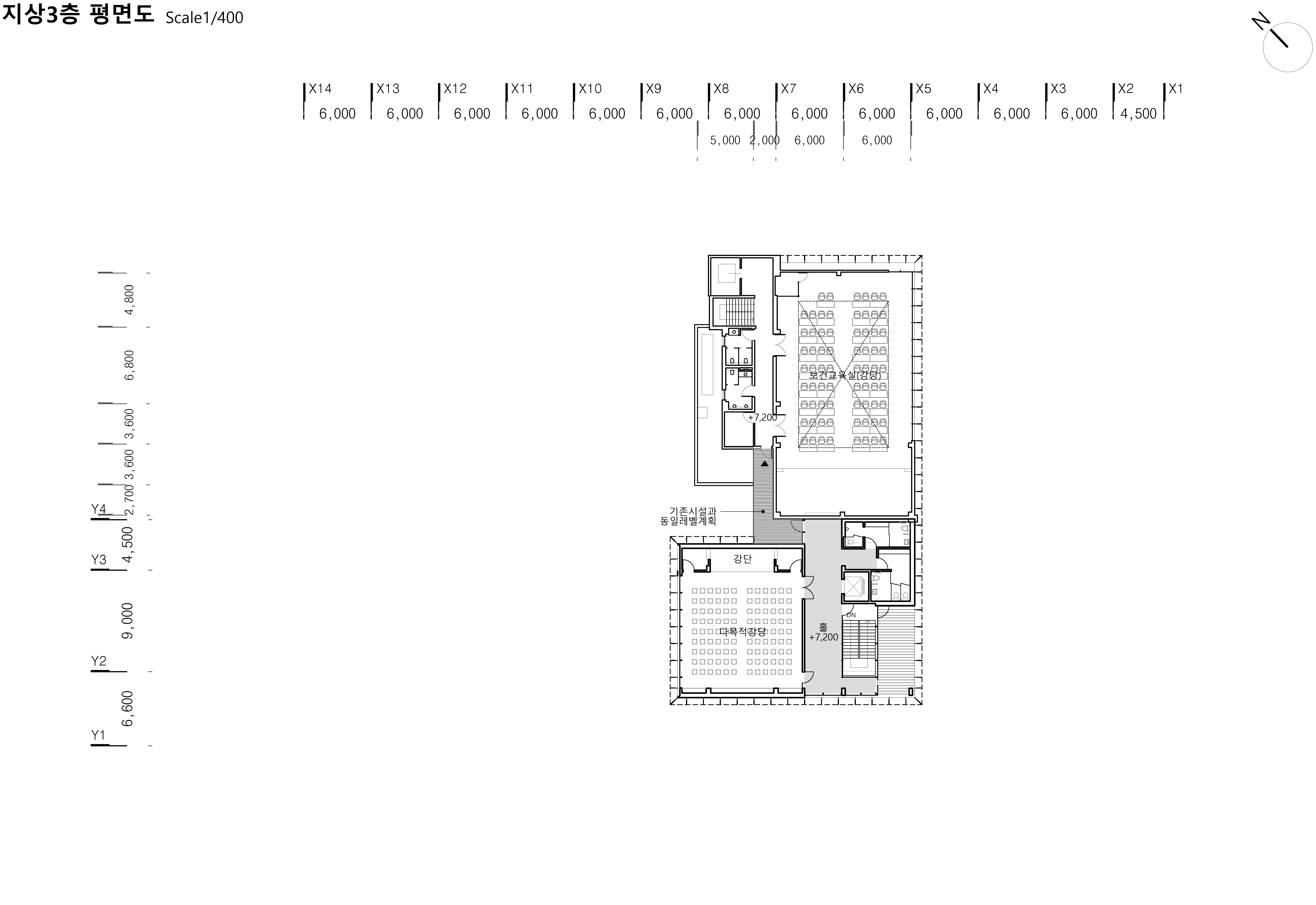
봉산면은 넓은 행정구역 내에 여러 마을이 군집을 이루며 낮은 밀도로 분산되어 있다. 로터리는 이러한 마을들을 연결하는 가로 체계의 주요 결절점으로 기능한다. 건축은 이 연결가로를 향해 명확한 정면성을 부여하고, 기존 건축의 질서를 수용하는 명료한 프로그램 구성으로 계획되었다. 전략적으로 배치된 ‘한마음마당’을 중심으로, 행정과 복지의 역할을 넘어 지역의 일상과 활동을 담는 생활 플랫폼으로 자리한다.















주식회사 이안서우건축사사무소
2등작_ 주식회사 이안서우건축사사무소(https://www.eanseowoo.org/)
대표건축가 최지안
대지면적 4,794.00㎡
연면적 2,829.20㎡
건축면적 1,622.50㎡
건폐율 33.84%
용적률 59.02%
최고높이 15m
층수 지하 1층, 지상 3층
구조 철근콘크리트, 철골구조
대표건축가 최지안
디자인팀 이종철, 유다솔, 문정호, 김지수
주차대수 24대
발주처 김천시
'Plans' 카테고리의 다른 글
| 첫 대전시청사 보존 및 활용을 위한 복원보수공사 설계공모(제안공모)_ 2등작 / 건축사사무소 강희재 (0) | 2025.11.10 |
|---|---|
| 진성면 기초생활거점 조성사업 설계공모_ 3등작 / 오더메이드 건축사사무소 (0) | 2025.11.10 |
| 거창군 육아드림센터 건립사업 설계공모_ 당선작 / 건축사사무소 이재 (0) | 2025.11.05 |
| 남도음식사관학교 조성사업_ 2등작 / 스튜디오 로사이 건축사사무소 (0) | 2025.11.05 |
| 봉하마을 숙박기반시설 조성사업 건축설계 공모_ 3등작 / 화인종합건축사사무소 (0) | 2025.11.03 |
마실와이드 | 등록번호 : 서울, 아03630 | 등록일자 : 2015년 03월 11일 | 마실와이드 | 발행ㆍ편집인 : 김명규 | 청소년보호책임자 : 최지희 | 발행소 : 서울시 마포구 월드컵로8길 45-8 1층 | 발행일자 : 매일



