
보존과 복원의 원칙
설계의 중심에는 ‘귀환, 가역성, 연결’이라는 세 가지 원칙이 있다. ‘귀환’은 건축의 원형으로 돌아가는 과정이다. 고증 자료와 실측조사를 통해 건립 당시의 형태와 비례를 복원하고, 이를 통해 시민의 기억과 장소의 정체성을 되살린다. ‘가역성’은 되돌릴 수 있는 복원을 의미한다. 현대적 기능을 위한 개입이 불가피한 부분은 독립된 구조로 분리하여, 원형 건물에 최소한으로 영향을 주는 방식으로 설계했다. ‘연결’은 복원된 본체와 증축부, 외부 공간이 하나의 흐름 속에서 이어지도록 하는 공간적 개념이다. 이를 통해 과거와 현재가 공존하는 ‘살아 있는 기억의 장소’를 구현하고자 했다.
원형의 재현과 현대적 수용
1930년대 모더니즘과 기능주의의 조형 감각을 지닌 첫 대전시청사는, 단순한 외피의 복원을 넘어 당시의 미학과 기술을 되살리는 것이 핵심이었다. 정면의 커튼월은 고증자료를 토대로 비례와 리듬을 재현했고, 얇은 프레임과 투명한 유리를 사용해 구조적 투명성을 회복했다. 외벽 마감은 재료의 질감과 단열 성능을 함께 고려하여 형태 복원과 기능 개선의 균형을 이루었다. 내부는 실측조사를 통해 확인된 강당의 경사로와 곡선 천장을 원형으로 복원하되, 구조보강과 조명설계를 통해 다양한 공연 및 전시가 가능한 공간으로 확장했다. 특히 LED 색변환 조명을 적용한 천장은, 목조틀의 원형을 유지하면서도 현대적 활용성을 확보한 대표적 적응형 복원의 사례가 된다.
새로운 도시적 연결
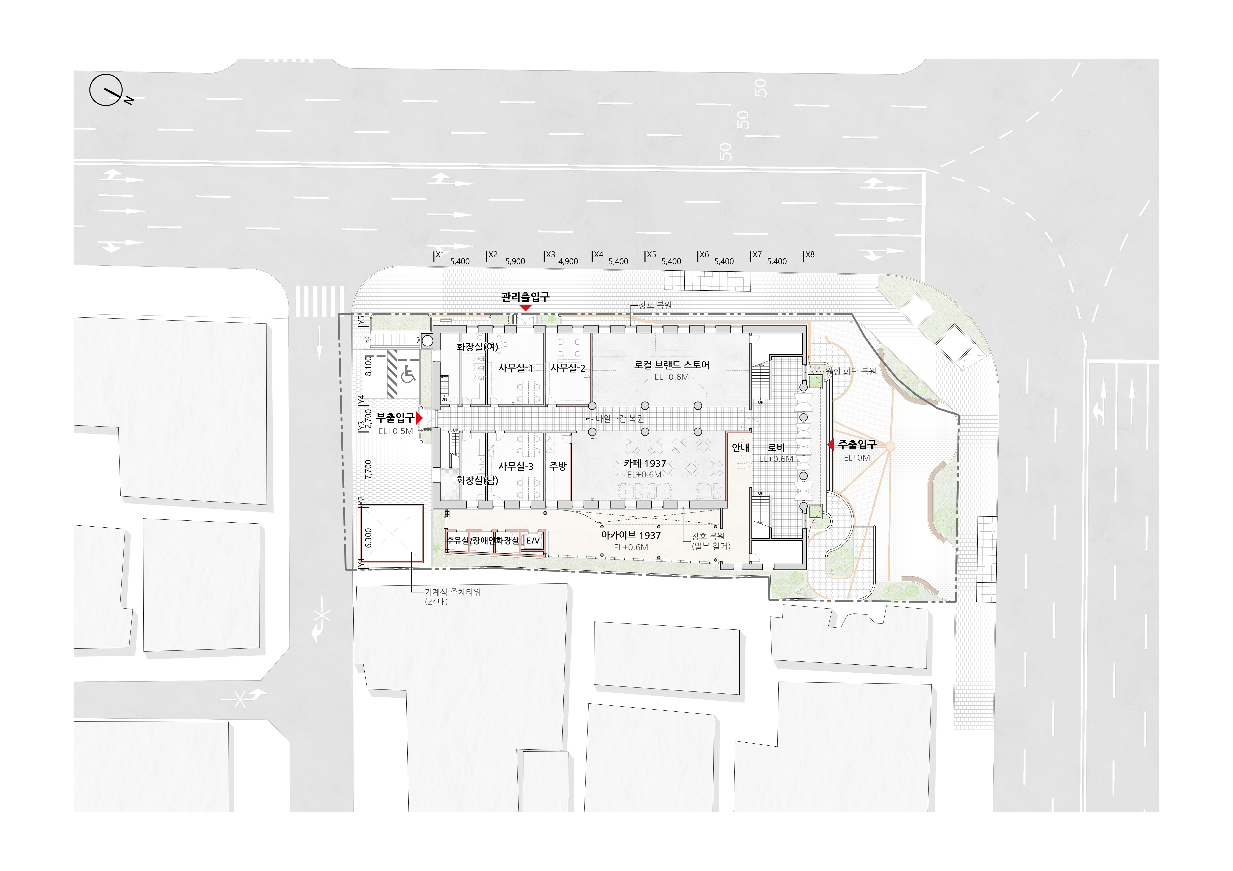
복원된 건물은 단절된 유산이 아니라, 주변 도시와 이어지는 열린 플랫폼으로 기능한다. 1층은 시민을 위한 카페와 로컬 브랜드 스토어, ‘아카이브 1937’을 배치해 일상의 접근성을 높였고, 2층은 전시 중심의 문화공간으로 구성하여 대전의 예술·역사 콘텐츠를 수용한다. 3층 강당은 수납식 객석을 갖춘 다목적 집회공간으로, 최대 450석 규모의 다양한 프로그램을 소화할 수 있다. 상부의 ‘헤리티지 라운지’에서는 복원된 파사드와 곡선형 보이드를 통해 과거와 현재의 건축 언어가 교차하는 경험을 제공한다. 외부는 ‘헤리티지 광장’으로 조성되어, 주변의 근대유산과 도시를 잇는 기억의 축을 형성한다. 증축부를 매개로 배면 주차공간 일부를 포켓공원으로 전환하고, 중앙로역 지하광장과의 연계로 도시적 흐름을 확장을 제안하였다.
구조적 진정성과 실현성
정밀안전진단 결과를 반영해, 비가시적 공법(철판 덧댐, 탄소섬유 보강 등)을 중심으로 최소한의 보강을 수행한다. 이는 구조적 안전성과 원형의 진정성을 동시에 확보하는 방식으로, 복원건축에서의 기술적 현실성과 보존의 원칙을 모두 충족한다. 증축부는 기존 구조와 완전히 분리된 독립 철골 구조로 계획되어, 향후 필요 시 해체가 가능한 ‘가역적 시스템’을 실현하였다.
기억의 복원, 시민의 건축
첫 대전시청사의 복원은 형태의 복원을 넘어, 기억의 복원이다. 건축은 과거를 재현하는 동시에 새로운 시민의 일상을 담는 그릇이 되어야 한다. 이번 제안은 근대건축의 역사적 진정성을 지키면서, 그 위에 대전의 현재와 미래가 교차하는 열린 무대를 만드는 시도이다. 과거의 시간과 현대의 기능이 공존하는 이 건물이, 다시금 시민의 기억 속 살아 있는 유산으로 자리하길 기대한다.












건축사사무소 강희재
2등작_ 건축사사무소 강희재(https://www.gangheejae.com/)
대표건축가 강성원
대지면적 1.949㎡
연면적 2,744.21㎡
건축면적 889.63㎡
건폐율 53.92%
용적률 159.21%
최고높이 21.3m
층수 지하 1층, 지상 3층
구조 철근콘크리트구조, 철골구조
대표건축가 강성원
디자인팀 조혜민, 손염
주차대수 총26대 (일반 25대, 장애인 1대)
발주처 대전시청
'Plans' 카테고리의 다른 글
| 진성면 기초생활거점 조성사업 설계공모_ 3등작 / 오더메이드 건축사사무소 (0) | 2025.11.10 |
|---|---|
| 봉산면 행정복지센터 건립 설계 공모_ 2등작 / 주식회사 이안서우건축사사무소 (0) | 2025.11.10 |
| 거창군 육아드림센터 건립사업 설계공모_ 당선작 / 건축사사무소 이재 (0) | 2025.11.05 |
| 남도음식사관학교 조성사업_ 2등작 / 스튜디오 로사이 건축사사무소 (0) | 2025.11.05 |
| 봉하마을 숙박기반시설 조성사업 건축설계 공모_ 3등작 / 화인종합건축사사무소 (0) | 2025.11.03 |
마실와이드 | 등록번호 : 서울, 아03630 | 등록일자 : 2015년 03월 11일 | 마실와이드 | 발행ㆍ편집인 : 김명규 | 청소년보호책임자 : 최지희 | 발행소 : 서울시 마포구 월드컵로8길 45-8 1층 | 발행일자 : 매일



