
신앙, 예술, 건축이 조화를 이루는 공간, Church of Joy는 빛, 기하학, 성스러운 상징이 대화하듯 펼쳐지는 건축 서사를 선보인다.
새롭게 발견한 신앙에 이끌려 우리는 파사드와 회중 홀 내부라는 제한적이지만 강렬한 초점에서 여정을 시작했다.
빛나는 언약: 건축적 파사드에서의 창세기
파사드의 프리캐스트 수직 주름은 구약의 성막처럼 신과 인간의 경계를 상징하며 아래로 흘러내린다. 이 주름은 햇빛을 받아 정교한 그림자를 드리우며, 언약의 십자가(Covenant Cross)를 위한 강렬한 캔버스를 형성한다.
창세기 9장 16절:
"무지개가 구름 사이에 있을 때마다 내가 보고, 하나님과 땅 위에 있는 모든 생물 사이에 세운 영원한 언약을 기억하리라."
이 언약에서 영감을 받아 전면 파사드에는 디크로익 아크릴로 제작된 언약의 십자가가 자리한다. 이 십자가는 햇빛을 받아 반사되고 굴절되며 역동적인 색의 상호작용을 창출한다. 다양한 깊이의 핀들은 예수의 형상을 추상적으로 구현하며, 햇빛이 파사드를 감쌀 때 십자가는 생동감 있게 빛나며 기쁨의 언약을 표현한다. 빛과 하늘의 조건에 따라 색은 변주를 이루고, 흐린 날에는 은은한 색조를 드러내고, 햇빛이 비출 때는 선명한 색이 반사되어 파사드에 생명력을 불어넣는다.
마태복음 5장 14-15절:
"너희는 세상의 빛이라. 산 위에 있는 동네가 숨겨지지 못할 것이요. 사람이 등불을 켜서 말 아래 두지 아니하고 등경 위에 두나니, 이러므로 집 안 모든 사람에게 비추느니라." 낮에서 밤으로 넘어가면 마태복음 5장 14-15절이 현실화된다. 특수 조명이 십자가를 빛나는 등불로 변모시켜 교회는 동네를 밝히는 등불이 되고, 성경의 메시지를 몸소 실현하며 그 안에 머무는 모든 이에게 희망을 전한다.
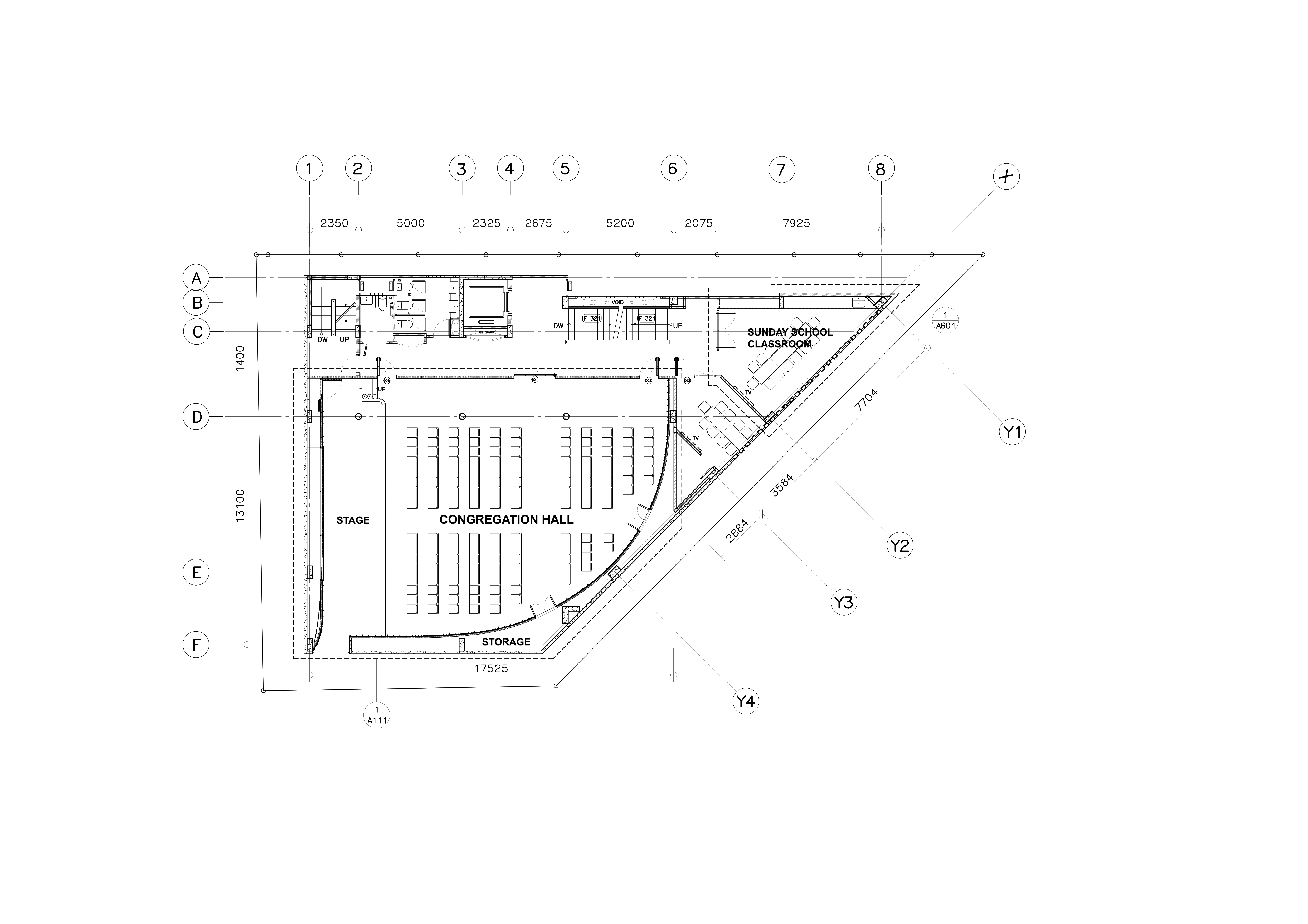
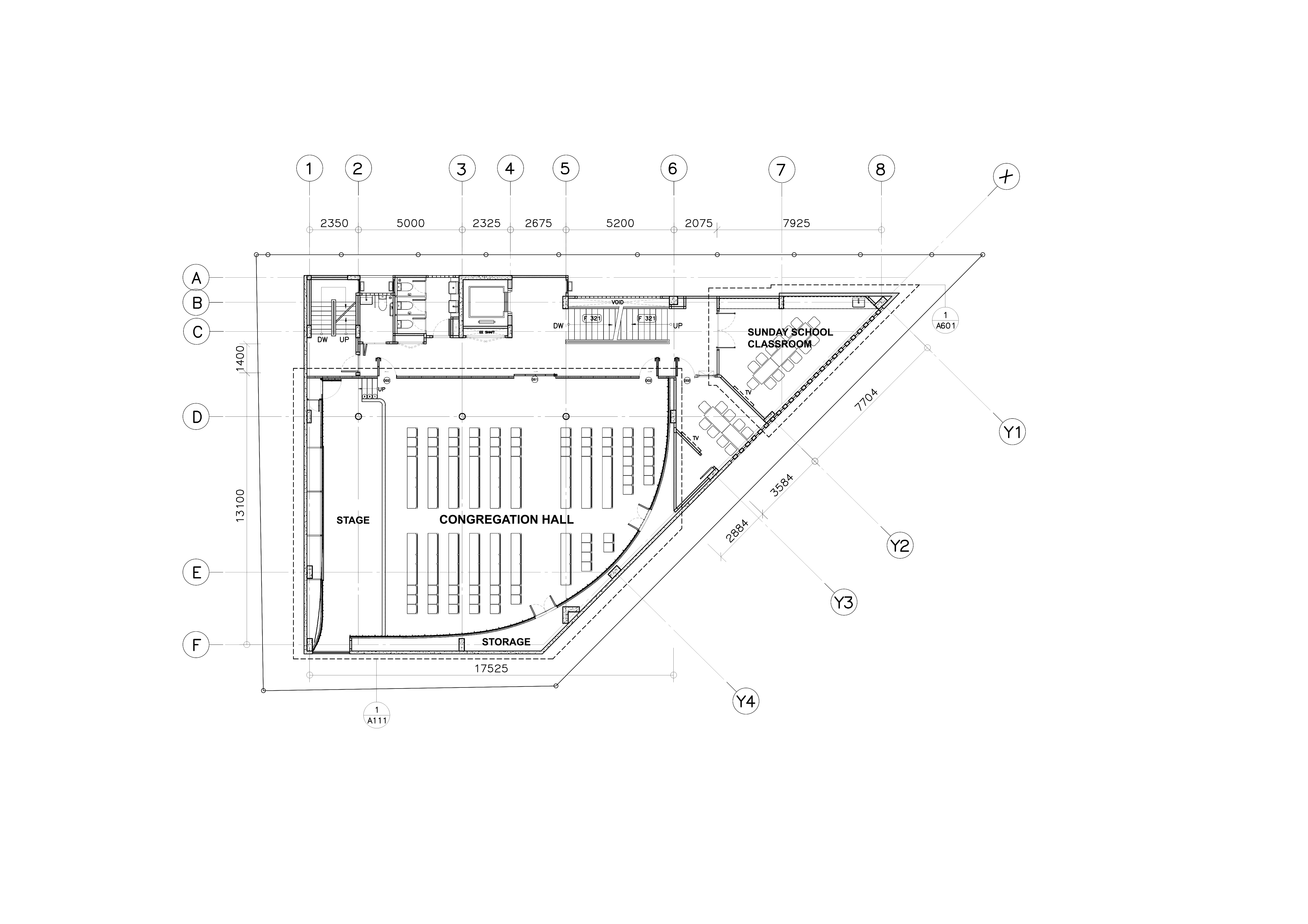
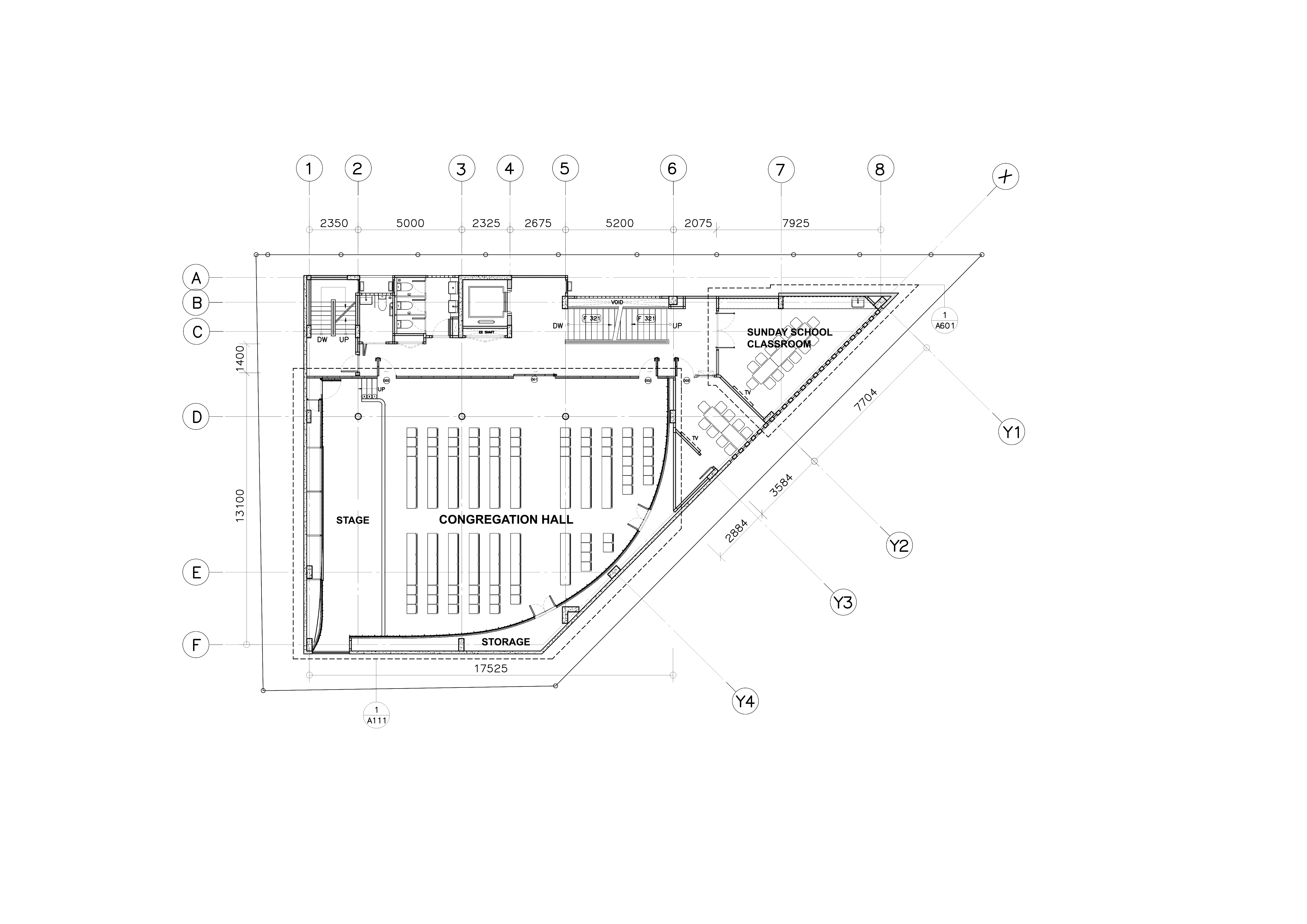
성스러운 포옹: 회중 홀 안의 빛
회중 홀은 예수의 겸손한 탄생을 연상시키는 짚 섬유 벽으로 음향학적 설계가 되어 있다. 홀 안에서는 햇빛이 비치는 주요 개구부가 '포옹의 십자가(Embracing Cross)'를 은은하게 감싸 안는다.
신명기 33장 27절:
"영원하신 하나님이 너의 피난처이시니, 그의 영원한 팔이 네 아래에 있도다." 이 십자가는 수정 프리즘 관으로 제작되어 햇빛에 비쳐 부드러운 빛을 발산한다. 십자가의 안쪽으로 굽은 팔은 하나님의 무조건적인 환영을 상징하며, 밤이 되면 스포트라이트가 십자가를 비춰 주변 벽에 다양한 색의 스펙트럼을 투사한다. 십자가의 오목한 팔은 빛을 모아 극적인 분위기를 조성하고, 위쪽에는 천과 스트립 라이트가 물결을 이루어 예수의 가르침이 신자들의 마음에 확산되는 모습을 형상화한다.























건축가 디파트먼트 오브 아키텍처 (Department of ARCHITECTURE Co.)
위치 태국, 방콕, 수쿰윗 38 로드
용도 종교시설
설계기간 2022 - 2023
준공 2023. 11.
대표건축가 Amata Luphaiboon, Twitee Vajrabhaya Teparkum
구조엔지니어 H. Engineer Co.,Ltd.
조명디자인 F.O.S. Lighting Design Studio
시공 3 Phorn Co.,Ltd.
발주자 Church of Joy Foundation
사진작가 SPACESHIFT STUDIO
'Architecture Project > Religious' 카테고리의 다른 글
| 수직의 명상, 천창과 돌벽으로 완성된 빛의 예배당 / 베르거+파르키넨 (0) | 2025.11.10 |
|---|---|
| 사막의 하늘을 담은 원형의 성소 / 루벤 발데스 프랙티스 (0) | 2025.11.03 |
| 물결 위의 성소, 공동체와 이어진 사원 / 아빈 디자인 스튜디오 (0) | 2025.09.15 |
| 단일 지붕과 석재가 만든 현대 모스크 / 아르힝 인제니어링 몬테네그로 (0) | 2025.09.11 |
| 빛으로 물드는 회벽색 교회, 호이방엔 교회/ 헤닝 라르센 (0) | 2025.08.11 |
마실와이드 | 등록번호 : 서울, 아03630 | 등록일자 : 2015년 03월 11일 | 마실와이드 | 발행ㆍ편집인 : 김명규 | 청소년보호책임자 : 최지희 | 발행소 : 서울시 마포구 월드컵로8길 45-8 1층 | 발행일자 : 매일



