
Højvangen Church
헤닝 라르센이 설계한 호이방엔 교회는 덴마크 교회 건축에 대한 현대적 해석을 보여주는 건축물이다. 교회 폐쇄와 세속화가 가속화되는 시대에, 새로운 교회의 개관은 이례적인 일이다. 이 교회는 종교적 전통을 넘어 현대 사회에서 모임, 성찰, 연결의 공간으로서 교회의 역할을 재정립하고 있다. 스칸데르보리 교구에 500년 만에 건립된 첫 교회이기도 하다.

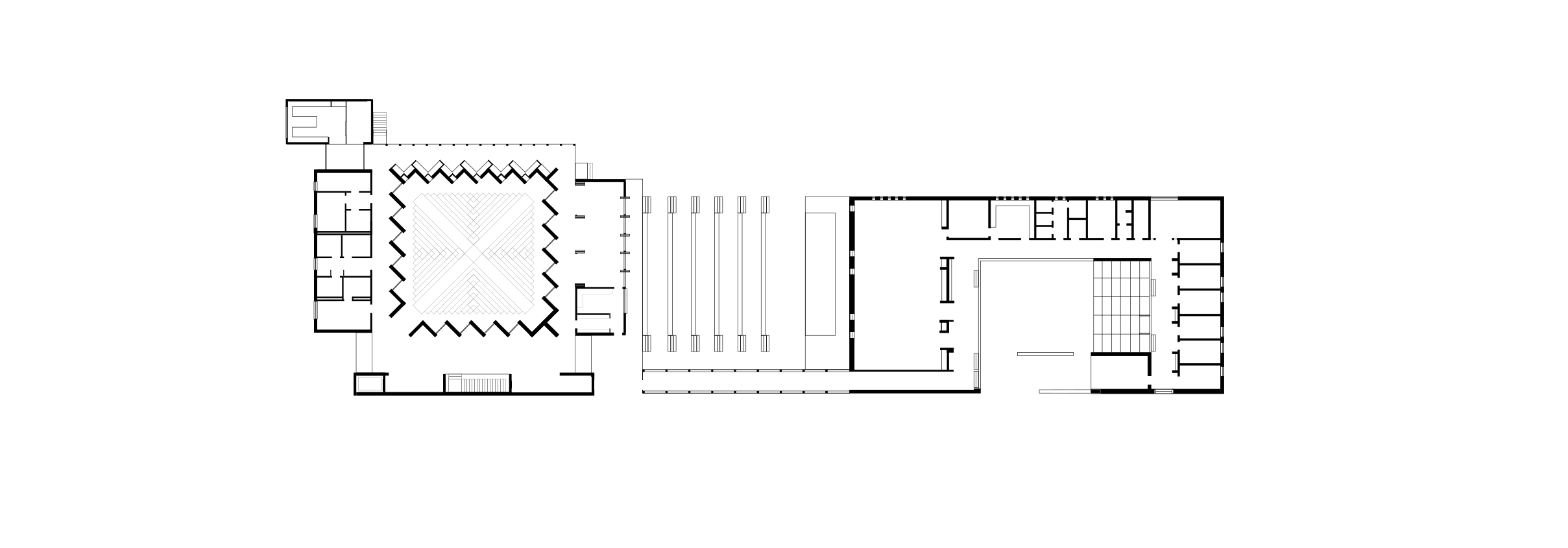
호이방엔 교회는 덴마크 스칸데르보리 외곽에 위치한 연면적 1,500㎡ 규모의 건물이다. 덴마크 건축유산을 존중하면서도 공동체성과 영성에 대한 현대적 관점을 반영하고 있다. 예배, 문화행사, 일상 모임 등 교구 생활 전반을 수용할 수 있도록 설계되었으며, 지역 공동체의 유대감을 강화하고 모두를 위한 포용적인 환경을 제공하는 다목적 공간이다. 단순하면서도 독창적인 건축과 자연광이 가득한 내부, 그리고 전통과 현대성을 아우르는 세심한 디테일이 특징이다.

이 교회는 덴마크 전역에 산재한 소박한 백색 회벽 교회에서 영감을 받았다. 그러나 공간 구성은 개방성과 포용성을 강화하는 방향으로 재구성되었다. 전략적으로 배치된 개구부를 통해 들어오는 자연광은 하루와 계절에 따라 변화하는 고요한 분위기를 조성한다. 내부에는 본당 외에도 유연하게 활용 가능한 커뮤니티 공간, 사무실, 지원 시설이 마련되어 있다. 세례식, 결혼식, 콘서트, 주민회의 등 다양한 활동을 개최할 수 있으며, 실내외 공간의 유기적 연계를 통해 연중 사용이 가능하다. 이를 통해 교회의 지역사회 중심 역할이 강화된다.




호이방엔 교회는 외관에서 차분하고 친근한 인상을 준다. 건물 형태는 전통 덴마크 교회의 규모와 리듬을 반영하는 깔끔한 선과 박공지붕으로 구성되어 있다. 백색 석회 마감 벽은 주변 경관과 조화를 이루는 시대를 초월한 배경이 된다. 멀리서도 보이는 높고 날렵한 종탑이 교회의 위치를 알리며, 조경된 산책로는 방문객을 입구로 안내한다. 토착 식물과 야외 모임 공간이 마련되어 있어 교회가 주변 환경과 자연스럽게 연결되며, 방문객을 환영하는 분위기를 조성한다.



내부에서는 빛과 그림자가 어우러져 목재 천장과 부드러운 석고벽의 질감을 강조한다. 제단 공간은 높은 수직 창을 통해 들어오는 자연광에 물들어, 회중과 하늘을 상징적으로 연결한다. 호이방엔 교회는 구상 단계부터 지속가능성을 중요한 요소로 삼았다. 건물은 에너지 효율적인 설비, 고성능 단열, 내구성 높은 재료를 사용하여 긴 수명을 보장하며, 환경에 미치는 영향을 최소화한다. 유연한 공간 구성은 종교 활동뿐 아니라 다양한 공동체 활동의 변화에도 대응할 수 있도록 설계되었다. 이 교회는 전통과 미래지향적 설계를 결합하여 21세기 덴마크 교회의 변화된 정체성을 반영하고 있다. 성스러운 공간이자 포용적인 지역사회 허브로서, 앞으로도 지속적으로 지역과 함께 호흡하는 건축물로 남을 것이다.


건축가 헤닝 라르센(Henning Larsen)
위치 덴마크
용도 종교시설
건축면적 15,000㎡
설계기간 2021. - 2024.
규모 지상 2층
대표건축가 Mette Kynne Frandsen
조경 Schul Landskab & Planlægning
사진작가 Rasmus Hjortshøj
'Architecture Project > Religious' 카테고리의 다른 글
| 물결 위의 성소, 공동체와 이어진 사원 / 아빈 디자인 스튜디오 (0) | 2025.09.15 |
|---|---|
| 단일 지붕과 석재가 만든 현대 모스크 / 아르힝 인제니어링 몬테네그로 (0) | 2025.09.11 |
| 터널 끝에서 침묵과 경외를 사유하는 예배공간/ 알에이디+에이알 (0) | 2025.05.08 |
| 공간으로 표현하는 일상과 예배 사이, 일죽장로교회 / 오종상 (0) | 2025.04.24 |
| 비례교회 / 에스엠엘 건축사사무소 (0) | 2025.04.08 |
마실와이드 | 등록번호 : 서울, 아03630 | 등록일자 : 2015년 03월 11일 | 마실와이드 | 발행ㆍ편집인 : 김명규 | 청소년보호책임자 : 최지희 | 발행소 : 서울시 마포구 월드컵로8길 45-8 1층 | 발행일자 : 매일



