
이 프로젝트는 기존 건물을 리노베이션한 건축가 자신의 집으로, 여러 제약 속에서 진행된 개인적인 실험이자 고백 같은 작업이다. 건축가 자신이 고객이 된다는 것은 역설적으로 가장 까다로운 과제다. 모든 결정을 스스로 감당해야 하며, 평소 클라이언트와 함께 토론하며 조율하던 위험들을 온전히 자신에게 떠안아야 한다. 이 아파트는 1930년대 후반에 지어진 프라하의 근대 건물로, 건축가 라디슬라프 시멕(Ladislav Šimek)이 설계하고 그의 형제 야로슬라프(Jaroslav)가 시공했다. 타일 외벽과 작은 유닛들로 구성된 전형적인 근대주의 임대주택으로, 솔직하고 정직한 시대의 건축을 보여준다.
“구두 수선공의 아이는 맨발로 다닌다”는 말처럼, 이 집의 리노베이션은 거의 10년에 걸쳐 천천히 완성됐다. 과정 내내 건축가는 ‘기존 건축의 강한 장소성’을 얼마나 유지하면서, 동시에 자신의 정체성과 해석을 얼마나 새겨 넣을 수 있는가라는 질문을 반복했다. 결국 그는 건축가의 의지가 기존 건축의 영혼에 순응하고, 그 위에 자신의 손길을 덧입히는 방향으로 답을 찾았다.
결과적으로 완성된 공간은 알랭 드 보통의 『행복의 건축』 속 한 문장처럼 느껴진다.
“건축에 대한 열정은 우리를 미학적인 수호자로 만든다. 젖은 천을 손에 쥔 채, 작은 얼룩 하나에도 신경 쓰는 박물관 관리인처럼.”
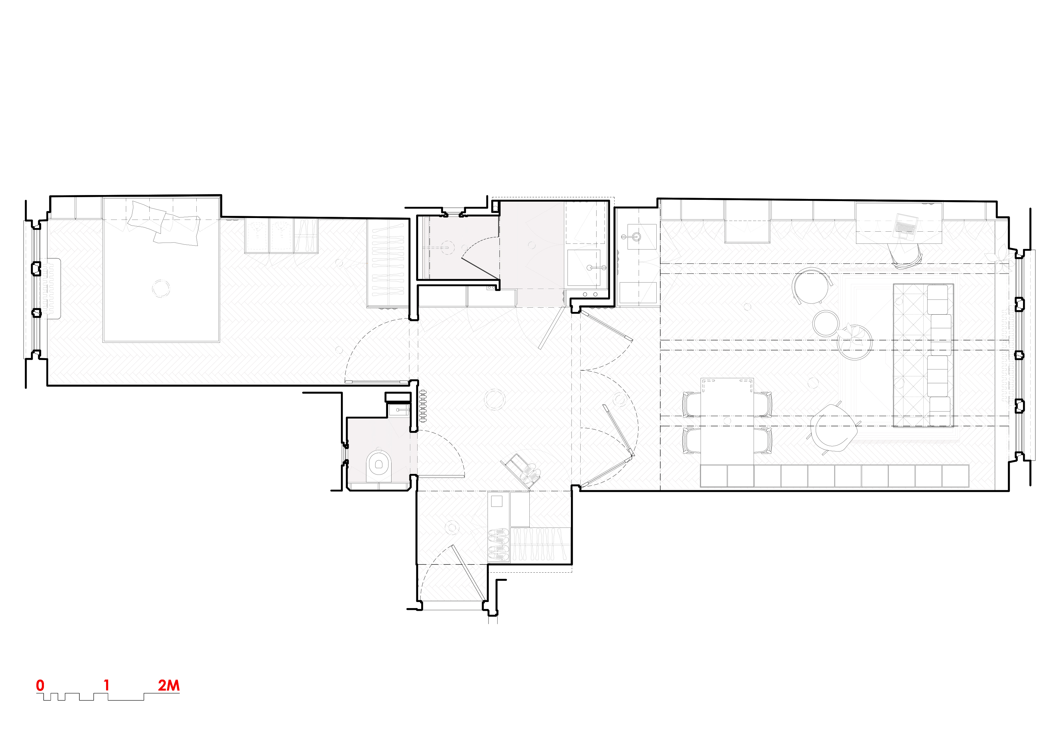
공간은 기술적 설비를 포함해 전면적인 리모델링을 거쳤다. 거실의 철근콘크리트 천장은 마감재를 제거해 노출시켰고, 원래의 창문과 문, 손잡이는 모두 보수해 다시 살렸다. 오크 마루는 원본과 동일한 패턴으로 새로 시공했다. 기존 팬트리와 욕실을 철거하고, 수납장·욕실·주방 일부를 통합한 새로운 목재 박스형 구조물을 삽입했다. 스테인 오크 베니어와 화이트 래커를 사용해 1930년대 근대주의 감성과 현대적 미니멀리즘이 조화를 이루도록 했다.
가구와 조명은 가족의 역사와 연결된다. 증조부모의 집에서 가져온 토넷(Thonet) 의자 세트, 1930년대에 제작된 애니즈(Anýž) 조명과 튜브 체어, 체코 조각가 야로슬라프 호레츠(Jaroslav Horejc)의 작품 등이 있다. 이 유산적 오브제들은 스튜디오 넨도(Nendo)의 ‘Fusion’ 소파와 같은 현대 가구들과 함께 배치되어 시대를 넘나드는 조화를 이룬다. 현관의 분홍색 돼지 모양 스툴은 친구들이 선물한 것으로, “건축가도 때로는 자신을 너무 심각하게 대하지 말라”는 위트 있는 메시지를 담고 있다.































건축가 마르틴 체넥 아키텍처 (martin cenek architecture)
위치 체코, 프라하
용도 공동주택
프로젝트 면적 49㎡
설계기간 2013 - 2020
준공 2023
대표건축가 martin cenek
사진작가 Alex Shoots Buildings
'Interior Project > Residential' 카테고리의 다른 글
| 노출 콘크리트, 기술, 그리고 맞춤의 미학 / 오오오오엑스 (0) | 2025.11.05 |
|---|---|
| 수평선 위의 집, 바람을 닮은 공간 / 이바 하이코바 스튜디오 (0) | 2025.11.03 |
| 흔적을 남기고 덧입히는 건축 / 내러티브 아키텍츠 (0) | 2025.10.24 |
| 중정과 격자의 집 / 쑨위앤량 (0) | 2025.10.24 |
| 시간을 거슬러 되살린 도우루 언덕의 집 / 코레이아라가치 아키텍투로스 (0) | 2025.10.16 |
마실와이드 | 등록번호 : 서울, 아03630 | 등록일자 : 2015년 03월 11일 | 마실와이드 | 발행ㆍ편집인 : 김명규 | 청소년보호책임자 : 최지희 | 발행소 : 서울시 마포구 월드컵로8길 45-8 1층 | 발행일자 : 매일



