
이 프로젝트는 클라이언트의 빠른 의사결정과 개발사의 유연한 협조 덕분에 가능했던, 매우 비정형적이고 실험적인 주거 공간이다.
세 층을 관통하는 노출 콘크리트 구조물이 공간 전체의 중심 요소로 설계되었으며, 시공 단계 내내 클라이언트와 협의한 끝에 이 거친 질감의 콘크리트를 그대로 드러내기로 했다. 결과적으로, 이 구조는 단순한 마감재를 넘어 인테리어의 구조적 아이콘으로 기능한다.
기술과 구조의 조화
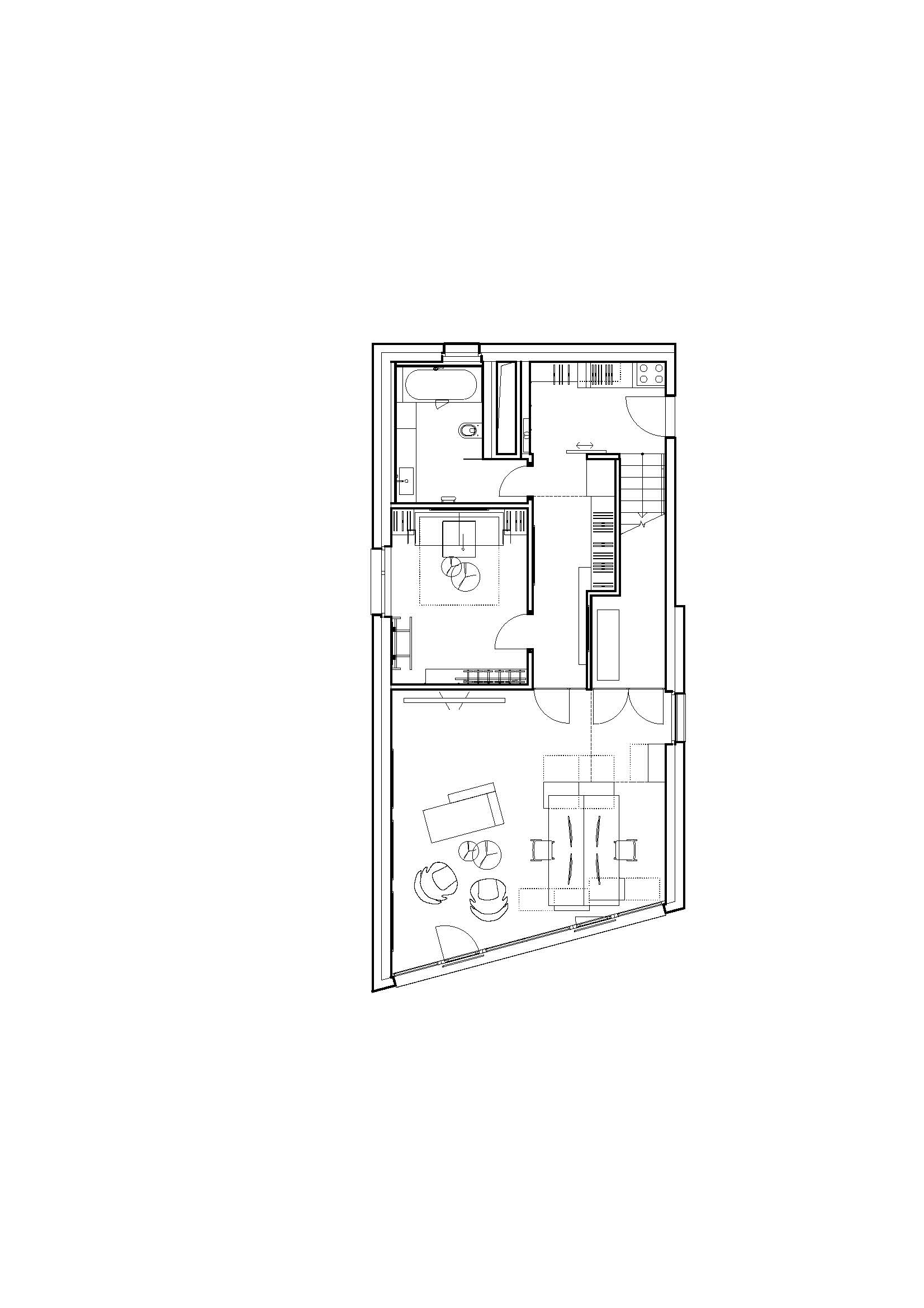
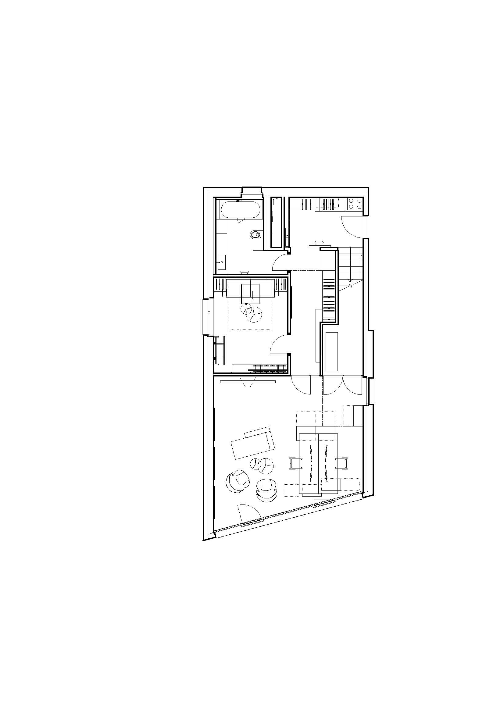
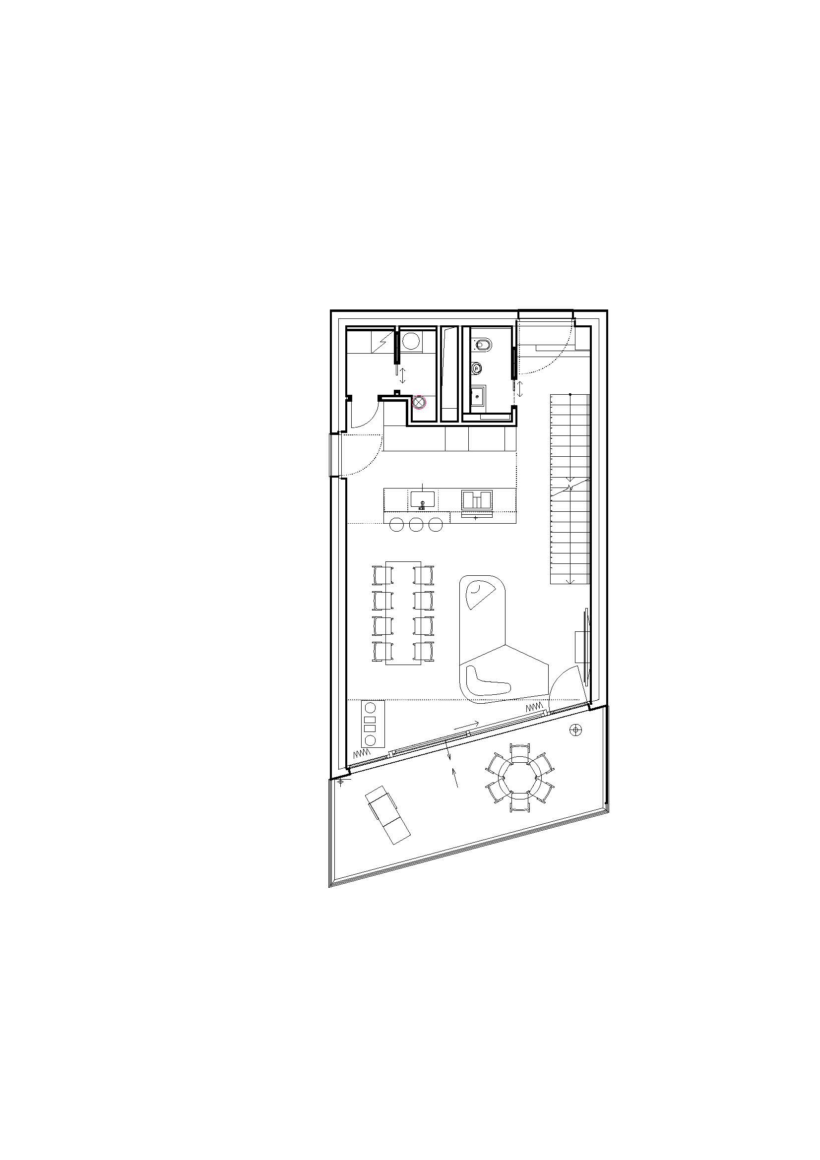
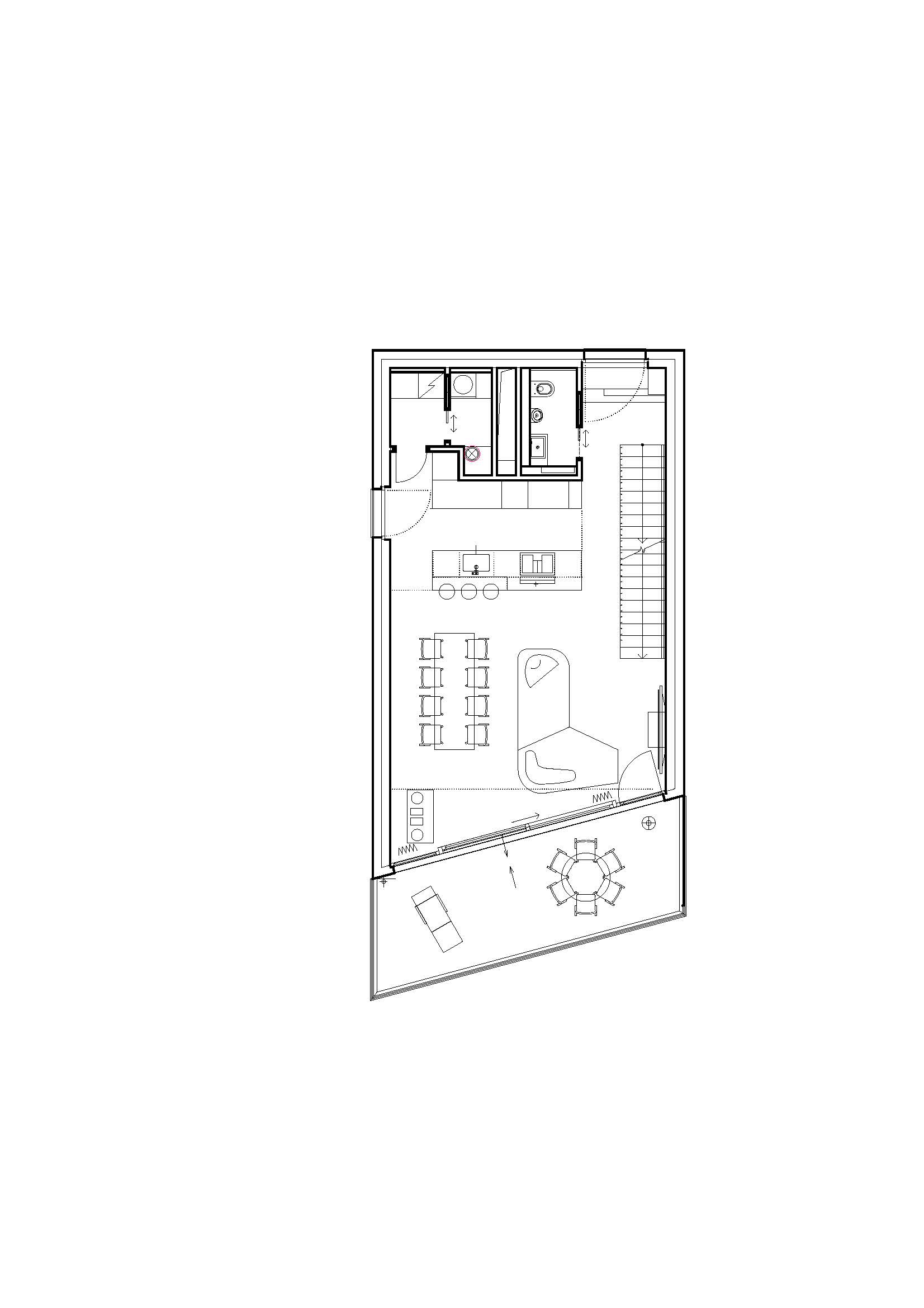
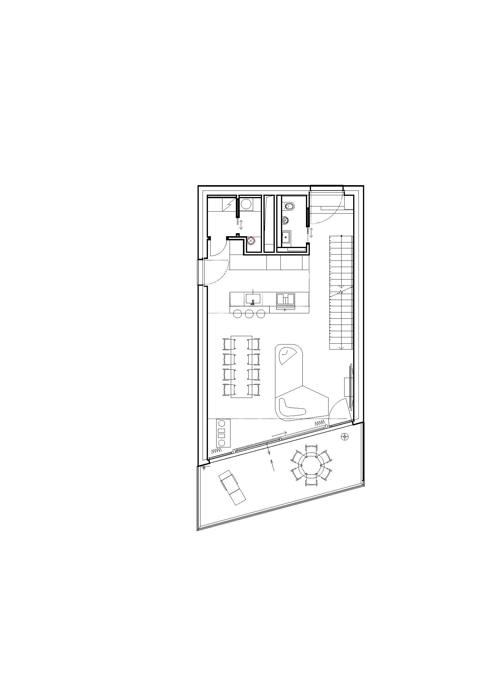
많은 구조체가 드러나 있음에도 불구하고, 환기 덕트는 하부층의 천장 속으로 배치하여 시각적 복잡함을 최소화했다. 덕트는 가구 하부로 통과하며 자연스럽게 배기된다. 또한 세 층을 수직으로 연결하는 세탁 슈트(laundry chute)가 설치되어 일상적 편리함을 높였다. 이 시스템은 설계 초기 단계에서만 구현 가능한 세심한 계획 덕분에 실현되었다. 아파트 전체는 스마트홈 시스템으로 제어되며, 기술적 효율성과 미니멀한 미학이 조화를 이룬다.
부유하는 계단
거실의 시각적 중심은 스틸 로드로 구성된 벽면과 부유하는 계단(suspended staircase)이다. 각 계단은 얇은 스틸 블레이드 위에 목재 마감을 덧입힌 구조로, 세 가지 전문 분야(철골, 목공, 마감)가 긴밀하게 협력해야 설치가 가능했다. 이 결과물은 가볍게 떠 있는 듯한 조형미를 갖춘, 완전히 독창적인 계단이 되었다.
황동 수전과 어두운 욕실
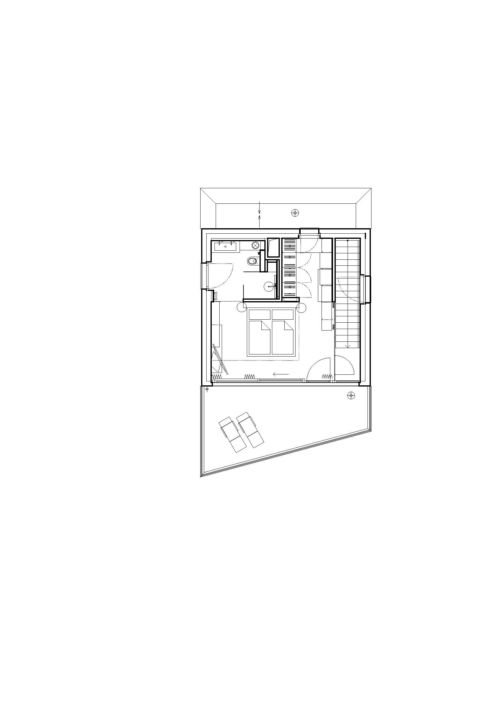
욕실에는 대형 다크톤 타일과 황동 수전(brass faucet)을 조합해 깊이감 있는 질감을 완성했다. 시공 단계에서부터 개발사와 협의해 매입형 수전을 미리 설치함으로써, 별도의 철거 없이 천장 매입형 수전 시스템을 구현할 수 있었다. 그 결과, 욕실은 고급스러우면서도 절제된 분위기를 갖췄다.
블랙 박스의 계층 구조
세 층에는 각각의 용도에 맞는 ‘블랙 박스(Black Box)’ 공간이 존재한다. 1층에는 스톤과 우드 마감이 조화를 이루는 블랙 키친,
2층에는 침대 헤드보드 뒤편에 서가와 수납을 통합한 블랙 베드룸, 3층에는 블랙 톤의 스터디룸이 배치되어, 각 층이 하나의 명확한 테마로 구분된다.
맞춤 제작 가구
소파를 제외한 모든 가구는 맞춤 제작(custom-made)이다. 어두운 원목 가구에는 암모니아 훈증(ammonia fuming) 기법을 사용해, 표면이 긁혀도 밝은 속층이 드러나지 않는 깊은 색감을 구현했다. 가구는 스틸 요소와 조합되어, 거친 질감 속에서도 세련된 긴장감을 형성한다. 침실에는 강철과 유리를 결합한 옷장이 있으며, 모자와 가방 등 개인의 애장품을 전시할 수 있는 쇼케이스형 캐비닛으로 완성되었다.
































건축가 오오오오엑스 (OOoox)
위치 체코, 프라하
건축면적 170㎡
규모 지상 3층
준공 2023
사진작가 Martin Zeman
'Interior Project > Residential' 카테고리의 다른 글
| 공간의 절제, 스키야 양식 리노베이션의 구조적 접근 / 모리요시 나오타케 아틀리에 (0) | 2025.11.06 |
|---|---|
| 세월과 함께 자라난 공간 / 웨이이디자인 (0) | 2025.11.05 |
| 수평선 위의 집, 바람을 닮은 공간 / 이바 하이코바 스튜디오 (0) | 2025.11.03 |
| 건축가의 집, 기억과 근대의 사이 / 마르틴 체넥 아키텍처 (0) | 2025.10.30 |
| 흔적을 남기고 덧입히는 건축 / 내러티브 아키텍츠 (0) | 2025.10.24 |
마실와이드 | 등록번호 : 서울, 아03630 | 등록일자 : 2015년 03월 11일 | 마실와이드 | 발행ㆍ편집인 : 김명규 | 청소년보호책임자 : 최지희 | 발행소 : 서울시 마포구 월드컵로8길 45-8 1층 | 발행일자 : 매일



