
Hotel VMG Villa Kyoto
이 호텔은 교토의 스키야(数寄屋) 양식 건축을 개조한 숙박시설이다. 기존 건물은 1920년에 지어졌으며, 당시 목수는 교토 기온 일대에서 다수의 다실을 지었던 장인이었다. 기록에 따르면 이 집의 주인은 다도를 가르치던 다인(茶人)으로, 당대의 다회 문서에는 이곳이 다회를 열던 장소로 기록되어 있다.
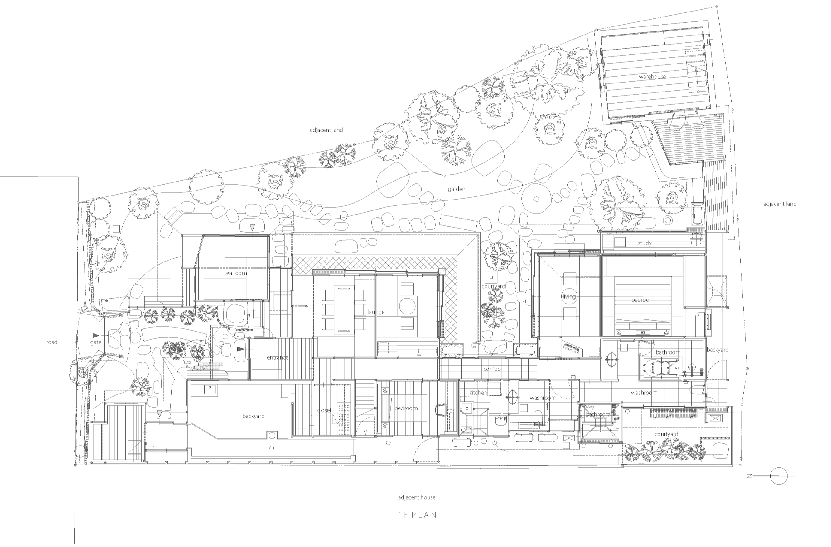
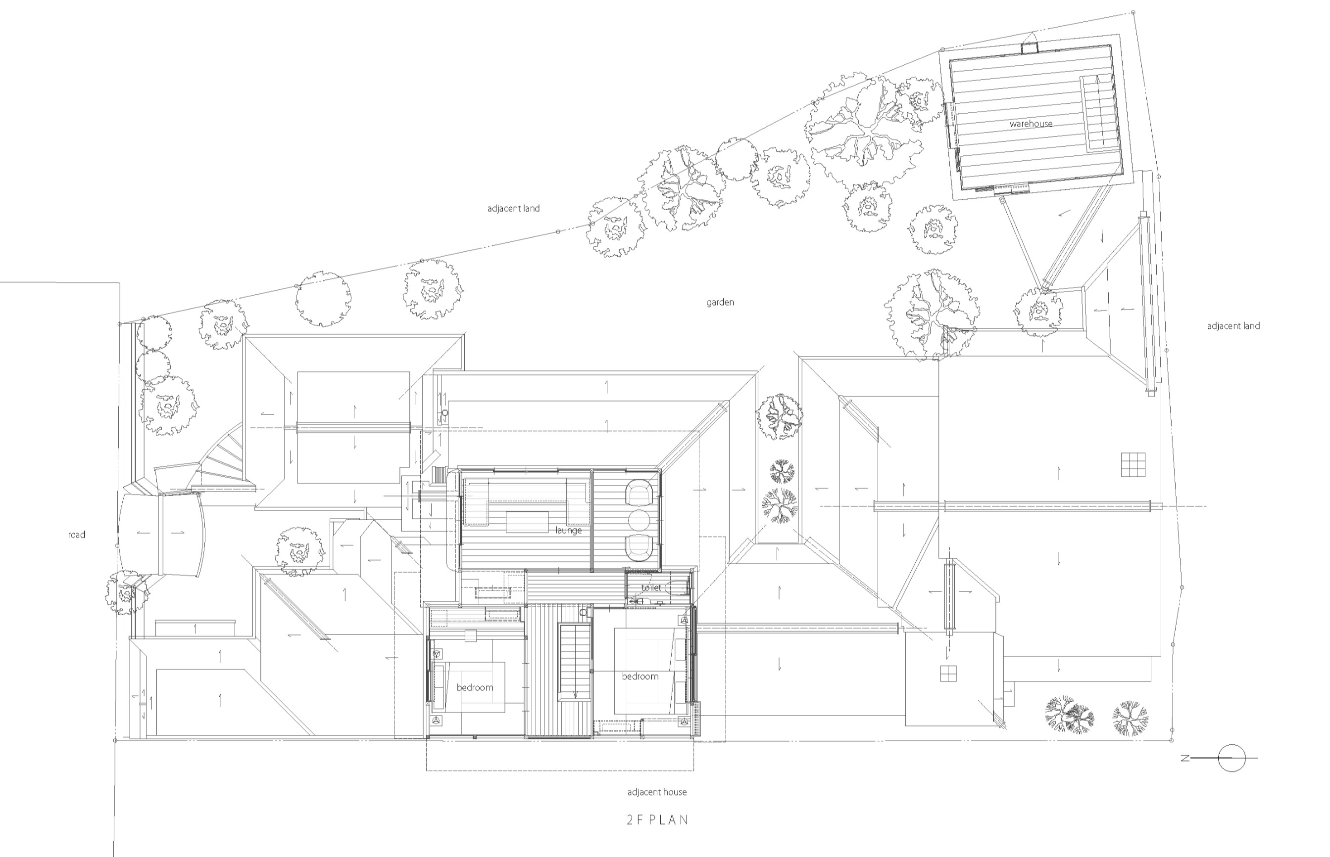
대지는 남북으로 길게 놓여 있으며, 서쪽에는 건물이, 동쪽에는 정원이 배치되어 있다. 각 실에는 정원을 조망할 수 있는 큰 개구부가 있고, 스키야 양식 특유의 불규칙한 평면은 건물과 정원이 하나의 공간적 흐름으로 이어지도록 만든다.
이 건축물은 가능한 한 원형을 보존해야 했지만, 동시에 호텔로서의 기능적 설비를 갖추는 것이 필수적이었다. 일반적으로 조명, 공조, 소방 설비를 위해 천장을 교체하는 경우가 많지만, 스키야 건축의 천장은 그 자체로 정교한 디자인 요소이기 때문에 변경 시 건축적 가치가 훼손될 우려가 있었다.
이에 따라 천장을 손대지 않고 기존 조명을 교체하며 최소한의 다운라이트만 추가했다. 필요한 조도는 바닥 가구나 개구부 상부에 간접 조명을 설치하는 방식으로 확보했다. 공조 설비는 천장 대신 바닥형 및 벽부형 에어컨을 사용했고, 환기 팬 역시 가구 속에 내장해 공간의 조화를 유지했다.
기존을 단순히 ‘보존’하는 데서 나아가, 그 아름다움을 더욱 돋보이게 하는 시도도 이루어졌다. 예를 들어, 창문에 필요한 블라인드 박스 위쪽에 간접조명을 설치해 기존 천장을 은은히 비추었다. 대부분의 바닥이 다다미로 마감되어 있었기 때문에, 일반적으로 천장을 통과하는 전선을 바닥 아래로 이동시켰고, 스위치와 온도 조절 장치는 가구처럼 보이는 기둥에 배치해 흙벽의 원형을 지켰다.
새로 추가된 가구는 재질과 색이 기존과 다른 오크로 제작되었다. 이는 새로운 가구가 덧붙여졌음을 명확히 드러내면서도, 오래된 것과 새로운 것의 관계를 시각적으로 표현하고 청결감 있는 인상을 주기 위한 선택이었다.
욕실과 세면실 역시 같은 개념으로 설계되었다. 오크 가구, 편백나무 벽과 천장, 강화유리 개구부로 마감되었으며, 메인 욕조에서는 서쪽의 작은 중정을 바라볼 수 있다. 구조적으로는 주요 실의 흙벽을 최대한 보존하면서도 댐퍼 금속 피팅과 내진 흙벽 패널을 추가해 부드럽게 보강했다.
이 프로젝트는 처음부터 끝까지 기존 건축에 대한 존중을 바탕으로 진행되었다. 세부적인 색감과 질감은 공사 단계에서 하나하나 확인하며 결정되었고, 기존 요소를 그대로 살리거나 조심스럽게 더함으로써 스키야 건축의 공간 구성과 디자인을 유지하면서도 현대적 쾌적함을 갖춘 새로운 숙소로 거듭났다.






건축가 모리요시 나오타케 아틀리에 (Moriyoshi Naotake Atelier)
위치 일본
용도 숙박시설
사진작가 Satoshi Shigeta
'Interior Project > Residential' 카테고리의 다른 글
| 시간을 잇는 구조, 철과 목재로 재구성된 역사적 주거 / 씨엘에이비 아르키테투라 (0) | 2025.11.07 |
|---|---|
| 시간의 단면, 역사와 일상이 교차하는 주택 리모델링 / 카비넷 와이에프와이 (0) | 2025.11.06 |
| 세월과 함께 자라난 공간 / 웨이이디자인 (0) | 2025.11.05 |
| 노출 콘크리트, 기술, 그리고 맞춤의 미학 / 오오오오엑스 (0) | 2025.11.05 |
| 수평선 위의 집, 바람을 닮은 공간 / 이바 하이코바 스튜디오 (0) | 2025.11.03 |
마실와이드 | 등록번호 : 서울, 아03630 | 등록일자 : 2015년 03월 11일 | 마실와이드 | 발행ㆍ편집인 : 김명규 | 청소년보호책임자 : 최지희 | 발행소 : 서울시 마포구 월드컵로8길 45-8 1층 | 발행일자 : 매일



