
QI Yuan Work-Live Space
“굽이진 골목을 따라 걷다 보면, 흰 벽과 회색 기와 사이로 바퀴가 돌며 자갈길을 구르는 소리가 들린다. 그 끝에 치위안(Qi Yuan)이 서 있다.” — 쑨위앤량(Sun Yuanliang)
2023년 12월, 디자이너 쑨위앤량은 자신의 스튜디오를 한 작은 안뜰로 이전했고, 동시에 그곳을 휴가용 주택으로 사용하기 시작했다.
명나라 시대의 의학서 『본초강목(本草綱目)』에서 ‘䒻’(Qi)은 약재를 의미하는 글자다. 반면 ‘屺’는 식생이 없는 산을 뜻한다. ‘치위안(䒻園, Qi Yuan)’이라는 이름은 도시 속에서 상징적 산림을 이루고자 하는 디자이너의 열망을 담고 있다. 양쯔강 남쪽에 자리한 이 정원은 자연과의 교감, 그리고 현대 중국적 맥락에서의 시적인 삶을 상징한다.
함께 사는 삶
이 주택은 쑤저우 고성(古城) 지역에 위치하며, 쑨위앤량이 2018년 6월 매입했다. 겸재원, 사자림, I.M. 페이가 설계한 쑤저우 박물관 등 대표적인 장난식(江南式) 정원에서 도보 15분 거리이며, 동쪽으로는 핑장루 역사지구를 지나 약 2km 거리에 쑤저우 공원이 있다. 관광객이 붐비는 중심부와 달리, 이곳은 조용한 주거 지역으로 사람들의 대화와 개 짖는 소리, 자전거 벨소리만이 은은히 들린다.
이 부지의 가장 인상적인 점은 2층 창에서 보이는 풍경이다. 이곳에서는 쑤저우 서쪽의 잘 보존된 고건물 지붕이 한눈에 들어온다. 주택이 높은 지점에 있어 도시의 과거와 현재가 고요히 겹쳐지며, 시간이 교차하는 듯한 인상을 준다.
쑤저우의 고도심은 수많은 골목과 골목이 연결된 생활 공동체로, 여름이면 사람들이 모여 대화를 나누고 쉬는 열린 공공 공간이 된다. 노인들은 일상의 대화를 나누거나 옛이야기를 들려주고, 이웃끼리 서로 도움을 주고받는다. 아침에 골목을 따라 걸으면 빛과 그림자가 교차하며 변화하는 풍경을 만든다. 이곳에서의 삶은 ‘서로를 보고, 또 보이는’ 경험으로, 일상의 공동체적 관계를 통해 자신과 타인, 그리고 디자인을 새롭게 이해하게 만든다.
정원 속의 집
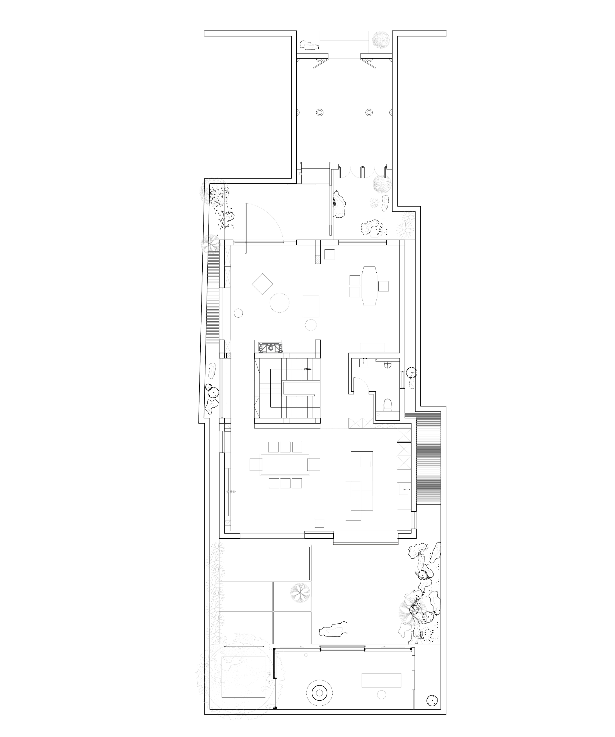
입구에서 바라보면 작은 안뜰은 전형적인 장난식 정원의 축소판처럼 보인다. 월동(月洞) 모양의 문 너머로 식물이 풍성하게 자라며, 모든 창과 문은 마치 풍경을 액자처럼 담아내도록 설계되었다. 최소한의 개입만으로 자연이 공간 안에서 스스로 자라나도록 한 것이 특징이다.
정원 안쪽으로 들어서면 더 큰 숨겨진 마당이 나타난다. 시공 초기에는 흙을 모아 완만한 높낮이를 만들고, 물길을 조성해 연못을 형성했다. 빛이 수면에 반사되며 시간에 따라 변화하는 에너지를 만들어내고, 견고한 소나무 한 그루가 바위 사이에서 벽을 따라 뿌리내렸다.
디자이너 쑨위앤량은 모서리에 있던 전통 정자를 현대적인 강철 구조물로 바꾸었다. 차를 마시며 풍경을 바라보면 소박하면서도 세련된 매력이 느껴진다. 방문객은 식물과 꽃을 가까이에서 감상하고, 연못의 물고기와 교감할 수 있다.
안뜰 옆에는 더 높은 건물이 있어, 그는 시각적 압박을 줄이기 위해 격자 구조물을 설치했다. 이 장치는 빛을 부드럽게 조절하고, 외부 시선을 차단하며, 프라이버시를 확보했다. 동시에 정원의 공간적 층위를 풍부하게 만들며, 대화와 사색이 가능한 아늑한 분위기를 조성했다.
실내와 정원은 유기적으로 이어진다. 내부에서 바라보면 시야가 막히지 않고, 빛과 바람이 자유롭게 흐른다. 재료의 연속성과 점진적인 리듬이 조용하고 따뜻한 분위기를 만들며, 자연스러운 동선을 유도했다.
새로움과 오래됨의 대화
이 공간의 개념은 ‘새로움과 오래됨의 대화’로 정의된다. 이는 건축과 그 안에 사는 사람들 사이의 관계를 연결하려는 시도이기도 하다. 사람과 공간이 서로 교감하며, 관계 속에서 공동체적 감각을 회복하는 것이다.
쑨위앤량은 최소한의 디자인 언어로 건축적 요소와 풍경의 이야기를 공간 안에 담았다. 서로 다른 소파에 앉거나 창가에서 구름과 나무를 바라보며 쉴 수 있는 열린 공간을 만들었다. 이곳의 개방성과 포용성은 몸으로 느껴지는 자연의 감각에서 비롯된다.
단순하고 기능적인 선들은 현대적 생활에 맞춰 구성되었고, 고전 가구 디자인을 통해 품격 있는 생활의 질을 추구했다. 공간에는 과시적 상징이 없으며, 대신 문화적 무게를 내려놓은 가벼움이 있다. 자연 앞에서 개인은 더 큰 세계의 일부로 존재하며, 형태·색채·재료·빛과 그림자는 모두 자연에서 비롯되어 서로 영향을 주고받으며 인간의 감각과 마음속으로 스며든다.






























ⓒ yigao




















건축가 쑨위앤량 (Sun Yuanliang)
위치 중국, 장쑤성, 쑤저우, 구쑤, 핑장제 시화차오샹 21번지
용도 단독주택
대지면적 300㎡
연면적 450㎡
규모 지상 3층
설계기간 2020.1. - 6.
준공 2023.12
대표건축가 Sun Yuanliang
사진작가 Zhong Jifa, Yigao
'Interior Project > Residential' 카테고리의 다른 글
| 건축가의 집, 기억과 근대의 사이 / 마르틴 체넥 아키텍처 (0) | 2025.10.30 |
|---|---|
| 흔적을 남기고 덧입히는 건축 / 내러티브 아키텍츠 (0) | 2025.10.24 |
| 시간을 거슬러 되살린 도우루 언덕의 집 / 코레이아라가치 아키텍투로스 (0) | 2025.10.16 |
| 골목의 깊이를 담은 숙소, 교토 마치야의 재해석 / 스튜디오 알루크 (0) | 2025.10.15 |
| 볕이 깊이 오래 머무르는 집, 하온재 / 디자인 스튜디오 모노 (0) | 2025.07.25 |
마실와이드 | 등록번호 : 서울, 아03630 | 등록일자 : 2015년 03월 11일 | 마실와이드 | 발행ㆍ편집인 : 김명규 | 청소년보호책임자 : 최지희 | 발행소 : 서울시 마포구 월드컵로8길 45-8 1층 | 발행일자 : 매일



