
“공원 속의 건축, 경계를 지우는 건축”
대흥면 문화뜨락 계획의 핵심은 “공원 속의 건축, 경계를 지우는 건축”에 있다. 문화뜨락은 기존 공원의 흐름을 이어가며, 건축과 공원이 유기적으로 연결되는 열린 플랫폼을 지향한다. 따라서 건축은 공원을 가르는 장벽이 아니라 공원을 연결하는 시각적·공간적 통로로 작동하며, 지역 주민과 방문자가 자연스럽게 교류할 수 있는 열린 매개체가 된다.
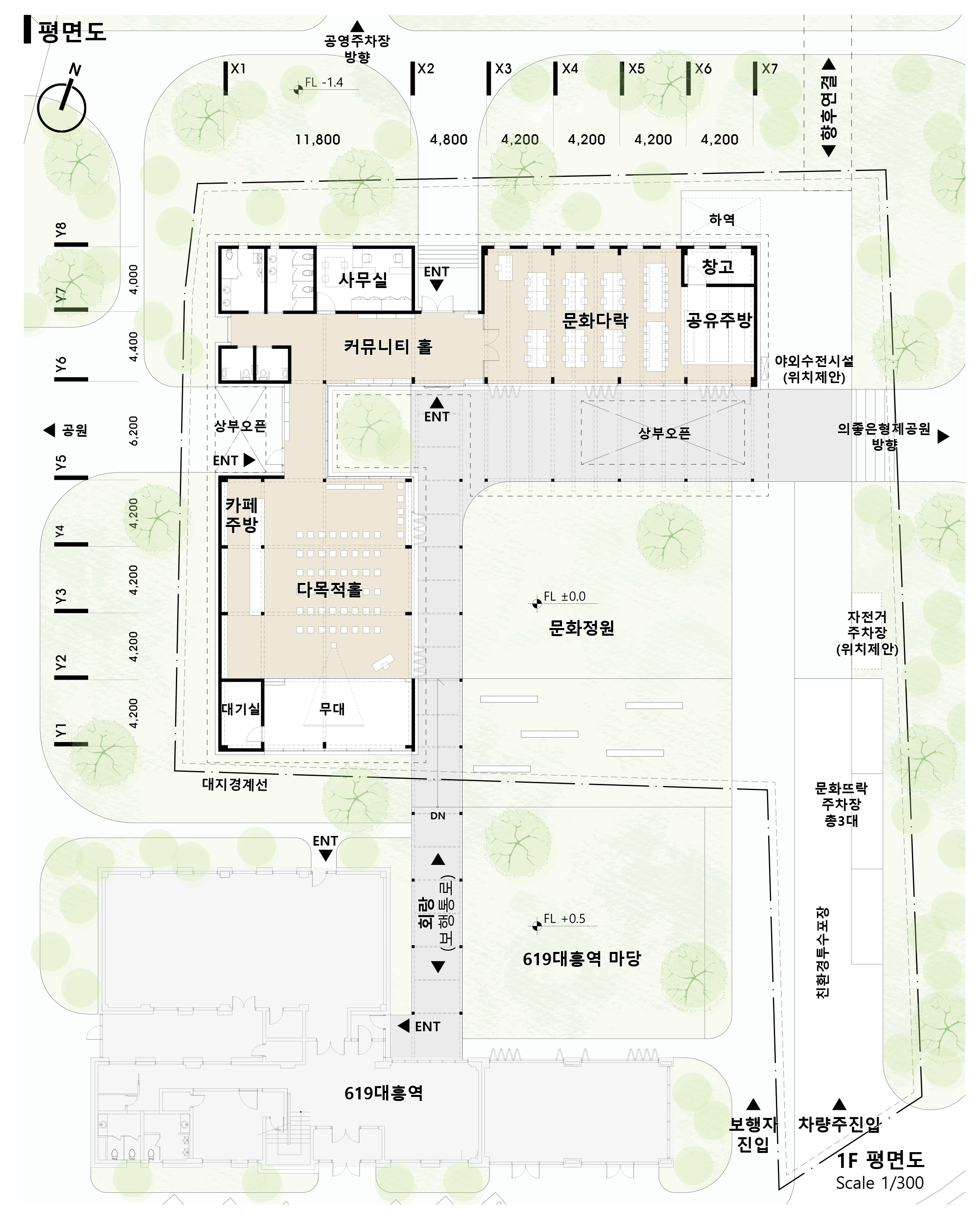
계획 개념은 크게 다섯 가지로 정리된다. 첫째, 동선과 중심축을 설정하여 대흥역과 의좋은 형제공원, 공영주차장, 문화뜨락을 하나의 흐름으로 연결하였다. 이 축은 단순한 이동 통로를 넘어 생활의 동선이자 경험의 경로로 기능하며, 이용자는 단절 없이 이동하고 주민은 일상 속에서 공원과 문화시설을 손쉽게 오갈 수 있다. 둘째, 건축의 중심에 열린 마당을 배치하고 이를 둘러싼 회랑과 깊은 처마를 통해 내부와 외부가 자연스럽게 이어지도록 하였다. 이러한 공간 구성은 문화뜨락 이용자와 공원을 찾는 주민이 머무르며 소통할 수 있는 유기적 장을 형성한다. 셋째, 두 개의 경사지붕을 결합한 건축 형태를 도입하였다. 북측 지붕은 부지의 경사와 조화를 이루고, 남측 지붕은 태양광 패널 설치에 유리한 방향으로 열려 있다. 두 지붕은 서로 기대듯 어울리며 친환경성과 맥락성을 동시에 실현한다. 넷째, 넓은 처마 아래 반외부 공간을 두어 내부와 외부를 매끄럽게 연결하고, 문화정원과 실내 프로그램 사이를 매개하는 완충지대로 활용하였다. 다섯째, 중목구조와 경골목구조를 결합한 합리적 목구조 시스템을 적용하여 구조적 안정성과 경제성을 확보하였다. 주요 부재를 노출시켜 목재의 물성과 구조미를 드러내고, 합리적인 치수와 접합 방식을 통해 시공 효율성과 지속가능성을 강화하였다.
평면 계획은 마당을 중심으로 구성된다. 대흥역 앞마당과 문화뜨락 중심 마당은 연결되어 누구나 자유롭게 이용할 수 있는 문화정원으로 조성되며, 이는 지역 공동체를 품는 중심 무대이자 일상과 문화가 교차하는 장치로 작동한다. 마당은 깊은 처마와 반외부 공간을 통해 내부와 유기적으로 이어져, 계절과 날씨에 구애받지 않고 교류와 머무름이 가능하다. 다목적홀은 오픈형 카페 주방과 유리 무대를 설치해 일상적으로는 카페와 강연장으로, 축제 시에는 공연장으로 활용할 수 있도록 계획되었으며, 폴딩도어를 통해 문화정원과 적극적으로 연결된다. 문화다락은 주민 회의, 강연, 소규모 동호회 모임 등 다양한 활동을 수용할 수 있는 유연한 공간으로 마련되었고, 공유주방과 연계되어 가변적으로 활용된다. 공유주방은 야외수전과 직접 연결되어 모임이나 쿠킹클래스가 마당과 문화정원까지 확장될 수 있으며, 하역 차량 동선을 고려해 지역 농산물 반입도 원활하게 이루어지도록 했다.






건축사사무소 이색
당선작_건축사사무소 이색
대표건축가 박찬규
대지면적 1,927㎡
연면적 547.12㎡
건축면적 618.33㎡
건폐율 32.10%
용적률 28.40%
층수 지상 1층
구조 중목구조,경골목구조,철근콘크리트구조
대표건축가 박찬규
디자인팀 임정주, 박예원
주차대수 3대
발주처 예산군
'Plans' 카테고리의 다른 글
| 호남선 신태인역 시설개선사업 설계공모_ 당선작 / 그레도건축사사무소 (0) | 2025.09.22 |
|---|---|
| 충청남도 동물위생시험소 부여지소 신축사업 설계공모_ 4등작 / 그레도건축사사무소 (0) | 2025.09.19 |
| 백제고도 내 공공한옥(백제관) 건립사업 설계공모_ 2등작 / 건축사사무소 강희재+(주)건축사사무소 서강종합 (0) | 2025.09.18 |
| 합천군 청년공공임대주택 건립사업 설계용역_ 4등작 / (주)건축사사무소엔아이피 (0) | 2025.09.18 |
| 대창면 행정복지센터 건립 기본 및 실시설계 일반공모_ 5등작 / 디엘에스건축사사무소 (0) | 2025.09.18 |
마실와이드 | 등록번호 : 서울, 아03630 | 등록일자 : 2015년 03월 11일 | 마실와이드 | 발행ㆍ편집인 : 김명규 | 청소년보호책임자 : 최지희 | 발행소 : 서울시 마포구 월드컵로8길 45-8 1층 | 발행일자 : 매일



