
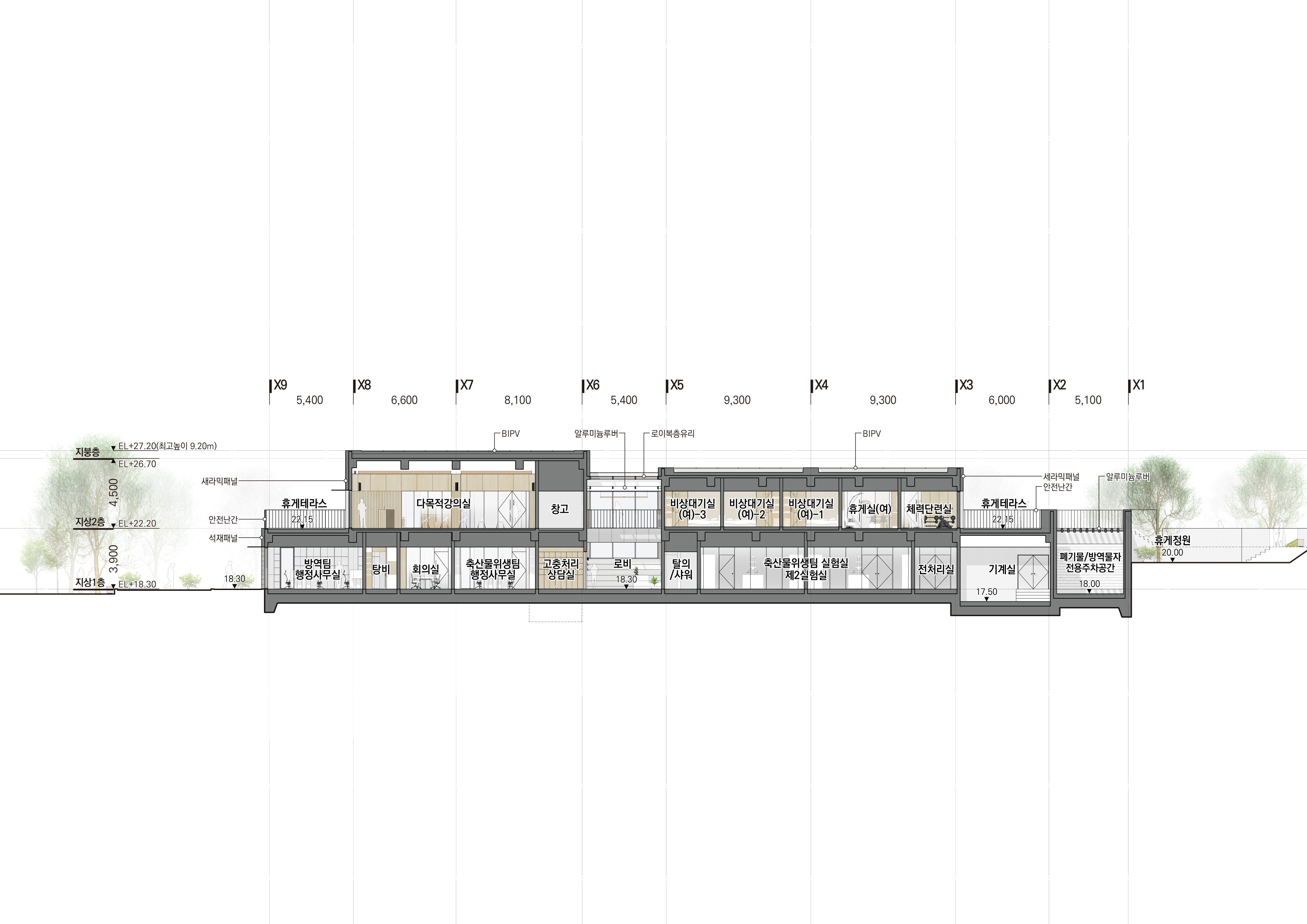
충청남도 동물위생시험소는 남측의 금성산을 배경으로, 지형 조건을 고려한 합리적인 배치와 주변 시설과의 조화를 통해 친근한 시험소로 거듭나고자 합니다. 도심으로부터의 접근성과 인지성을 고려하여 방향성을 설정하고, 도심에서 연장된 축(Core)을 중심으로 핵심 실험영역과 일반 영역을 명확히 구분함으로써, 위생 안전성과 기능 효율성을 동시에 확보하였습니다. 또한 직원과 민원인, 염과 비오염 공간의 물리적 분리는 시험소의 기능을 극대화하며, 안전한 휴식과 소통의 공간을 마련함으로써 단순한 시험 시설을 넘어, “삶의 위생과 안전을 책임지는 치유와 실험의 장소”가 될 것입니다.


















그레도건축사사무소
4등작_그레도건축사사무소(https://www.gredoarchi.com/)
대표건축가 정한진
대지면적 4,309.00㎡
연면적 1,259.68㎡
건축면적 793.05㎡
건폐율 18.40%
용적률 29.23%
최고높이 9.20m
층수 지상 2층
구조 철근콘크리트구조
대표건축가 정한진
디자인팀 이가은(인턴)
조경면적 927.60㎡ (21.53%)
주차대수 32대
발주처 충청남도 동물위생시험소
'Plans' 카테고리의 다른 글
| 호매실 체육센터 건립공사_ 당선작 / MDA건축사사무소 (0) | 2025.09.22 |
|---|---|
| 호남선 신태인역 시설개선사업 설계공모_ 당선작 / 그레도건축사사무소 (0) | 2025.09.22 |
| 예산군 대흥면 기초생활거점조성사업 의좋은 문화뜨락 설계공모(제안공모)_ 당선작 / 건축사사무소 이색 (0) | 2025.09.19 |
| 백제고도 내 공공한옥(백제관) 건립사업 설계공모_ 2등작 / 건축사사무소 강희재+(주)건축사사무소 서강종합 (0) | 2025.09.18 |
| 합천군 청년공공임대주택 건립사업 설계용역_ 4등작 / (주)건축사사무소엔아이피 (0) | 2025.09.18 |
마실와이드 | 등록번호 : 서울, 아03630 | 등록일자 : 2015년 03월 11일 | 마실와이드 | 발행ㆍ편집인 : 김명규 | 청소년보호책임자 : 최지희 | 발행소 : 서울시 마포구 월드컵로8길 45-8 1층 | 발행일자 : 매일



