
백제관, 백제 고을의 문을 열다
부여의 시간과 풍경, 그리고 사비백제의 정신을 오늘의 고을에 되살리는 공간. 궁남지와 군수리유적 사이, 역사의 결을 따라 놓인 이 터는 과거의 위계와 질서를 모방하지 않고, 그 정신과 흐름을 현대적으로 다시 짓는 시도이다. 이곳은 단순한 체험의 장을 넘어, 백제 고을의 문을 여는 상징적 공간이며, 방문자는 이곳을 걸으며 과거의 기억, 자연의 결, 사람의 움직임이 서로 겹치고 스며드는 시간의 풍경 속을 거닐게 된다.
시간 위에 쌓인 풍경
백제관은 과거를 단순히 재현하는 공간이 아니라, 시간의 결을 더해 풍경 속에 스며들며 백제 고을의 새로운 경관을 여는 무대이다. 방문자는 이곳에서 걷고 머무는 경험을 통해, 사비백제의 정신을 오늘의 부여 안에서 다시 살아보게 된다. 그 출발점은 ‘마당’이다. 한옥 공간구조의 본질은 언제나 마당을 향해 열리고, 서로를 품는 관계 속에서 드러난다. 마당은 시선과 동선, 빛과 바람이 모이는 중심이자 서로 다른 공간을 부드럽게 이어주는 매개체이다. 이러한 질서를 현대적으로 풀어내어, 머무름과 교류가 자연스럽게 일어나는 열린 풍경으로 이어지게 했다. 또한 부여라는 도시는 지층처럼 쌓인 역사와 기억의 단층 위에 놓여 있다. 설계는 과거의 형식을 단순히 답습하기보다, 그 축적된 시간의 결을 오늘의 언어로 다시 새겨 넣는다. 새로운 시간이 덧입혀지는 과정 속에서, 건축은 과거와 현재, 미래가 공존하는 풍경을 만든다. 마지막으로, 백제관은 ‘백제 고을의 풍경’을 지향한다. 부여의 자연 환경과 도시 맥락, 그리고 문화유산과 조응하는 건축은 크지 않은 몸짓으로 땅에 스며들고, 지형의 흐름과 경관 속에서 드러나고 숨는다. 도시의 결, 자연의 숨결, 사람의 움직임이 겹쳐지며 만들어지는 이 풍경은, 백제가 가졌던 자연친화적 공간관을 오늘에 다시 펼쳐내는 시도이기도 하다.
지형 위에 그린 백제의 질서
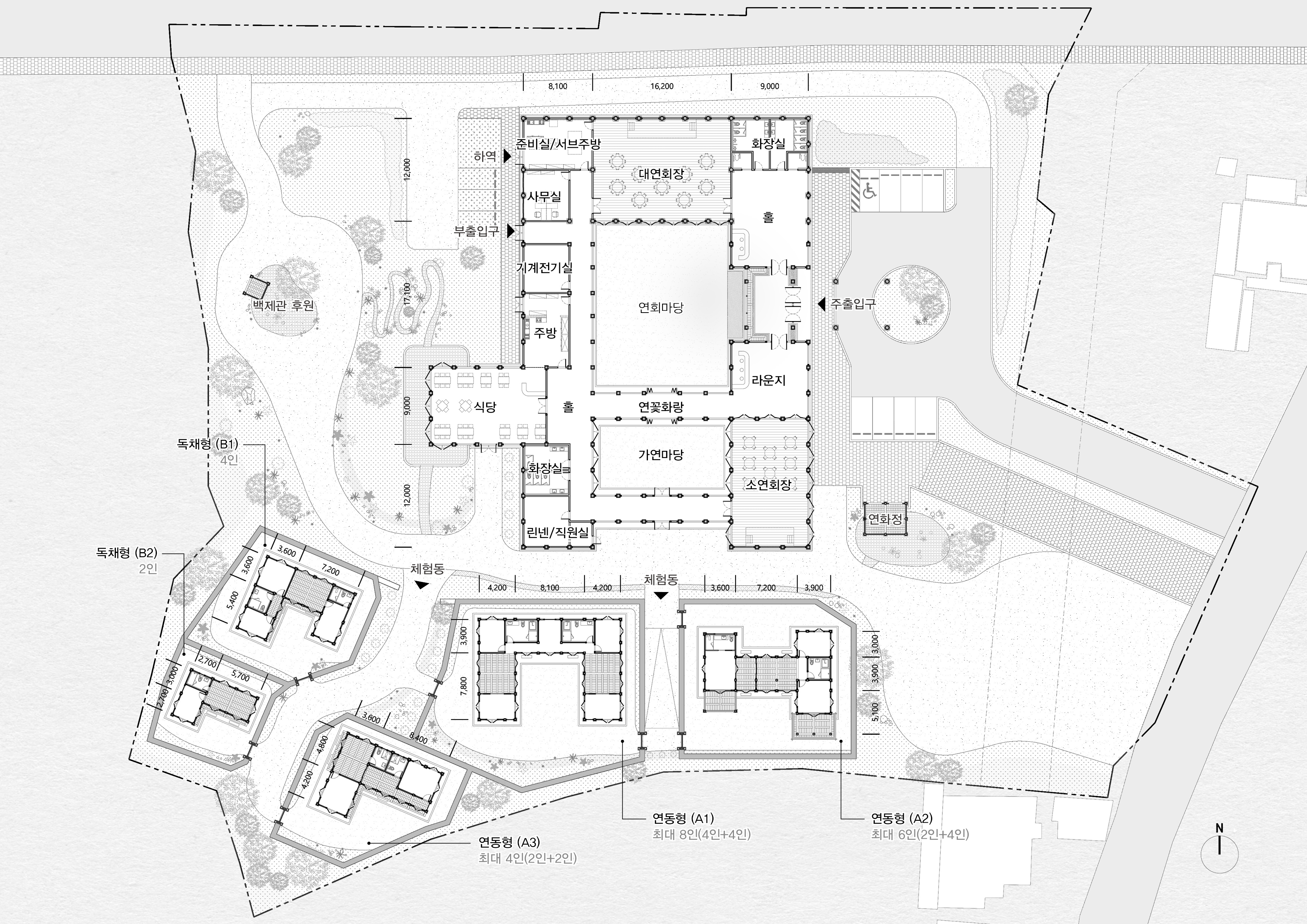
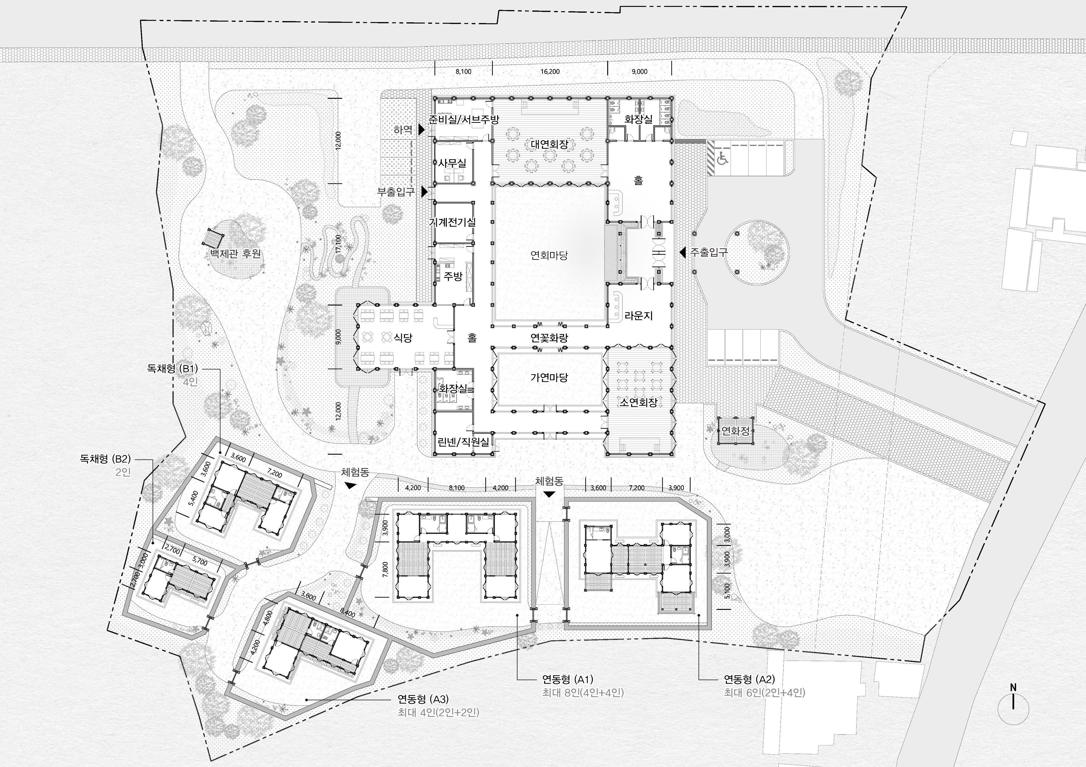
백제관은 부여의 지형과 역사 도시의 축을 읽어내어 자연축과 문화축 위에 배치했다. 연회동과 체험동은 각기 다른 성격을 가지면서도 마당과 회랑, 안길로 연결되어 하나의 질서를 이루도록 계획했다. 연회동은 대경간 한옥 구조와 9량가를 적용해 중심성과 개방감을 강조했고, 체험동은 단체형과 프라이빗 독채형을 아우르는 구성을 통해 다양한 체험을 가능하게 했다.
외부 공간과 경관의 층위
외부공간은 추후 만들어질 백제정원과 궁남지에 대응해 후원과 진입마당을 두었고, 각 동에는 특화된 마당을 배치해 영역성과 위요감을 형성했다. 식재는 백제 유적지의 초목 흔적을 반영했고, 수경 요소와 전통 조경 디테일을 현대적으로 재해석해 장소성을 강화했다. 입면은 기와·초가·목재·석재의 조합으로 전통의 미감을 계승하면서도 현대적 공공시설로서의 조화를 이루도록 했다.
전통 구조 기술의 현대적 재해석
구조적으로는 연회동에 글루램과 철물을 병행한 중목구조를 적용해 대경간 공간을 확보했고, 체험동에는 전통 결구법을 반영해 소규모 한옥의 역사성과 공간적 밀도를 유지했다. 이처럼 백제관은 단순한 과거의 재현이 아니라, 시간의 결을 더하고 풍경에 스며드는 방식으로 새로운 백제 고을의 경관을 열어가는 공간으로 구상했다.











건축사사무소 강희재+(주)건축사사무소 서강종합
2등작_건축사사무소 강희재(https://www.gangheejae.com/) +(주)건축사사무소 서강종합
대표건축가 강성원(건축사사무소 강희재), 유근록(주.건축사사무소 서강종합)
대지면적 9,946㎡
연면적 1,647.91㎡
건축면적 1,707.31㎡
건폐율 17.17%
용적률 16.57%
최고높이 11m
층수 지상 1층
구조 목구조, 철근콘크리트구조
대표건축가 강성원(건축사사무소 강희재), 유근록(주.건축사사무소 서강종합)
디자인팀 김수용, 조혜민, 김태완
주차대수 총11대 (일반 10대, 장애인 1대)
발주처 충남도청
'Plans' 카테고리의 다른 글
| 충청남도 동물위생시험소 부여지소 신축사업 설계공모_ 4등작 / 그레도건축사사무소 (0) | 2025.09.19 |
|---|---|
| 예산군 대흥면 기초생활거점조성사업 의좋은 문화뜨락 설계공모(제안공모)_ 당선작 / 건축사사무소 이색 (0) | 2025.09.19 |
| 합천군 청년공공임대주택 건립사업 설계용역_ 4등작 / (주)건축사사무소엔아이피 (0) | 2025.09.18 |
| 대창면 행정복지센터 건립 기본 및 실시설계 일반공모_ 5등작 / 디엘에스건축사사무소 (0) | 2025.09.18 |
| 칠원 구성지구 도시재생사업(우리동네살리기) 혜휼당(커뮤니티센터) 조성사업 건축 설계공모_ 2등작 / 건축사사무소 오삼일비 (0) | 2025.09.17 |
마실와이드 | 등록번호 : 서울, 아03630 | 등록일자 : 2015년 03월 11일 | 마실와이드 | 발행ㆍ편집인 : 김명규 | 청소년보호책임자 : 최지희 | 발행소 : 서울시 마포구 월드컵로8길 45-8 1층 | 발행일자 : 매일



