
Life in the "Mingle" [라이프 인 더 밍글] 청년들의 일상이 어우러지는 주거공간
청년들의 다양한 주거 취향(취미, 소통, 자기개발 집중형)과 라이프 스타일을 반영한 주거공간 계획 및 사람, 자연, 사회와 Mingle(어울리다) 할 수 있는 커뮤니티 중심공간(도시의 숲, 커뮤니티 데크) 조성으로 경계없이 이웃과 소통하고 성장하길 바라며 합천군의 청년 맞춤형 공공 주거 공간을 제안하고자 합니다.
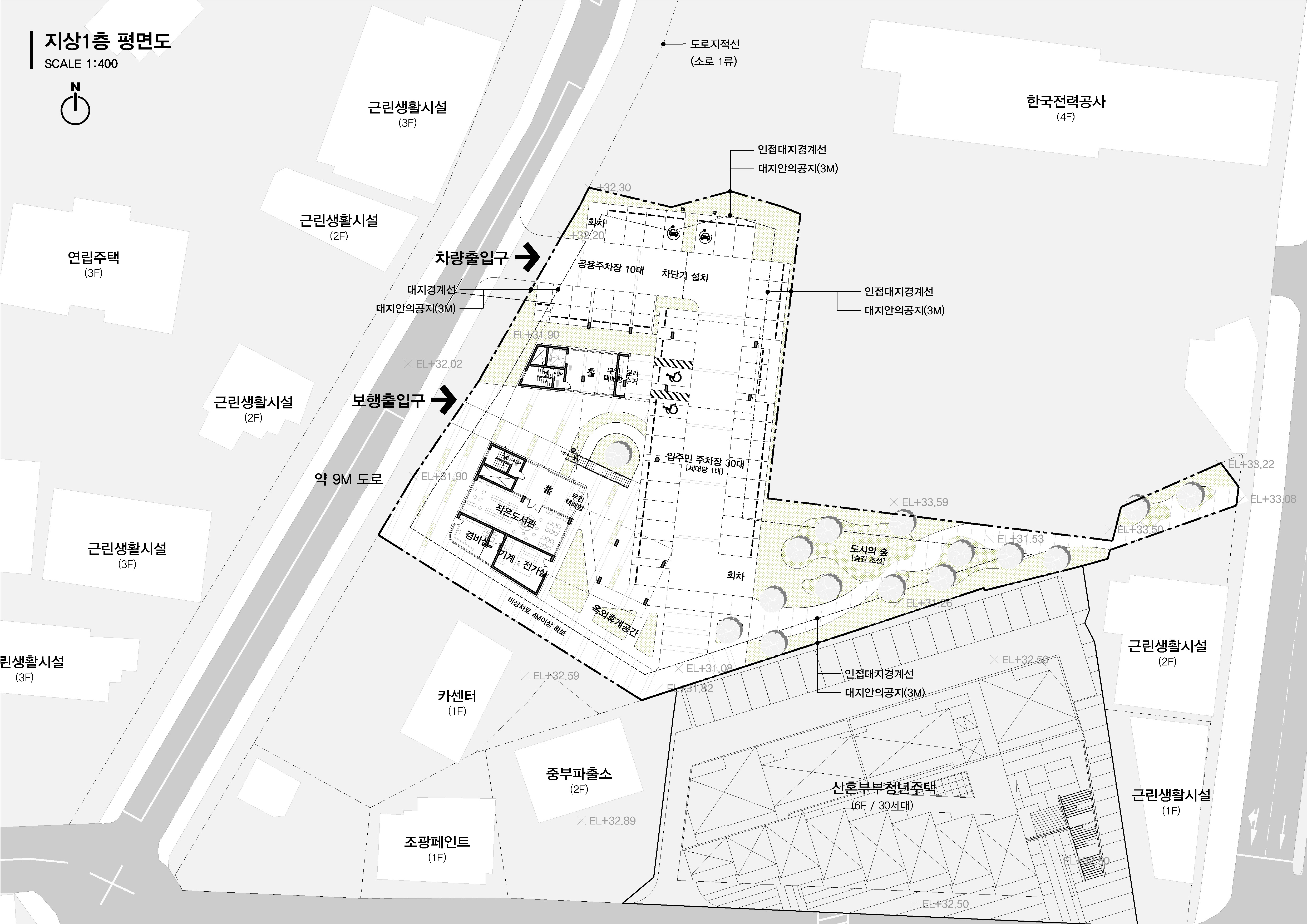
사업대상지는 청년 신혼부부 행복주택과 청년 임대주택 사이에 자리 잡음으로써 도시의 숲을 따라 동선을 연결하고 청년 관련 부대시설(작은도서관, 휴게카페, 피트니스센터) 계획을 통해 인접 시설들을 아우르는 공간이 될 것입니다.













(주)건축사사무소엔아이피
4등작_(주)건축사사무소엔아이피(https://nip.co.kr/)
대표건축가 송현규
대지면적 2,940.00㎡
연면적 2,439.41㎡
건축면적 819.62㎡
건폐율 27.88%
용적률 82.97%
최고높이 27.90m
층수 지상 9층
구조 철근콘크리트 구조
대표건축가 송현규
디자인팀 채규연, 이성주, 이지현
조경면적 691.66㎡
주차대수 40대
발주처 합천군청 도시개발허가과
'Plans' 카테고리의 다른 글
| 예산군 대흥면 기초생활거점조성사업 의좋은 문화뜨락 설계공모(제안공모)_ 당선작 / 건축사사무소 이색 (0) | 2025.09.19 |
|---|---|
| 백제고도 내 공공한옥(백제관) 건립사업 설계공모_ 2등작 / 건축사사무소 강희재+(주)건축사사무소 서강종합 (0) | 2025.09.18 |
| 대창면 행정복지센터 건립 기본 및 실시설계 일반공모_ 5등작 / 디엘에스건축사사무소 (0) | 2025.09.18 |
| 칠원 구성지구 도시재생사업(우리동네살리기) 혜휼당(커뮤니티센터) 조성사업 건축 설계공모_ 2등작 / 건축사사무소 오삼일비 (0) | 2025.09.17 |
| 지능형 농기계 실증단지 구축사업 건축·통신·소방 설계용역_ 2등작 / 범건축 종합건축사사무소 (0) | 2025.09.17 |
마실와이드 | 등록번호 : 서울, 아03630 | 등록일자 : 2015년 03월 11일 | 마실와이드 | 발행ㆍ편집인 : 김명규 | 청소년보호책임자 : 최지희 | 발행소 : 서울시 마포구 월드컵로8길 45-8 1층 | 발행일자 : 매일



