
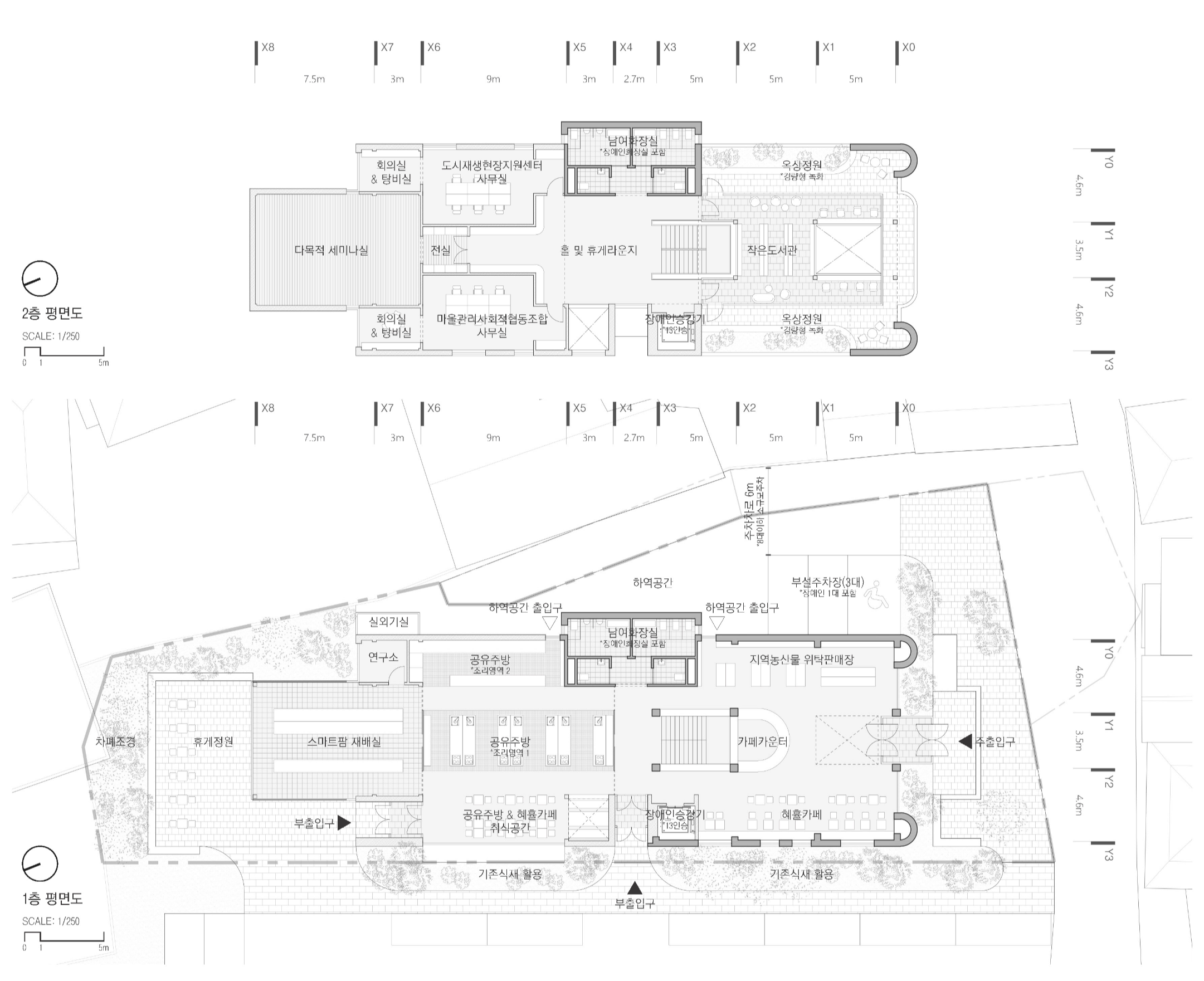
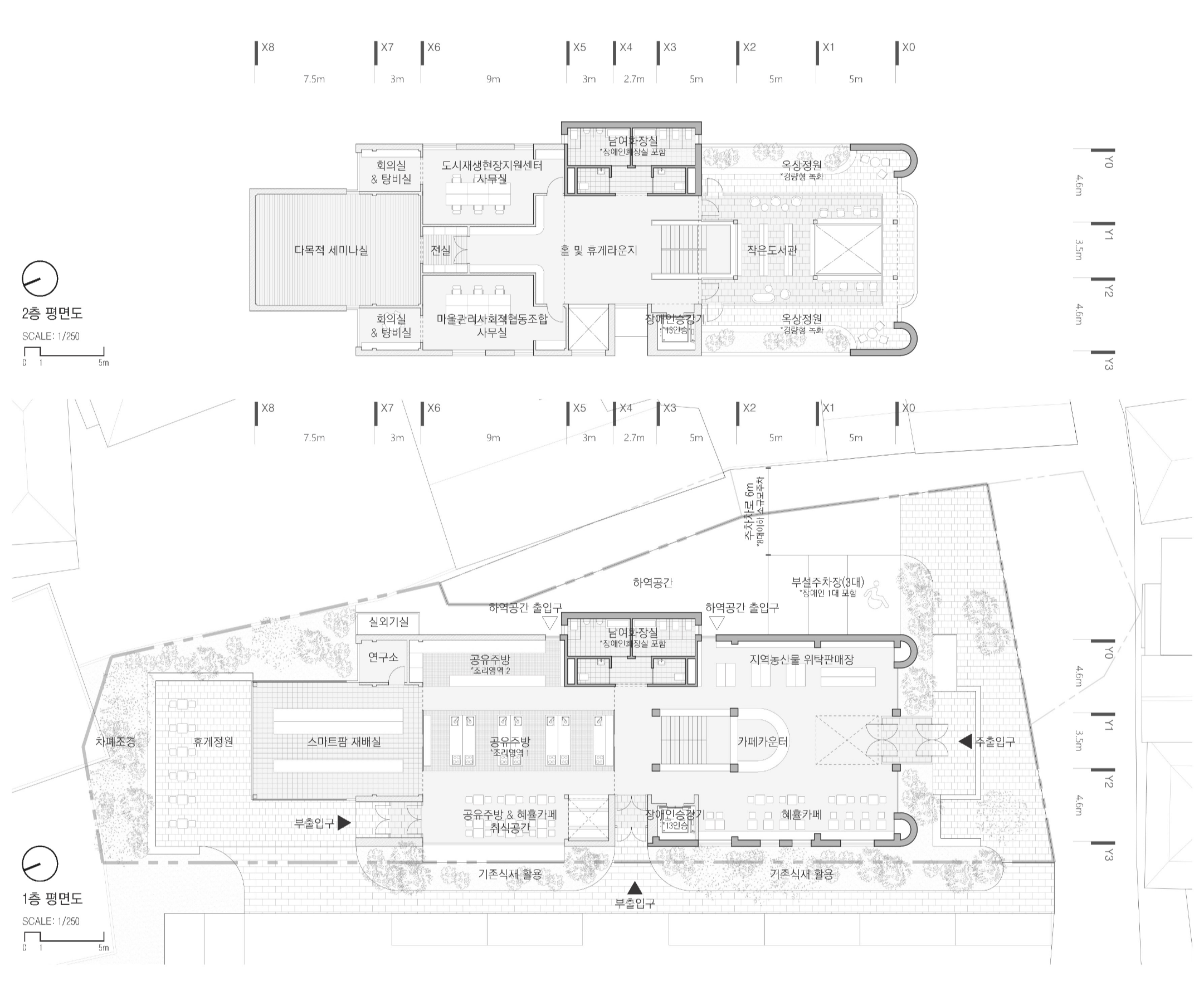
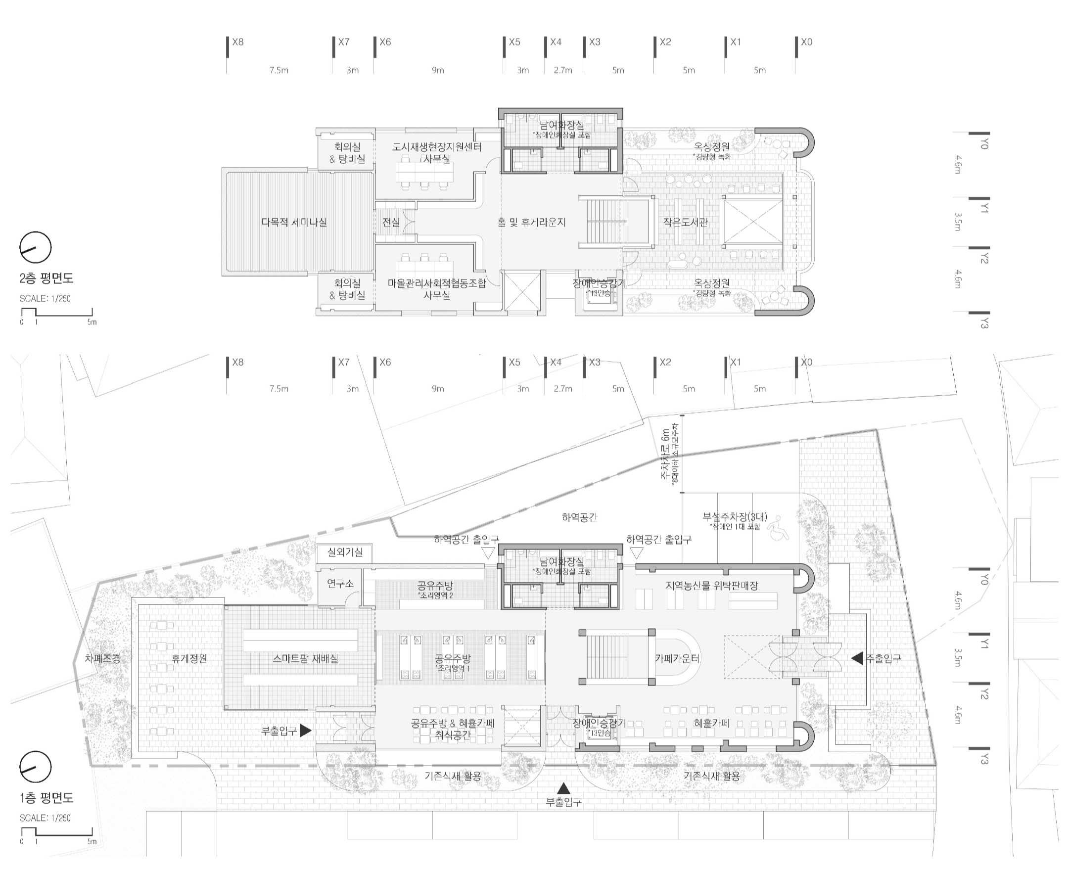
대상지가 위치한 칠원읍 구성리는 산과 하천으로 경계지어진 옛 마을의 원형을 간직하고 있다. 지역 활성화의 구심점 역할을 할 혜휼당은 구성지구 활성화 계획구역의 중앙에 위치한 옛 칠원우체국 건물을 일부 해체한 뒤 다시 증축하여 조성될 예정이다. 기존 건축물을 해체하고 증축하는 과정을 반복하는 만큼, 기존 건축물이 어떠한 과정을 거쳐 형성되어 왔는지 되짚어보고, 현재의 구조와 공간, 외피가 어떤 가능성들을 갖고 있는지 파악하여, 새로운 용도를 담아내는데 적절한 방향을 모색하는 것에서 본 제안은 시작하였다.
기존 건축물은 크게는 3단계에 걸쳐서 지금의 모습으로 형성되었다. 최초로 주출입구에 면한 볼륨이 구축되었고, 1998년 기존 볼륨의 후면에 덧대어 집배실이 증축되었고, 2001~2002년 1층 집배실이 확장되면 서, 2층의 문서고가 조성되었다. 기존 건축물의 정면 파사드와 내부의 구조가 나름의 질서와 아름다움을 갖고있지만, 과거의 증축방식은 필요한 기능을 위한 부속공간을 단순히 덧붙이는데 국한되어있다.
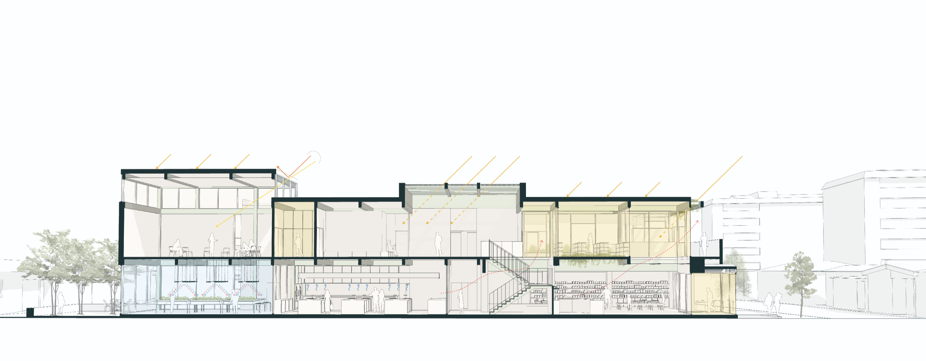
새로운 증축의 방향은 필요한 실들을 단순히 덧붙이는 것이 아닌, 기존 건축의 공간 위에 새로운 켜의 공간들을 중첩시켜 나가는 방식이다. 중첩되어진 공간의 깊이는 대상간의 관계와 의미를 더욱 풍요롭게 할 것이다. 기존 건물의 상징적인 정면 파사드와 내부 기둥열에의해 강화된 장축 방향의 흐름 위에 일련의 영역들을 겹쳐가며 배열함으로써, 기존 건축물의 다소 밋밋했던 장변을 반사한 볼륨을 만들어내어 건축물의 장변이 면한 혜휼원을 향해 정면성을 부여하였다.
또한 혜휼당은 (구) 칠원우체국의 공간적인 중첩 뿐만 아니라 시간적인 중첩 속에서 구축될 것이다. 이를 위해 기존 건축물의 구조와 외벽마감은 대부분 보존하였고, 과거 무분별한 증축으로 덧붙여진 부분들을 제거한 뒤 건축물의 시간과 구축의 의미를 드러내는 방식으로 새로운 증축의 방향을 설정하였다.









건축사사무소 오삼일비
2등작_건축사사무소 오삼일비(https://www.studio531b.com/)
대표건축가 오승영, 황기수
대지면적 1198㎡
연면적 832.09㎡
건축면적 482.99㎡
건폐율 40.32%
용적률 69.46%
최고높이 10.25m
층수 지상 2층
구조 철근콘크리트구조(기존건물) + 철골구조(증축건물)
대표건축가 오승영, 황기수
디자인팀 황승환
주차대수 3대
발주처 함안군
'Plans' 카테고리의 다른 글
| 합천군 청년공공임대주택 건립사업 설계용역_ 4등작 / (주)건축사사무소엔아이피 (0) | 2025.09.18 |
|---|---|
| 대창면 행정복지센터 건립 기본 및 실시설계 일반공모_ 5등작 / 디엘에스건축사사무소 (0) | 2025.09.18 |
| 지능형 농기계 실증단지 구축사업 건축·통신·소방 설계용역_ 2등작 / 범건축 종합건축사사무소 (0) | 2025.09.17 |
| 국립순천대학교 글로컬 교육문화복합관 증개축 설계용역_ 당선작 / (주)건축사사무소 휴먼플랜 (0) | 2025.09.16 |
| 예산군 대흥면 기초생활거점조성사업 의좋은 문화뜨락 설계공모(제안공모) _ 5등작 / 은초아키텍텐 건축사사무소 (0) | 2025.09.16 |
마실와이드 | 등록번호 : 서울, 아03630 | 등록일자 : 2015년 03월 11일 | 마실와이드 | 발행ㆍ편집인 : 김명규 | 청소년보호책임자 : 최지희 | 발행소 : 서울시 마포구 월드컵로8길 45-8 1층 | 발행일자 : 매일



