
우리동네 ‘문화뜨락’ 
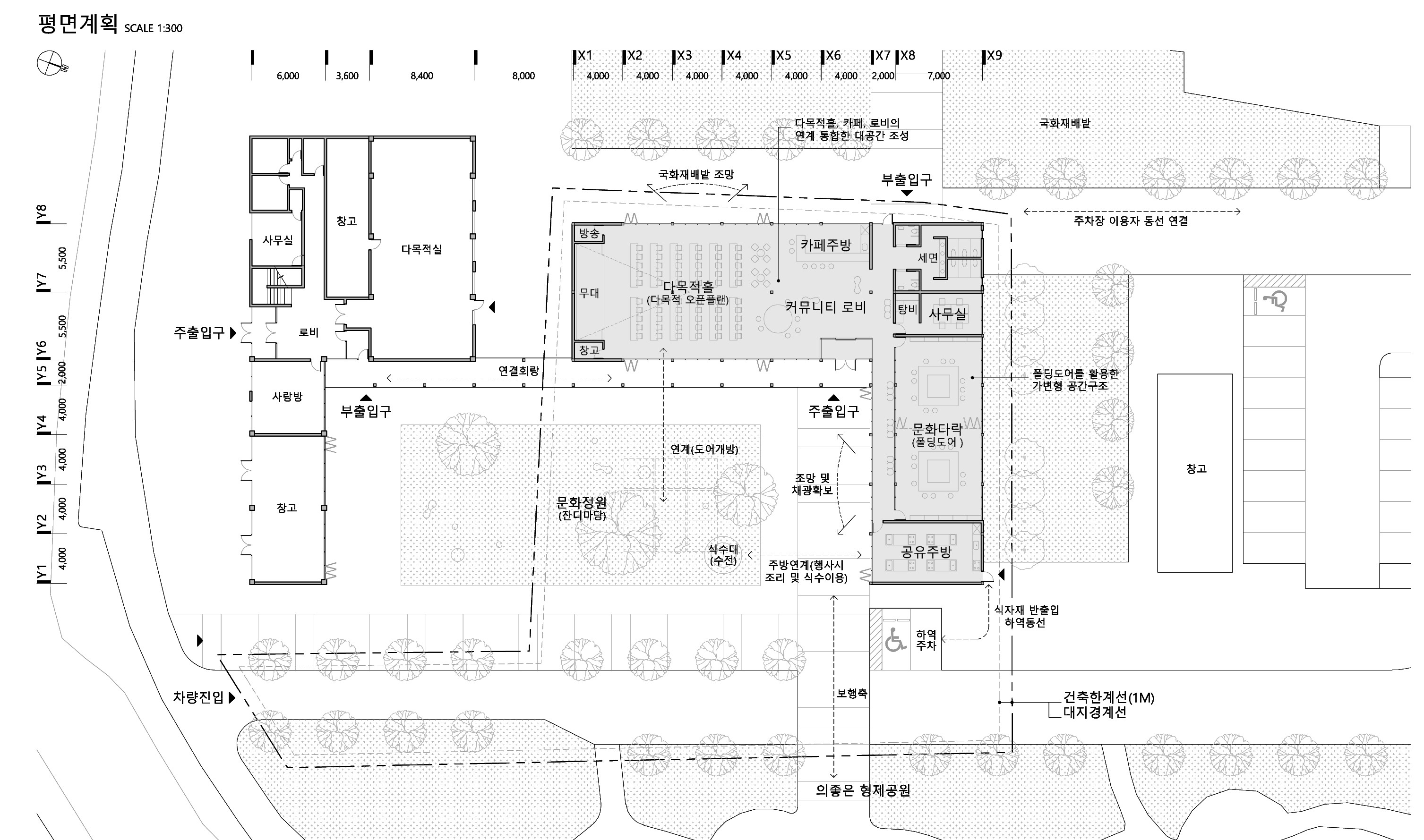
예산군 대흥면에 위치한 대지에 들어서는 이 프로젝트는 인접해 있는 문화시설인 619대흥역과의 프로그램 연계 및 동선의 연결을 통해 하나의 통합된 지역 거점공간으로 작동되고자 한다. 지역 안에서의 공공건축이 사람들의 생활에 밀접한 영향을 주고 마을 단위의 규모로 실제적인 쓰임이 되기를 기대하며 전 세대가 다 같이 모여 문화를 즐기며 교류하는 동네의 문화뜨락을 제안한다. 목구조로 구성된 공간은 문화적, 감성적으로 우리에게 친숙한 자연재로써 심리적 장벽을 낮추며 마을의 긍정적 분위기를 만드는 장소가 될 것이다.
새로운 마당과 회랑
‘ㄱ’자 형의 배치는 619대흥역과 연결하여 위요된 모습의 중정을 품게 된다. 공원을 향해 열려 있는 넓은 마당은 다양한 활동을 수용하는 외부공간으로 쓰이며 공원과 연계되어 상호작용 하게 된다. 야외공연, 플리마켓, 마을축제 등의 야외 프로그램은 실내공간과 유연하게 소통하며, 그 중간적 역할을 하는 회랑은 그늘을 만들어 사람들의 휴식의 공간이 된다.
연속적 마을의 풍경
인접한 619대흥역은 사선과 박공지붕이 복합된 형태인 건축으로 연결통로로 인해 하나의 공간으로 작동되기 위해 건축적 어휘를 따라 계획하여 주변 맥락을 담아내고자 하였다. 연속된 박공지붕의 다목적홀과 사선지붕의 측창으로 유입되는 남측의 채광은 시간의 변화에 따라 공간을 더욱 풍부하게 만들 것이다.
목구조계획
다목적홀과 통합된 카페 로비는 장스팬의 공간구현을 위해 내부 기둥을 최소화 하면서 ‘Y’자형 브레이싱 구조로 안전성을 더하였다. 이러한 구조는 내부 공간에서 나무의 조형성을 드러내며 사람들에게 목구조의 미를 경험하게 하면서 동시에 따뜻하고 전원적인 실내 분위기의 공간을 제안하였다.










 은초아키텍텐 건축사사무소
5등작_ 은초아키텍텐 건축사사무소 (http://www.eunchoarchitecten.com)
대표건축가 조은 
대지면적 1,927.00㎡ 
연면적 525.02㎡ 
건축면적 525.02㎡(연결통로 : 97.74㎡) 
건폐율 27.24% 
용적률 27.24% 
최고높이 4.8m 
층수 지상 1층 
구조 중목구조 
대표건축가 조은
조경면적 290.68㎡ 
주차대수 2대 
발주처 충남 예산군
'Plans' 카테고리의 다른 글
| 지능형 농기계 실증단지 구축사업 건축·통신·소방 설계용역_ 2등작 / 범건축 종합건축사사무소 (0) | 2025.09.17 | 
|---|---|
| 국립순천대학교 글로컬 교육문화복합관 증개축 설계용역_ 당선작 / (주)건축사사무소 휴먼플랜 (0) | 2025.09.16 | 
| 진해 동부권 생활문화센터 건립 설계공모_ 5등작 / 혜우건축사사무소 (0) | 2025.09.16 | 
| 신선그룹홈 조성사업_ 4등작 / 쨀트 건축사사무소 (0) | 2025.09.16 | 
| 칠원 구성지구 도시재생사업(우리동네살리기) 혜휼당(커뮤니티센터) 조성사업 건축 설계공모_ 3등작 / 산보사건축사사무소 (0) | 2025.09.16 | 
마실와이드 | 등록번호 : 서울, 아03630 | 등록일자 : 2015년 03월 11일 | 마실와이드 | 발행ㆍ편집인 : 김명규 | 청소년보호책임자 : 최지희 | 발행소 : 서울시 마포구 월드컵로8길 45-8 1층 | 발행일자 : 매일


 
                                                         
                                                         
                                                         
                                                        
