
캠퍼스가 함께하는, 일상과 배움의 장
순천대학교 글로컬 교육문화복합관은 지역사회와 캠퍼스가 맞닿아 함께 성장하는 새로운 배움의 장을 지향한다. 학생과 지역주민이 일상의 흐름 속에서 자연스럽게 교류하며 배움을 이어갈 수 있는 열린 플랫폼으로 확장된다.
FLOW - 캠퍼스를 연결하는 열린 흐름
건축의 가장 큰 개념은 ‘흐름’이다. 기존 건물의 선형 맥락을 수용하면서, 캠퍼스의 주요 동선과 외부 공간을 유기적으로 연결하였다. 전면 광장에서 이어지는 열린 마당과 데크는 남문과 학내 주요 시설을 잇는 축으로 작동하며, 배움의 흐름이 캠퍼스 전체로 확장된다. 이러한 연속적인 공간 경험은 대지의 조건을 넘어선 완결성과 열린 배움터로서의 가치를 한층 높인다.
COMMUNITY - 캠퍼스와 소통하는 외부공간
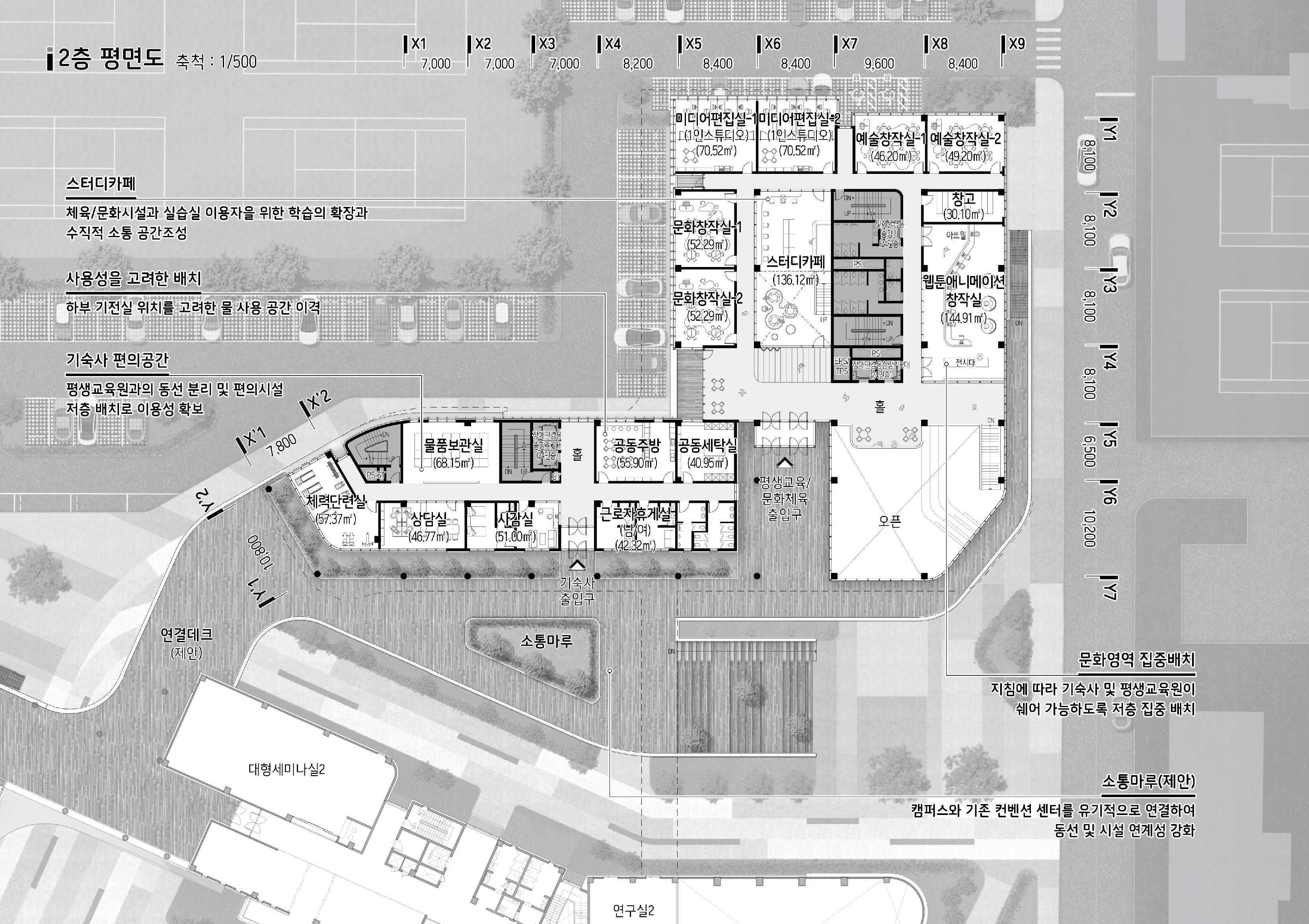
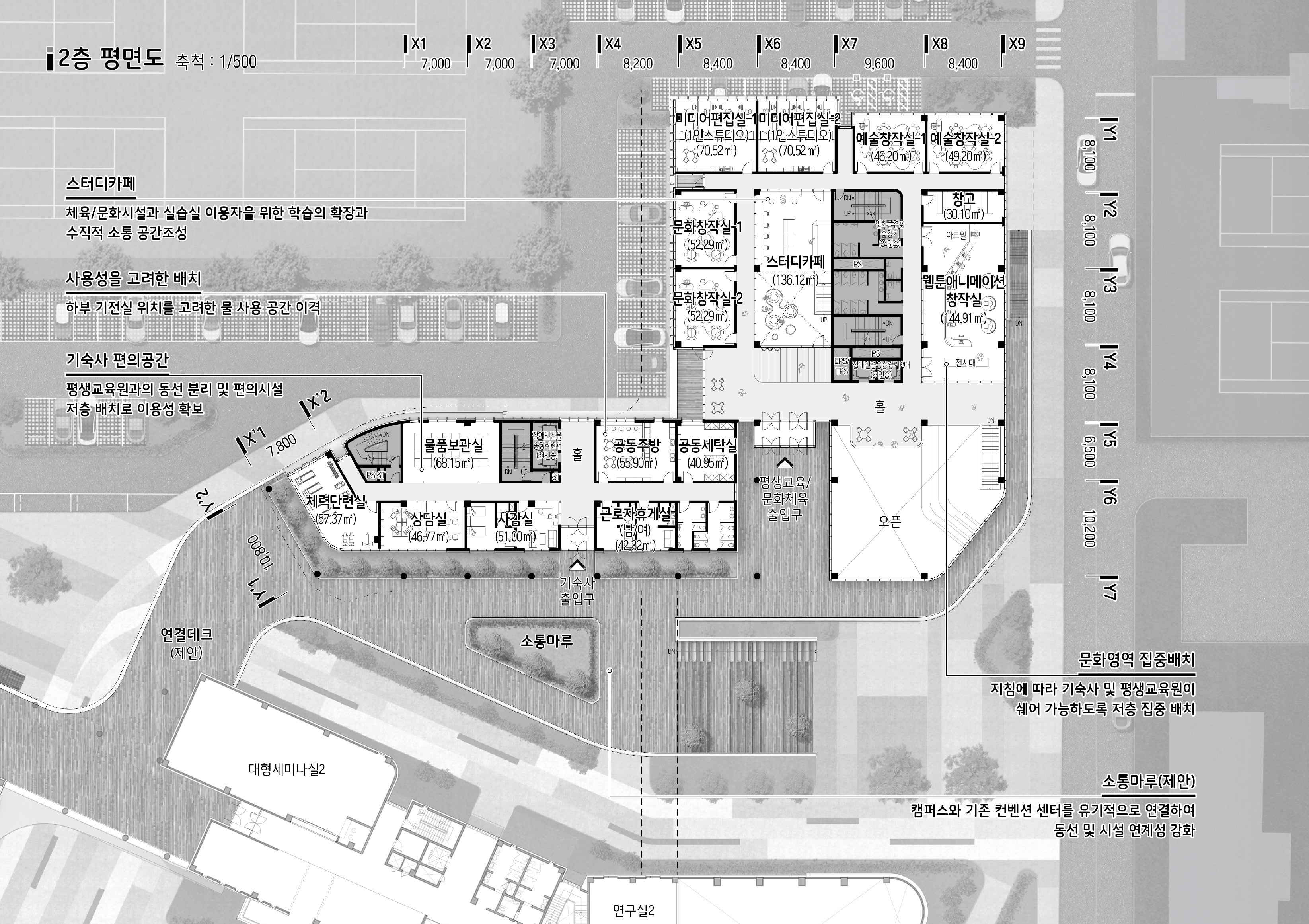
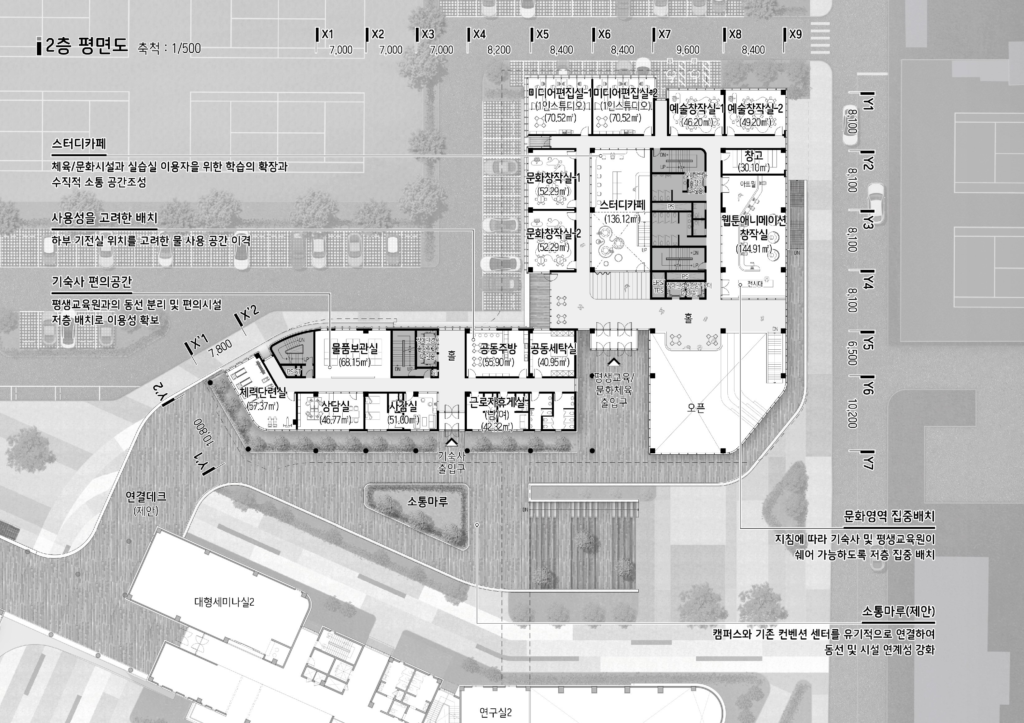
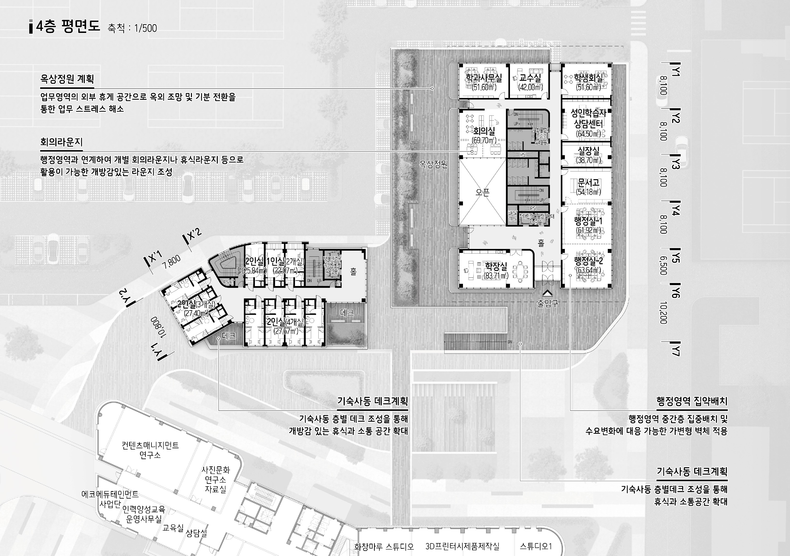
저층부는 지역과 학생 모두를 위한 교육·문화 공간으로 계획되었다. 주민이 자유롭게 드나들 수 있는 체육시설, 공연장, 열린 로비와 커뮤니티 스테어는 다양한 활동을 담아내며 공공성을 확장한다. 이는 지역사회와 대학을 연결하는 접점이자, 학생들에게는 다양한 사람들과 교류할 수 있는 만남의 장이 된다. 일상 속 소통이 건축적 동선을 통해 촉진되면서, 글로컬 교육문화복합관은 도시와 캠퍼스를 매개하는 열린 커뮤니티 공간으로 기능할 것이다.
ICON - 캠퍼스의 새로운 상징
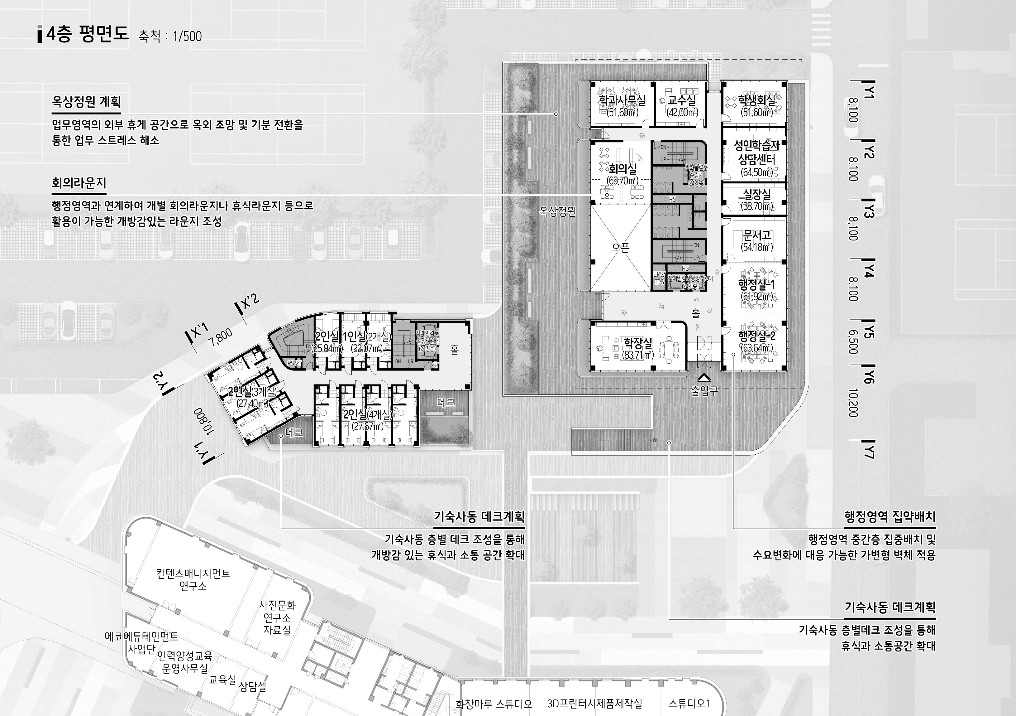
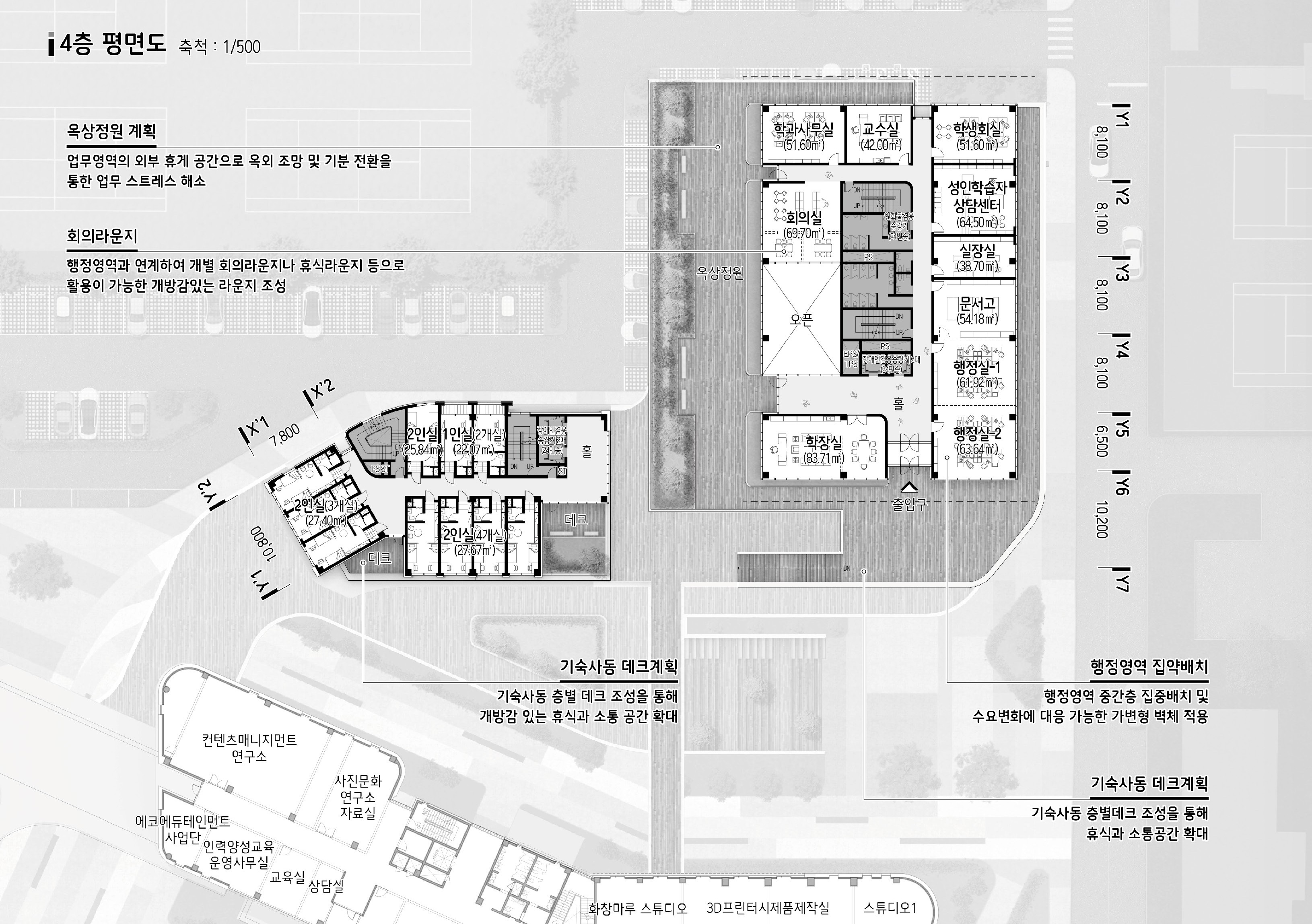
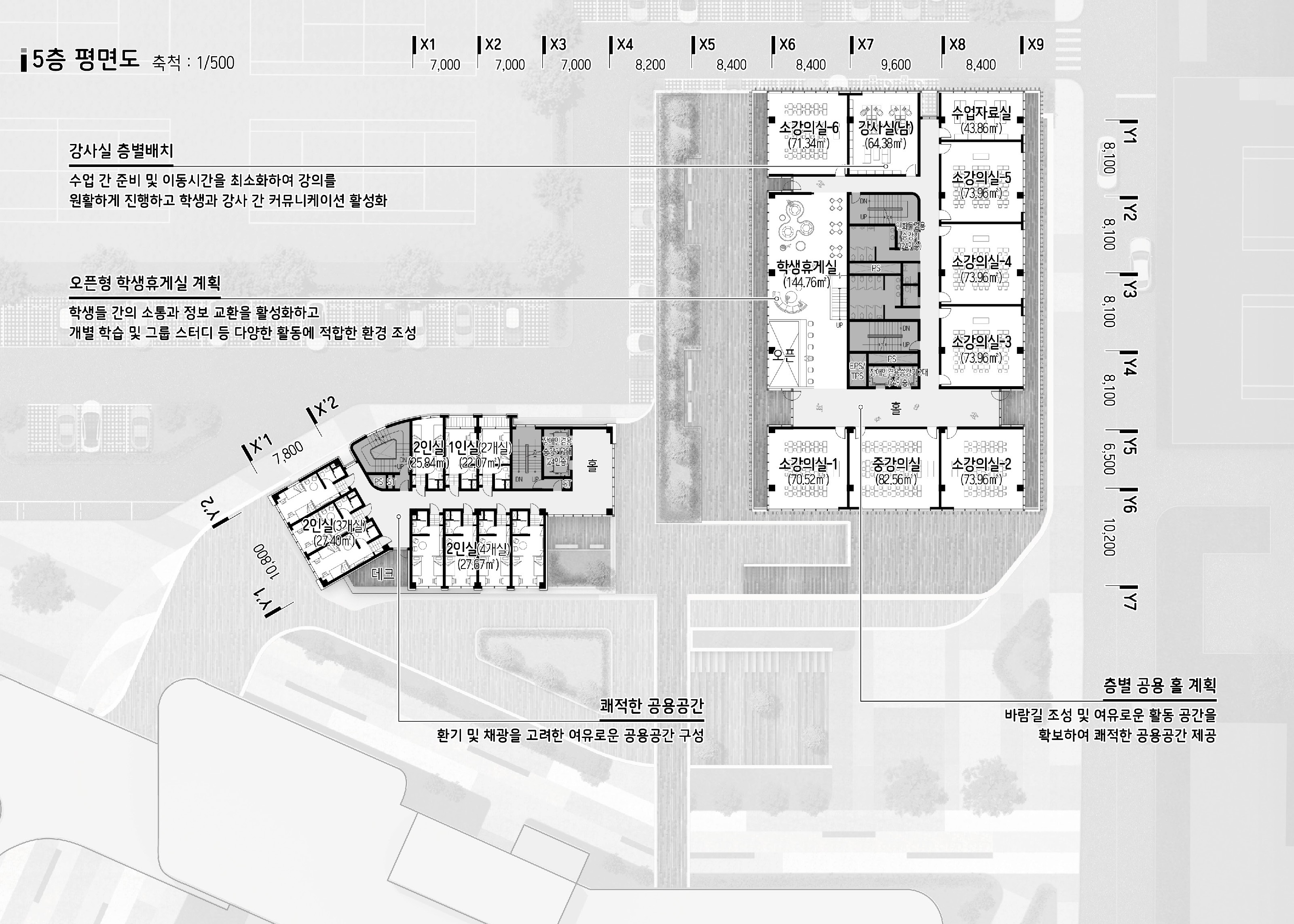
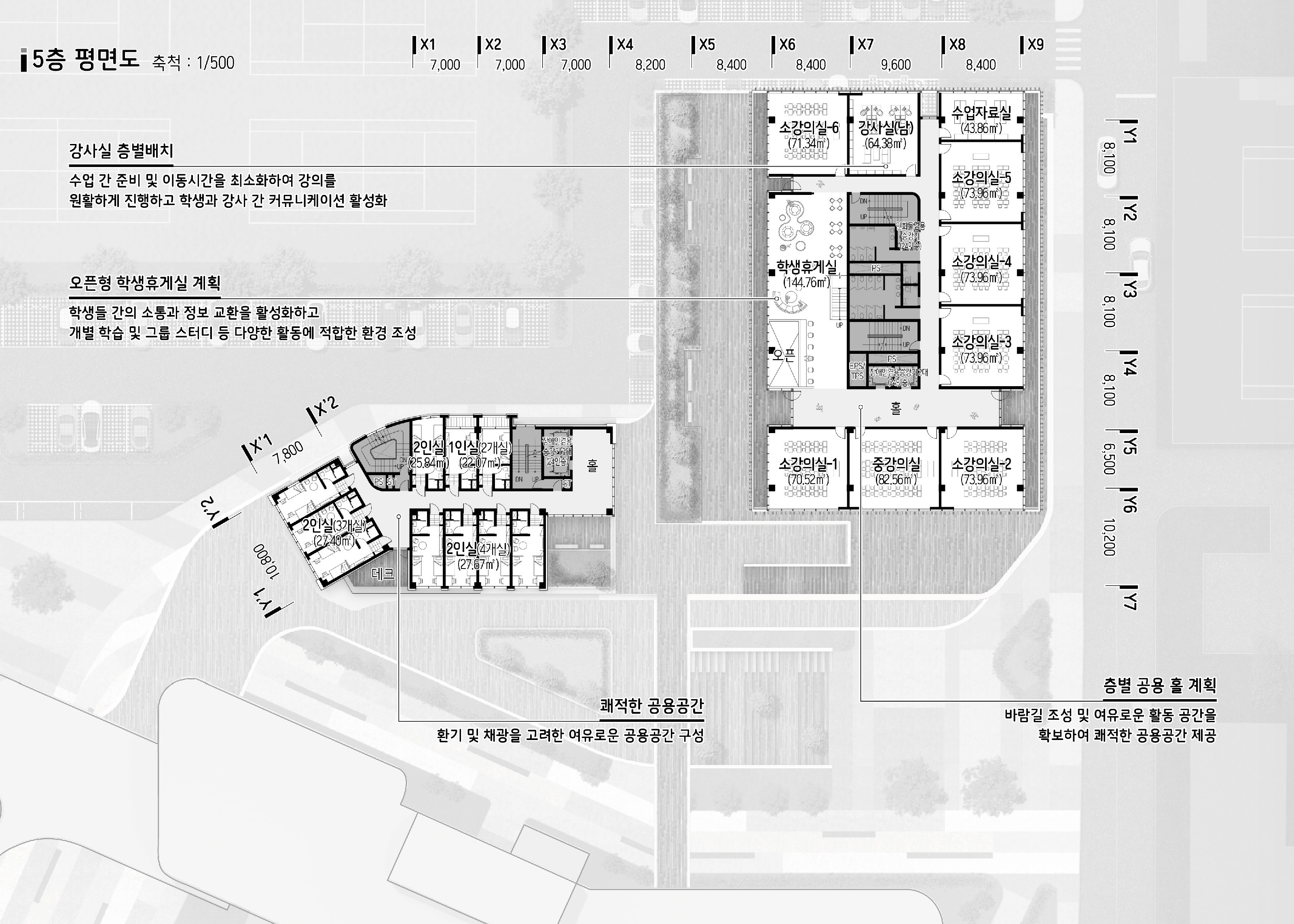
기숙사동은 대지의 중심에 배치되어 순천대의 새로운 아이콘으로 자리한다. 상징적 스카이라인을 형성하여 캠퍼스의 정체성을 드러낸다. 평생교육동은 컨벤션관과 연계해 외부와의 접점을 강화하고, 입면은 수평적 리듬과 수직적 조형을 조화시켜 주변 환경과 어울리면서도 독립적 정체성을 가진다.
글로컬 교육문화복합관은 이렇게 흐름(FLOW)을 통해 캠퍼스를 연결하고, 커뮤니티(COMMUNITY)를 통해 지역과 소통하며, 아이콘(ICON)으로서 대학의 상징성을 드러낸다. 이는 지역과 대학이 공존하며 성장하는 플랫폼, 그리고 지식과 문화를 나누며 삶을 공유하는 열린 배움터로 자리잡을 것이다.













(주)건축사사무소 휴먼플랜
당선작_(주)건축사사무소 휴먼플랜 (http://humanplan.co.kr/)
 대표건축가 양병범
대지면적 21,199㎡
연면적 13,353.49㎡
건축면적 3,883.35㎡
건폐율 18.32%
용적률 62.99%
최고높이 52.2m
층수 지상 14층
구조 철근콘크리트 구조
대표건축가 양병범
디자인팀 채승훈, 조남석, 장정훈, 정찬송, 임조아
조경면적 4,726.87㎡
주차대수 118대(장애인 5대 포함)
발주처 국립순천대학교 
'Plans' 카테고리의 다른 글
| 칠원 구성지구 도시재생사업(우리동네살리기) 혜휼당(커뮤니티센터) 조성사업 건축 설계공모_ 2등작 / 건축사사무소 오삼일비 (0) | 2025.09.17 | 
|---|---|
| 지능형 농기계 실증단지 구축사업 건축·통신·소방 설계용역_ 2등작 / 범건축 종합건축사사무소 (0) | 2025.09.17 | 
| 예산군 대흥면 기초생활거점조성사업 의좋은 문화뜨락 설계공모(제안공모) _ 5등작 / 은초아키텍텐 건축사사무소 (0) | 2025.09.16 | 
| 진해 동부권 생활문화센터 건립 설계공모_ 5등작 / 혜우건축사사무소 (0) | 2025.09.16 | 
| 신선그룹홈 조성사업_ 4등작 / 쨀트 건축사사무소 (0) | 2025.09.16 | 
마실와이드 | 등록번호 : 서울, 아03630 | 등록일자 : 2015년 03월 11일 | 마실와이드 | 발행ㆍ편집인 : 김명규 | 청소년보호책임자 : 최지희 | 발행소 : 서울시 마포구 월드컵로8길 45-8 1층 | 발행일자 : 매일


 
                                                         
                                                         
                                                         
                                                        
