
저희가 제안하는 진해 동부권 생활문화센터는 신항만배후지의 행정복지와 진해 동부권의 문화생활을 지원하기 위한 공공의 건축공간으로서 기능의 다양성, 공간의 가변성과 확장성, 더불어 주민들과의 관계성을 능동적으로 수용하는 열린 건축을 구현하고자 했습니다. 도시가로 및 공원을 면하면서 계단식으로 켜켜이 쌓인 외부공간들이 도시-건축-사람의 매개공간으로 작용되는 것을 상상하며,
본 건축물이 시각적으로 또는 물리적으로 연결하고, 소통의 장소로 기억될 수 있는 풍경의 건축을 담고자 하였습니다.
사업부지는 부산진해경제자유구역내 신항만배후단지 중심에 도시보행축 및 어린이 공원을 면하는 입지적 특성을 가지고 있습니다.
이러한 입지적 특성과 더불어 도시계획, 접근성, 일조 및 풍향 등을 종합적으로 고려하여 신항만개발을 중심으로 재편된 도시구조 속에 '지역공동체와 문화정체성을 어떻게 연결할 것인가'에 설계의 주안점을 두었습니다.
저희는 진해 동부권 생활문화센터의 주요 컨셉으로 'Jinhye Eastern Urban Step'을 제안하고 Grid', 'Variety', 'Layering'으로 요약되는 계획방향을 통해 볼륨을 분절하고, 내외부를 연결하며, 다층적 공간감을 계획하였습니다. 도시구조를 내재화한 공간구성을 통해 도시적 맥락을 수용하고 부지이용의 효율을 최대한 확보했습니다. 코어를 중심으로 개방적인 동선공간과 가변적 기능공간을 배치하며, 시각과 동선 공간의 중첩을 통해 유기적 관계맺기를 구현하고자 했습니다.
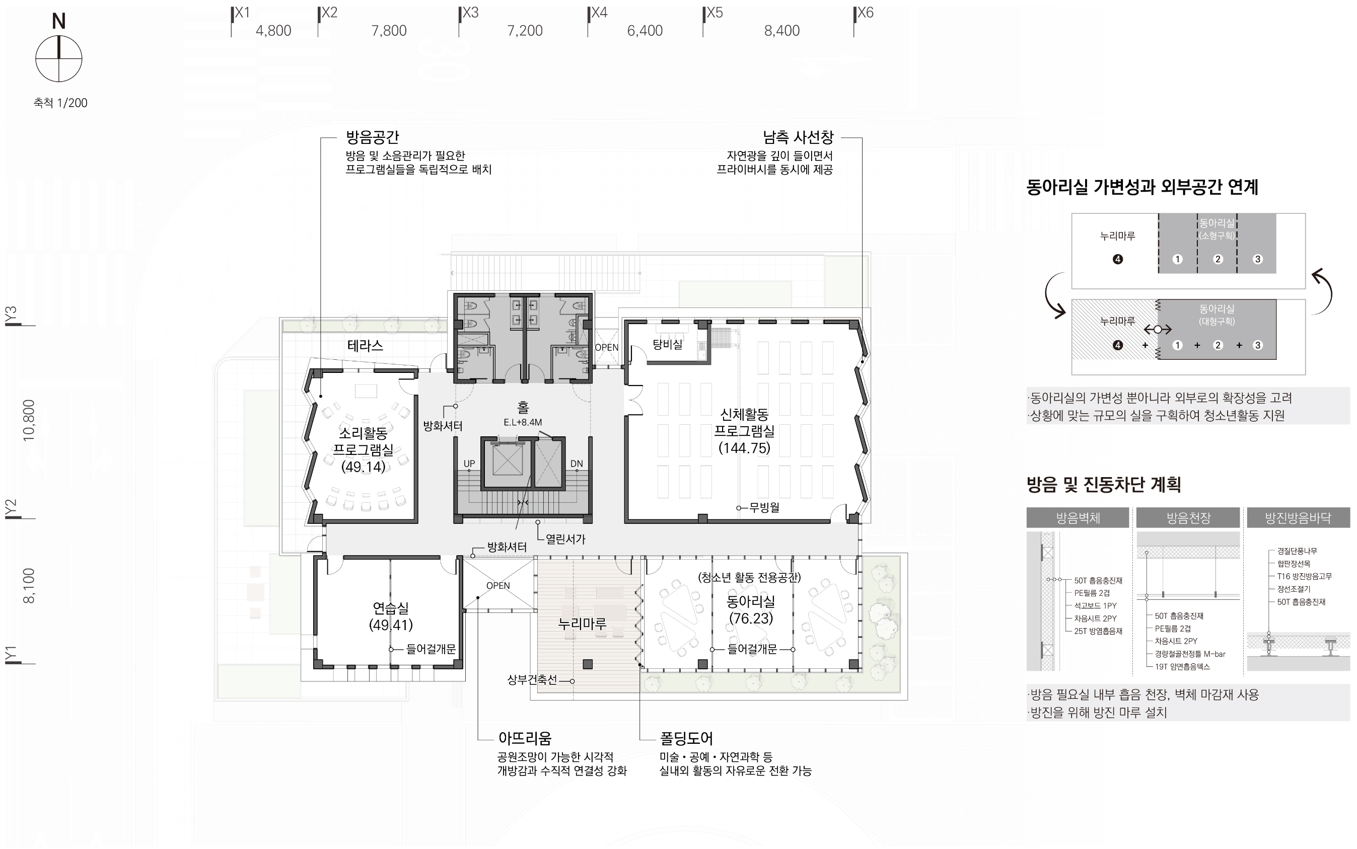
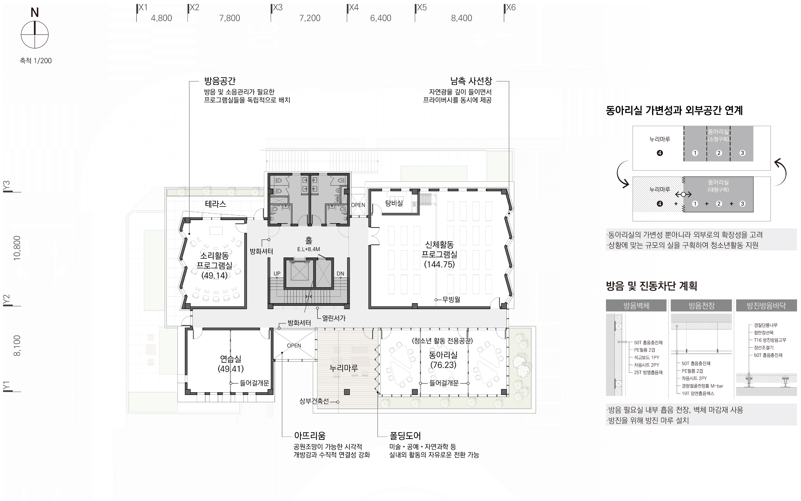
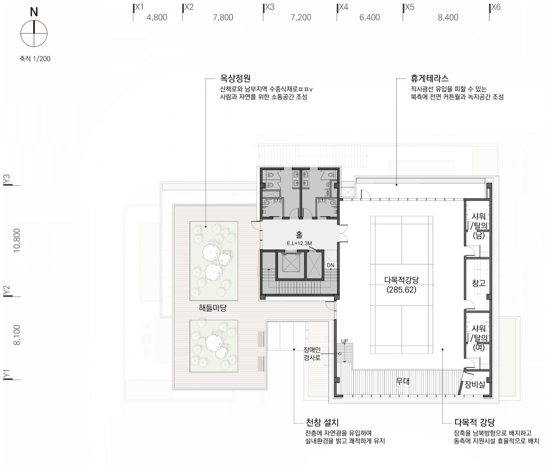
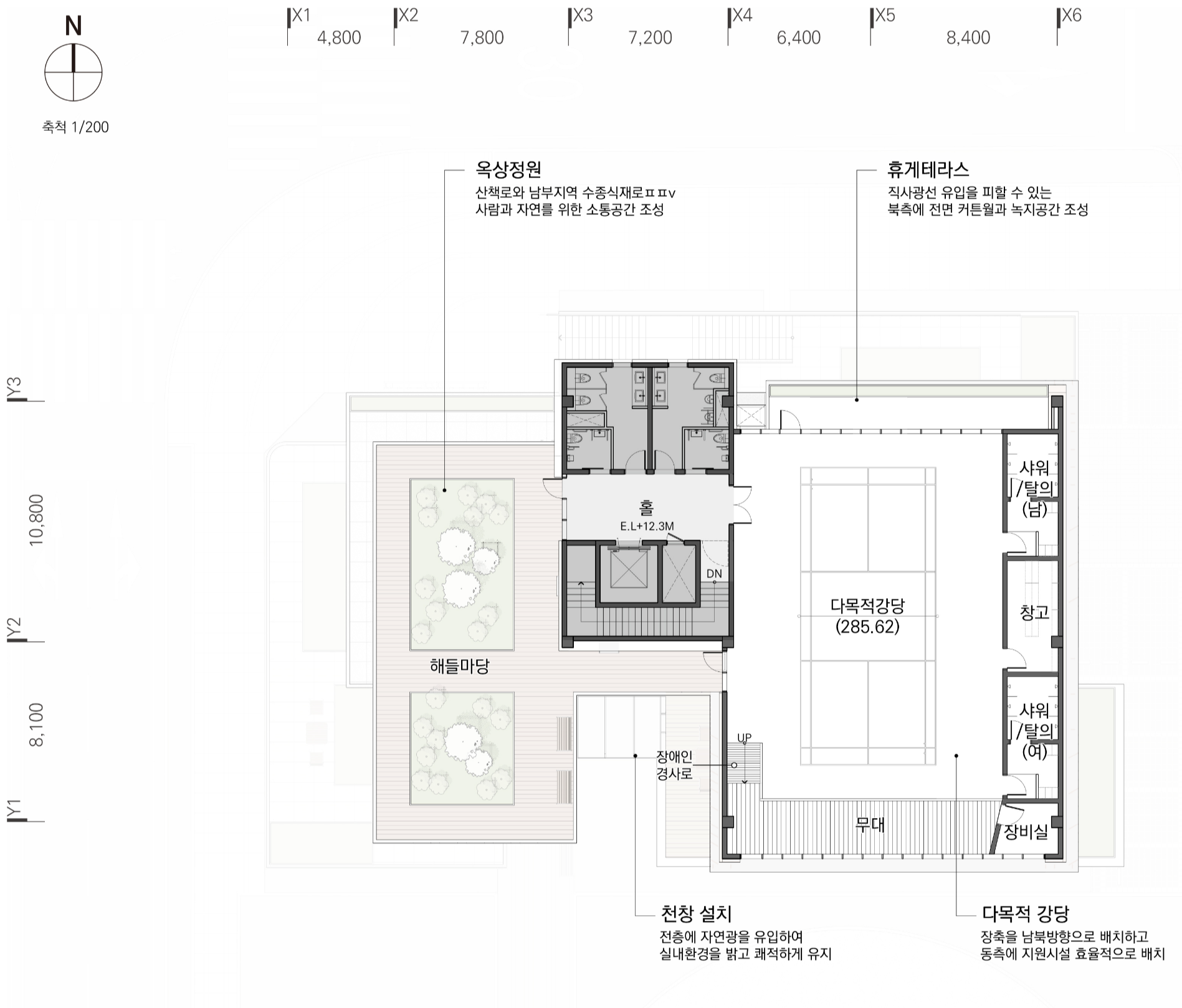
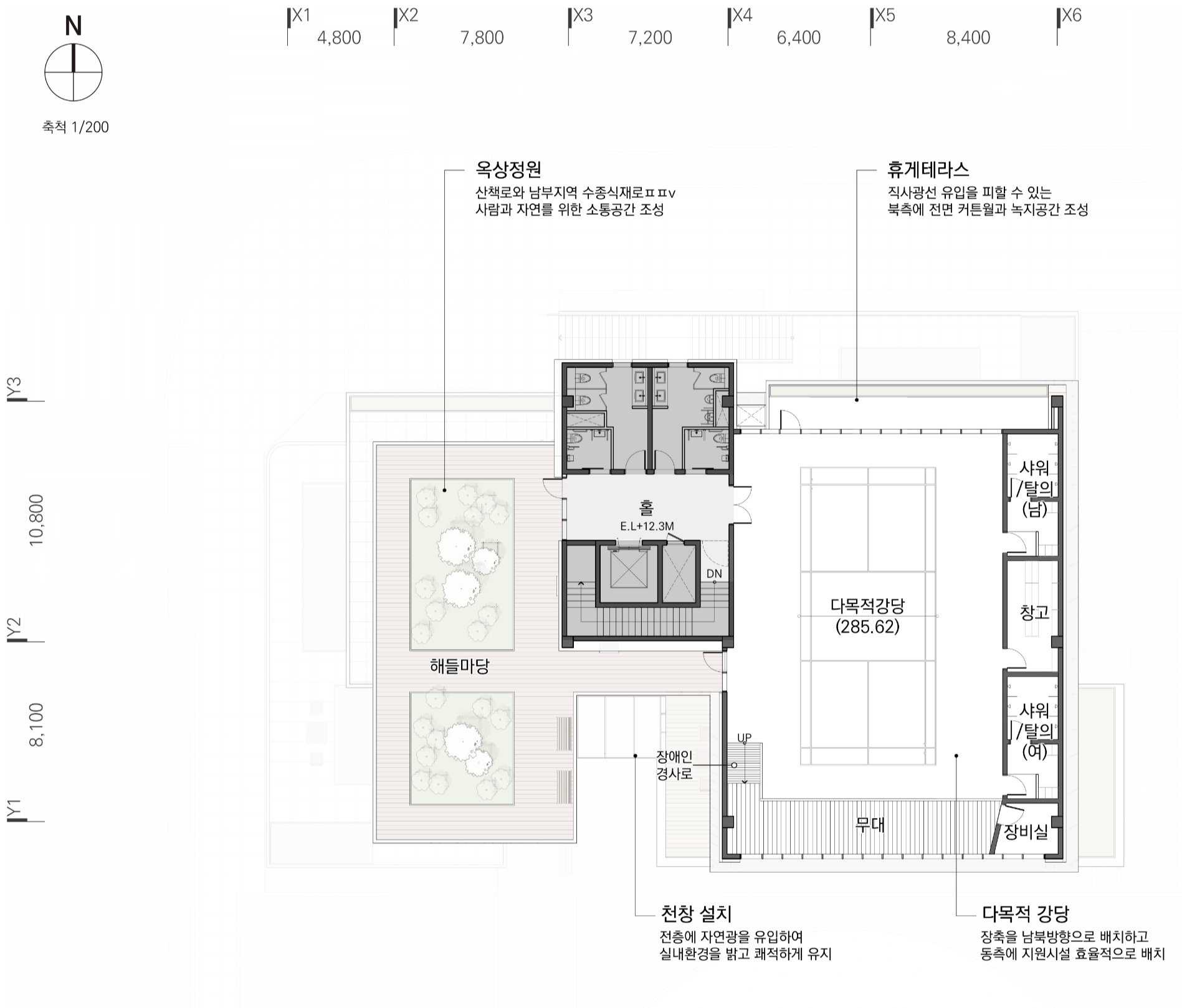
첫번째, 가로를 면한 외부공간이 매개공간이 되는 계단형 매스를 형성했습니다. 이는 건축-사람사이에 존재하는 이질성과 긴장을 완화하고, 다양성을 수용하는 공간감있는 전이공간을 제공합니다.
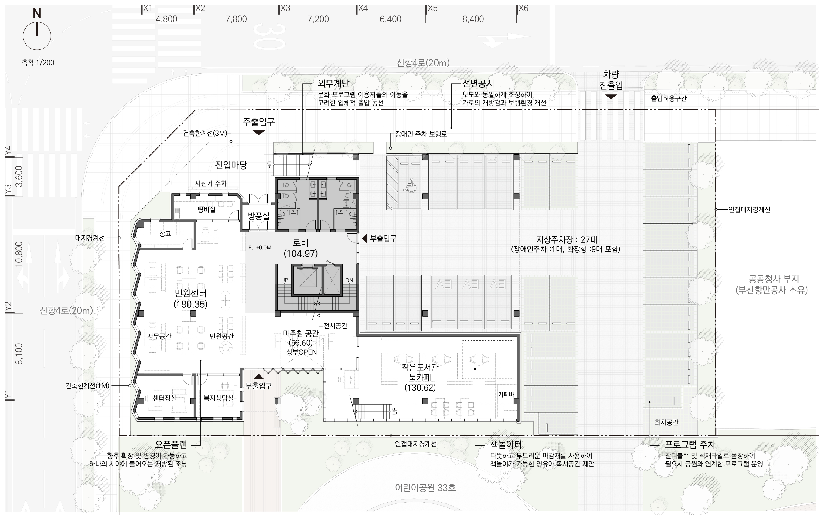
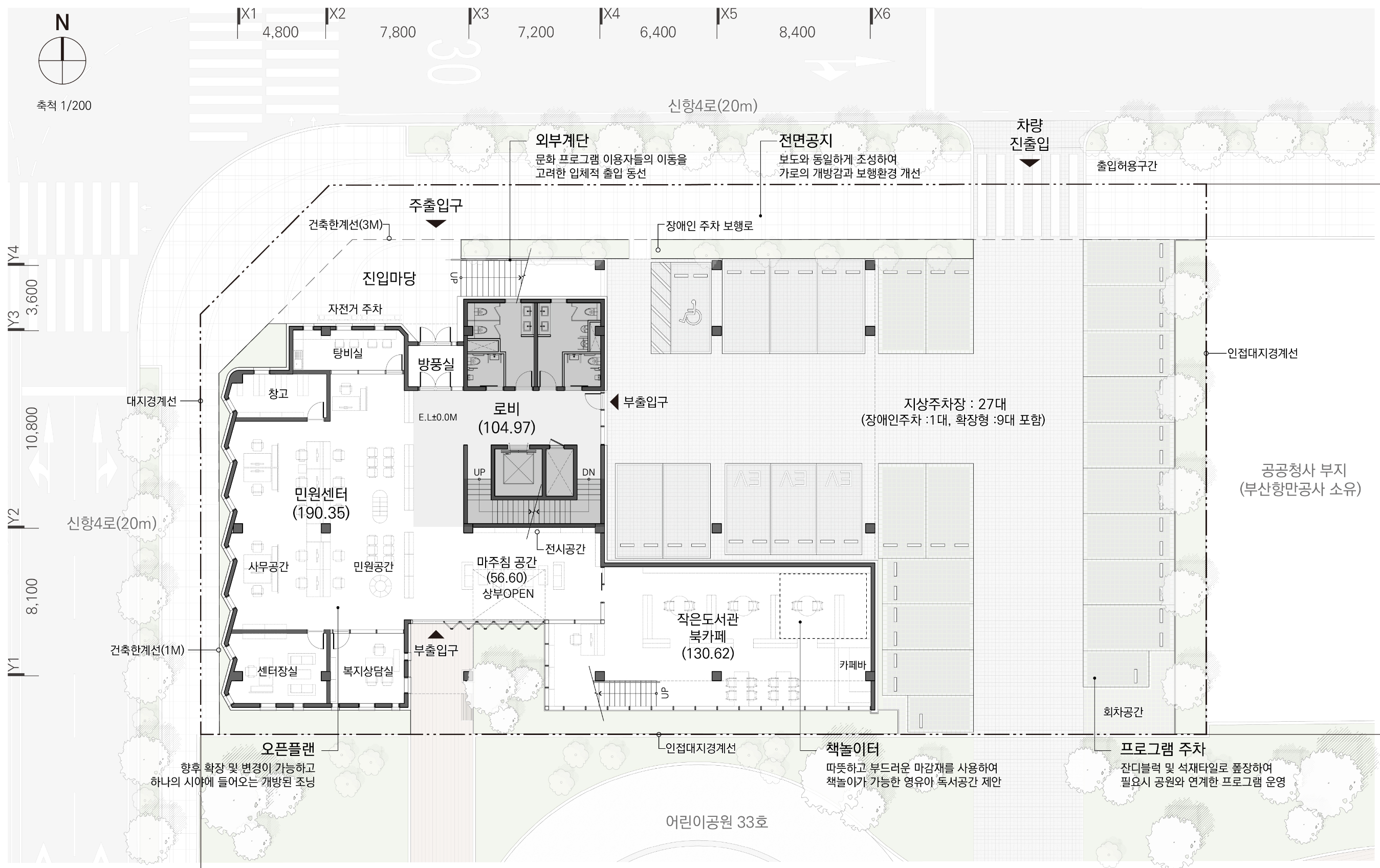
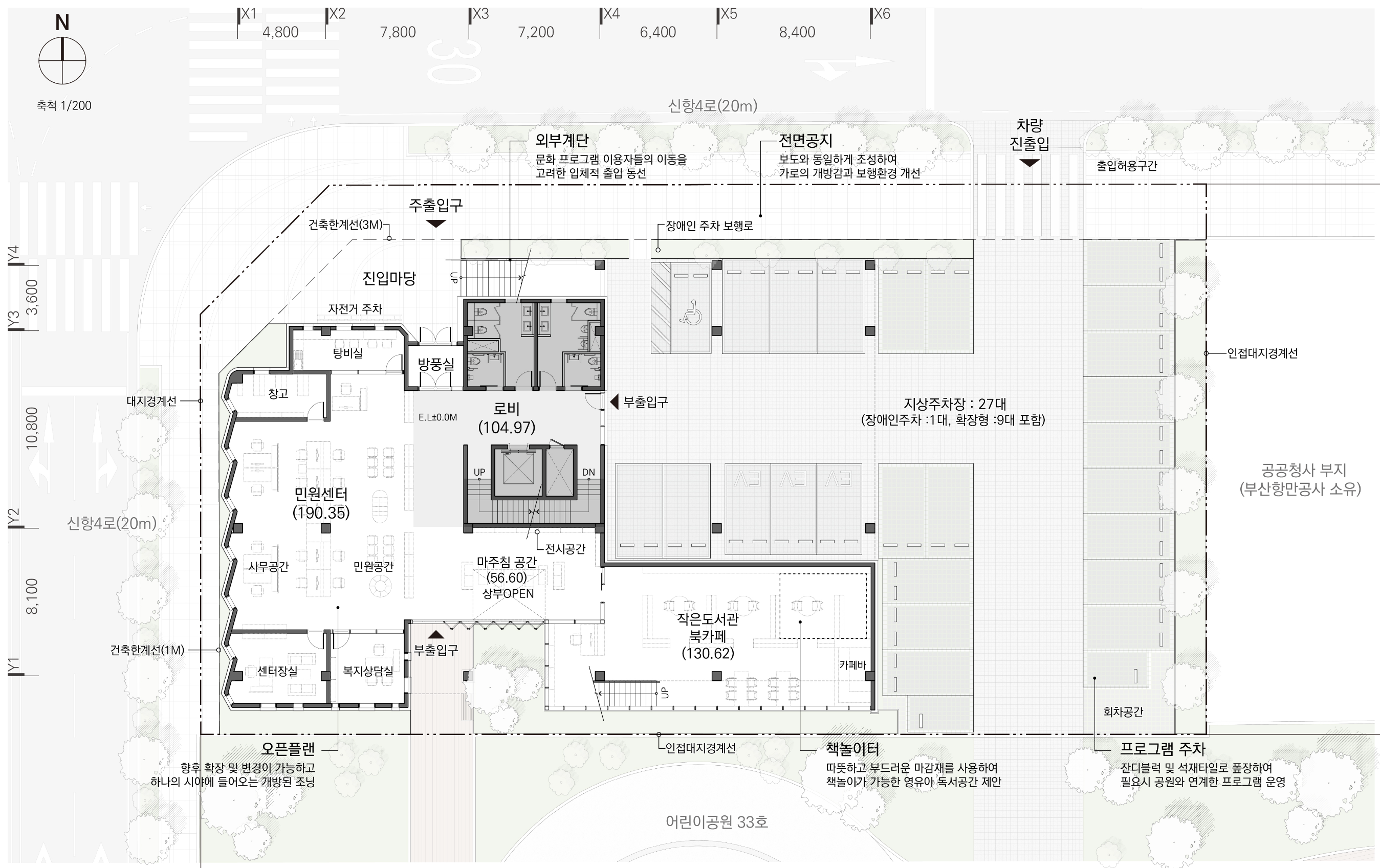
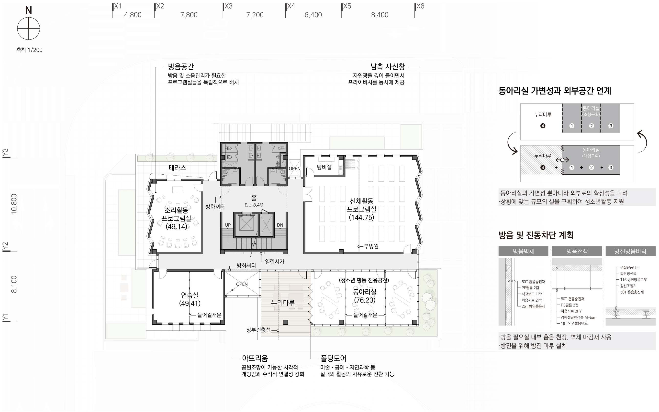
두번째, 효율적이고 연계성을 고려한 프로그램 조닝을 구체화하였습니다. 다양한 접근과 동선을 고려하여 효율적으로 기능을 배치하고, 외부공간과의 관계성과 기능간의 연계성을 확보하였습니다.
다음 단계에서는 다양한 내?외부공간의 유기적 연결을 계획하였습니다. 각층에 야외 휴게공간을 조성할 수 있는 테라스공간을 확보하고, 수직적 연결공간을 외?내부공간에 제안하였습니다.
마지막으로, 자연을 담아내는 틀이 되는 녹색건축물을 구현하고자 다양한 친환경적 디자인을 적용하였습니다.
결과적으로 유기적으로 분절된 볼륨과 다양한 틈, 그리고 내외부를 연결하는 개방된 순환동선이 형성되었고, 이러한 내외부 공간들은 지역이 함께 공유하고, 다양한 세대가 만나며, 관계가 쌓이는 접점이 되도록 계획하였습니다.









혜우건축사사무소
5등작_혜우건축사사무소 (https://www.instagram.com/hyewoo_architects/)
대표건축가 김치우, 차종헌
대지면적 1,631.9㎡
연면적 2,144.03㎡
건축면적 807.29㎡
건폐율 49.47%
용적률 117.63%
최고높이 19.6m
층수 지하 1층, 지상 4층
구조 철근콘크리트, 일부 강구조
대표건축가 김치우, 차종헌
디자인팀 이선혜
조경면적 262.61㎡(16.09%)
주차대수 지상27대(장애인주차 1대포함)
발주처 창원특례시
'Plans' 카테고리의 다른 글
| 국립순천대학교 글로컬 교육문화복합관 증개축 설계용역_ 당선작 / (주)건축사사무소 휴먼플랜 (0) | 2025.09.16 |
|---|---|
| 예산군 대흥면 기초생활거점조성사업 의좋은 문화뜨락 설계공모(제안공모) _ 5등작 / 은초아키텍텐 건축사사무소 (0) | 2025.09.16 |
| 신선그룹홈 조성사업_ 4등작 / 쨀트 건축사사무소 (0) | 2025.09.16 |
| 칠원 구성지구 도시재생사업(우리동네살리기) 혜휼당(커뮤니티센터) 조성사업 건축 설계공모_ 3등작 / 산보사건축사사무소 (0) | 2025.09.16 |
| 충청남도 동물위생시험소 부여지소 신축사업 설계공모(일반공모)_ 5등작 / (주)파랑건축사사무소 (0) | 2025.09.15 |
마실와이드 | 등록번호 : 서울, 아03630 | 등록일자 : 2015년 03월 11일 | 마실와이드 | 발행ㆍ편집인 : 김명규 | 청소년보호책임자 : 최지희 | 발행소 : 서울시 마포구 월드컵로8길 45-8 1층 | 발행일자 : 매일



