
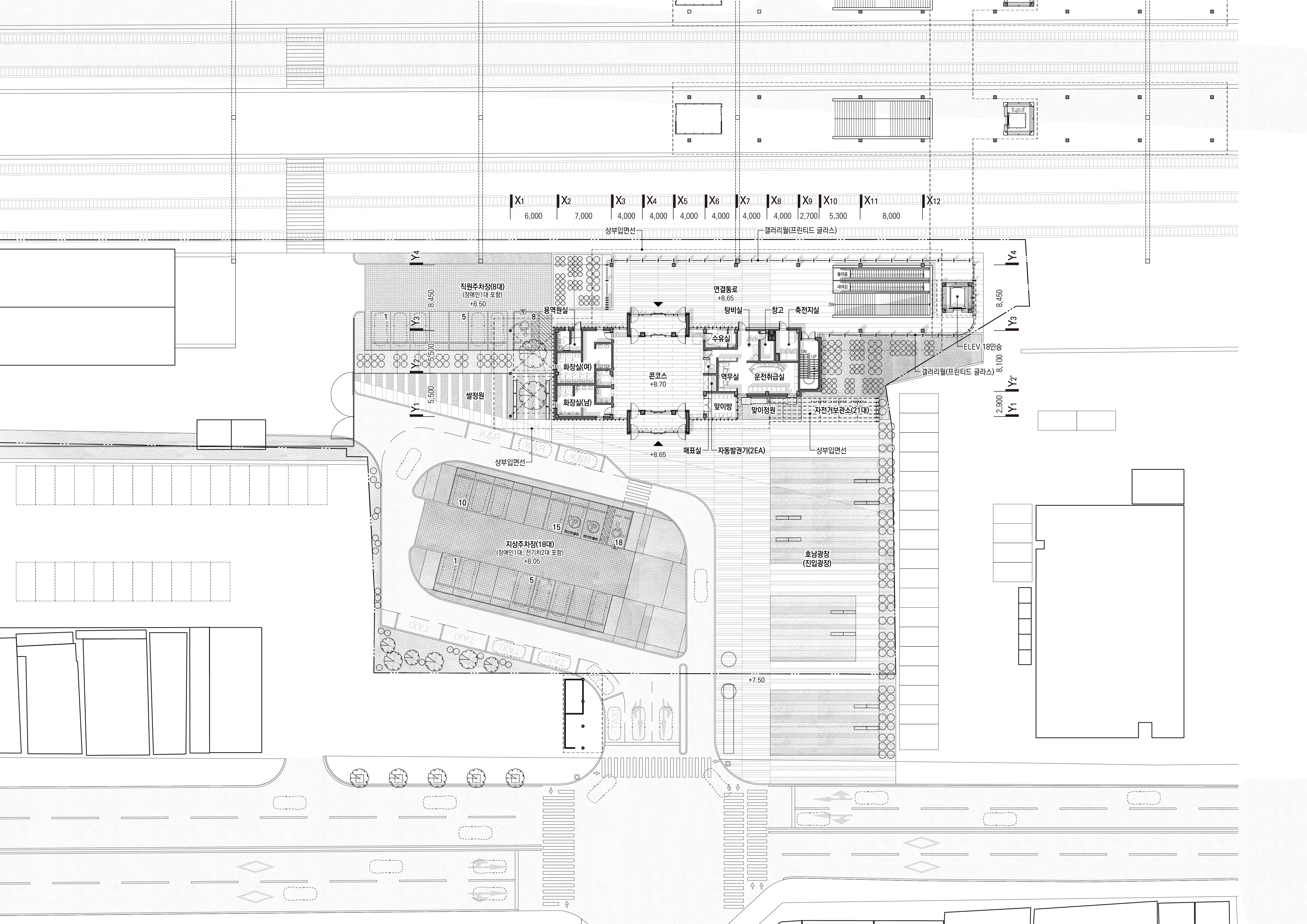
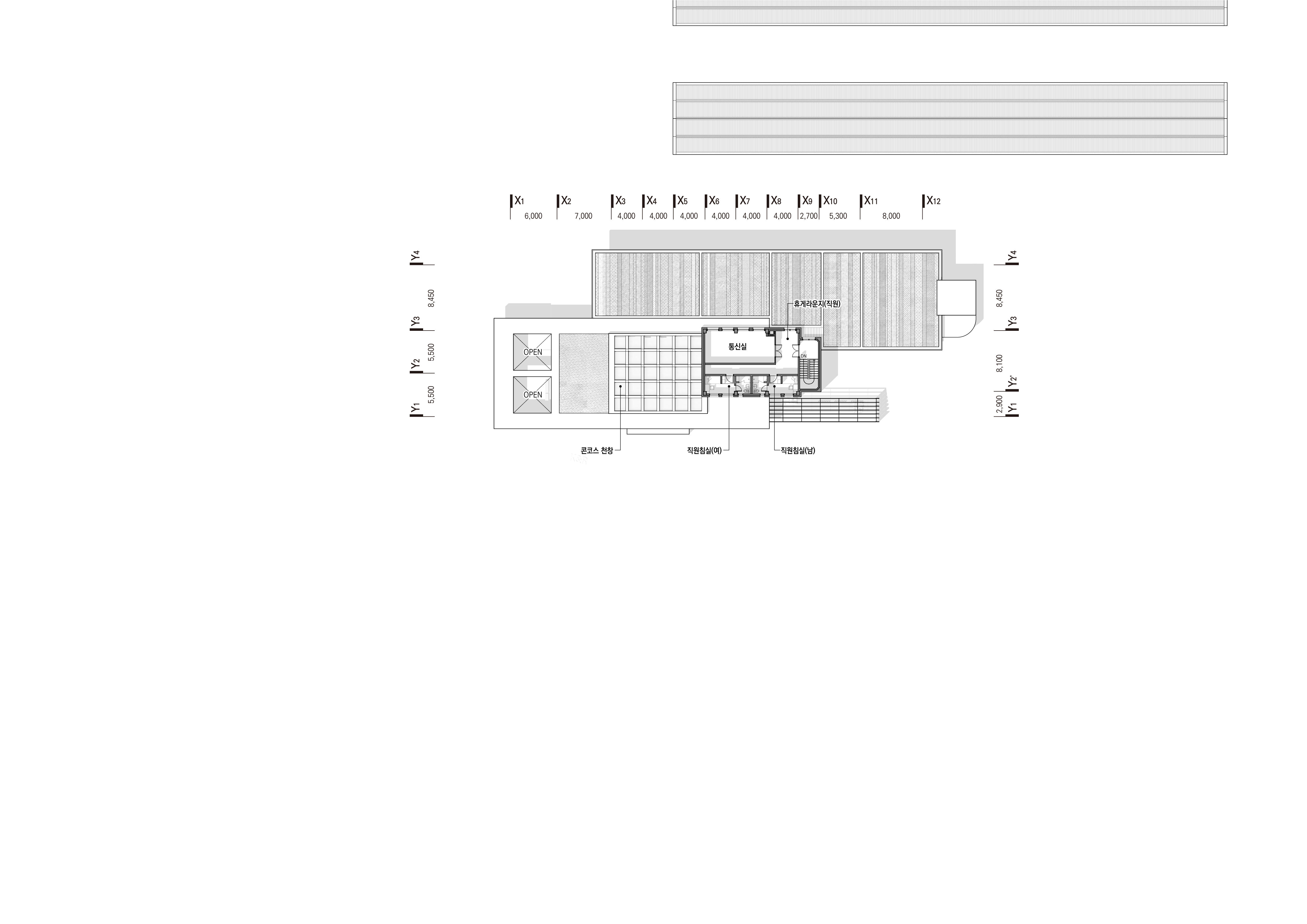
신태인역은 단순한 철도역을 넘어, 호남평야 한복판에서 삶을 이어온 사람들의 기억이 축적된 공간입니다.
수평/적층이라는 두 개념을 통해 이곳의 과거와 현재, 그리고 미래를 연결하는 새로운 조형과 공간 디자인을 제안합니다. 지붕 구조를 포함한 여러 겹의 수평적인 요소는 넓고 평탄한 호남평야의 지형적 특성을 상징합니다. 이를 통해 신태인 지역의 정체성을 건축 형태로 시각화 하고자 했습니다. 과거의 농업 유산 / 곡물창고의 기억 / 전쟁과 피란의 흔적 / 오늘날 주민들의 일상의 의미를 지니는 조형 구성의 물리적 구조는 단순한 역사적 복원이 아닌, ‘기억의 재해석’을 통한 감성적 회복을 의미합니다. 콘코스와 역사 전면부는 열린 광장으로 확장되며 주민들의 감정을 어루만지고, 공감할 수 있는 공간으로 자리 잡을 것입니다. 이 공간은 과거 사람들이 모이던 마을의 중심지 역할을 현대적으로 되살리며, 단순한 미관을 넘어서 정체성과 공공성, 그리고 감정의 기억을 담은 진정성 있는 공간이 되길 기대합니다.















그레도건축사사무소
당선작_그레도건축사사무소(https://www.gredoarchi.com/)
대표건축가 정한진
대지면적 7,131㎡ / 사업면적: 561.51㎡ 내외
연면적 570.79㎡
최고높이 9.3m
층수 지하 1층, 지상 2층
구조 철근콘크리트조, 철골조
대표건축가 정한진
디자인팀 이가은(인턴)
주차대수 27대
발주처 한국철도공사
'Plans' 카테고리의 다른 글
| 신선그룹홈 조성사업_ 5등작 / 오더메이드 건축사사무소 (0) | 2025.09.23 |
|---|---|
| 호매실 체육센터 건립공사_ 당선작 / MDA건축사사무소 (0) | 2025.09.22 |
| 충청남도 동물위생시험소 부여지소 신축사업 설계공모_ 4등작 / 그레도건축사사무소 (0) | 2025.09.19 |
| 예산군 대흥면 기초생활거점조성사업 의좋은 문화뜨락 설계공모(제안공모)_ 당선작 / 건축사사무소 이색 (0) | 2025.09.19 |
| 백제고도 내 공공한옥(백제관) 건립사업 설계공모_ 2등작 / 건축사사무소 강희재+(주)건축사사무소 서강종합 (0) | 2025.09.18 |
마실와이드 | 등록번호 : 서울, 아03630 | 등록일자 : 2015년 03월 11일 | 마실와이드 | 발행ㆍ편집인 : 김명규 | 청소년보호책임자 : 최지희 | 발행소 : 서울시 마포구 월드컵로8길 45-8 1층 | 발행일자 : 매일



