
Apartment #1
조용한 학군 뒤편에 자리한 아파트먼트 #1은 앞쪽으로는 공원을 마주하고, 옆으로는 좁은 골목과 연결되어 있다. 전면의 개방된 녹지와 양옆의 조밀한 연립주택이 맞물려 친밀하면서도 분명한 도시 조직을 형성하는 이 부지는, 골목 중심의 도시 주거 문화를 어떻게 집합주거 안에서 구현할 것인가에 대한 질문에서 출발한다.
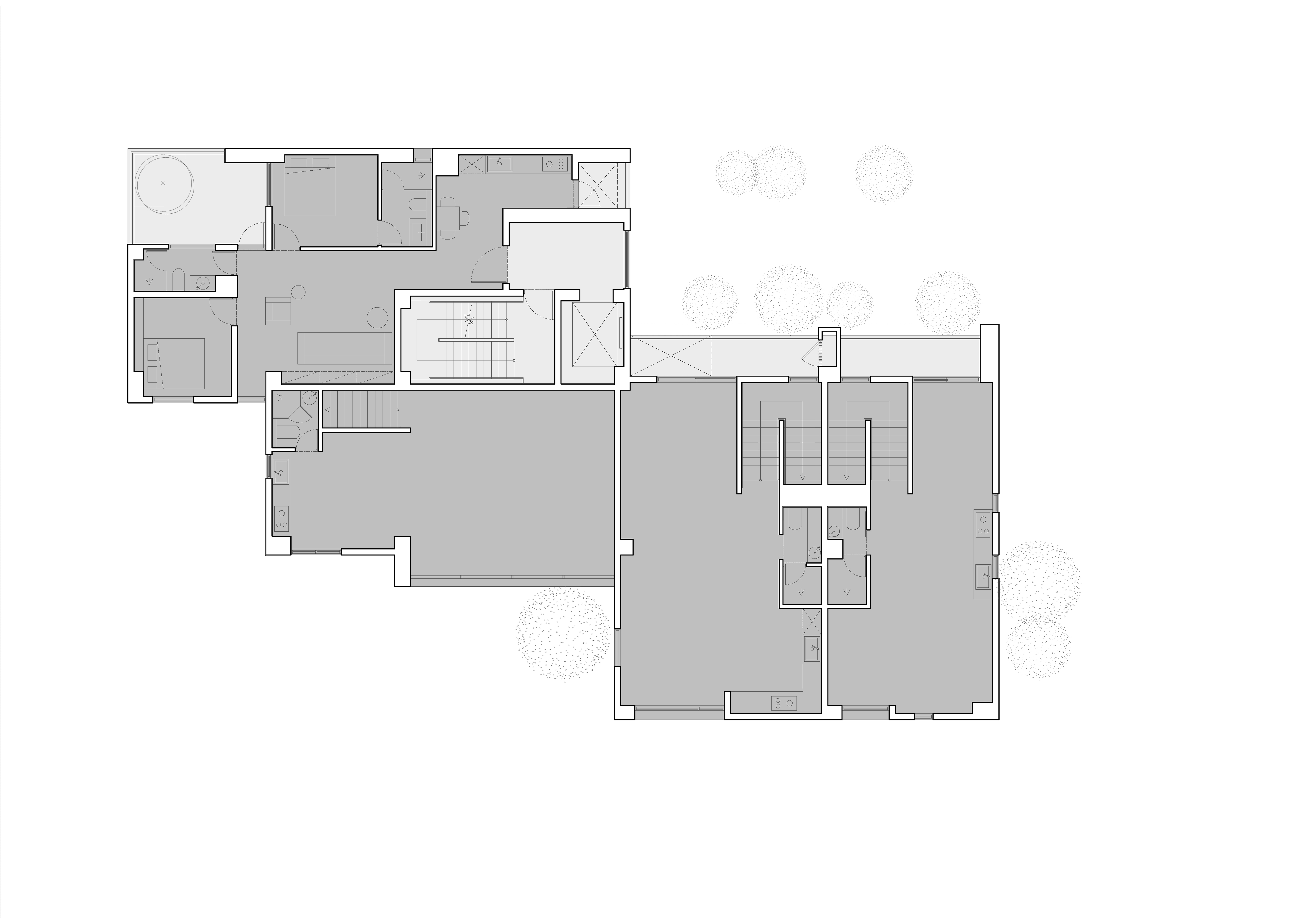
건물은 지하 1층, 지상 6층 규모이며, 남부 타이완 도시에서 흔히 볼 수 있는 혼합형 주거 상가 구조로 이루어져 있다. 거리와 공원을 마주한 전면에는 상업용 복층 가구가 자리하고, 주거 출입구는 보다 조용한 골목 쪽 후면에 배치되어 상업과 주거의 영역을 분리했다.
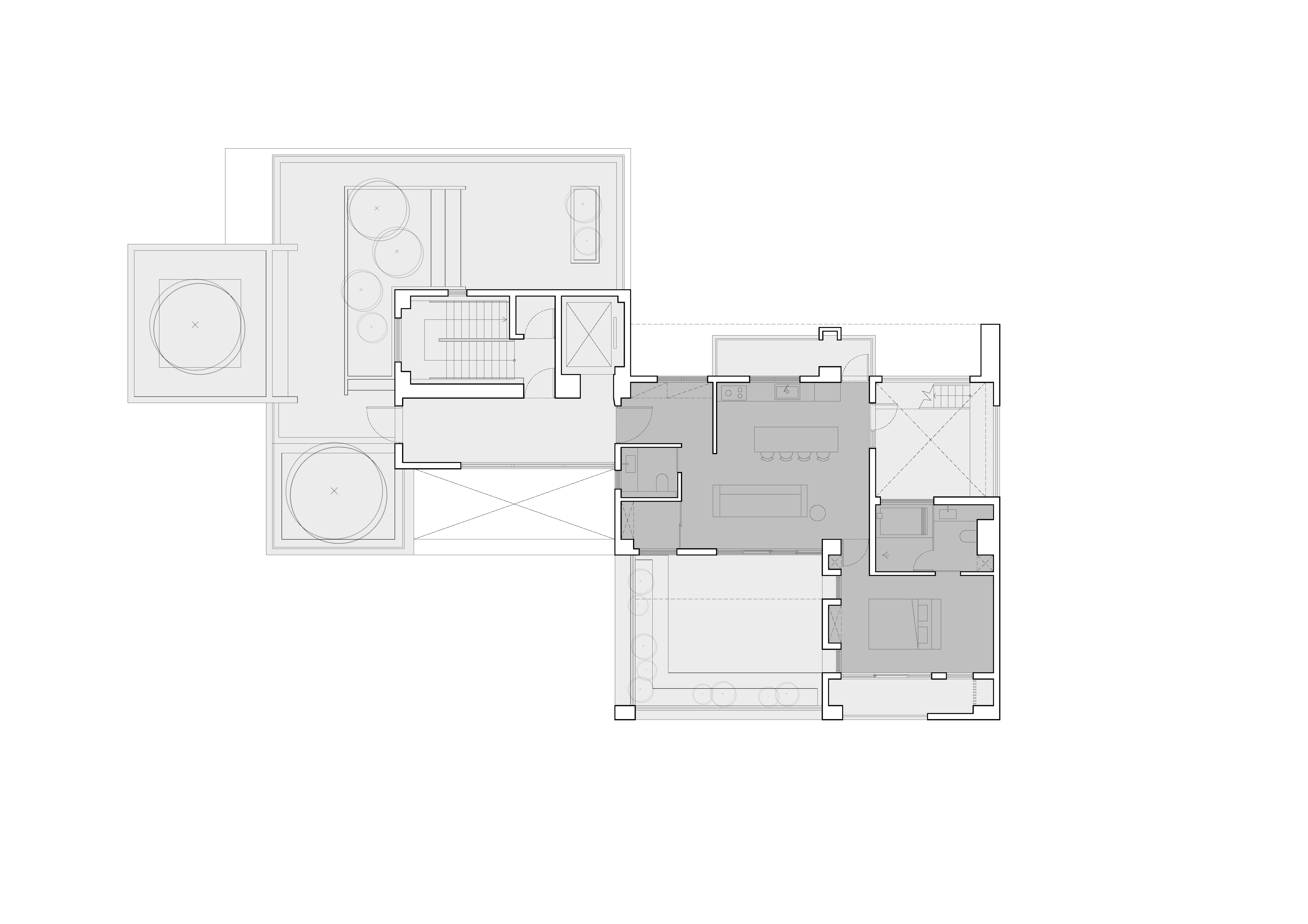
입주자는 골목의 녹지 이완부를 지나 조경된 로비로 진입하며, 이후 계단과 엘리베이터 코어를 통해 상층 주거층(3층 이상)으로 올라간다. 이 수직 동선은 공원을 향해 열려 있으며, 식재와 함께 계획되어 조망과 환기를 동시에 확보한다.
좁은 대지의 효율성을 극대화하기 위해 지하에는 경사형 램프를 통해 주차 공간을 확보했고, 건물의 매스는 1층에서 도로 경계선까지 가득 채우되, 후면은 소폭 후퇴시켜 인접 건물과의 간격을 두었다. 상부 매스는 두 동으로 분절되어 수직 방향으로 약간 어긋나게 배치되었고, 이 비대칭적 오프셋은 입주자 간의 시선과 거리감을 조절하며 부드러운 이웃 관계를 유도한다.
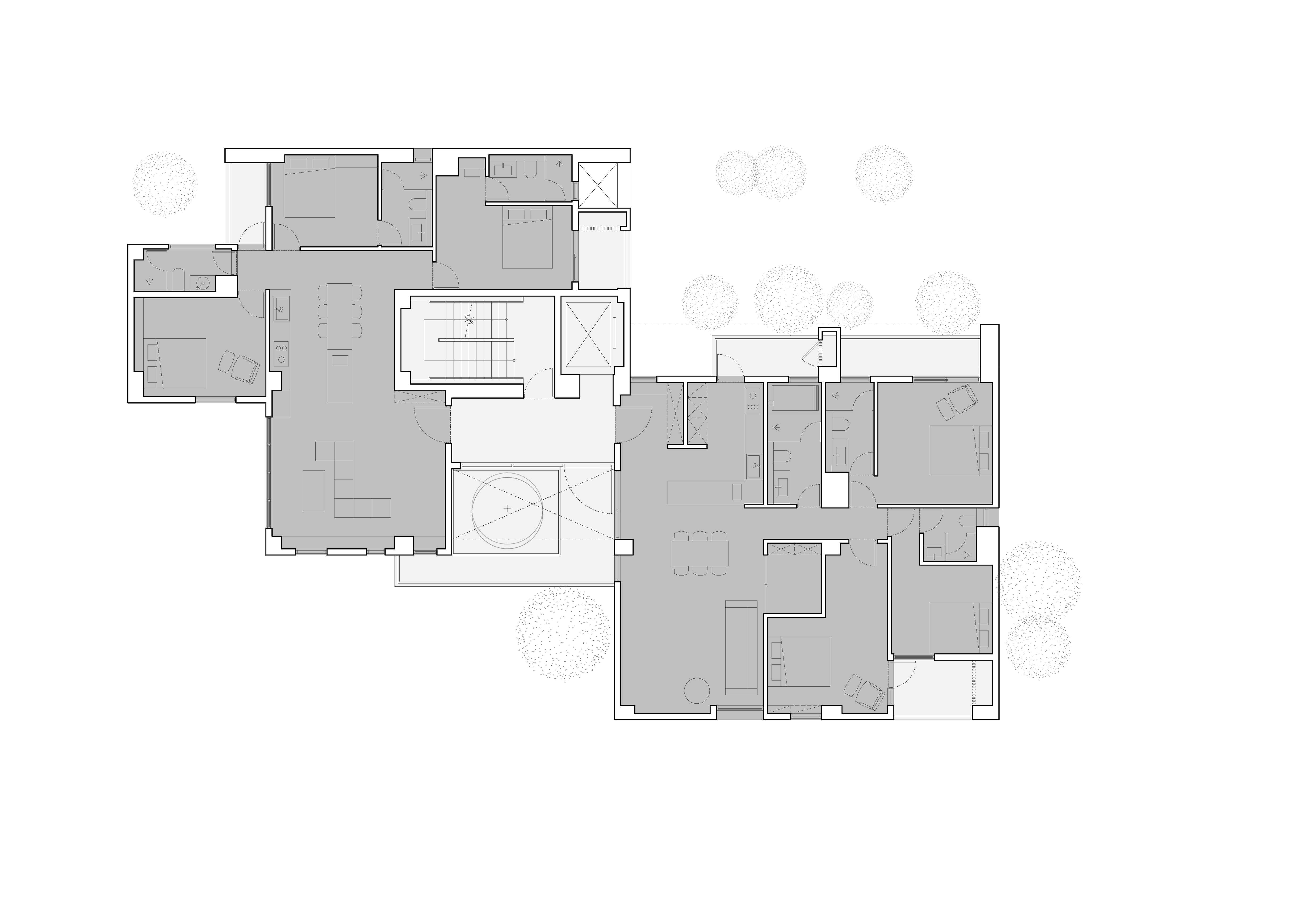
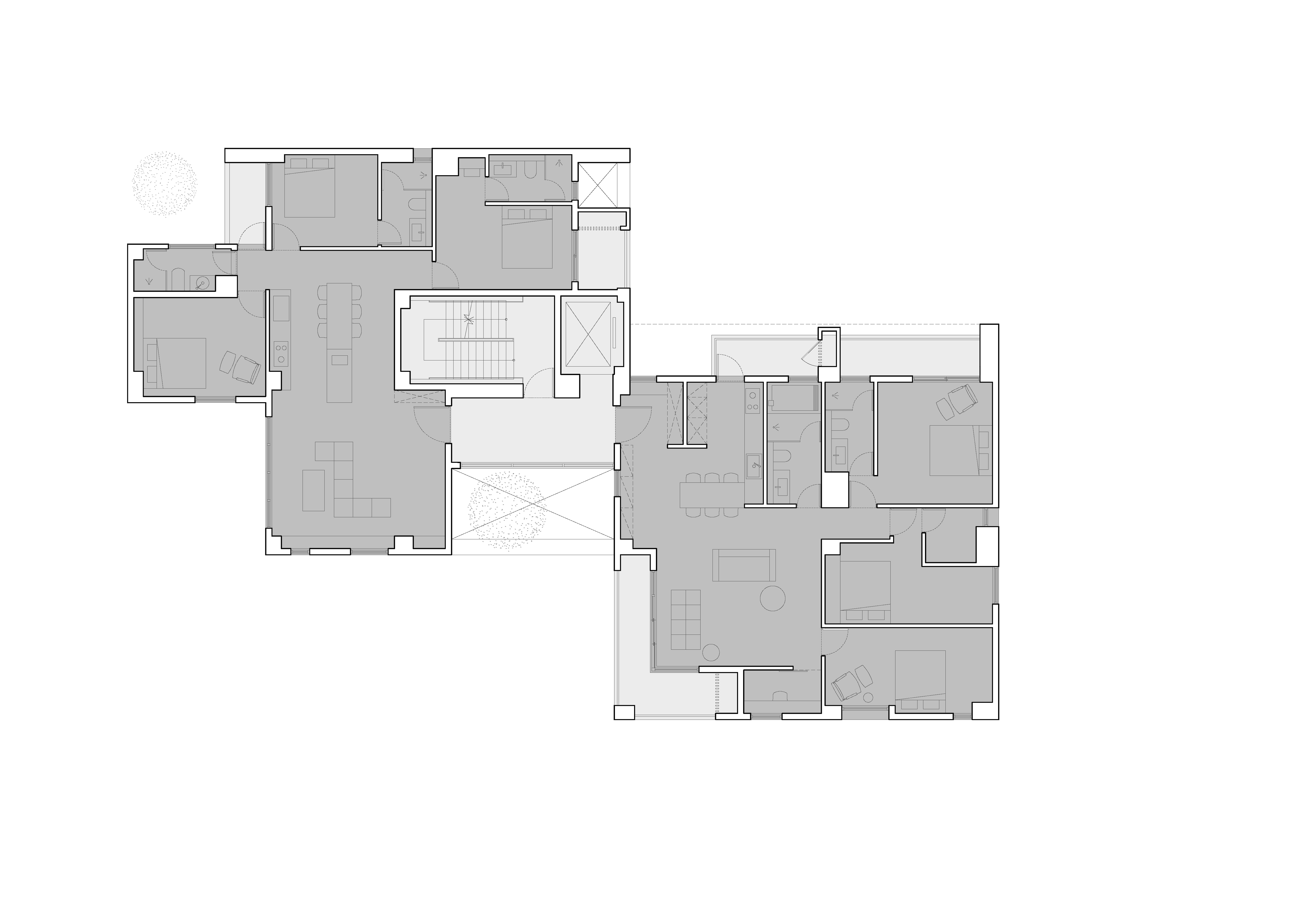
이 프로젝트는 두 층위의 ‘공유 공간’을 구별해 설계했다. 첫 번째는 골목에서 로비로 이어지는 완만한 녹지 접근 동선이다. 두 번째는 상층부의 공용 계단실, 발코니, 중간 녹지 완충 공간으로 구성된 수직적 공유 영역이다. 특히 2세대가 짝을 이루는 유닛 사이에는 나무를 식재해 자연스러운 경계 역할을 하도록 했다. 이 사이 공간은 발코니와 거실이 계단실 방향으로 열리게 하며, 단위 주거가 수평·수직 양방향으로 이웃과 느슨하게 대화하는 구조를 만든다.
3층부터 6층까지는 유닛마다 다른 평면이 적용되었으며, 공유 계단실을 중심으로 전용 침실 공간은 거리와 골목 방향 양끝에 배치된다. 이는 각 세대가 도시와 관계 맺는 방식을 약간씩 다르게 구성하도록 유도하며, 특정한 ‘단독주택의 기억’을 새로운 집합주거 형식으로 재해석하려는 시도다.
기억은 도시의 스케일과 관계되어 있다. 작고 단정한 골목길, 식물이 자라난 울타리, 이웃의 마당을 지나던 어린 시절의 길 위 경험은, 단독주택의 건축적 계층성과 삶의 리듬을 기억한다. 이 프로젝트는 그러한 일상의 밀도와 경계를 공동주택이라는 집합적 구조 안에 번역하는 실험이며, 도시적 삶과 개인의 거주 방식이 만나는 한 방식의 응답이다.






















건축가 비플러스피 아키텍츠(B+P Architects)
위치 타이완, 자이이시, 융안가 20번지
대지면적 501.00㎡
건축면적 298.52㎡
연면적 2,211.23㎡
규모 지하 1층, 지상 7층
준공 2024
대표건축가 Jeff Tsai
사진작가 Studio Millspace
'Architecture Project > Multifamily' 카테고리의 다른 글
| 폭발로 무너진 유산을 되살린 베이하우스 / 다게르 하나 앤 파트너스 (0) | 2025.09.18 |
|---|---|
| 수평으로 펼친 풍경의 집, 얄 리빙 / 에이지아이 아키텍츠 (0) | 2025.09.16 |
| 기하학과 색으로 입면의 리듬을 만든 네덜란드 사회주택 / 모나드노크 (0) | 2025.08.01 |
| 베트남 주거 문제를 해결하는 코리빙 하우스, 클라우드 하우스 / 룸+ 디자인 & 빌드 (0) | 2025.07.23 |
| 테라코타 타일로 지역성을 강조한 포르투갈 학생 기숙사 / 안드레 콩 스튜디오 (0) | 2025.07.22 |
마실와이드 | 등록번호 : 서울, 아03630 | 등록일자 : 2015년 03월 11일 | 마실와이드 | 발행ㆍ편집인 : 김명규 | 청소년보호책임자 : 최지희 | 발행소 : 서울시 마포구 월드컵로8길 45-8 1층 | 발행일자 : 매일



