
힐베르쉼의 뉴자위트(Nieuw-Zuid) 프로젝트는 1950년대 조성된 베란다형 주택과 풍부한 녹지로 구성된 주거지에 다섯 개의 건물을 더해 밀도화를 도모한 개발 사업이다. 기존의 요양시설은 철거되고, 그 자리에 사회주택을 포함한 신축 건물이 들어섰다.

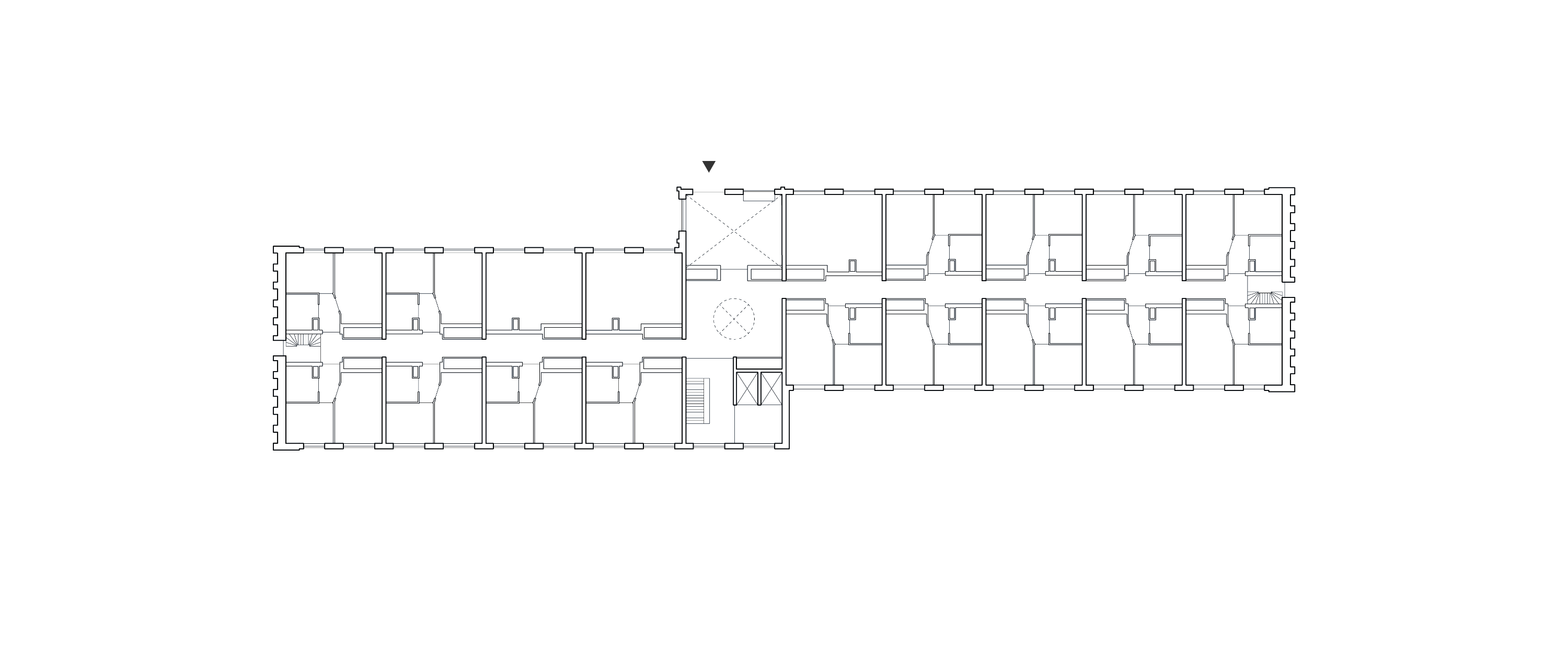
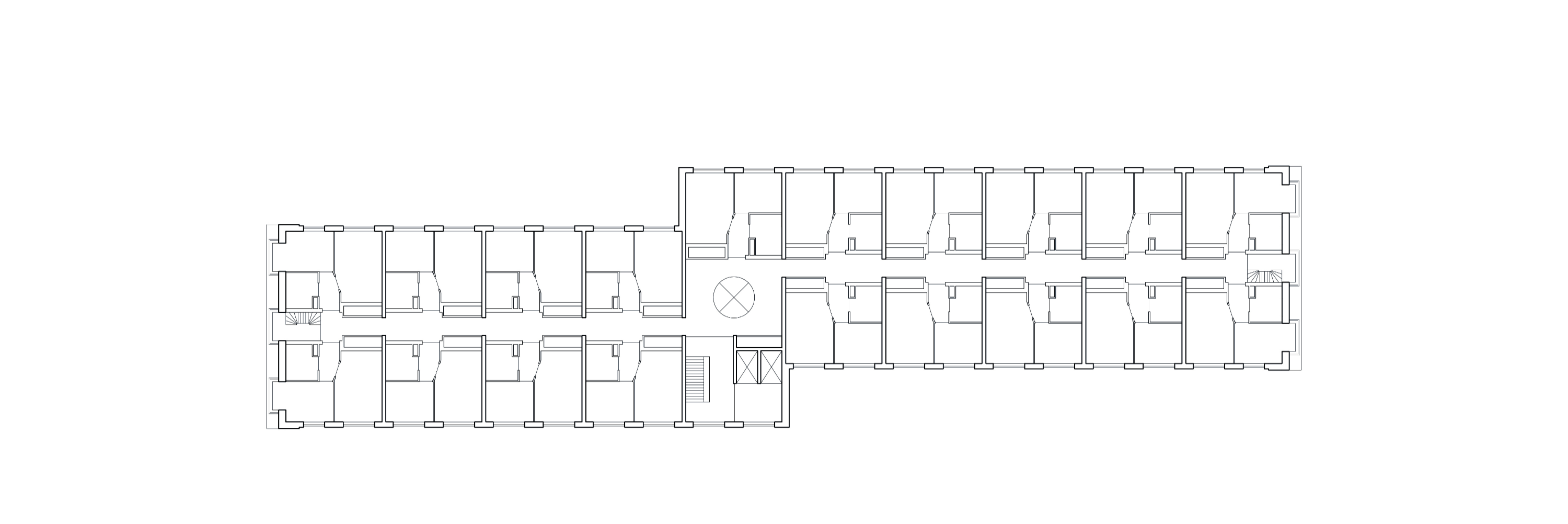
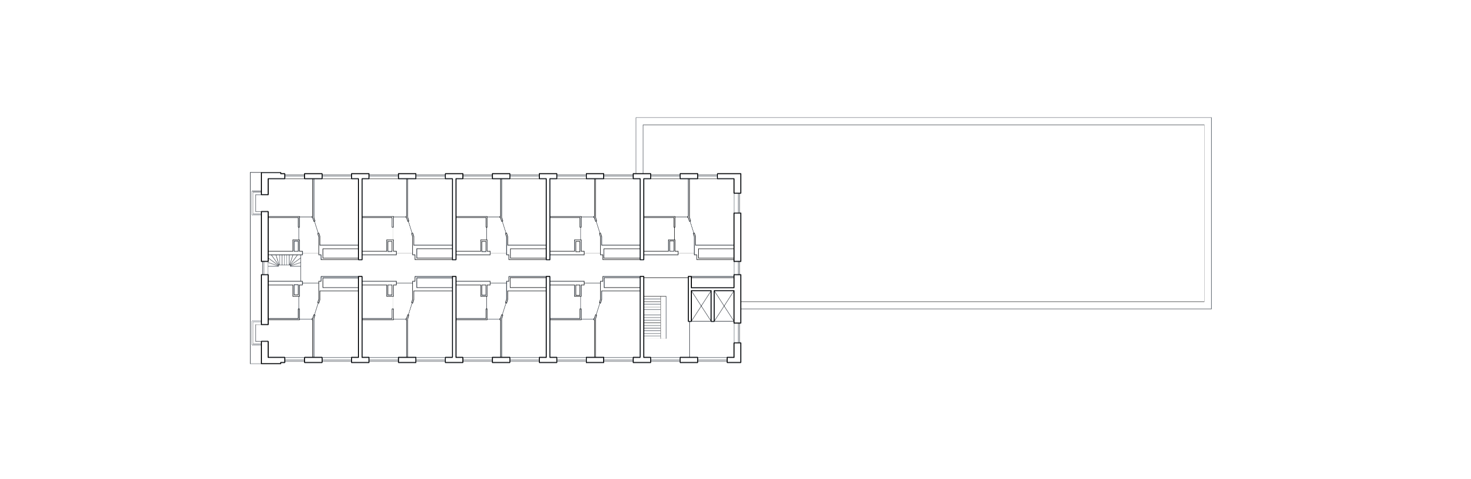
그중 중앙에 위치한 건물은 108세대 규모로 이번 개발의 마지막 단계에 해당하며, 주차장 상부 데크 위에 조성되었다. 길고 좁은 형태의 이 건물은 두 개의 매스로 구성되며, 기존 건물 사이에 정교하게 배치되었다. 건물 간의 조망과 채광을 유지하면서도 가용 공간을 최대한 활용했다.


각 세대는 중앙 홀에서 방사형으로 뻗은 복도를 통해 진입하며, 홀 중심에는 원형 아트리움이 자리한다. 건물의 장변 입면은 밝고 긍정적인 색채, 은은한 입체감, 그리고 풍부한 층위감을 통해 활기를 더한다.

정교하게 마감된 벽돌 디테일은 내구성과 시공 효율을 동시에 고려한 결과물이다. 수직 기둥과 수평 밴드가 교차하는 입면 패턴은 특수 제작된 벽돌로 구성되며, 결절부를 살짝 돌출시켜 입면의 촉각성과 스케일감을 정교하게 조율했다.


주 출입구는 유약 처리된 벽돌과 기하학적 형태의 개구부를 통해 주변과 뚜렷이 구분된다. 건물의 양 끝 입면은 멀리서도 인지 가능한 상징적인 형태로 구성되어, 프로젝트 전체에 독창적인 인상을 만든다.










건축가 모나드노크 (Monadnock)
위치  네덜란드, 힐버섬, 반 헨틀란 2G–2N 
용도 공동주택
연면적 8,032㎡
규모 지하 1층, 지상 7층
준공 2024. 12.
대표건축가 Job Floris, Sandor Naus
프로젝트건축가 Sandor Naus
디자인팀 Marta Cendra, Michael Maminski, 
Filippo Gallone, Matéo White, Blanka Major
구조엔지니어 Schreuders structural engineering, Hengelo
조경 Hosper Landscape Architecture, Haarlem
시공 IAA Architects, Enschede
사진작가 StijnBollaert-SR
'Architecture Project > Multifamily' 카테고리의 다른 글
| 수평으로 펼친 풍경의 집, 얄 리빙 / 에이지아이 아키텍츠 (0) | 2025.09.16 | 
|---|---|
| 골목의 기억으로 짓다, 자이이시 아파트먼트 #1 / 비플러스피 아키텍츠 (0) | 2025.09.16 | 
| 베트남 주거 문제를 해결하는 코리빙 하우스, 클라우드 하우스 / 룸+ 디자인 & 빌드 (0) | 2025.07.23 | 
| 테라코타 타일로 지역성을 강조한 포르투갈 학생 기숙사 / 안드레 콩 스튜디오 (0) | 2025.07.22 | 
| 빌딩 비 / (주)엘케이에스에이 건축사사무소 (0) | 2025.06.18 | 
마실와이드 | 등록번호 : 서울, 아03630 | 등록일자 : 2015년 03월 11일 | 마실와이드 | 발행ㆍ편집인 : 김명규 | 청소년보호책임자 : 최지희 | 발행소 : 서울시 마포구 월드컵로8길 45-8 1층 | 발행일자 : 매일


 
                                                         
                                                         
                                                         
                                                        
