
BLDG.B
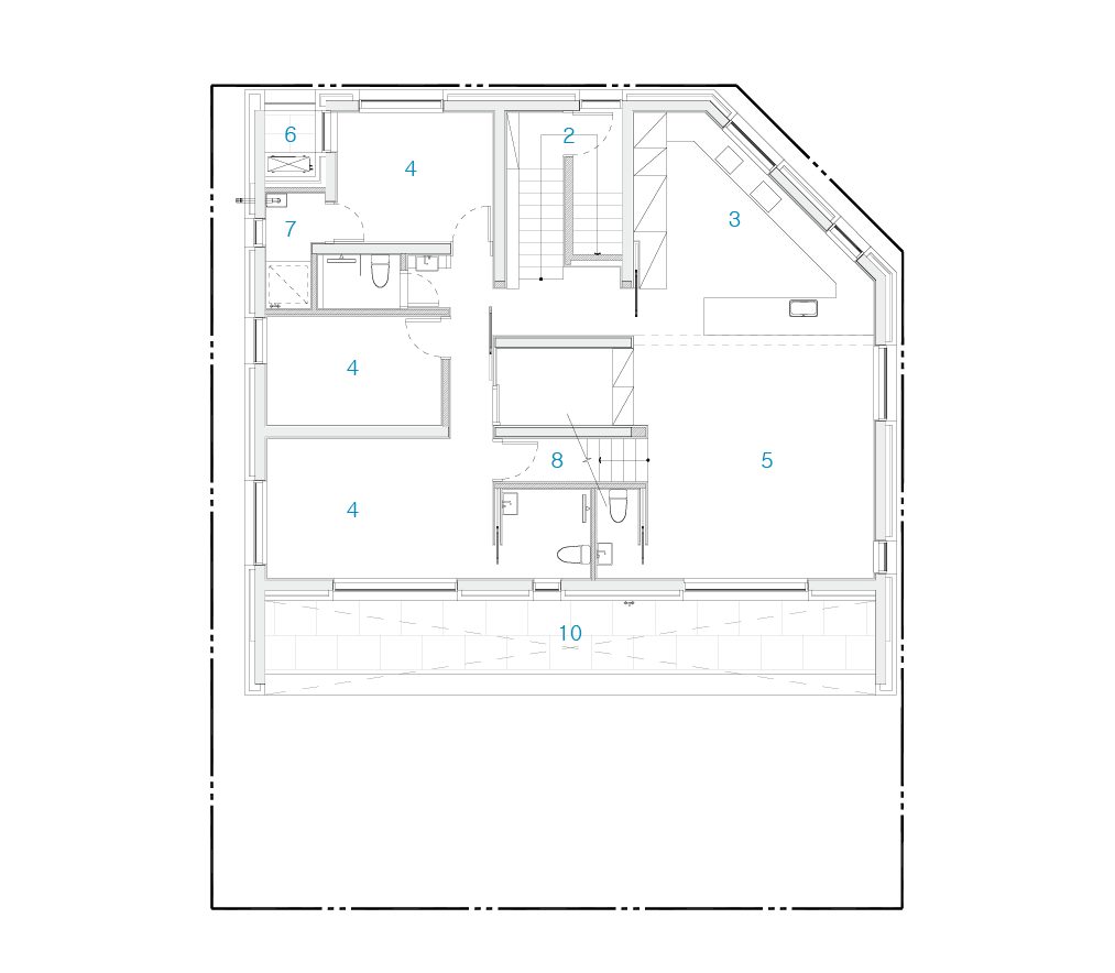
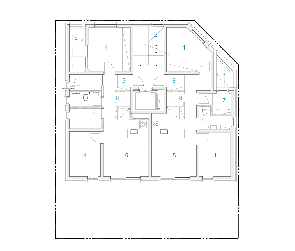
빌딩 비는 택지 개발 지구에 세워진 상가주택이다. 블록의 모서리에 위치한 대지에 따라, 건축가는 매스를 조형적으로 눈에 띄는 형태로 계획했다. 빌딩 비는 가각된 평면의 모서리가 경사 지붕과 이어지며 붉은 보석같은 다면체의 모습을 하고 있다. 붉은 벽돌이 지닌 강한 채도와 대조되는 1층부는 밝은 화강석이 사용하여 적벽돌과 화강석의 조합이 자아내는 생동감 있는 풍경을 만든다. 개구부의 창대와 인방은 1층부에 사용된 화강석을 통해 입면에 약간의 활기와 리듬감을 더했다.








위치 경기도 성남시 수정구 고등동
용도 근린생활시설, 다가구주택
대지면적 251.30㎡
건축면적 149.17㎡
연면적 401.81㎡
규모 지상 4층
건폐율 59.36%
용적률 159.89%
구조엔지니어 라임구조
기계엔지니어 주신MEC
전기엔지니어 엘림전설
소방엔지니어 주신MEC, 엘림전설
시공 (주)떼오하우스종합건설
발주자 백명진
사진작가 구의진
해당 프로젝트는 건축문화 2025년 6월호(Vol. 529)에 게재되었습니다.
The project was published in the June, 2025 recent projects of the magazine(Vol. 529).
JUNE 2025 : vol. 529
Contents : RECORDS: RECENT PROJECT Library Wander / MMKM associates월계도서관 리모델링 / (주)엠엠케이엠 건축사사무소 Gajeong 2 dong Community Service Center / Urbanfactory + IPA가정2동 행정복지센터 / 건축사사무소 도시
anc.masilwide.com
'Architecture Project > Multifamily' 카테고리의 다른 글
| 베트남 주거 문제를 해결하는 코리빙 하우스, 클라우드 하우스 / 룸+ 디자인 & 빌드 (0) | 2025.07.23 |
|---|---|
| 테라코타 타일로 지역성을 강조한 포르투갈 학생 기숙사 / 안드레 콩 스튜디오 (0) | 2025.07.22 |
| 방앗간 모양을 본떠 만든, 루비콘 공동주택 / 앨리슨 브룩스 아키텍츠 (0) | 2025.06.12 |
| 환경에 반응하는 입면을 지닌 공동주택 / 프란타 그룹 (0) | 2025.06.02 |
| 레이리아 주거 단지 / 부레아우 드스 메자르시텍투르스 (0) | 2025.05.26 |
마실와이드 | 등록번호 : 서울, 아03630 | 등록일자 : 2015년 03월 11일 | 마실와이드 | 발행ㆍ편집인 : 김명규 | 청소년보호책임자 : 최지희 | 발행소 : 서울시 마포구 월드컵로8길 45-8 1층 | 발행일자 : 매일



