
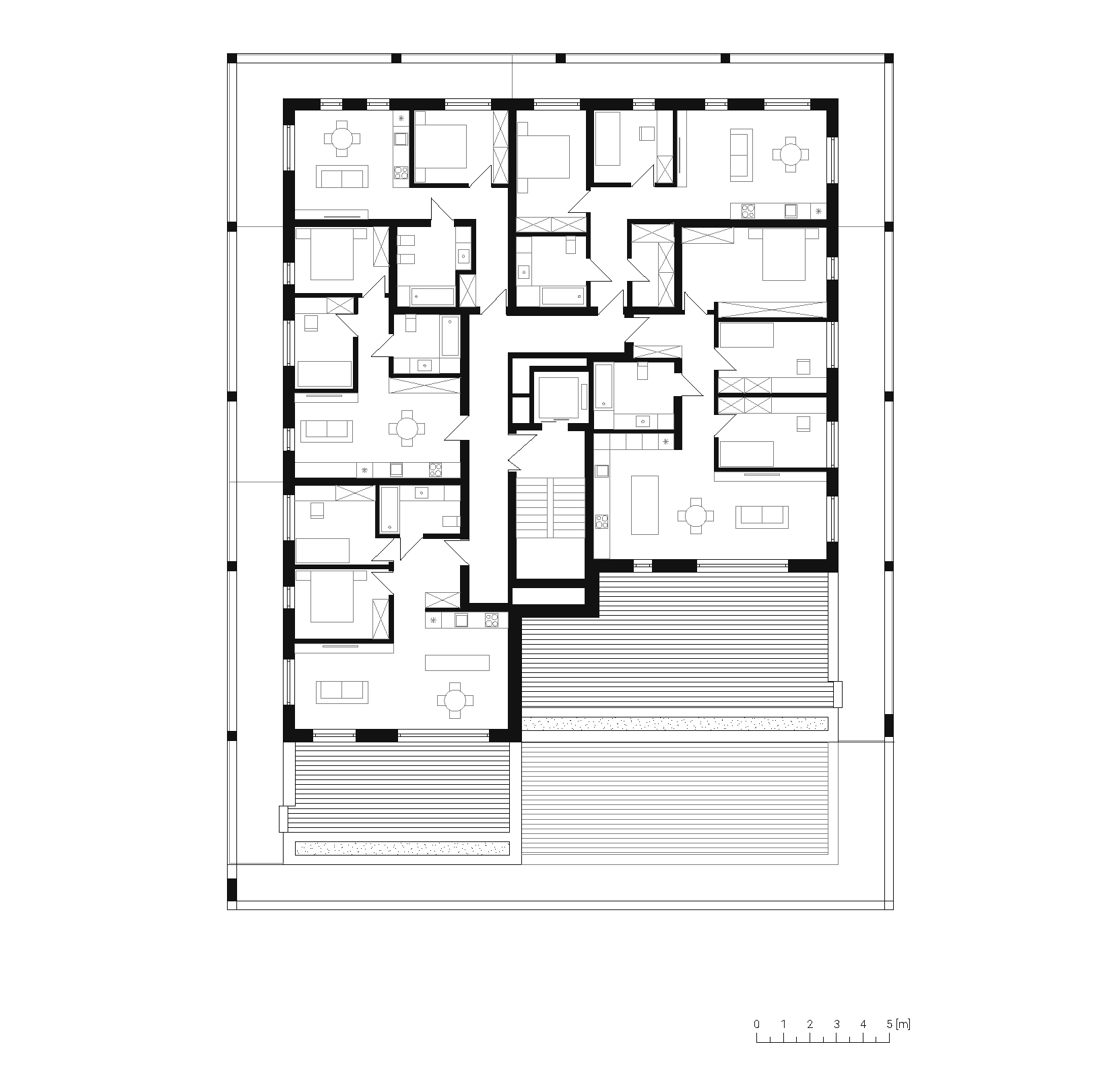
Żorro는 주어진 장소와 맥락 속에서 기능적, 미적인 기준과 공간의 수준을 향상시키고자 하는 건축의 기본 원칙에서 출발한 프로젝트이다. 기존 프리패브 주택단지 인근에 위치한 이 건물은, 당시 전형적인 건물의 체적을 변형하고 고유한 건축적 개성을 부여함으로써 주변 환경과 차별화되는 존재로 설계되었다. 이는 해당 지역과 도시 일부의 향후 변화를 이끄는 새로운 모델이 되고자 한다. 설계의 핵심은 거주자의 삶의 질을 높이는 데 있으며, 전형적인 발코니 대신 자연광, 공기, 녹지, 주변 공간과 능동적으로 연결된 실외 공간을 제공하였다. 불필요한 마감재를 배제하고, 절감된 자원을 활용해 거실 또는 여러 개의 실에 필적하는 규모의 테라스를 마련하였다. 이로 인해 각 세대의 실사용 면적은 내부 면적 대비 30~50%까지 확대된다. 실외 공간의 깊이와 지붕의 비례, 검은색 외장재는 시간대와 계절 변화에 반응하도록 설계되었다. 여름에는 햇빛이 아침과 저녁에만 입면을 비추며, 겨울에는 낮은 태양 고도에 따라 하루 종일 테라스에 열을 전달한다. 이는 단순한 외피를 넘어 거주 환경의 쾌적성과 밀접하게 연결된 건축적 장치로 기능한다.








건축가 프란타 그룹(Franta Group)
위치 폴란드, 조리, 한들로바
용도 공동주택
건축면적 610.16㎡
연면적 5,720.26㎡
규모 지하 1층, 지상 9층
준공 2023
대표건축가 Maciej Franta
발주자 Blockhouse
사진작가 Adam Then
'Architecture Project > Multifamily' 카테고리의 다른 글
| 빌딩 비 / (주)엘케이에스에이 건축사사무소 (0) | 2025.06.18 |
|---|---|
| 방앗간 모양을 본떠 만든, 루비콘 공동주택 / 앨리슨 브룩스 아키텍츠 (0) | 2025.06.12 |
| 레이리아 주거 단지 / 부레아우 드스 메자르시텍투르스 (0) | 2025.05.26 |
| 도시와 산의 형태를 담은 주택, 나비집 / 투닷건축사사무소 주식회사 (0) | 2025.05.21 |
| 기후 적응을 위해 바깥으로 열린 스페인 공동주택 / 카를레스 엔리크 스튜디오 (0) | 2025.05.13 |
마실와이드 | 등록번호 : 서울, 아03630 | 등록일자 : 2015년 03월 11일 | 마실와이드 | 발행ㆍ편집인 : 김명규 | 청소년보호책임자 : 최지희 | 발행소 : 서울시 마포구 월드컵로8길 45-8 1층 | 발행일자 : 매일



