
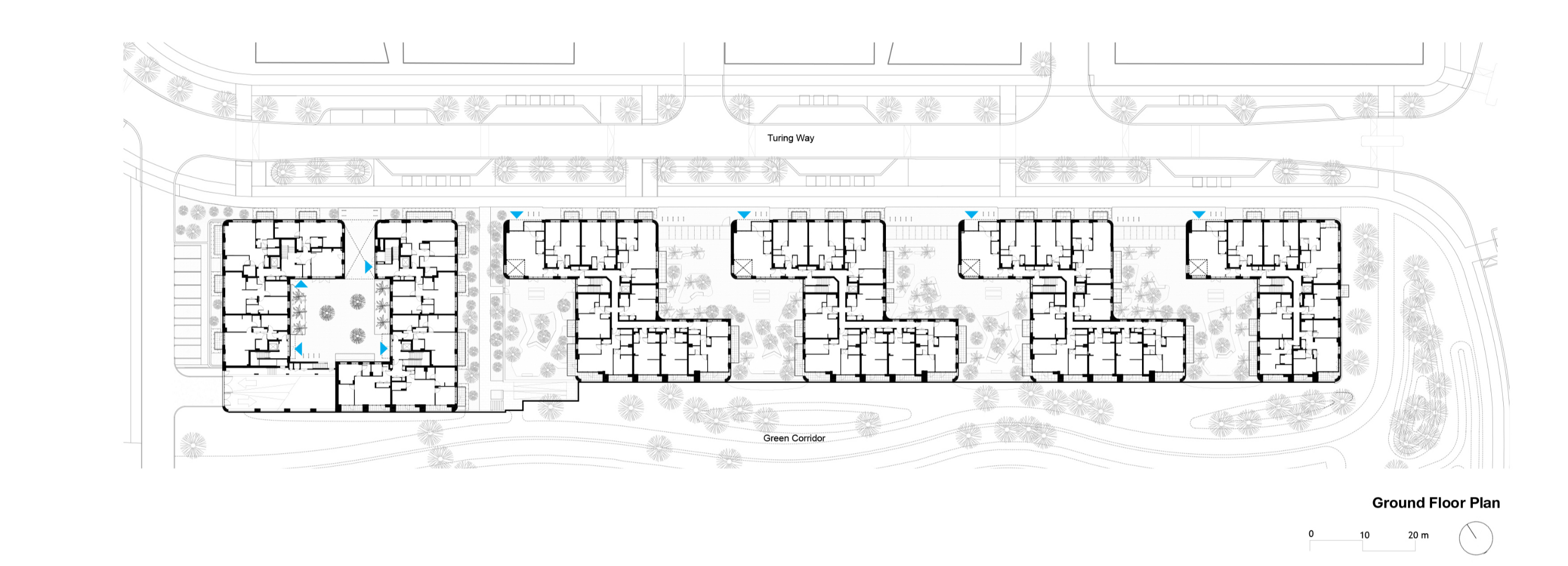
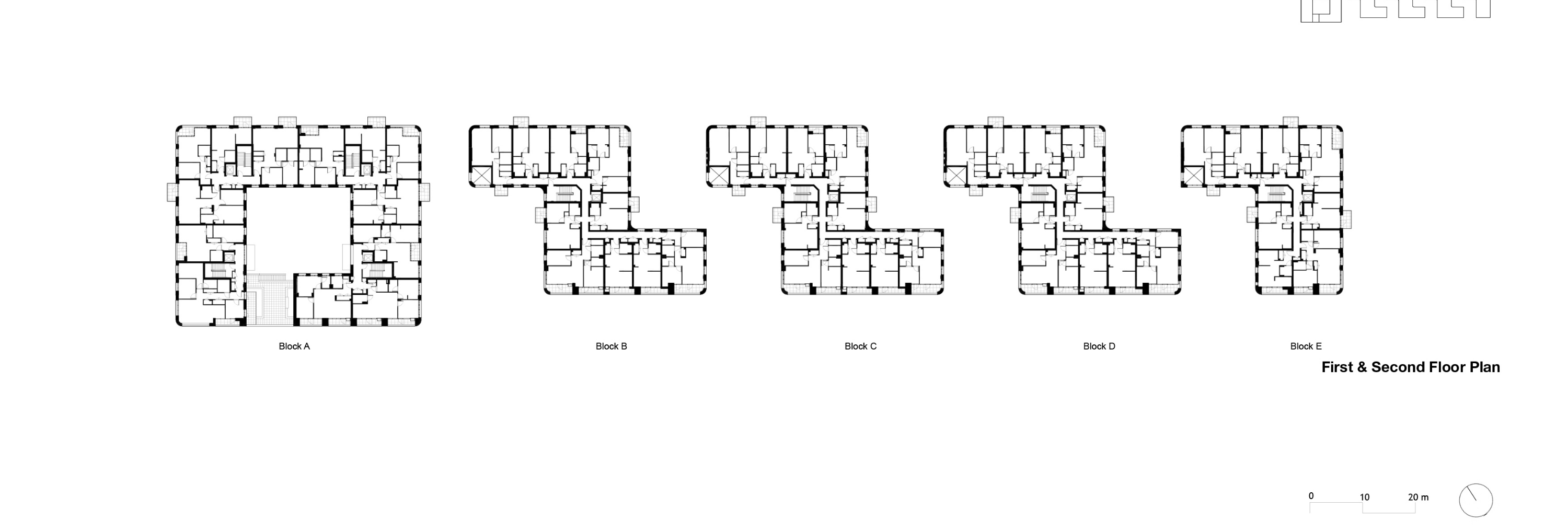
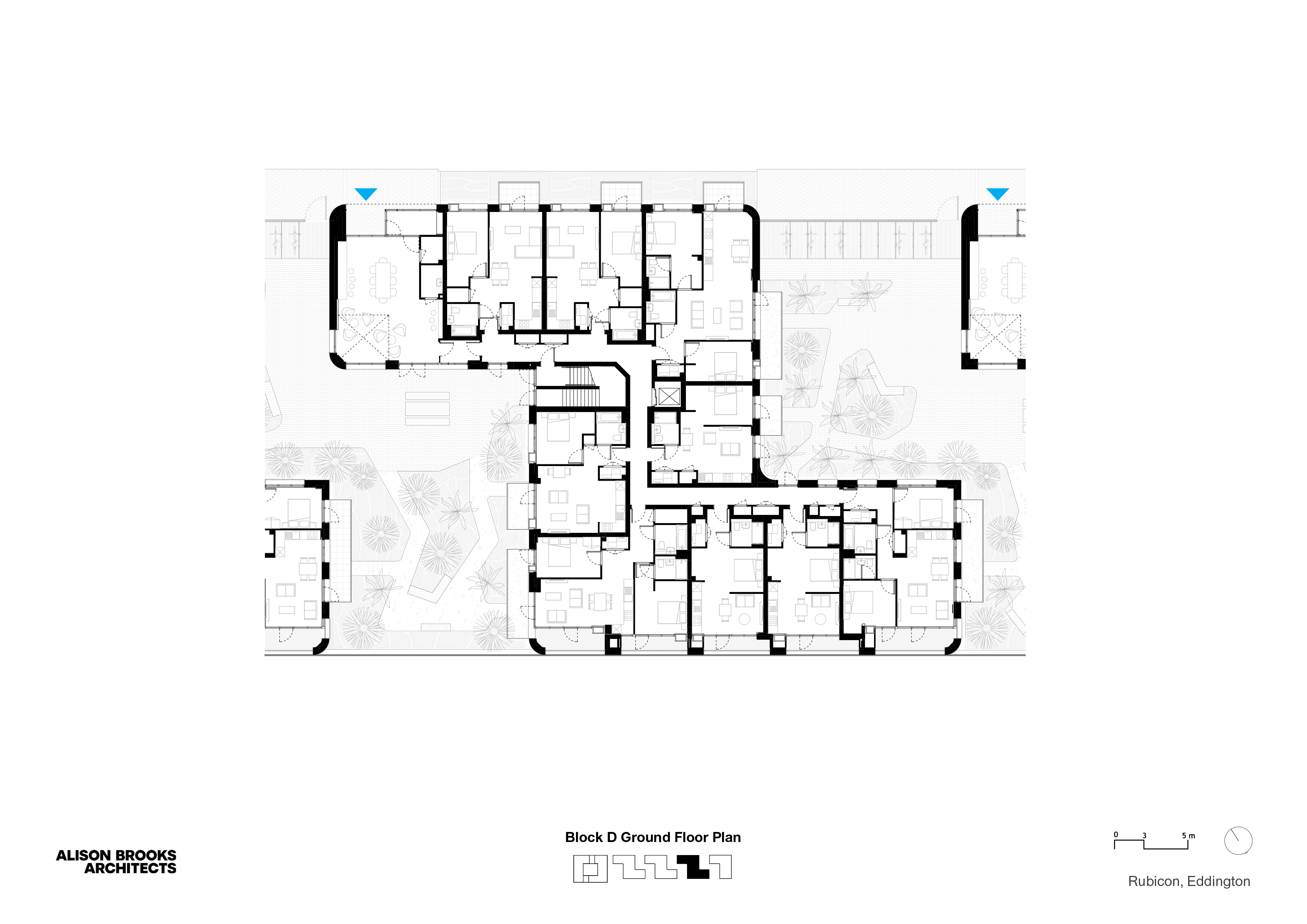
Rubicon, Cambridge
이 프로젝트는 캠브리지 북서부 150헥타르 규모 에딩턴 마스터플랜의 도시 경계를 정의하며 자전거 중심의 이동성을 기반으로 한 새로운 주거 유형을 제시한다. 캠브리지 대학교와 The Hill Group을 위해 설계된 이 제로 탄소 개발은 창고형 로프트와 대학 캠퍼스 형태를 융합했으며, 코워킹 공간, 햇빛 가득한 중정, 자전거 친화적 아파트를 포함한다. 0.74헥타르 부지에 186가구가 들어서며, 5개의 S자 및 L자형 건물로 구성된다.


건축물은 유리 벽돌, 곡선 모서리, 물결치는 지붕 등 독특한 건축 언어로 영속성과 다양성을 표현하며, 도시와 자연 경관을 연결하는 중정 공간이 조성되었다. 19세기 창고 및 방앗간 양식을 참고해 역사적 연속성을 강조하고, 캠브리지 지역 풍경을 반영하는 조각적인 지붕선이 특징이다.





남향으로 깊게 들어간 발코니는 태양광 차양 역할을 하며, 각 동의 반개방적인 코워킹 공간은 입주민 간 교류와 사회적 모임을 활성화한다.











건축가 앨리슨 브룩스 아키텍츠 (Alison Brooks Architects)
위치 영국, 케임브리지
EMP엔지니어 Whitecode Consulting
'Architecture Project > Multifamily' 카테고리의 다른 글
| 테라코타 타일로 지역성을 강조한 포르투갈 학생 기숙사 / 안드레 콩 스튜디오 (0) | 2025.07.22 |
|---|---|
| 빌딩 비 / (주)엘케이에스에이 건축사사무소 (0) | 2025.06.18 |
| 환경에 반응하는 입면을 지닌 공동주택 / 프란타 그룹 (0) | 2025.06.02 |
| 레이리아 주거 단지 / 부레아우 드스 메자르시텍투르스 (0) | 2025.05.26 |
| 도시와 산의 형태를 담은 주택, 나비집 / 투닷건축사사무소 주식회사 (0) | 2025.05.21 |
마실와이드 | 등록번호 : 서울, 아03630 | 등록일자 : 2015년 03월 11일 | 마실와이드 | 발행ㆍ편집인 : 김명규 | 청소년보호책임자 : 최지희 | 발행소 : 서울시 마포구 월드컵로8길 45-8 1층 | 발행일자 : 매일



