
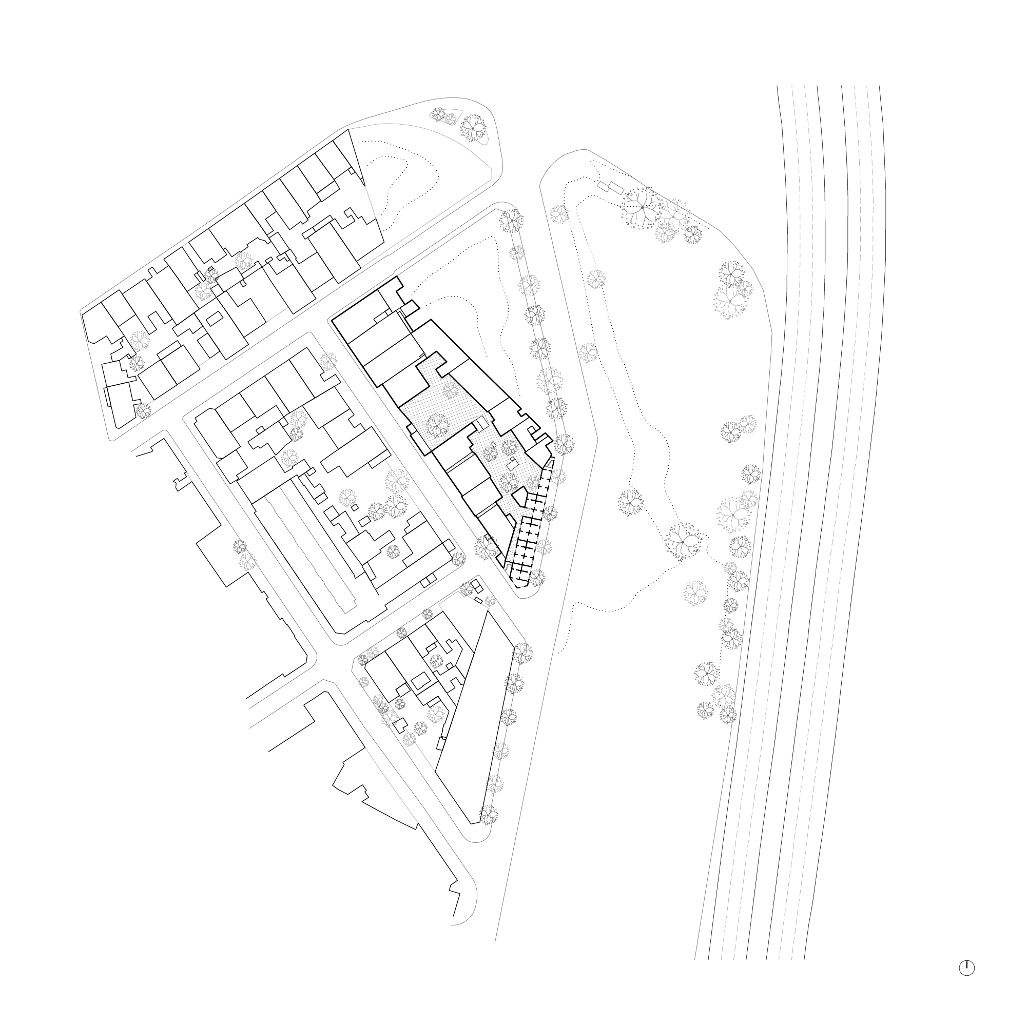
이 프로젝트는 팔마 외곽 엘 콜 덴 라바사 지역의 채석장 터에 조성된 11세대 주거단지로, 불규칙한 도시 조직을 정돈하고 기후 위기에 대응하기 위해 설계되었다. 대지는 루트 거리와 다윈 거리 교차점에 위치한 좁고 코너에 자리한 형태로, 기존의 지질 조건을 존중하는 동시에 새로운 주거 유형을 제안하고자 했다.


건물은 외부는 규칙적인 컴팩트 매스로 정렬되고, 내부는 입체적인 조망과 자연 채광, 통풍을 확보했다. 이러한 형태 전략은 건물의 수동적 성능을 높이고, 다양한 깊이의 중정과 음영 공간을 통해 외부 환경과의 상호작용을 강화했다.



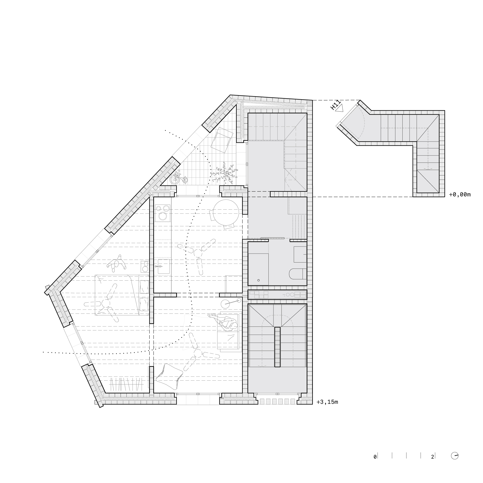
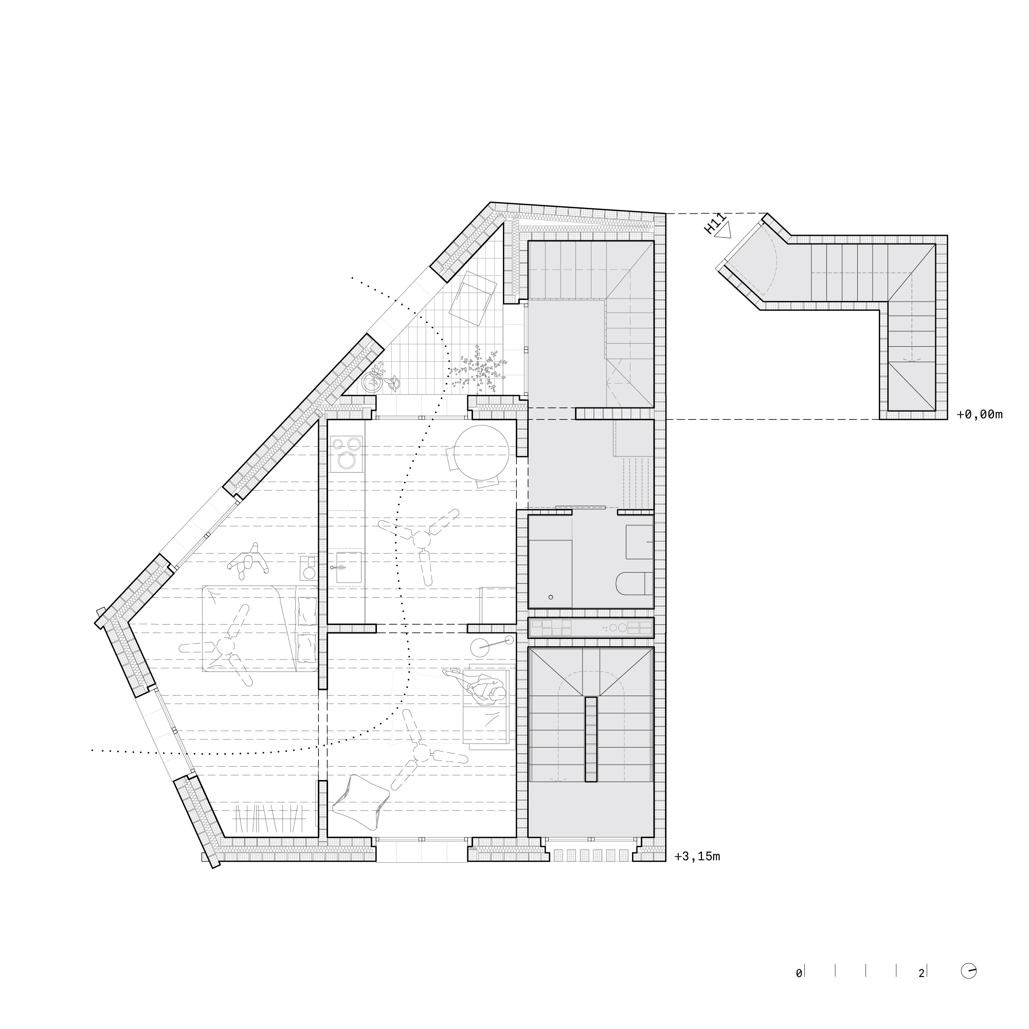
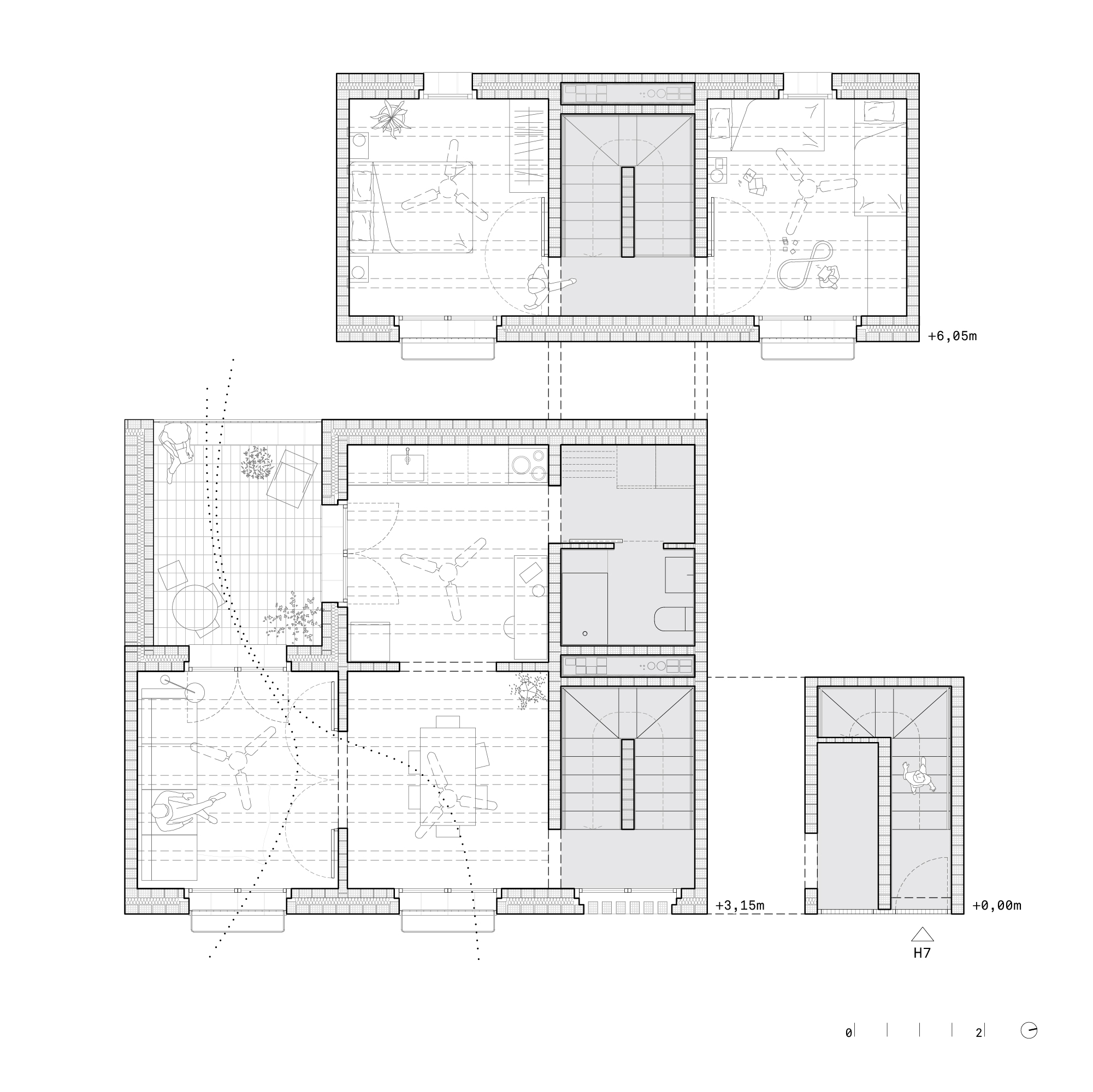
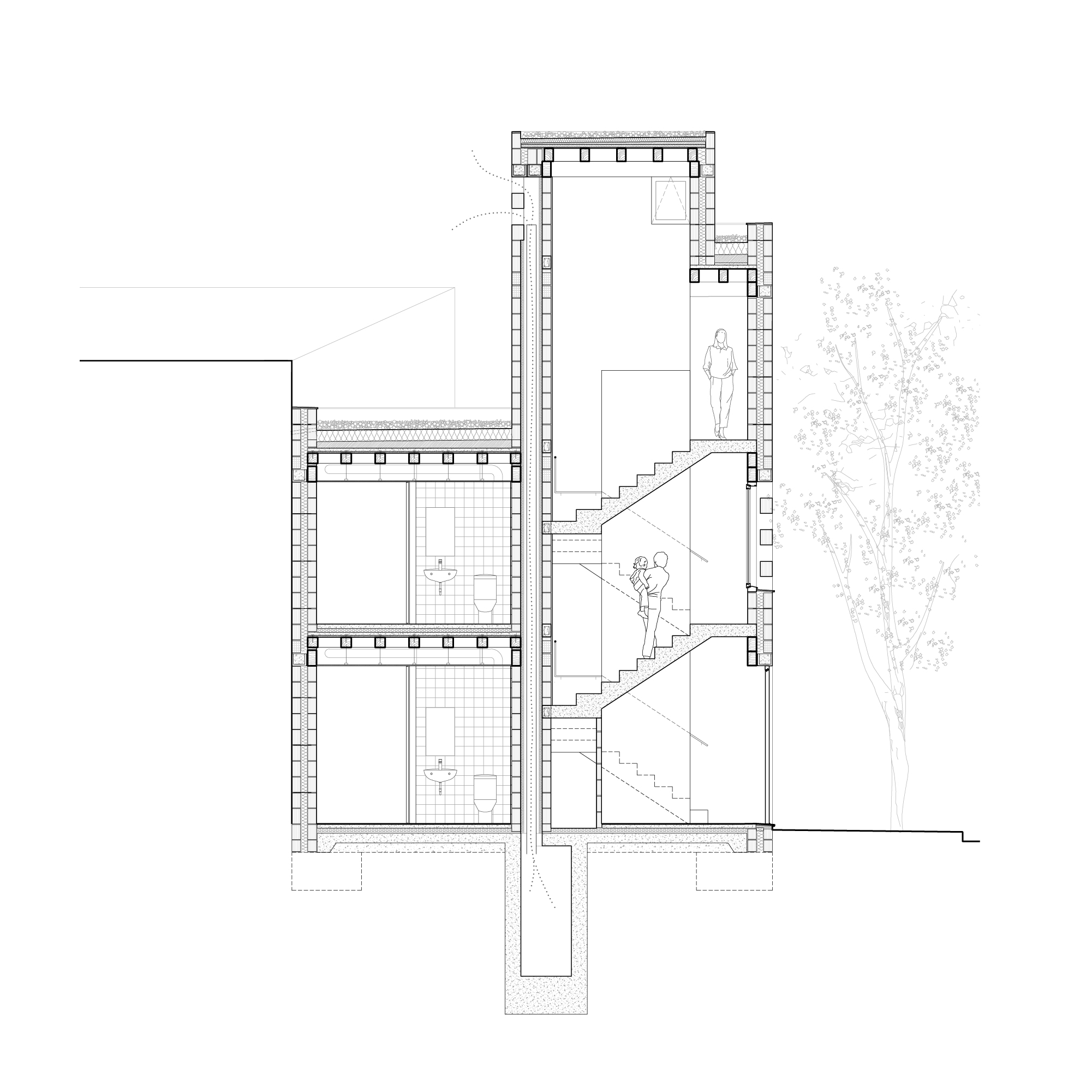
1층 유닛에는 투수성 재료를 사용해 마당을 포장하고, 2층 유닛에는 개별 테라스가 마련되었으며, 복도 없이 연결되는 평면 구성으로 실내 면적의 활용도를 높였다.




1~3개의 침실로 구성된 기본형 유닛은 유연한 공간 활용이 가능하며, 주방은 배관 최적화를 위해 욕실과 인접하게 배치되었다. 맞통풍을 유도하는 창호 배치, 천창을 통한 열 배출, 후퇴된 서측 매스를 통한 직사광 차단 등 수동적 기후 전략을 도입하여 냉방 에너지를 절감했다. 또한 천장형 선풍기 외에는 기계식 냉방 설비가 필요 없을 정도로 쾌적한 환경이 구현되었다. 백색 석회 마감재는 외피 과열을 줄이고, 지하 갤러리는 기술 설비의 유지와 수동 냉방을 동시에 가능하게 했다. 구조는 지역산 점토 블록 내력벽과 프리패브 목재 슬래브로 구성되며, 토사를 충진한 벽체는 단열과 차음 성능을 향상시켰다. 모든 세대는 단독 출입이 가능하며, 엘리베이터 없이도 생활이 가능한 지속 가능한 테라스 하우스형 주거 모델을 제시한다.














건축가 카를레스 엔리크 스튜디오(Carles Enrich Studio)
위치 스페인, 마요르카, 팔마
용도 공동주택
프로젝트면적 832.64㎡
규모 지상 3층
시공기간 2022 - 2024
시공 Siles Construcciones
사진작가 Adrià Goula
'Architecture Project > Multifamily' 카테고리의 다른 글
| 레이리아 주거 단지 / 부레아우 드스 메자르시텍투르스 (0) | 2025.05.26 |
|---|---|
| 도시와 산의 형태를 담은 주택, 나비집 / 투닷건축사사무소 주식회사 (0) | 2025.05.21 |
| 물결치는 콘크리트 발코니를 두른, 공동주택 리모델링 / 플러스 원 아키텍츠 (0) | 2025.04.28 |
| 17 루에 데스 콰트레-케미네에스 레지던스 / 데켈레테 아르키텍투레 (0) | 2025.04.17 |
| 코스트라인 빌라즈 / 크라겔지 아키텍츠 (0) | 2025.04.10 |
마실와이드 | 등록번호 : 서울, 아03630 | 등록일자 : 2015년 03월 11일 | 마실와이드 | 발행ㆍ편집인 : 김명규 | 청소년보호책임자 : 최지희 | 발행소 : 서울시 마포구 월드컵로8길 45-8 1층 | 발행일자 : 매일



