
프라하 누슬레 지역 Boleslavova 3번지에 위치한 코트야드 갤러리형 공동주택이 리노베이션을 통해 재탄생한 프로젝트이다. 기존 건물은 19세기 말부터 20세기 초 사이에 지어진 것으로, 역사적 정체성을 유지하면서도 현대적 거주 방식에 맞는 새로운 평면과 공용 공간으로 재구성되었다. 총 15세대가 마련되었으며, 모든 유닛은 프라하 누슬레 밸리를 조망할 수 있다.




건물 외관은 파스텔 톤의 실험적 색상을 사용하여 현대적 감각을 부여하였으며, 외부 복도였던 갤러리는 각 세대의 프라이빗 발코니로 전환되었다. 중정은 아치형 천장, 체스 패턴 타일, 금속 난간을 통해 시각적 리듬을 형성하고 있으며, 1층 세대에는 프론트 가든을 배치하여 중정과의 연계를 강조하였다. 지붕은 콘크리트 타일로 마감되었고, 큰 스튜디오 창문을 통해 채광을 확보하였다.



공용부의 중심에는 곡선형 원형 계단이 배치되어 있으며, 브러시 마감과 보호 코팅을 통해 질감을 살렸다. 계단을 따라 설치된 라인 조명은 공간의 흐름을 강조하며, 계단실은 전체 공간에서 강한 시각적 중심이 된다.


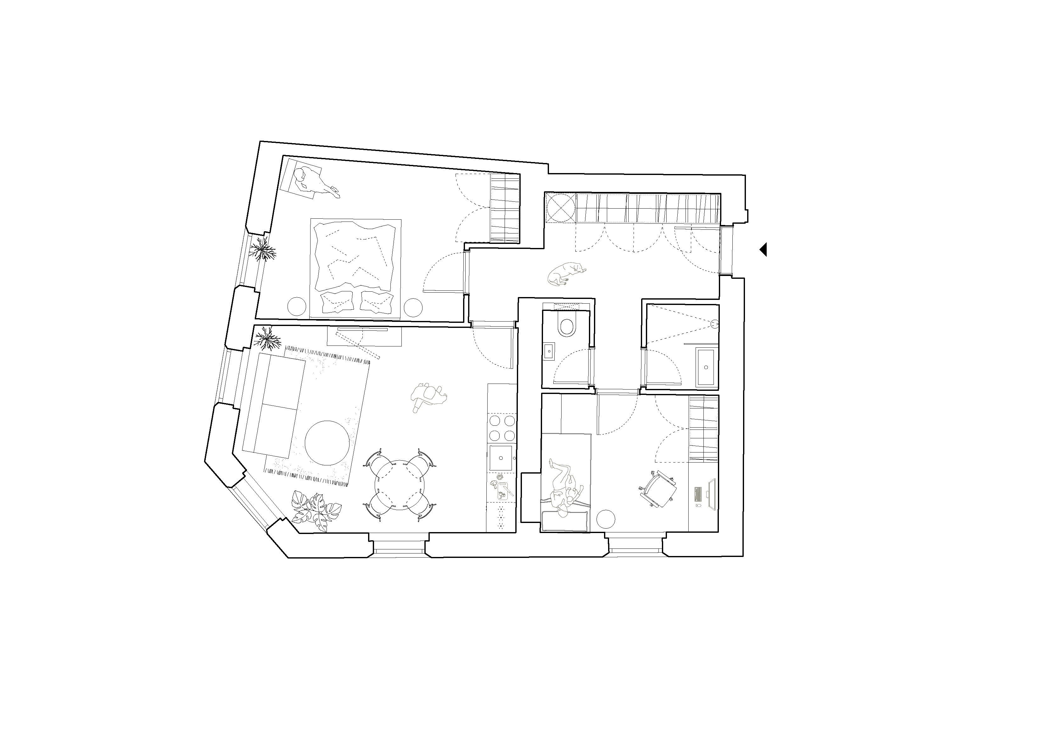
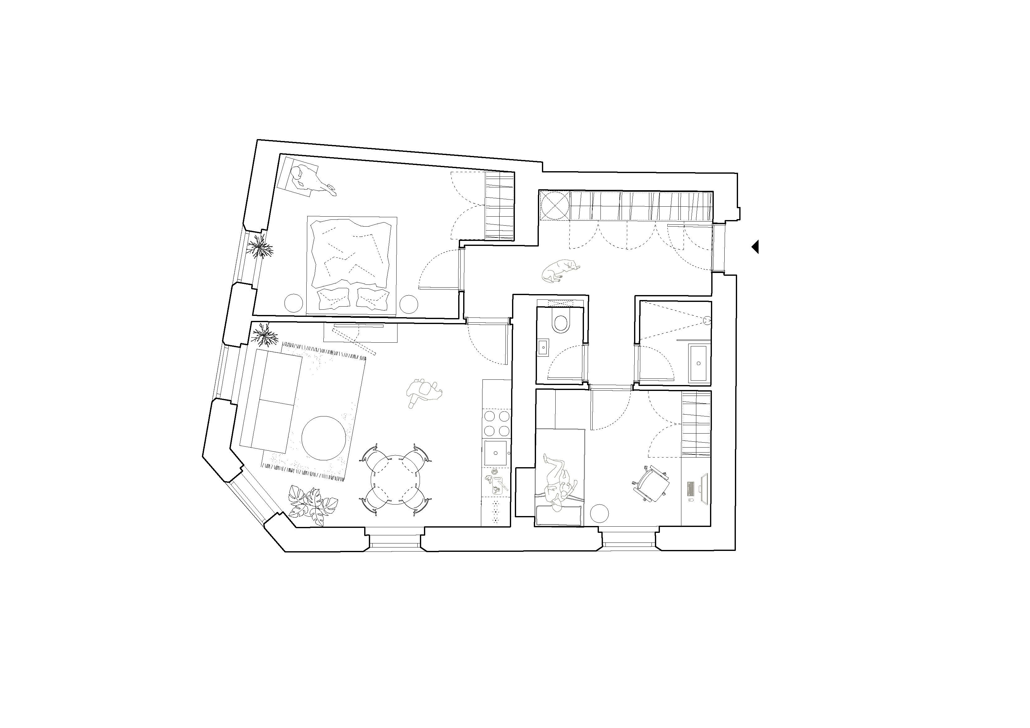
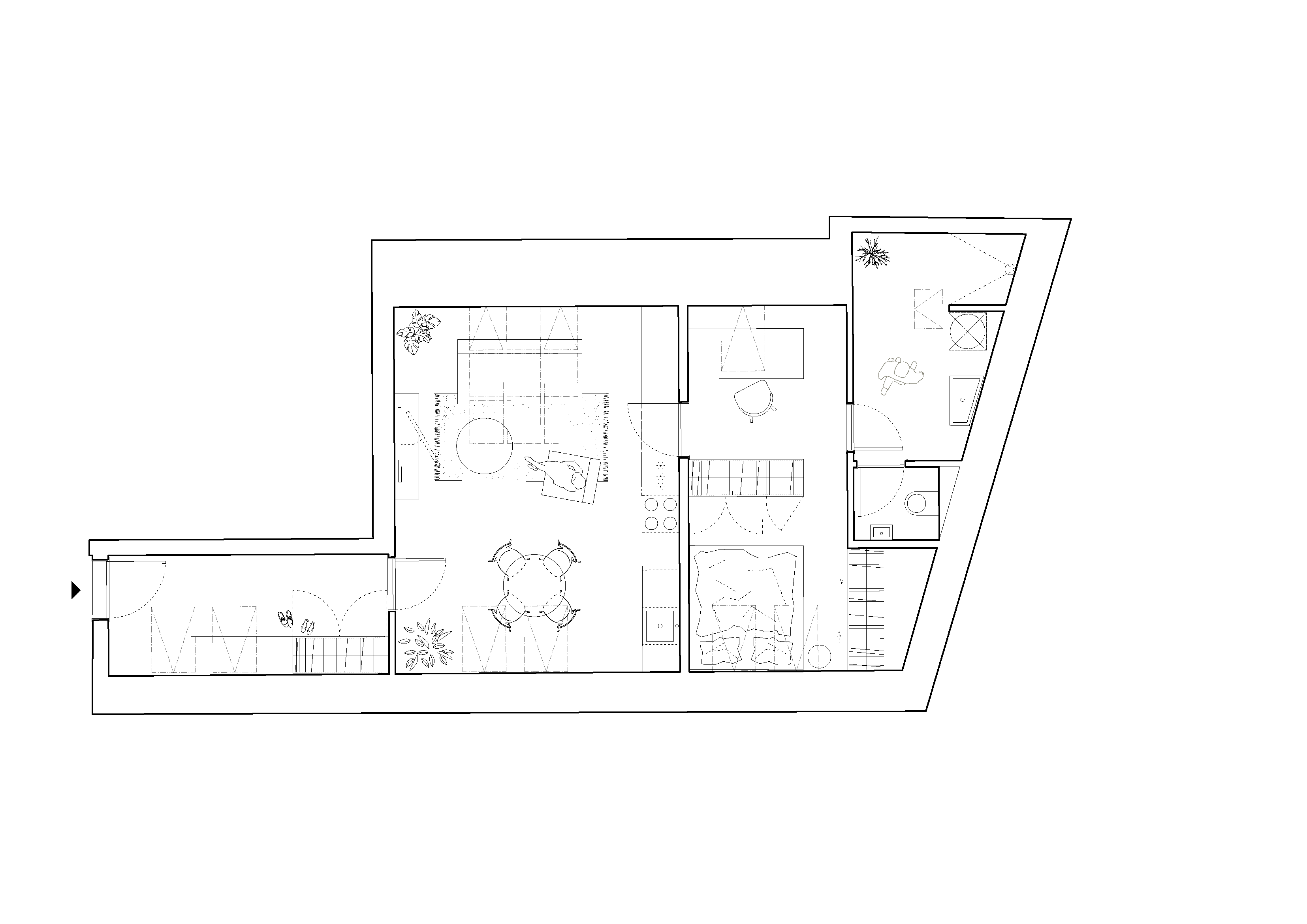
각 세대는 서로 다른 평면 구조를 가지고 있다. 일부 유닛에는 발코니가 추가되었고, 1층과 2층 사이에는 독립 진입이 가능한 중층형 유닛이 있다. 가장 큰 변화는 다락층에서 이루어졌으며, 기존 로프트 공간은 4개의 유닛으로 재구성되었다. 자연 채광을 고려한 창 설계와 라운드형 채광 웰이 도입되었다.



1층 유닛에는 원형 볼트 등 기존 구조 요소를 일부 남겨 역사성을 시각적으로 드러냈다. 쇼 유닛은 스테인리스 주방과 타일, 셔터 등을 통해 채광, 환기, 프라이버시를 해결한 모델로 구성되어 있다.







건축가 플러스 원 아키텍츠 (Plus One Architects)
위치 체코, 프라하, 볼레슬라보바
프로젝트면적 780㎡
준공 2024
발주자 Developer: Castle Rock Investments
사진작가 BoysPlayNice
'Architecture Project > Multifamily' 카테고리의 다른 글
| 도시와 산의 형태를 담은 주택, 나비집 / 투닷건축사사무소 주식회사 (0) | 2025.05.21 |
|---|---|
| 기후 적응을 위해 바깥으로 열린 스페인 공동주택 / 카를레스 엔리크 스튜디오 (0) | 2025.05.13 |
| 17 루에 데스 콰트레-케미네에스 레지던스 / 데켈레테 아르키텍투레 (0) | 2025.04.17 |
| 코스트라인 빌라즈 / 크라겔지 아키텍츠 (0) | 2025.04.10 |
| 평등한 공간을 만드는 공동주택 / 시에르토 에스투디오 (0) | 2025.04.01 |
마실와이드 | 등록번호 : 서울, 아03630 | 등록일자 : 2015년 03월 11일 | 마실와이드 | 발행ㆍ편집인 : 김명규 | 청소년보호책임자 : 최지희 | 발행소 : 서울시 마포구 월드컵로8길 45-8 1층 | 발행일자 : 매일



