
Cloud House
클라우드 하우스는 호치민시 도심의 복잡한 골목 안에 자리한 소형 코리빙 하우스로, 좁은 부지 안에서도 쾌적한 생활환경을 제공하고자 설계된 프로젝트이다. 최근 베트남 주요 도시에서는 주택 가격이 급격히 상승해, 평균 소득의 젊은 1인 가구나 신혼부부가 감당하기 어려운 상황에 이르렀다. 이들은 대개 비좁고 불편한 임대 튜브하우스에서 살아가고 있으며, 이에 따라 도시 내 코리빙 임대 주택은 주거의 질과 경제성이라는 이중 과제를 동시에 해결하는 것이 핵심 과제가 되었다.


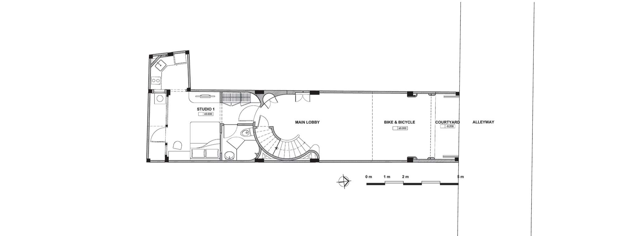
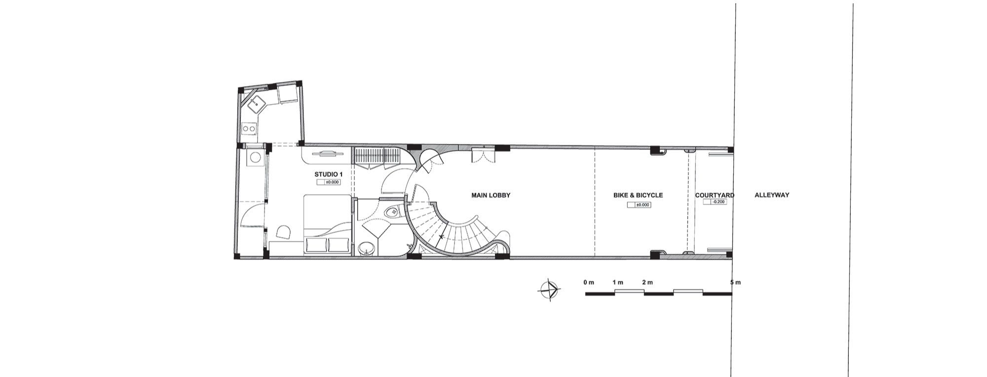
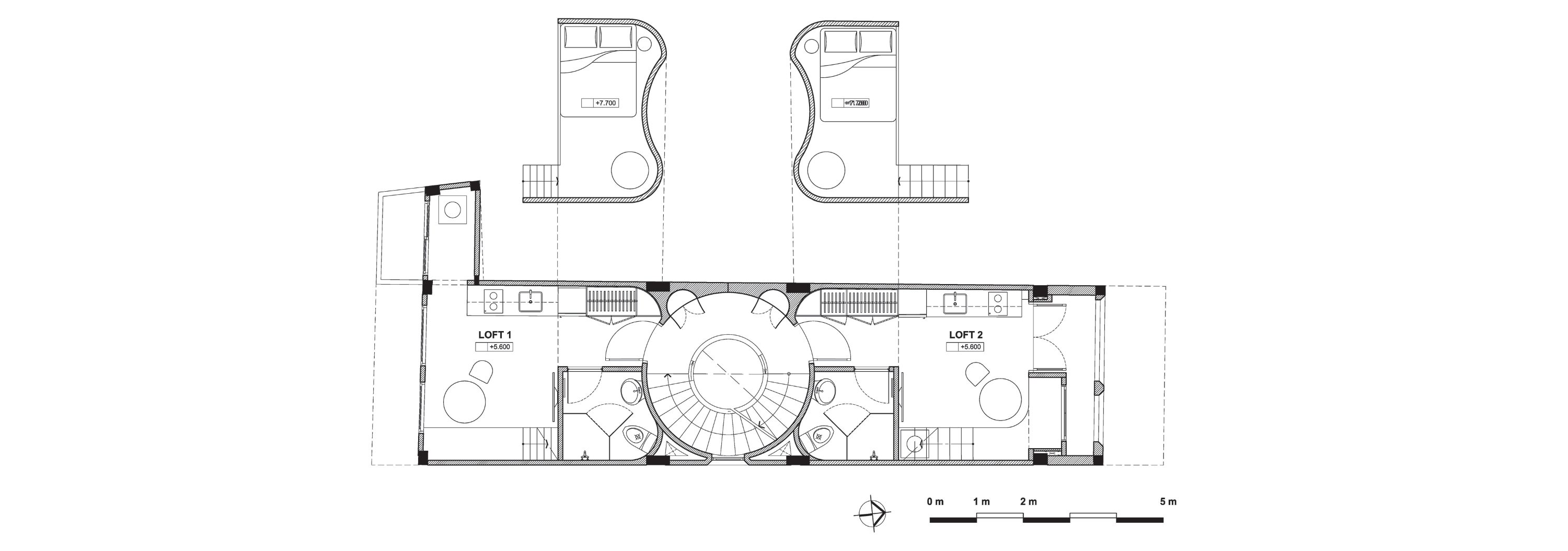
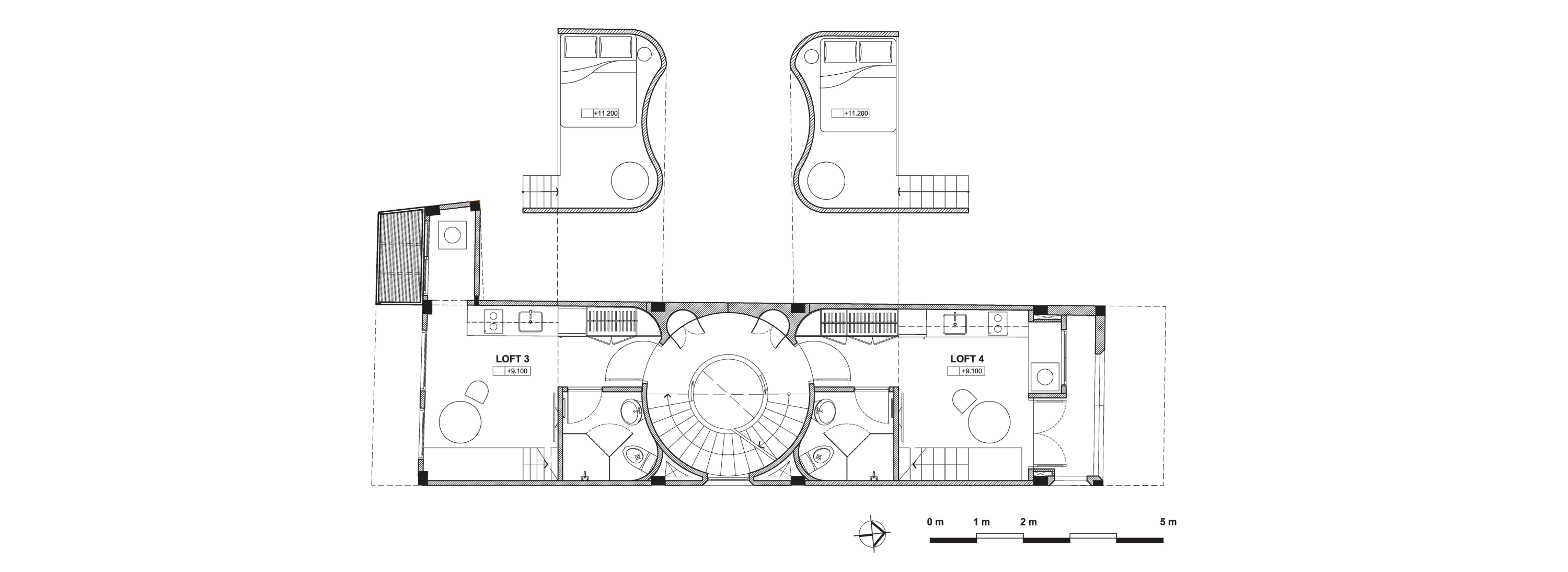
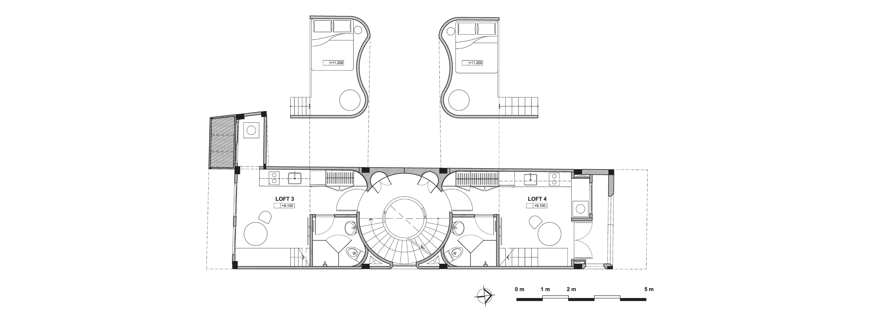
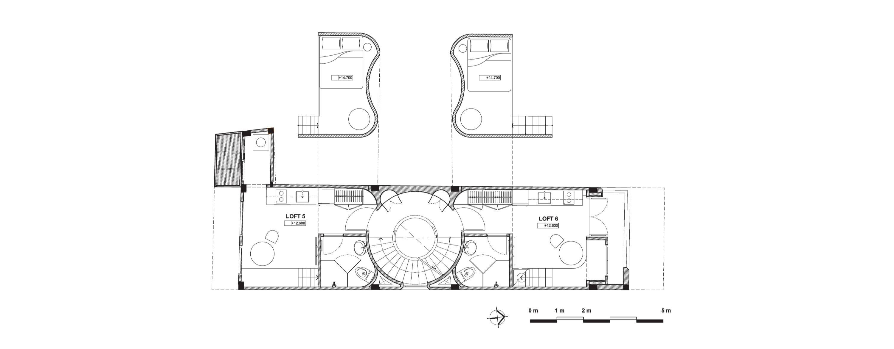
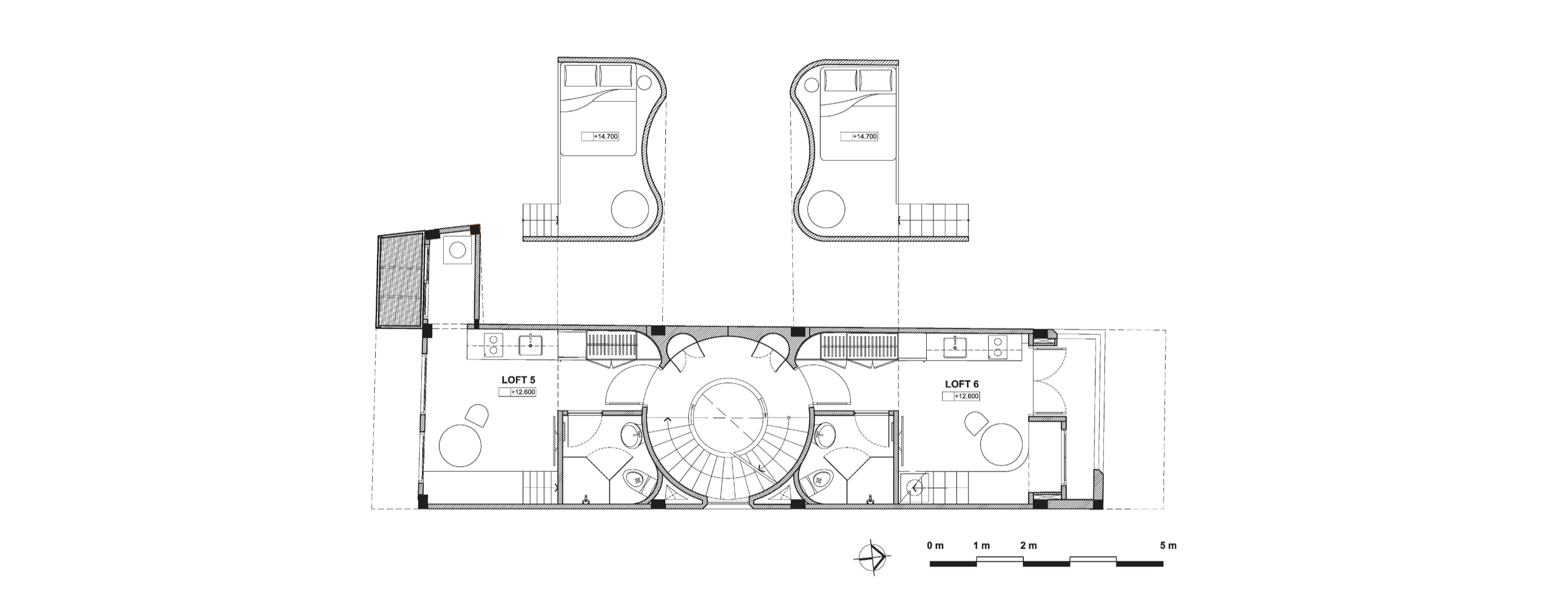
클라우드 하우스는 70㎡ 규모의 대지에 세워졌으며, 4m 너비의 골목길 안에 위치해 있다. 주변은 다양한 규모와 층고의 타운하우스로 둘러싸여 있다. 설계는 세 가지 핵심 개념을 중심으로 이루어졌다: 컨템포러리 로프트 스타일의 프라이빗 스위트, 다기능 반공용 공간, 그리고 고밀도 도시 안에서 자연을 느낄 수 있는 감각이다.



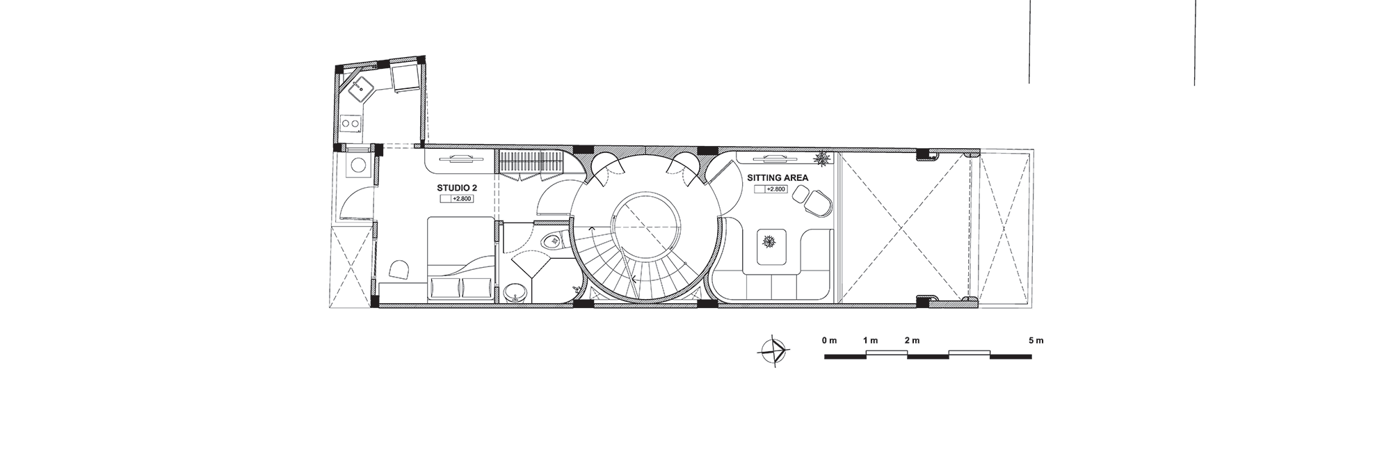
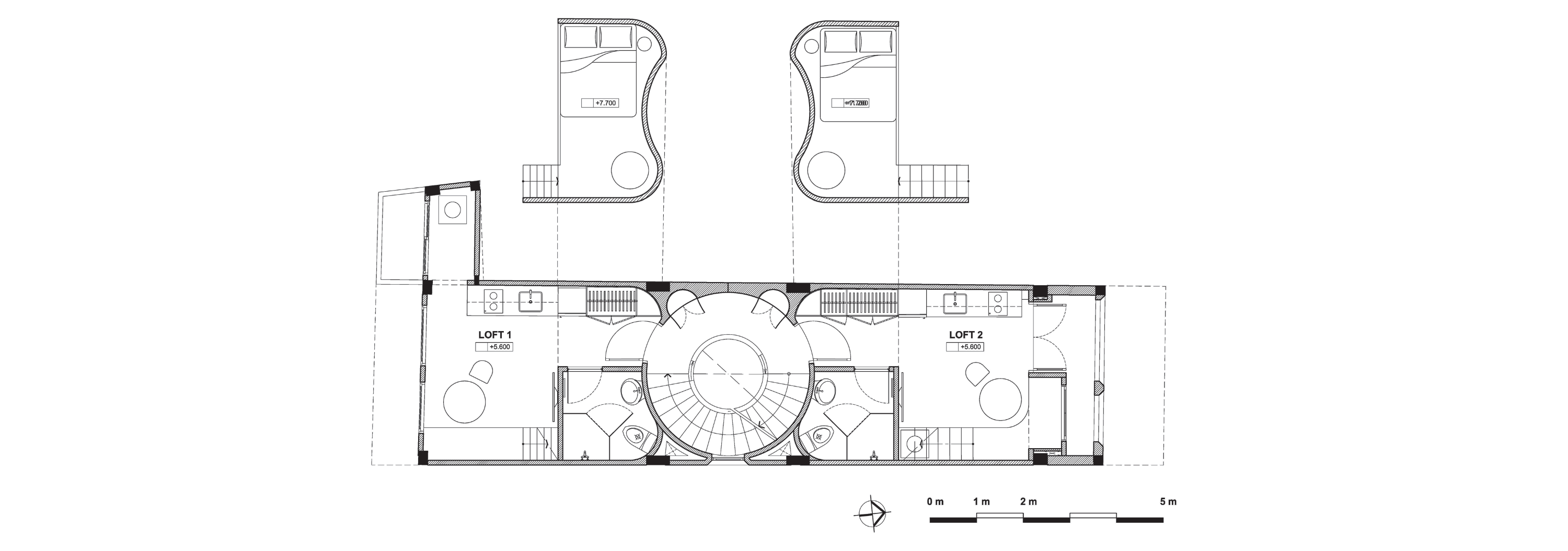
우선, 건물 내부에는 로프트형 스위트 6개와 일반 스튜디오 2개가 효율적으로 배치되어 있다. 각 스위트에는 출입구와 욕실 위에 최소형 로프트 공간을 조성하여, 3.5m의 천장 높이를 최대한 활용하고 메인 생활공간에는 개방감과 아늑함을 동시에 부여했다. 자재와 색상은 중립적인 톤으로 통일하였으며, 다기능 가구(좌식 벤치, 옷장, 수납장 등)와 간결한 목재 계단, 철제 프레임과 시멘트 보드로 구성된 가벼운 로프트 바닥 구조가 조화를 이룬다.


중정과 1층 절반은 오토바이 및 자전거 주차장으로 활용되며, 중심부에는 나선형 계단을 배치하여 동선 역할을 할 뿐 아니라, 입주자들이 자연스럽게 마주치고 교류할 수 있는 친밀한 공간이 되도록 유도했다. 메자닌 층의 공용 휴게 공간과 옥상 테라스도 입주자 모두가 공유하며, 이는 하나의 지붕 아래 살아가는 사람들 간에 공동체 의식을 형성한다.


전면과 후면, 옥상 천창에는 원형과 구름 모양의 창이 뚫려 있어, 채광과 자연 환기를 유도하고 외부 경관도 확보했다. 동시에 사생활 보호와 쾌적한 실내 환경도 확보하였다. 고체와 공백, 빛과 그림자의 대비는 내부의 곡선형 공간 구성과 어우러져 마치 도심 속 구름 사이를 유영하는 듯한 감각을 제공한다. 입주자들은 이러한 공간을 통해 일상에서 벗어난 상상적 자연의 단면을 경험하게 된다.







건축가 룸+ 디자인 & 빌드(ROOM+ Design & Build)
위치 베트남, 호치민
용도 공동주택(코리빙)
대지면적 70㎡
연면적 360㎡
규모 지상 6층
준공 2025
대표건축가 Vinh Phuc Ta
디자인팀 Vinh Phuc Ta, Bao Loc Hoang, Tan Trung Ta, Duc Truong Nguyen, Ngoc Phi Duong, Trung Dat Diep
사진작가 Sonmeo Nguyen Art Studio; Minq Bui
'Architecture Project > Multifamily' 카테고리의 다른 글
| 골목의 기억으로 짓다, 자이이시 아파트먼트 #1 / 비플러스피 아키텍츠 (0) | 2025.09.16 |
|---|---|
| 기하학과 색으로 입면의 리듬을 만든 네덜란드 사회주택 / 모나드노크 (0) | 2025.08.01 |
| 테라코타 타일로 지역성을 강조한 포르투갈 학생 기숙사 / 안드레 콩 스튜디오 (0) | 2025.07.22 |
| 빌딩 비 / (주)엘케이에스에이 건축사사무소 (0) | 2025.06.18 |
| 방앗간 모양을 본떠 만든, 루비콘 공동주택 / 앨리슨 브룩스 아키텍츠 (0) | 2025.06.12 |
마실와이드 | 등록번호 : 서울, 아03630 | 등록일자 : 2015년 03월 11일 | 마실와이드 | 발행ㆍ편집인 : 김명규 | 청소년보호책임자 : 최지희 | 발행소 : 서울시 마포구 월드컵로8길 45-8 1층 | 발행일자 : 매일



