
Beihouse
베이하우스는 옛 건축과 현대 건축이 공존하는 베이루트 역사 지구인 제마이제 중심부에 위치한다. 이 프로젝트는 19세기 레바논식 주택 3채와 그 중심에 있는 중정을 재구성하며, 베이루트의 건축 유산 보존과 현대적 비전을 결합했다. 2020년 8월 4일 항구 폭발로 심각한 피해를 입은 건물들을, 지역 주민과 세계 각지의 방문객이 모이는 역동적인 소셜 클럽으로 복원했다. 건축사무소 다거 한나 앤 파트너스 (Dagher Hanna & Partners)와 인테리어 디자인 스튜디오 린다 보론케이 디자인 스튜디오 (Linda Boronkay Design Studio)와의 협업으로, 새 소유주는 건물이 철거되지 않고 보존되도록 했다.
디자인은 석재와 목재 같은 전통 재료와 코르텐강 마감 같은 현대적 요소를 세심하게 조합했다. 코르텐강은 항구의 산업적 성격을 반영하며, 동시에 부지의 역사적 맥락을 드러낸다. 기존 건물을 보강하고 새로운 현대적 기능을 추가하기 위해 철골 구조와 고성능 유리를 통합했다. 또한 레바논 장인들의 전통 기법을 활용해 주요 건축 요소를 복원하며, 지역 장인 정신을 기렸다.
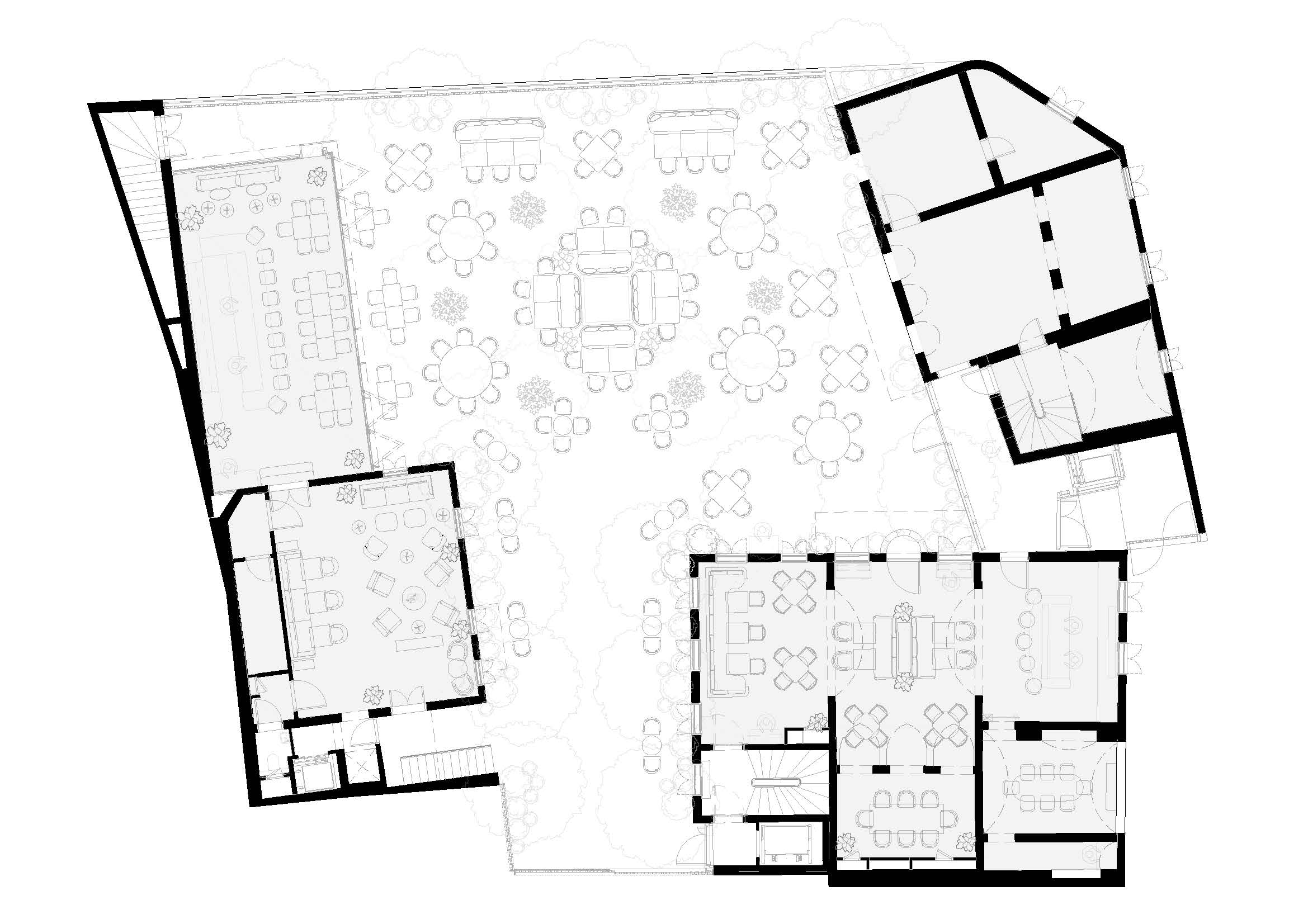
세 채의 건물은 새로운 용도에 맞게 변형되었다. 두 채의 건물에는 층이 추가되고, 세 번째 건물은 복층 공간으로 확장됐다. 세 번째 건물의 플로팅 테라스는 기존 건물과 신축 부분을 잇고, 과거와 현재를 아우르는 조화를 완성했다. 위에서 바라보면, 역사적 건물과 현대적 확장 부분이 자연스럽게 이어지며, 베이루트 항구와 지중해를 조망할 수 있다.
방문객은 좁은 골목길을 따라 입구로 접근하며, 중심 중정에서 수령 100년의 올리브 나무를 마주한다. 중정은 무성한 식물과 소박한 화분으로 둘러싸여, 도시의 번잡함에서 벗어난 평온한 정원을 제공한다. 바(bar)는 개폐식 유리 벽을 통해 중정과 연결되어, 계절에 따라 실내 공간이 개방형 공간으로 변한다. 중정 옆 라운지 공간은 현대적 요소와 원형 건축 요소가 자연스럽게 어우러지고, 상층부에는 도예 작업실과 전시 공간이 배치되어 건물에 활기를 더한다.
두 번째 건물의 1층에는 레스토랑, 2층에는 프라이빗 모임 공간이 들어섰다. 세 번째 건물은 서비스 공간 등 호스피탈리티 기능을 담당하며, 두 건물의 2층 사무 공간은 철제 브리지로 연결된다. 이는 베이하우스가 낮에는 업무 공간, 밤에는 소셜 클럽으로 변모할 수 있는 유연성을 보여준다. 세 건물 곳곳에는 조각적 형태의 코르텐강 계단이 배치되었고, 세 대의 엘리베이터가 효율적인 동선을 보장한다. 그중 하나인 파노라마 엘리베이터는 특별한 수직 이동 경험을 제공하며, 스틸 브리지는 발코니처럼 공간을 확장한다. 삼중 유리창은 도시 소음을 차단하고, 코르텐 핀은 태양 차양 역할을 한다.
베이하우스는 베이루트의 회복력을 상징한다. 세심한 개입과 현대적 확장을 통해 유산을 보존하는 동시에 미래로 재해석하며, 역사가 단순히 보존되는 것을 넘어 지속적으로 진화하도록 했다.










건축가 다게르 하나 앤 파트너스 (Dagher Hanna & Partners)
위치 레바논, 베이루트
건축면적 1,500㎡
준공 2025
대표건축가 Fadlallah Dagher, Fouad Hanna
인테리어 Linda Boronkay Design Studio
구조엔지니어 Distruct Solutions
MEP 엔지니어 Wissam Tawil and Associates
파사드컨설턴트 FEABS
시공 MAPMAR
발주자 SCMC Gemayzeh SAL
사진작가 Marco Pinarelli
'Architecture Project > Multifamily' 카테고리의 다른 글
| 입방체의 리듬, 법규와 상상력이 만든 루프탑 하우징 / 피피에이지 아키텍츠 (0) | 2025.10.22 |
|---|---|
| 수도원과 도시 사이, 시간을 잇는 주거 단지 / 옘스 아키텍치 (0) | 2025.10.21 |
| 수평으로 펼친 풍경의 집, 얄 리빙 / 에이지아이 아키텍츠 (0) | 2025.09.16 |
| 골목의 기억으로 짓다, 자이이시 아파트먼트 #1 / 비플러스피 아키텍츠 (0) | 2025.09.16 |
| 기하학과 색으로 입면의 리듬을 만든 네덜란드 사회주택 / 모나드노크 (0) | 2025.08.01 |
마실와이드 | 등록번호 : 서울, 아03630 | 등록일자 : 2015년 03월 11일 | 마실와이드 | 발행ㆍ편집인 : 김명규 | 청소년보호책임자 : 최지희 | 발행소 : 서울시 마포구 월드컵로8길 45-8 1층 | 발행일자 : 매일



