
장엄한 도시, 휴머니즘의 경계에서.
대지는 부산과 진해의 경계, 신항만과 컨테이너터미널의 웅장한 배후도시를 품고 있다. 이 지역은 컨테이너 운송차량이 가로의 절반을 채우며, 거대한 수송선과 크레인이 조각하는 도시의 미학이 장엄하다. 다정다감한 휴먼스케일이 아닌, 무역을 중심으로 한 국가의 전초기지로서 굳건한 스케일과 숭고한 기운이 자연스럽다. 그런 가운데 공원과 마주한 사거리 모퉁이의 대지는 이 무게와 움직임을 품고, 인본주의적 감성을 자극하는 동시에 지역적 맥락을 존중하는 조형 언어로 표현되어야 한다.도시는 타협과 균형 속에 미래를 향한 조용한 춤을 추듯, 이 대지는 인접한 공원과 친근하게 속삭이는 면모를 지니면서도, 동시에 도시가로에 적응하며 힘차게 응답하는 두 얼굴을 가진다. 차가운 산업의 거대한 숨결과 따뜻한 인간의 이야기 사이, 현재와 미래가 만나는 이 교차점에서 대지는 생명을 얻어 도시의 심장으로 뛰기 시작한다.
도시의 숨결, 공원의 열린 품
장엄한 도시의 맥락 안에 자리한 이 대지는, 거대한 스케일의 도시가 숨 쉬는 공간과 조화를 이루며 조용히 그 숨결을 나눈다. 도시의 웅장한 흐름 속에 묻혀 있던 이 땅은 도심공원을 향해 산뜻하게 열려, 열린 길과 공간을 통해 사람의 손길과 자연의 온기가 자유롭게 오가게 한다. 그리하여 대지는 단순한 경계가 아니라, 도시와 자연, 산업과 인간이 서로 마주보고 맞닿는 활짝 열린 접점이 된다. 강인한 도시의 울림 속에서 부드러운 풍경과 소통하며, 누구나 머무르고 싶은 열린 마당으로 거듭난다. 이곳에서 도시의 장엄함은 무겁거나 고립된 것이 아닌, 생명력 있고 따뜻한 품으로서 온기와 활기를 전하는 장이 된다. 적극적인 개방과 접근의 계획은 대지를 도시의 심장과 공원의 숨결이 만나는 경계로 만들어, 미래의 삶과 이야기가 싹트는 거대한 무대로서 그 존재를 부족함 없이 보여준다.










와브건축사사무소
3등작_ 와브건축사사무소 (https://www.instagram.com/wavv_architecture/)
대표건축가 정해욱
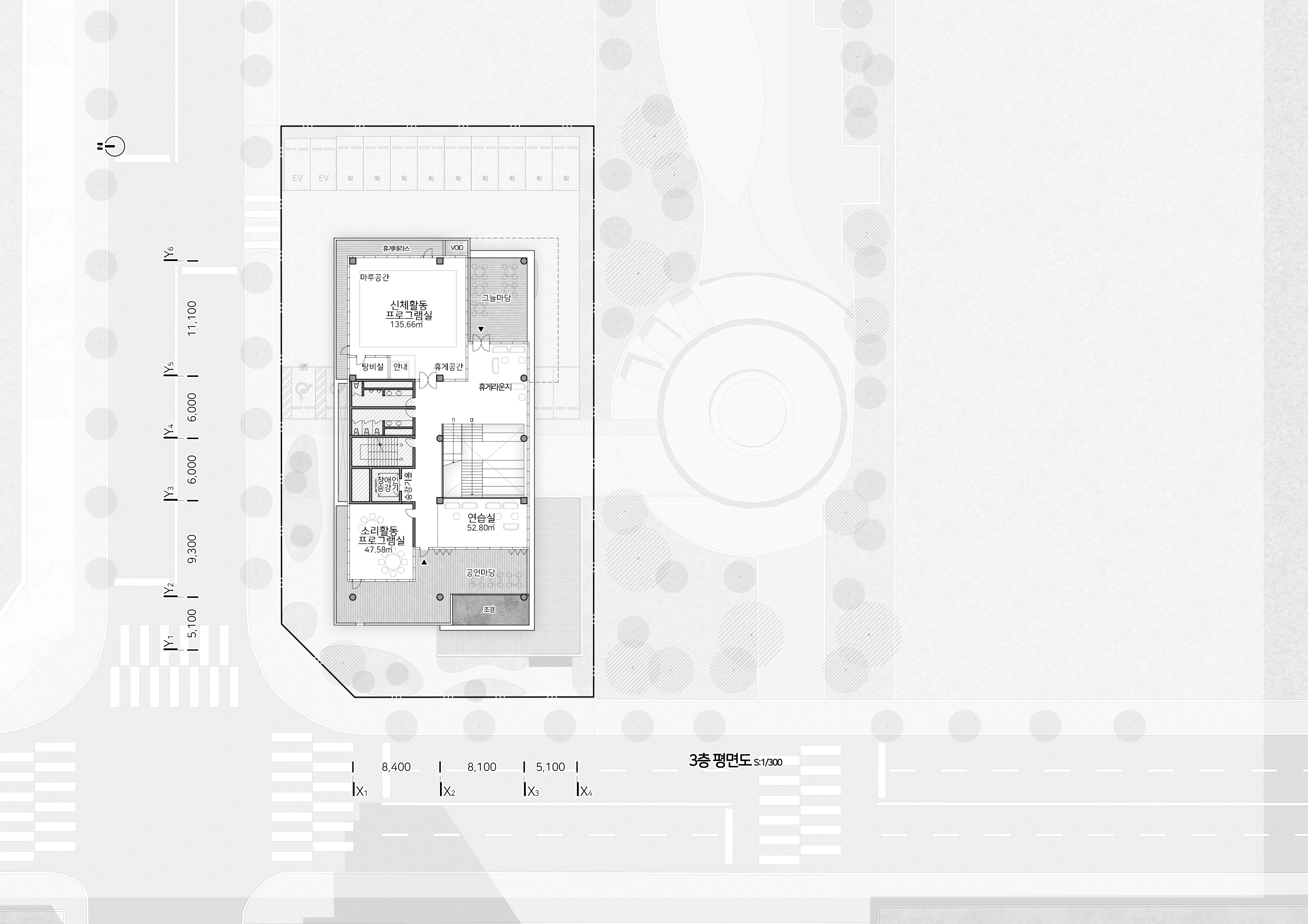
대지면적 1,631.90㎡
연면적 2,276.18㎡
건축면적 298.93㎡
건폐율 48.96%
용적률 126.36%
최고높이 18.0m
층수 지하 1층, 지상 4층
구조 철근콘크리트조
대표건축가 정해욱
디자인팀 차은주
조경면적 270.29㎡
주차대수 27대
발주처 창원특례시 공공시설기획과
'Plans' 카테고리의 다른 글
| 한국폴리텍대학 화성캠퍼스 기숙사 리모델링공사 설계공모_ 2등작 / (주)에스지파트너스 건축사사무소 (0) | 2025.09.11 |
|---|---|
| 진해 동부권 생활문화센터 건립 설계공모_ 4등작 / 건축사사무소 세움 (0) | 2025.09.11 |
| 칠원 구성지구 도시재생사업(우리동네살리기) 혜휼당(커뮤니티센터) 조성사업 건축 설계공모_ 당선작 / (주)SGHS 설계회사 건축사사무소 (0) | 2025.09.08 |
| 칠원 구성지구 도시재생사업(우리동네살리기) 혜휼당(커뮤니티센터) 조성사업 건축 설계공모_ 5등작 / 박희도 건축사사무소 (0) | 2025.09.08 |
| 칠원 구성지구 도시재생사업(우리동네살리기) 혜휼당(커뮤니티센터) 조성사업 건축 설계공모_ 4등작 / 바운더리스 건축사사무소 (0) | 2025.09.08 |
마실와이드 | 등록번호 : 서울, 아03630 | 등록일자 : 2015년 03월 11일 | 마실와이드 | 발행ㆍ편집인 : 김명규 | 청소년보호책임자 : 최지희 | 발행소 : 서울시 마포구 월드컵로8길 45-8 1층 | 발행일자 : 매일



