
우리 일상의 즐거운 놀이터, 새로운 배움터. 자연과 연결되고 이야기가 흐르는 생활문화센터
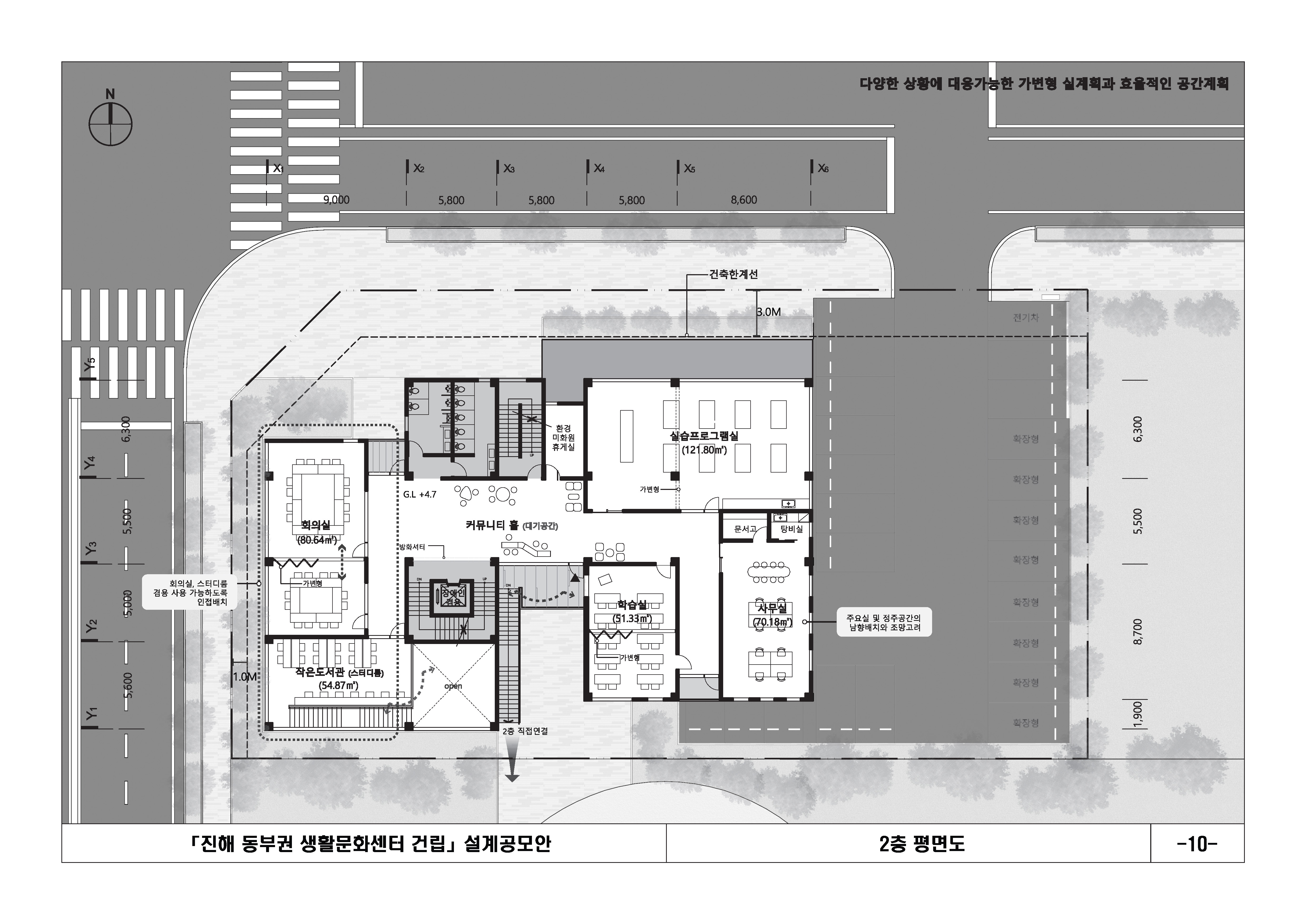
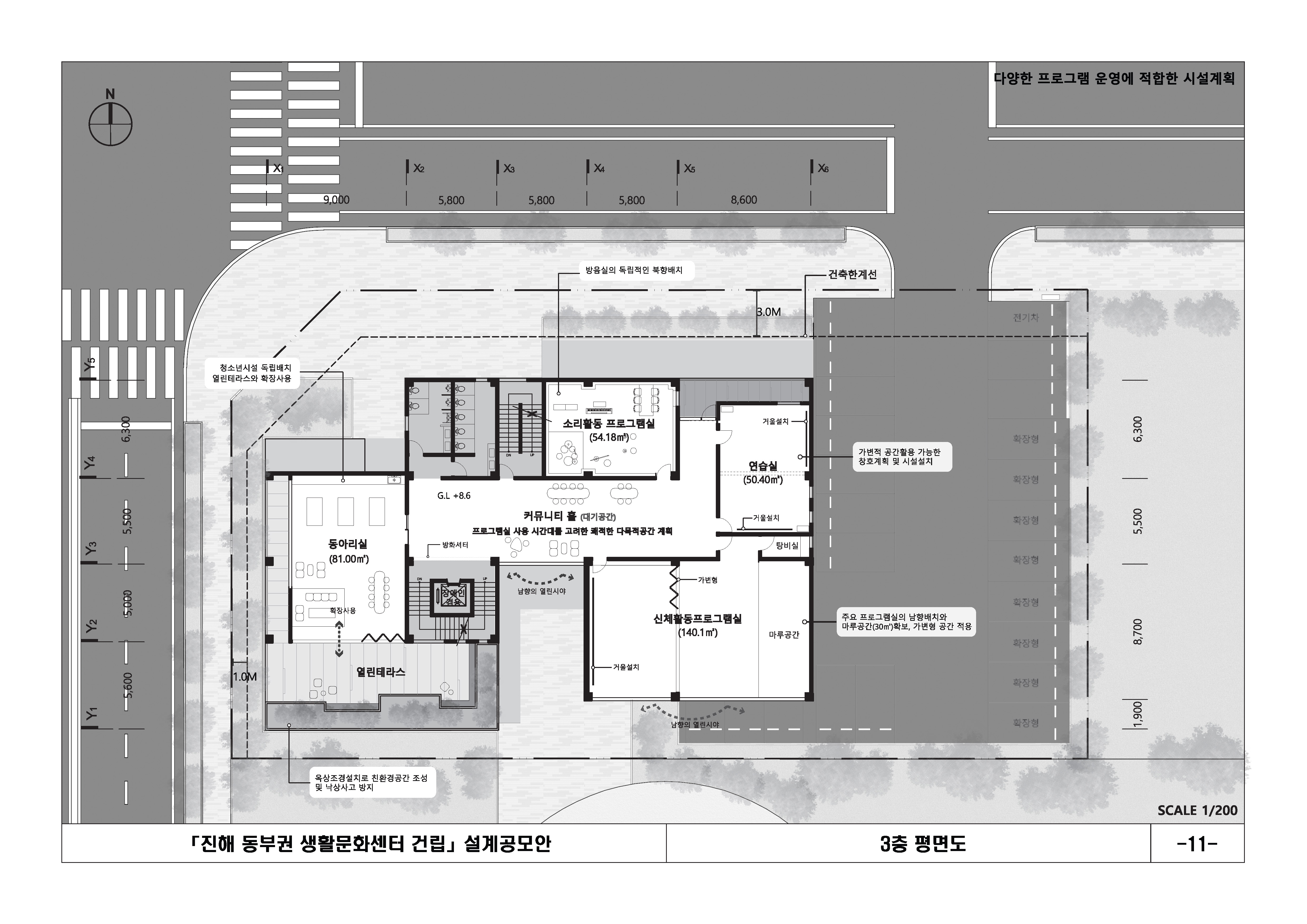
진해 동부권 지역의 부족한 생활문화시설 조성사업으로 지역 커뮤니티를 활성화시키며 주민 간의 소통과 자발적인 활동을 통해 지역을 더 활성화시키고자 생활문화센터를 건립하고자 합니다. 대상지의 특성과 여건, 건립시설의 목적과 활용성을 고려하여 계획하였습니다. 어린공원과 인접해 있는 대상지로 어린이공원에 자연스레 연결되는 열린 마당과 시설의 편의를 위한 동선계획을 중점으로 계획하였고 청소년 등 다양한 계층과 다양한 프로그램을 수용할 수 있는 가변적 공간 구성을 통해 누구나 쉽고 편리하게 이용할 수 있는 생활문화센터를 계획하였습니다. 각층별 영역은 독립적이나 통합적으로 사용되도록 하며 개별적으로 충분한 휴게공간을 구성하여 내외부공간의 다양함과 열린 공간을 구성했습니다.








건축사사무소 세움
4등작_ 건축사사무소 세움 (https://blog.naver.com/archiseum)
대표건축가 엄주희
대지면적 1,631.90㎡
연면적 2,293.92㎡
건축면적 730.62㎡
건폐율 46.61%
용적률 128.30%
최고높이 19.60m
층수 지하 1층, 지상 4층
구조 철근콘크리트구조
대표건축가 엄주희
디자인팀 엄주희
조경면적 244.785㎡
주차대수 27대
발주처 창원특례시 공공시설기획과
'Plans' 카테고리의 다른 글
| 해양공학연구동 위험유해환경 개선사업 설계 용역_ 당선작 / 콤마건축사사무소 (0) | 2025.09.11 |
|---|---|
| 한국폴리텍대학 화성캠퍼스 기숙사 리모델링공사 설계공모_ 2등작 / (주)에스지파트너스 건축사사무소 (0) | 2025.09.11 |
| 진해 동부권 생활문화센터 건립 설계공모_ 3등작 / 와브건축사사무소 (0) | 2025.09.11 |
| 칠원 구성지구 도시재생사업(우리동네살리기) 혜휼당(커뮤니티센터) 조성사업 건축 설계공모_ 당선작 / (주)SGHS 설계회사 건축사사무소 (0) | 2025.09.08 |
| 칠원 구성지구 도시재생사업(우리동네살리기) 혜휼당(커뮤니티센터) 조성사업 건축 설계공모_ 5등작 / 박희도 건축사사무소 (0) | 2025.09.08 |
마실와이드 | 등록번호 : 서울, 아03630 | 등록일자 : 2015년 03월 11일 | 마실와이드 | 발행ㆍ편집인 : 김명규 | 청소년보호책임자 : 최지희 | 발행소 : 서울시 마포구 월드컵로8길 45-8 1층 | 발행일자 : 매일



