
시간 장소 환대
칠원읍성터 중심에 자리한 혜휼당은 고즈넉한 마을 풍경에 자연스럽게 스며들며, 옛 우체국 건물이 지닌 시간의 결을 품은 열린 장소다. 느슨하게 배열된 매스들은 자율적인 질서를 이루고, 서남3길의 정면성과 더불어 혜율원을 향한 열린 경관을 만들어낸다. 각 매스와 대지 경계 사이에 조성된 외부 공간과 골목길은 다양한 방향에서 접근하는 주민을 환대하며, 내부 프로그램의 유연한 확잘을 수용한다.
평소에는 주차장으로, 마을 행사 시에는 광장으로 활용되는 혜휼원이 혜휼당과 유기적 관계를 맺을 수 있도록 대안을 제시한다. 느슨하게 계획되어 있던 기존 주차 구획을 합리적으로 재구성하고, 혜휼당과 단절되어 있던 결절부에는 녹지와 오픈 스페이스를 연결하여 공간의 연속성을 회복한다. 주차 구획에 둘러싸여 섬처럼 고립되어 있던 정자와 고목의 녹지는 혜휼당을 향해 확장 연계된다. 대안적 혜휼원은 이러한 구성 안에서도 기존보다 증가한 주차대수를 확보한다.
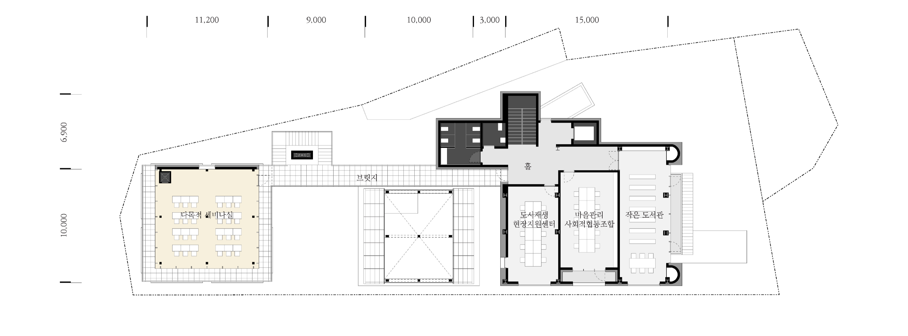
혜휼당은 서남3길과 면한 남측 입면을 일상의 정면으로 삼는다. 기존 우체국 건물의 입면은 외단열과 함께 개편되며, 돌출된 주출입 캐노피들은 후면으로 연장되는 전체 구성을 암시하고, ‘작은 집’을 품은 형상으로 입구성을 강조한다. 각 프로그램 매스는 리모델링된 과거 건물의 입면에서 시작해 긴 사이트를 따라 배치되며, 내부와 외부, 과거와 현재가 교차하는 감각적 공간 경험을 제공한다.
전면 동측의 진입마당은 대각선으로 배치된 코어 출입구와, 혜휼마당 및 외부 브릿지를 향한 골목길로 연결된다. 각 프로그램은 이러한 다공성 있는 구성을 통해 다양한 방문자 동선과 사용의 자율성을 확보한다. 혜휼원과 면한 서측 정면에서 세 개의 매스는 수평적으로 펼쳐지며, 정면 파사드 뒤로 길게 뻗어나가는 남측 풍경과 대비된다. 각 마당은 혜휼원과 혜휼당을 연결하고, 지상층에서는 공유주방·스마트팜·카페가 ‘먹거리’라는 개념 아래 유기적으로 연계된다. 증축된 카페·사무실·도서관 매스와 공유주방·다목적실 매스 사이에 넓은 외부 공간을 확보하고, 스마트팜 매스를 중앙에 배치해 재배한 농작물이 양방향의 카페와 공유주방에서 활용될 수 있도록 한다. 이러한 프로그램 매스의 집합적 구성은 건축물의 스케일을 분절하며 마을과 조화를 이루는 풍경을 형성한다.
중심 외부 공간인 혜휼마당은 공유주방과 스마트팜과 연계되어 야외 식사나 행사 공간으로 활용된다. 화로는 고기나 고구마를 굽는 용도이자 브릿지의 구조를 겸하며, 공유주방 입면에는 벤치가 마련된다. 혜휼카페와 공유주방은 중앙의 스마트팜에서 재배된 과일과 채소를 활용한다. 1층의 내외부 공간은 독립적으로 구성되면서도, 조율된 창호를 통해 시각적으로 연결된다.
철골 구조로 증축된 기존 건물 2층에는 지원센터, 협동조합, 작은도서관이 배치되며, 활발한 행사를 수용하는 다목적 세미나실과 충분히 이격되어 정적인 환경을 조성한다. 기존 형식을 계승한 작은도서관의 발코니는 독서 중 휴식하는 학생과 주민의 모습을 전면에 드러내며, 가로에 생동감을 더한다. 목구조와 경사지붕으로 구성된 다목적 세미나실은 삼면이 반외부 공간으로 둘러싸인 마을 정자와 같은 성격을 지닌다. 동선 분리를 통해 시간대별 유연한 사용이 가능하며, 1층 공유주방과 연계된 덤웨이터를 통해 음식 나눔 행사도 가능하도록 계획되었다.












(주)SGHS 설계회사 건축사사무소
당선작_ (주)SGHS 설계회사 건축사사무소 (https://www.sghs.tv/)
대표건축가 강현석, 김건호
대지면적 1,198.00㎡
연면적 810.19㎡
건축면적 506.94㎡
건폐율 42%
용적률 68%
최고높이 11.3m
층수 지상 2층
구조 RC조, 철골구조
대표건축가 강현석, 김건호
디자인팀 유지웅, 박승언
조경면적 296.00㎡
주차대수 5대
발주처 함안군
'Plans' 카테고리의 다른 글
| 진해 동부권 생활문화센터 건립 설계공모_ 4등작 / 건축사사무소 세움 (0) | 2025.09.11 |
|---|---|
| 진해 동부권 생활문화센터 건립 설계공모_ 3등작 / 와브건축사사무소 (0) | 2025.09.11 |
| 칠원 구성지구 도시재생사업(우리동네살리기) 혜휼당(커뮤니티센터) 조성사업 건축 설계공모_ 5등작 / 박희도 건축사사무소 (0) | 2025.09.08 |
| 칠원 구성지구 도시재생사업(우리동네살리기) 혜휼당(커뮤니티센터) 조성사업 건축 설계공모_ 4등작 / 바운더리스 건축사사무소 (0) | 2025.09.08 |
| 북부노인복지시설 건립 기본 및 실시 설계 공모_ 3등작 / (주)보이드아키텍트건축사사무소 (0) | 2025.09.02 |
마실와이드 | 등록번호 : 서울, 아03630 | 등록일자 : 2015년 03월 11일 | 마실와이드 | 발행ㆍ편집인 : 김명규 | 청소년보호책임자 : 최지희 | 발행소 : 서울시 마포구 월드컵로8길 45-8 1층 | 발행일자 : 매일



