
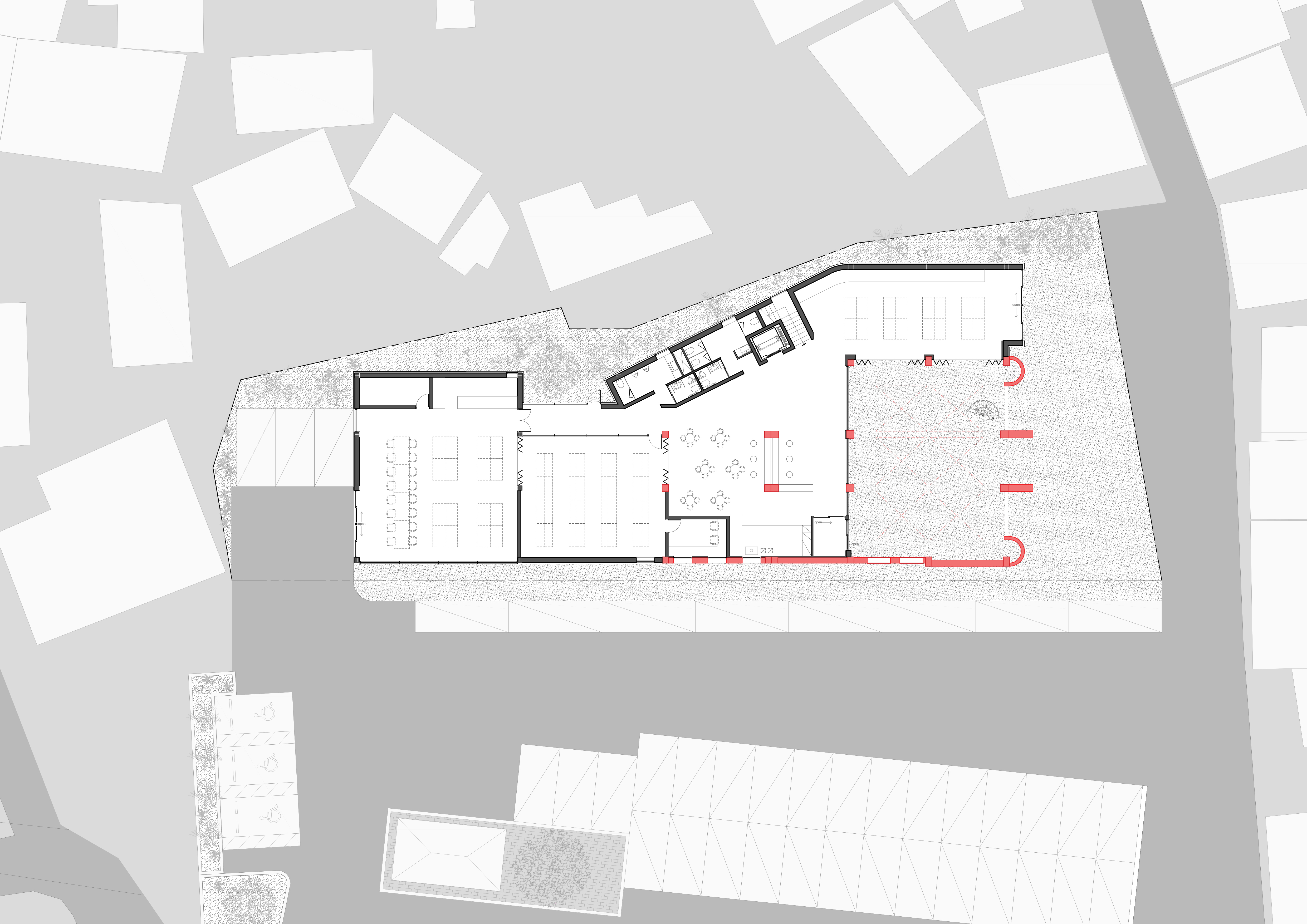
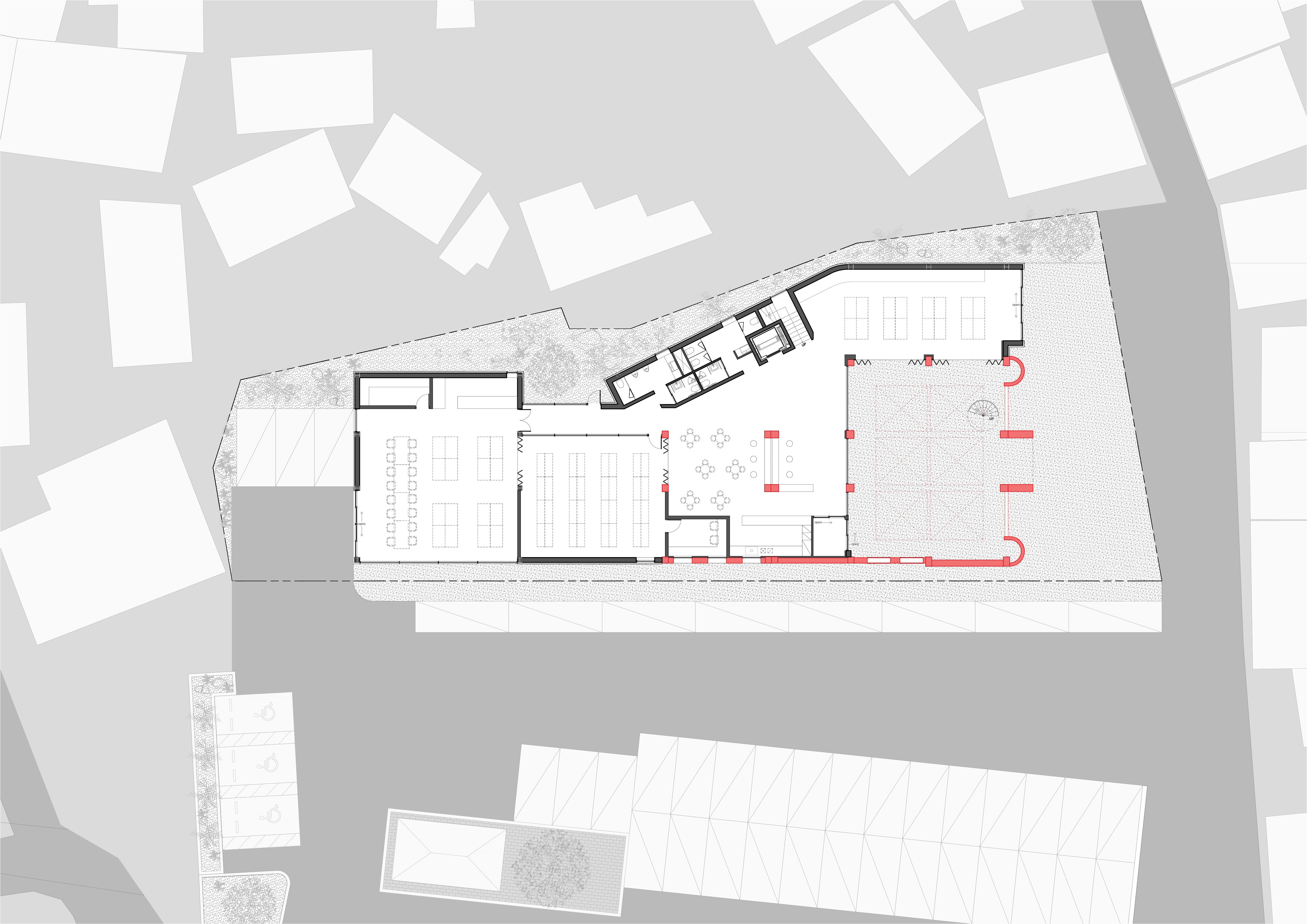
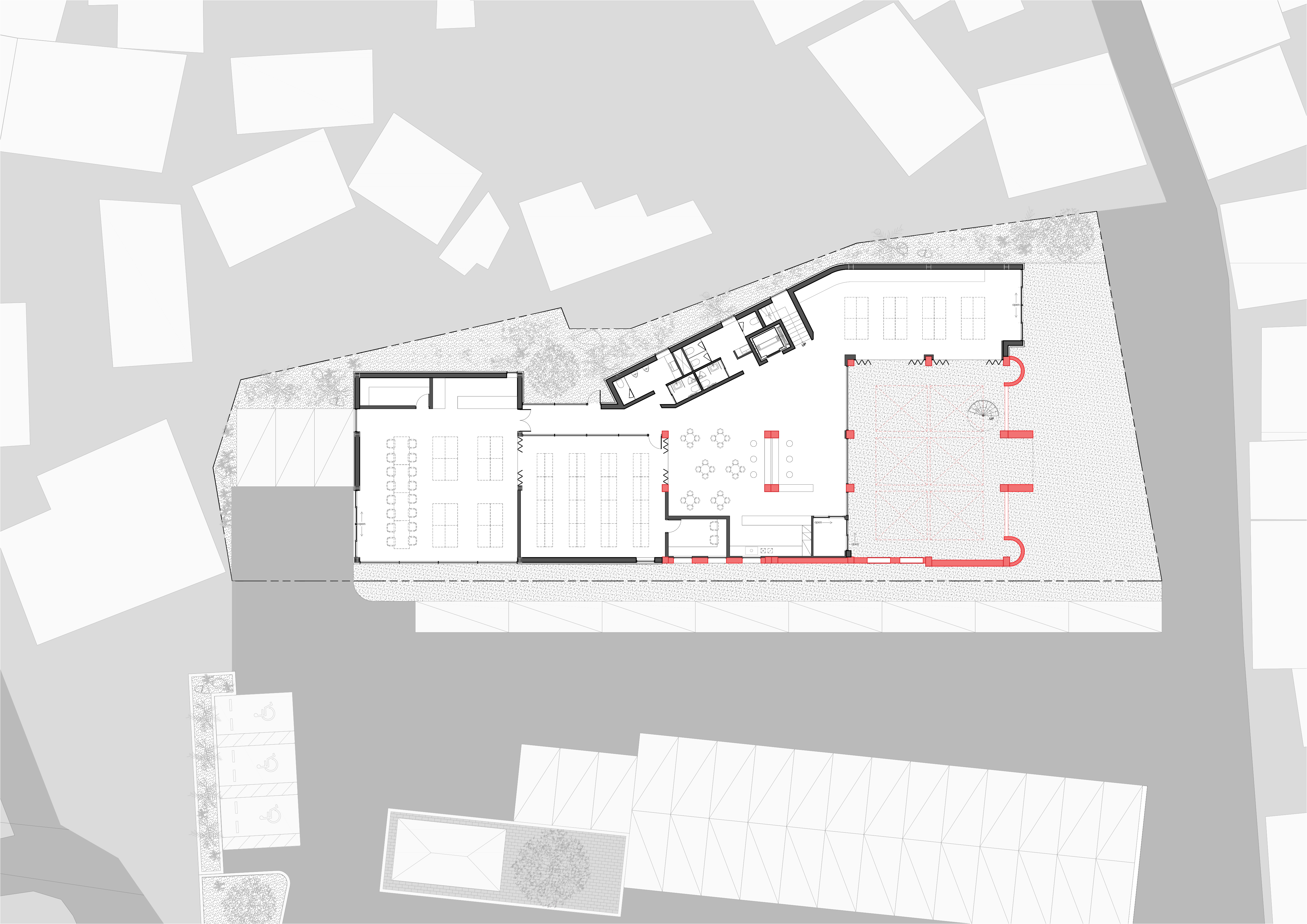
본 설계안은 지역의 오래된 우체국 건물을 리노베이션하여, 주민에게 열린 공공 커뮤니티 공간으로 재탄생하는 프로젝트이다. 기존 건축물의 구조와 입면을 존치하면서도 일부 슬라브를 제거해 실내를 외부화하여, 진입 시 가장 먼저 마주하는 ‘혜휼 마당’을 조성하였다. 이 공간은 과거와 현재, 기억과 기능이 교차하는 전이 영역으로, 누구나 365일 이용할 수 있는 열린 광장 역할을 한다.
건물 배치는 기존의 주차장으로 인해 형성된 물리적 단절을 해소하고, 마을의 흐름 속에 자연스럽게 스며드는 구조로 계획되었다. 차량 동선을 배제한 진입 마당은 보행 중심의 공간으로 설계되어, 행사 시 혜휼마당과 유기적으로 확장된다. 내부에는 도서관, 세미나실, 카페, 공유주방, 도시재생 지원센터, 스마트팜 연구소 등이 배치되어, 다양한 프로그램을 통해 주민의 생활과 학습, 교류를 지원한다. 이때 주민들의 주 공간이 될 도서관이나 카페가 혜휼마당과 긴밀한 관계를 지니는 반면 세미나마당은 세미나실을 그 사이에 두고 적절히 거리를 유지한다. 재료는 기존 건물의 타일 입면을 최대한 유지하면서, 친환경 메가판넬과 목재 루버 등을 사용해 과거와 현재 재료가 적절히 어울리도록 하였다. 또한 단열 성능 강화, 자연 환기 및 채광, 고효율 설비 시스템을 적용하여 에너지 절약형 건축을 실현하였다.
혜휼당은 단순한 리모델링을 넘어, 주민들의 기억을 존중하면서도 창의적으로 재해석한 장소다. 도시는 이를 통해 과거와 현재가 이어지는 새로운 풍경을 얻는다.

















박희도 건축사사무소
5등작_ 박희도 건축사사무소 (https://www.hdparch.com/)
대표건축가 박희도
대지면적 1,102.00㎡
연면적 836.40㎡
건축면적 514.40㎡
건폐율 46.7.00%(법정60%)
용적률 75.90%(법정 200%)
최고높이 8.2m
층수 지상 2층
구조 철근콘크리트(기존)및 철골조
대표건축가 박희도
디자인팀 박희도, 이동찬, 이재희
조경면적 137.00㎡
주차대수 3대
발주처 함안군
'Plans' 카테고리의 다른 글
| 진해 동부권 생활문화센터 건립 설계공모_ 3등작 / 와브건축사사무소 (0) | 2025.09.11 |
|---|---|
| 칠원 구성지구 도시재생사업(우리동네살리기) 혜휼당(커뮤니티센터) 조성사업 건축 설계공모_ 당선작 / (주)SGHS 설계회사 건축사사무소 (0) | 2025.09.08 |
| 칠원 구성지구 도시재생사업(우리동네살리기) 혜휼당(커뮤니티센터) 조성사업 건축 설계공모_ 4등작 / 바운더리스 건축사사무소 (0) | 2025.09.08 |
| 북부노인복지시설 건립 기본 및 실시 설계 공모_ 3등작 / (주)보이드아키텍트건축사사무소 (0) | 2025.09.02 |
| 고성소방서 회화119안전센터 신축사업 설계공모_ 5등작 / 토브건축사사무소 (0) | 2025.09.01 |
마실와이드 | 등록번호 : 서울, 아03630 | 등록일자 : 2015년 03월 11일 | 마실와이드 | 발행ㆍ편집인 : 김명규 | 청소년보호책임자 : 최지희 | 발행소 : 서울시 마포구 월드컵로8길 45-8 1층 | 발행일자 : 매일



