
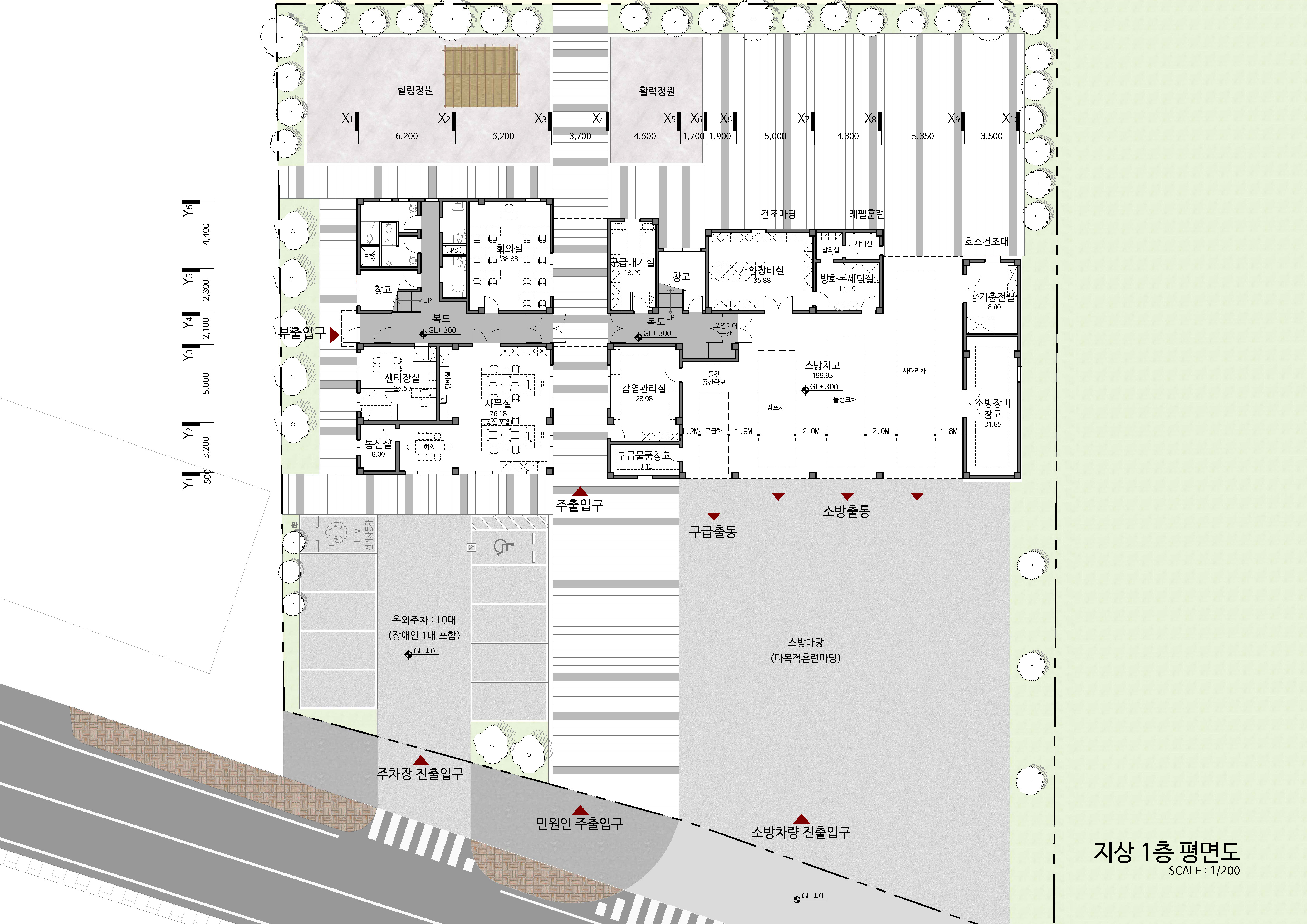
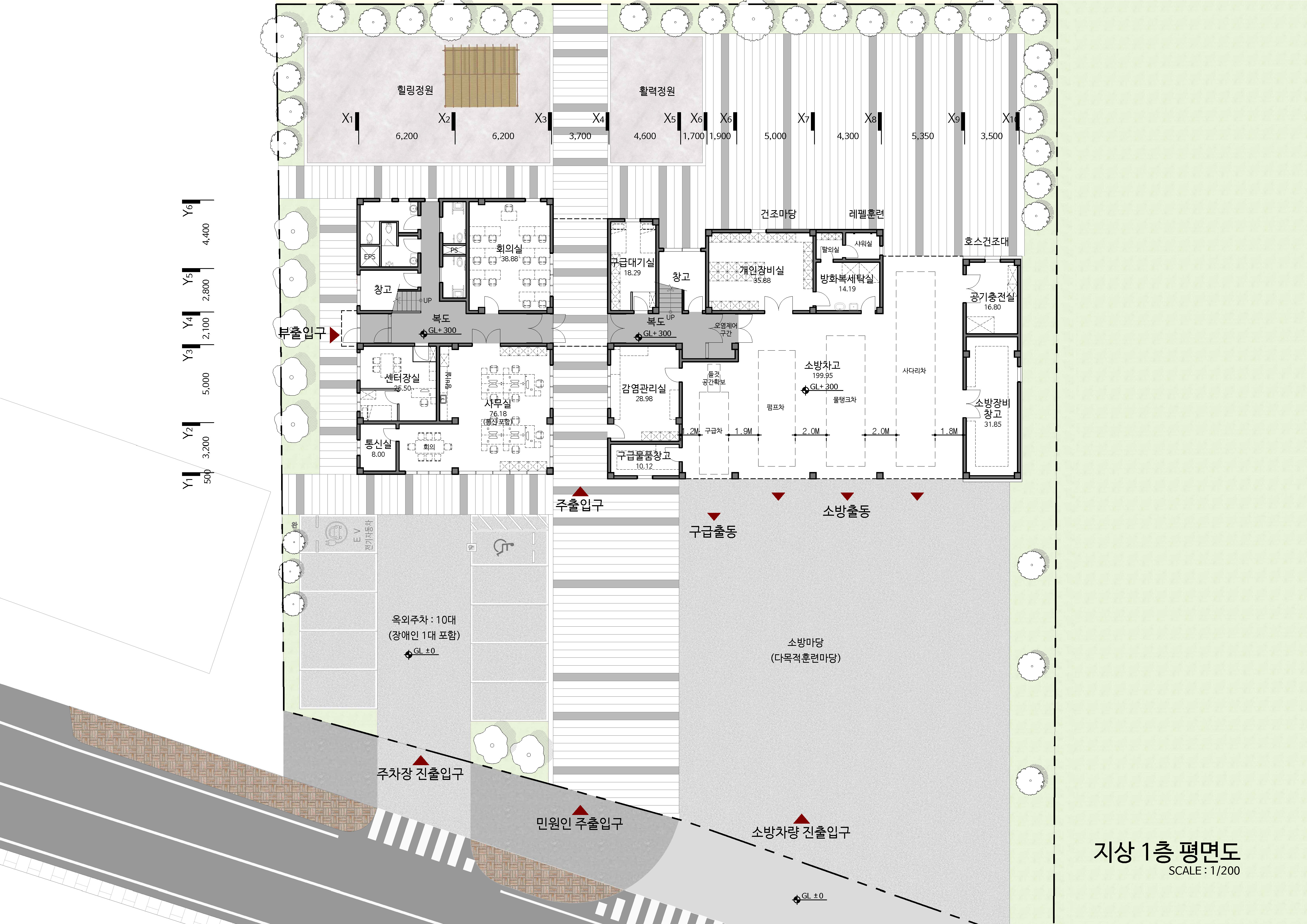
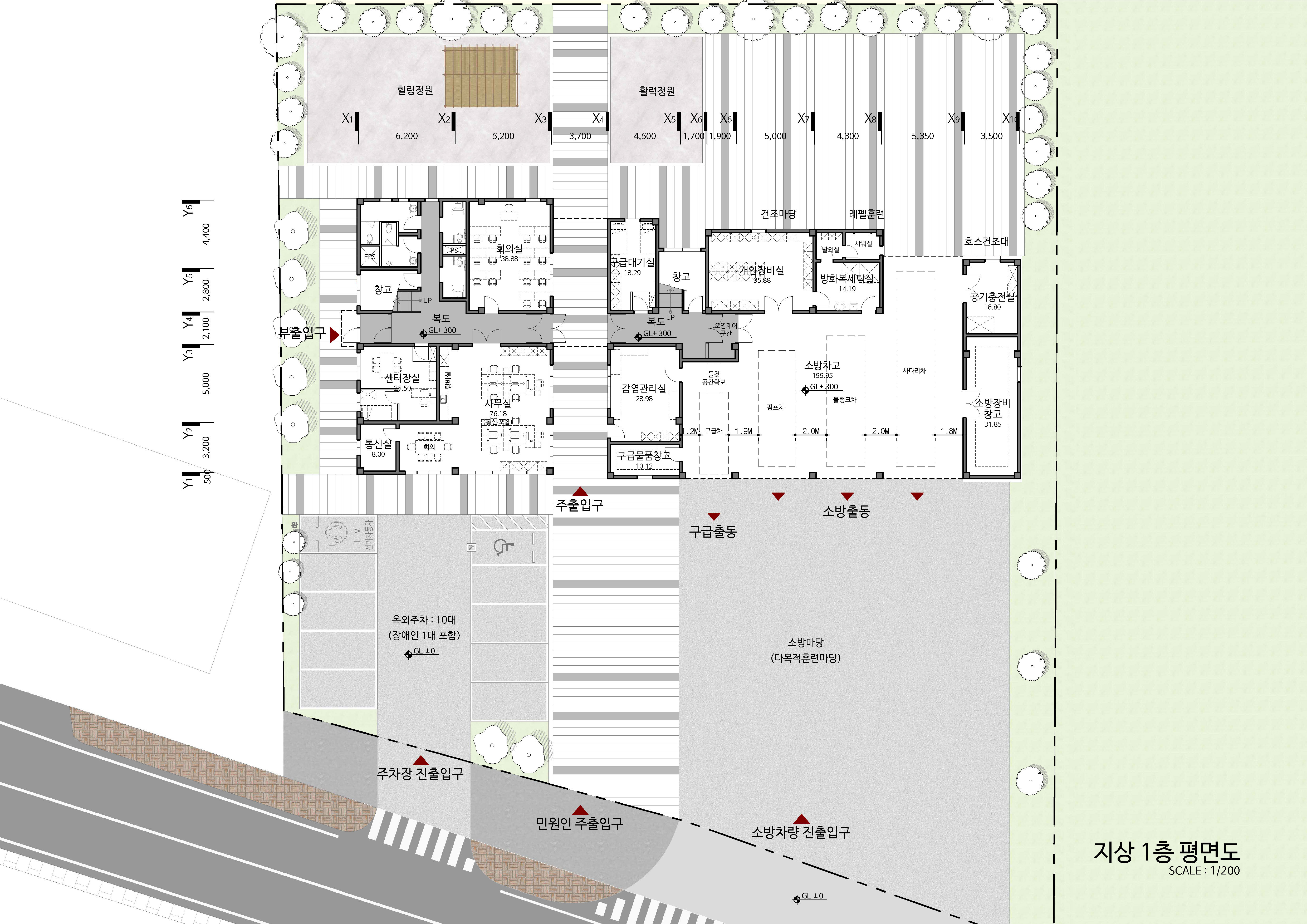
이 소방서는 단순한 업무시설이 아닌, 마을과 함께 호흡하는 ‘열린 안전 거점’입니다. 우리는 ‘24시간 깨어 있는 마을의 등대’라는 개념에서 출발했습니다. 주요 진입부는 누구에게나 열려 있으며, 소방대원들의 동선은 신속성과 효율성을 중심으로 동선을 계획하였습니다. 또한 훈련장은 반개방형으로 설계되어 마을 아이들과 주민들이 일상 속에서 안전을 체험하는 교육의 장이 됩니다. 이처럼, 본 소방서는 기능을 넘어 지역사회와 공감하는 공간이자 상징적 건축물로 자리잡기를 기대합니다.
기존 고성소방서 회화119안전센터는 부지가 협소하여 소방훈련 등에 어려움이 있어, 대지 이전 신축하여 신속하고 효율적인 출동 및 안전하고 쾌적한 휴식을 제공하고 동선을 고려한 배치, 명확한 프로그램 조닝, 119안전센터의 상징성을 설계 주안점으로 두어
지역의 안전을 책임지고 소방대원들의 안전을 보장하는 최적의 고성소방서 회화119안전센터가 되고자 합니다.










토브건축사사무소
5등작_토브건축사사무소
대표건축가 정형식
대지면적 2,619.00㎡
연면적 990.23㎡
건축면적 649.49㎡
건폐율 24.80%
용적률 37.81%
최고높이 12.70m
층수 지상 2층
구조 철근콘크리트구조
대표건축가 정형식
디자인팀 문세라, 성하람
조경면적 174.34㎡
주차대수 10대
발주처 경상남도 소방예산장비과
'Plans' 카테고리의 다른 글
| 칠원 구성지구 도시재생사업(우리동네살리기) 혜휼당(커뮤니티센터) 조성사업 건축 설계공모_ 4등작 / 바운더리스 건축사사무소 (0) | 2025.09.08 |
|---|---|
| 북부노인복지시설 건립 기본 및 실시 설계공모_ 3등작 / (주)보이드아키텍트건축사사무소 (0) | 2025.09.02 |
| 충청남도 부여소방서 증축사업 설계공모_ 4등작 / (주)서인종합건축사사무소 (0) | 2025.09.01 |
| 제2수목원 방문자센터 목조건축 건립사업 일반공모_ 4등작 / 오픈스튜디오 건축사사무소 (0) | 2025.08.29 |
| 송산문화스포츠센터 건립사업 건축설계 일반설계공모_ 5등작 / (주)제이알건축사사무소 + Yong Yeob kim Architects (0) | 2025.08.29 |
마실와이드 | 등록번호 : 서울, 아03630 | 등록일자 : 2015년 03월 11일 | 마실와이드 | 발행ㆍ편집인 : 김명규 | 청소년보호책임자 : 최지희 | 발행소 : 서울시 마포구 월드컵로8길 45-8 1층 | 발행일자 : 매일



