
평택 북부노인복지시설 - 모두를 품는 마을사랑방
모두에게 열린 공간
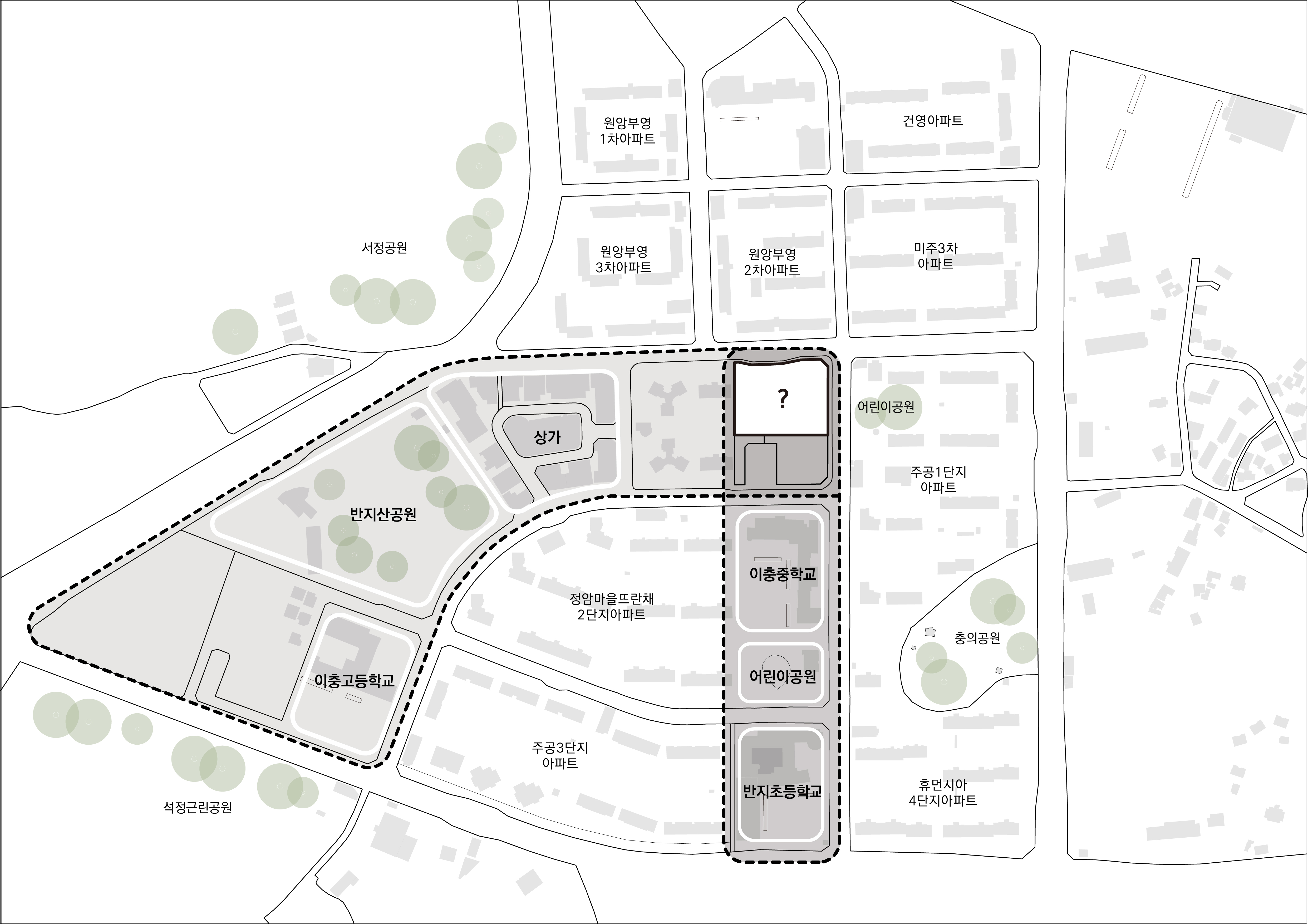
평택 북부노인복지시설이 들어설 부지는 남북축을 따라 어린이공원, 초·중학교, 유치원, 청소년시설이 들어서는 공공부지의 끝단에 위치한다. 또한, 서쪽으로부터 반지산 공원, 상가지역으로 이어지는 중심 생활가로와 면해 있다. 남북과 동서방향의 주요 가로축이 교차하는 지점에 들어서게 될 노인복지관의 대지는 어떤 성격을 가져야 할까? 대지를 둘러싸고 있는 주변영역은 모두 사적인 아파트 단지로 구성되어 있어 노인복지관의 대지는 모두가 향유할 수 있는 열린 공간의 태도가 필연적이다.
인접대지를 포함한 통합마스터플랜
저층부는 지역주민들을 위한 마주침 공간을 품고 있으며, 대지와 연접하여 유치원과 청소년시설이 같은 블록을 함께 공유하고 있다. 다양한 세대 간 교류를 유발할 수 있는 유기적 통합 구성이 필요하다. 중심축을 따라 세 영역을 연결하고 하나의 대지로 인식되게 한다.
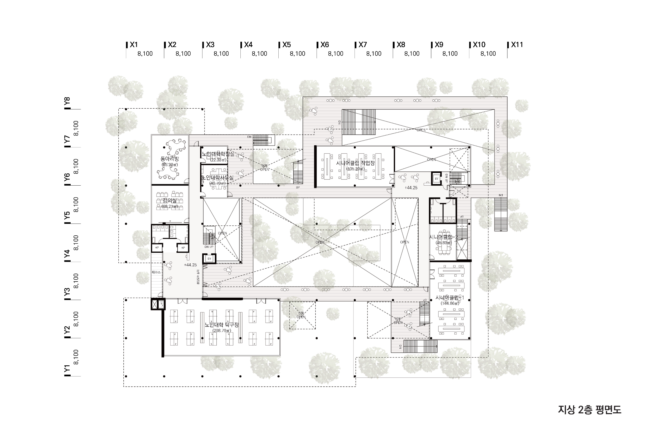
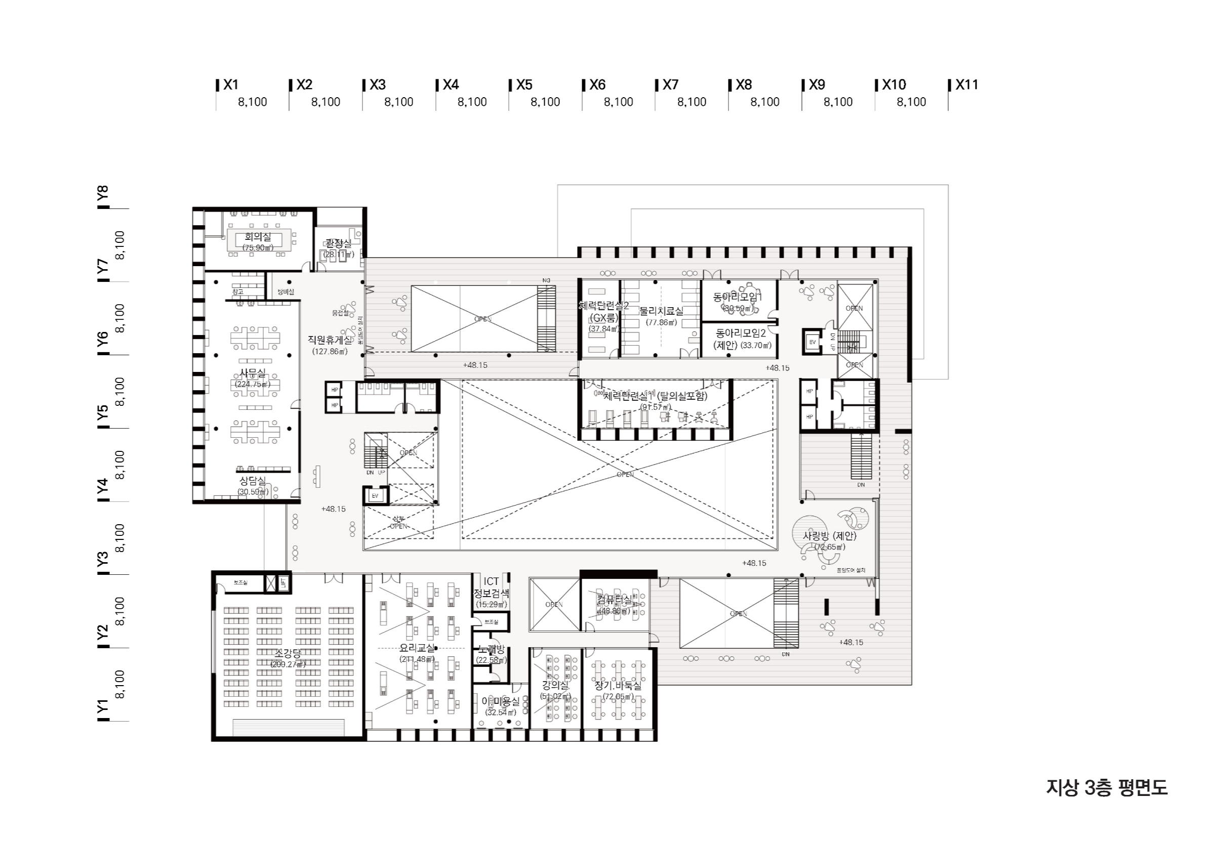
녹음을 품기 위한 공중 대지
노인복지관을 위한 대지는 공중으로 들어 올려지고, 그 아래 남겨진 대지의 많은 여백은 마주침 공간과 함께 모두가 누릴 수 있는 녹지공원으로 조성된다.
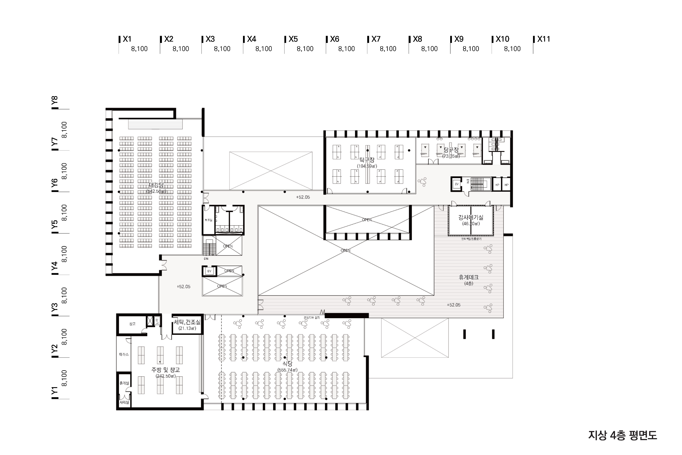
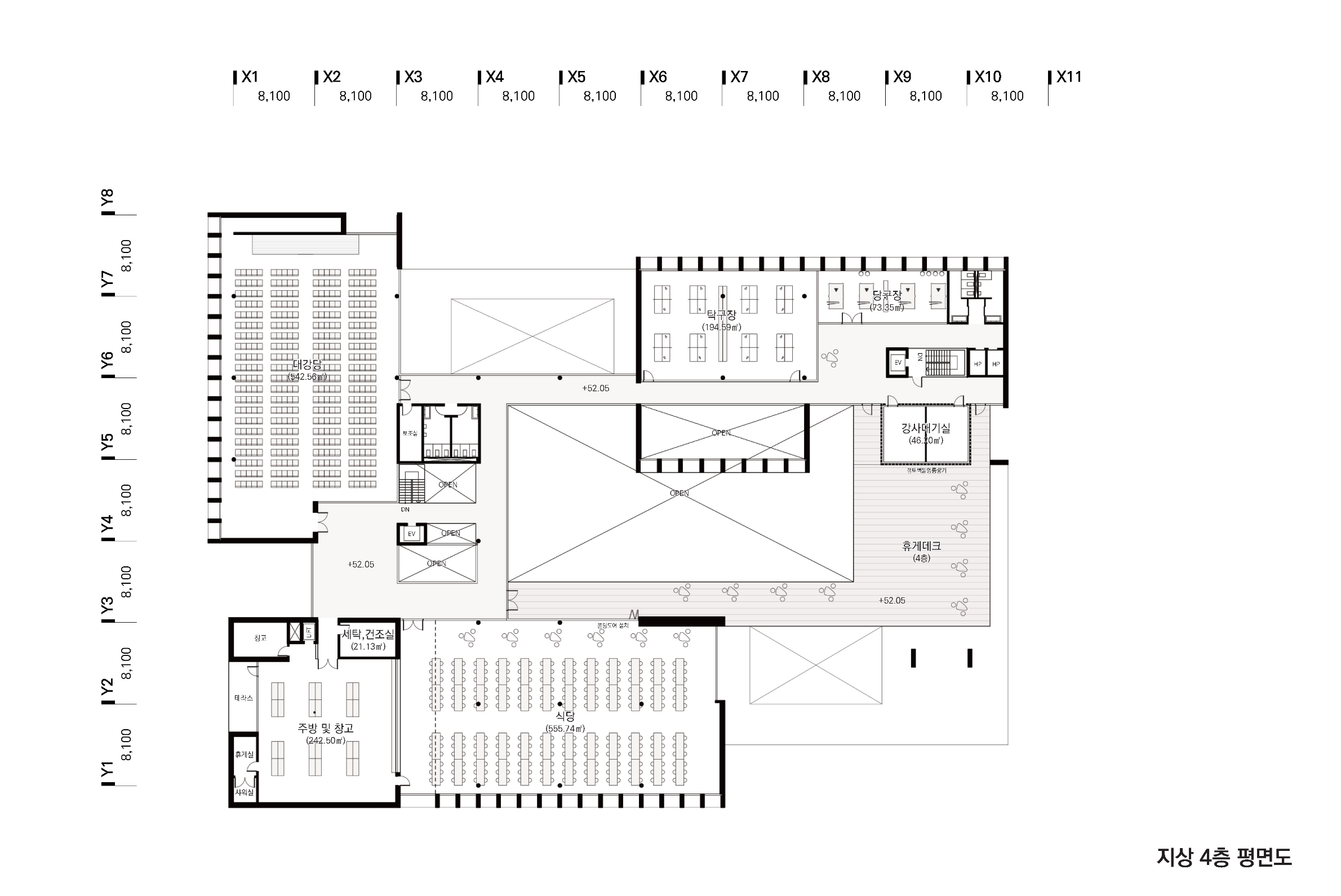
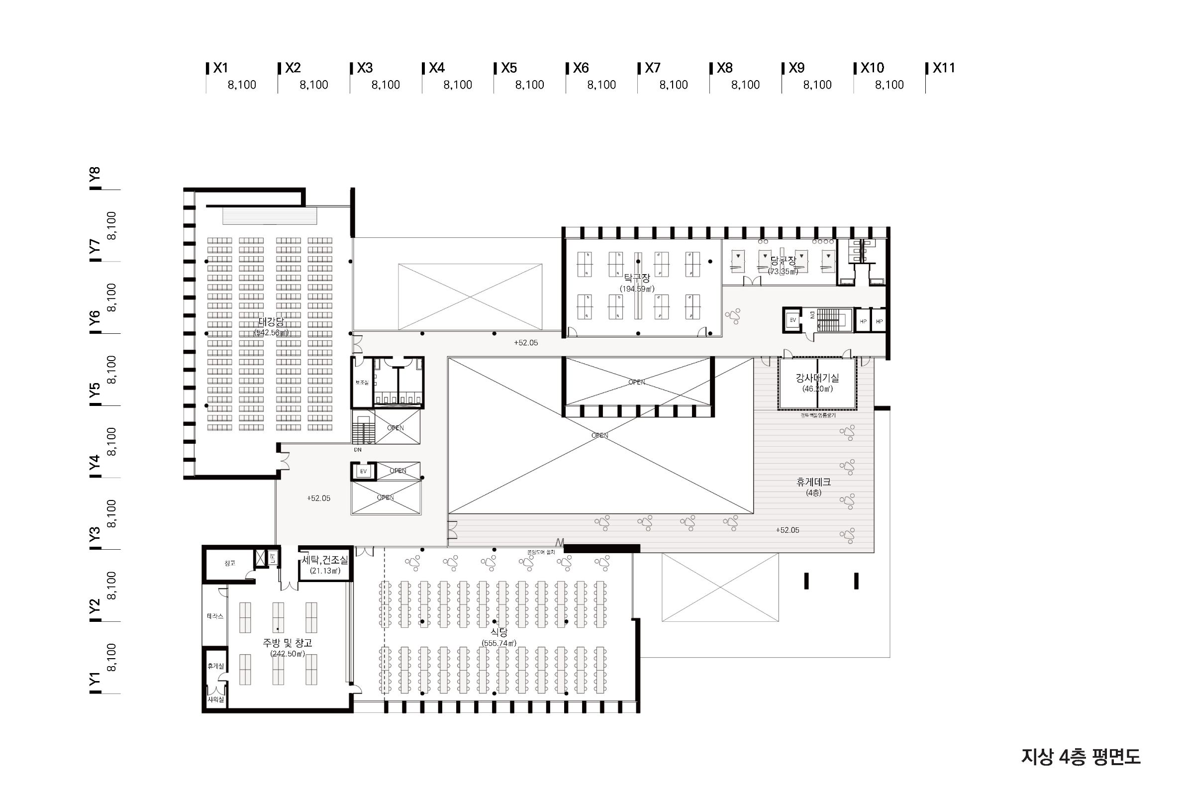
프로그램 조닝계획
다양한 공간 프로그램 영역이 서로 고유의 영역을 만들면서도 적절한 출입 통제 시스템을 통해 개방 영역을 확장하고 서로 교차하게 하여 공간 향유의 풍부함을 돕는다.
노인에 대한 긍정적 인식변화
누구나 노인이 된다. 새롭게 들어설 북부노인복지시설은 노인은 부양해야 할 부담스러운 존재가 아니라 미래 세대에게 즐겁고 희망찬 노년생활을 꿈꾸게 하는 긍정적인 공간매개체가 되고자 한다.
녹음이 함께하는 도심 테라스
대지와 면하는 가로로부터 녹음을 따라 3개 층으로 엮어지는 도심테라스는 다양한 입체적 외부영역을 주민에게 제공하고 건조했던 가로를 따라 풍부한 생활환경을 드러낸다.
















(주)보이드아키텍트건축사사무소
3등작_ (주)보이드아키텍트건축사사무소 (https://www.voidarch.com/)
대표건축가 장기욱
대지면적 6,310.80㎡
연면적 10,031.25㎡ (용적율산정용: 7,489.64㎡)
건축면적 3,502.61㎡
건폐율 55.50%
용적률 118.68%
최고높이 21.85m (EL+39.0기준)
층수 지하 1층, 지상 4층
구조 철근콘크리트조 + 철골조
대표건축가 장기욱
디자인팀 남정훈, 황호상, 김철휘, 이주연, 이지민, 이채영, 홍채원, 박지해
조경면적 2,645.95㎡ (대지면적의 41.93%)
주차대수 총 88대 (지상2대, 지하86대)
발주처 평택시
'Plans' 카테고리의 다른 글
| 칠원 구성지구 도시재생사업(우리동네살리기) 혜휼당(커뮤니티센터) 조성사업 건축 설계공모_ 5등작 / 박희도 건축사사무소 (0) | 2025.09.08 |
|---|---|
| 칠원 구성지구 도시재생사업(우리동네살리기) 혜휼당(커뮤니티센터) 조성사업 건축 설계공모_ 4등작 / 바운더리스 건축사사무소 (0) | 2025.09.08 |
| 고성소방서 회화119안전센터 신축사업 설계공모_ 5등작 / 토브건축사사무소 (0) | 2025.09.01 |
| 충청남도 부여소방서 증축사업 설계공모_ 4등작 / (주)서인종합건축사사무소 (0) | 2025.09.01 |
| 제2수목원 방문자센터 목조건축 건립사업 일반공모_ 4등작 / 오픈스튜디오 건축사사무소 (0) | 2025.08.29 |
마실와이드 | 등록번호 : 서울, 아03630 | 등록일자 : 2015년 03월 11일 | 마실와이드 | 발행ㆍ편집인 : 김명규 | 청소년보호책임자 : 최지희 | 발행소 : 서울시 마포구 월드컵로8길 45-8 1층 | 발행일자 : 매일



