
본 사업지는 노후화된 기숙사로 인해 학생들의 휴게공간 부족, 내·외부공간 간 개방성과 연속성 미흡, 공용공간의 협소함 등의 여러 문제를 안고 있다. 특히 다인실, 공동세면장, 냉난방 설비 등 낡은 생활시설은 현대화가 필요한 상황이다. 이에 따라 본 계획은 기숙사 시설의 개보수를 통해 학생들에게 보다 나은 교육 및 거주환경을 제공하고자 한다.
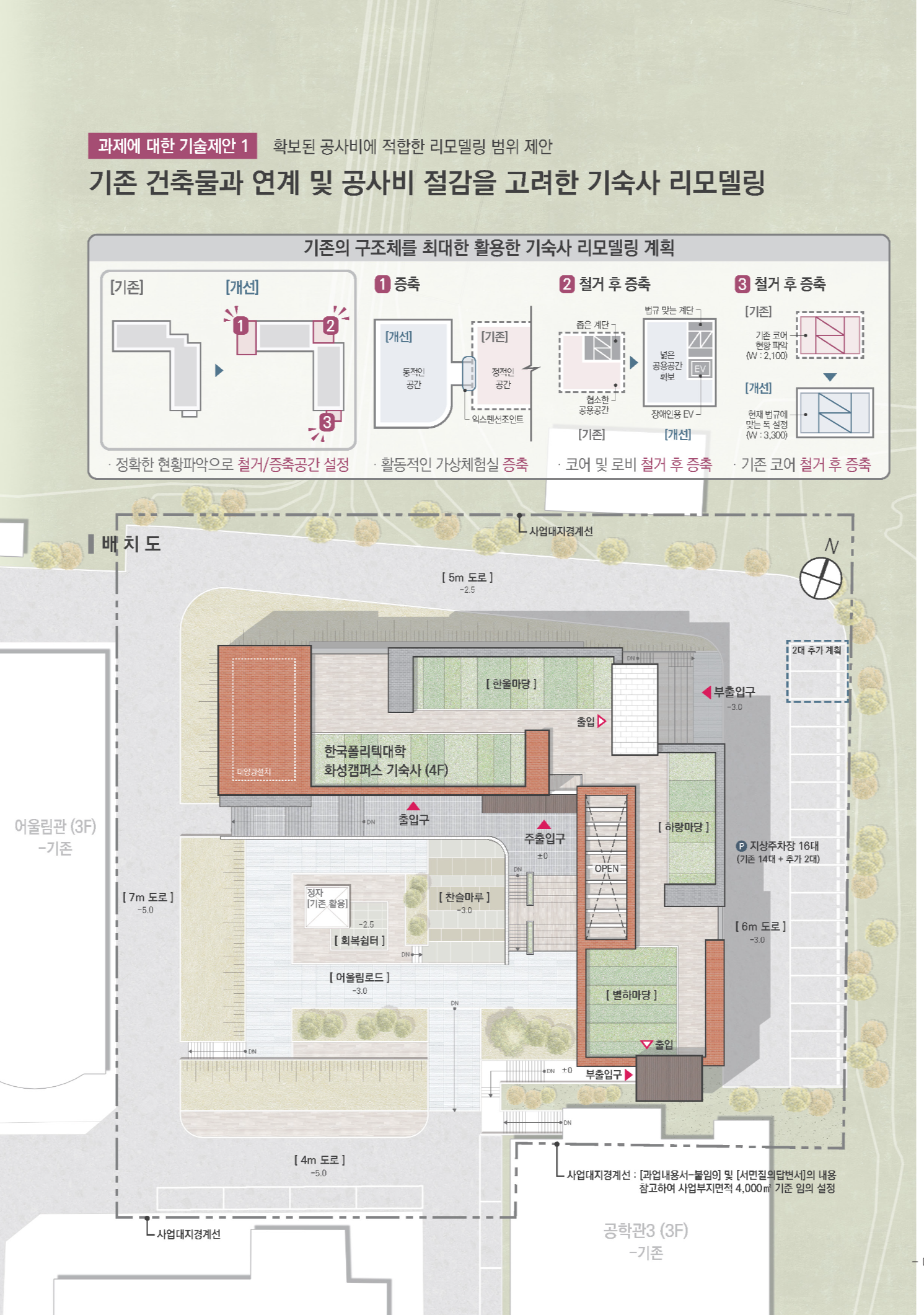
[기존 구조를 최대한 활용한 기숙사 리모델링 계획]
기존 구조체를 최대한 활용하며, 일부 공간을 철거 및 증축하여 공간을 확보하였다. 건물 좌측 증축을 통해 활동적인 공간을 마련하였으며, 기존의 좁았던 홀과 계단실은 철거 후 넓은 홀과 승강기로 재구성하여 이동의 편의성을 강화하였다. 남쪽의 협소했던 계단실은 철거하고 현행 법규에 부합하게 개선하여 안전하고 편리한 동선을 확보하였다.
[학생들을 위한 외부공간 및 공용공간계획]
기존 지형의 특징에 따라 지하 1층과 지상 1층에는 열린 공용공간을 배치하였다. 학생들의 교류와 휴식을 고려하여 찬슬마루, 회복쉼터, 어울림로드를 배치하여 다양한 외부 휴식공간을 제공하였다. 지하 1층은 외부공간인 찬슬마루에서 바로 출입이 가능한 공간으로 카페, 매점, 소무대 등 열린공간으로 계획하여 활용성을 높였다.또한 지상 1층과 연계된 수직 오픈부를 통해 쾌적하고 다채로운 휴게공간을 조성하였다. 지상 1층은 개방감 확보 및 다방면 접근이 가능하게 하도록 슬아데크를 계획하였다. 메인홀을 중심으로 열린 도서관 배치를 통해 학생들에게 쾌적한 학습환경을 제공하였다. 가상체험실은 활동적인 공간으로 건물 좌측에 새롭게 증축되는 공간에 배치하며, 체력단련실은 기존 구조를 활용하여 락카룸과 기구보관함을 구획하고 쉼터 방향으로 열린공간이 될 수 있도록 계획하였다.
[안정적 거주공간을 위한 공간배치]
학생들을 위한 기숙사는 프라이버시 확보를 위해 지상 2층부터 계획하였고, 메인홀과 인접한 곳에는 쿠킹스튜디오와 폴리라운지를 두었으며, 기숙사 사이사이에도 휴게라운지와 세탁실 등 공용공간을 조성하여 휴게할 수 있는 공간을 계획하였다. 이러한 공용공간을 지나 안쪽에 기숙사를 배치하였다. 각 실은 남향일조를 최대한 받을 수 있도록 배치하며, 발코니를 두어 학생들의 편의을 위한 공간를 제공하였다. 2층에 위치한 여자기숙사는 사감실과 인접배치하고, 메인 수직동선 외 별도의 동선을 제한하여 안전성과 보안성을 강화하였다. 장애인 전용 기숙사는 남, 여 각각 수직동선과 가까이 두어 이용 효율성을 높였다.
[주변환경과 조화를 이루는 입단면 계획]
공용공간과 거주공간의 수직적인 구분을 통해 기숙사의 영역성을 구축하였다. 기숙사 실을 다층적 구성으로 배치하여 학생들의 프라이버시가 자연스레 확보되고 쾌적한 거주공간이 될 수 있도록 구성하며 이를 입면 디자인으로 도출하였다. 전체적인 입면 디자인은 기존 학교 시설의 재료를 활용하여 캠퍼스와 일체감 있는 디자인으로 계획하였으며, 기숙사는 거주공간으로서 목재패널을 사용하여 따뜻한 분위기를 조성하였다.





(주)에스지파트너스 건축사사무소
2등작_ (주)에스지파트너스 건축사사무소 (www.sgpa.co.kr)
대표건축가 최기성
대지면적 29,232.00m²
연면적 2,984.61m²
건축면적 744.74m²
건폐율 2.55%
용적률 10.21%
최고높이 14.85m
층수 지하 1층, 지상 4층
구조 철근콘크리트구조
대표건축가 최기성
디자인팀 김윤정, 박소영, 최윤호, 이가은
주차대수 기존 164대 + 신설 2대 계획
발주처 학교법인 한국폴리텍
'Plans' 카테고리의 다른 글
| 예산군 광시면 기초생활거점조성사업 광시 어울림센터 설계공모_ 5등작 / 은초아키텍텐 건축사사무소 (0) | 2025.09.12 |
|---|---|
| 해양공학연구동 위험유해환경 개선사업 설계 용역_ 당선작 / 콤마건축사사무소 (0) | 2025.09.11 |
| 진해 동부권 생활문화센터 건립 설계공모_ 4등작 / 건축사사무소 세움 (0) | 2025.09.11 |
| 진해 동부권 생활문화센터 건립 설계공모_ 3등작 / 와브건축사사무소 (0) | 2025.09.11 |
| 칠원 구성지구 도시재생사업(우리동네살리기) 혜휼당(커뮤니티센터) 조성사업 건축 설계공모_ 당선작 / (주)SGHS 설계회사 건축사사무소 (0) | 2025.09.08 |
마실와이드 | 등록번호 : 서울, 아03630 | 등록일자 : 2015년 03월 11일 | 마실와이드 | 발행ㆍ편집인 : 김명규 | 청소년보호책임자 : 최지희 | 발행소 : 서울시 마포구 월드컵로8길 45-8 1층 | 발행일자 : 매일



