
미래의 교육을 잇는 다층적 도시로서의 학교
학교는 지난 100여 년 동안 수많은 제도와 교육정책의 변화를 겪었지만, 이를 뒷받침하는 공간의 변화는 미미했다. 본 프로젝트는 미래 교육을 담아낼 새로운 질서를 기존 학교 질서 위에 중첩시키는 것을 목표로 시작되었다.

학교의 통합적 변화: 덧붙임을 넘은 재구조화
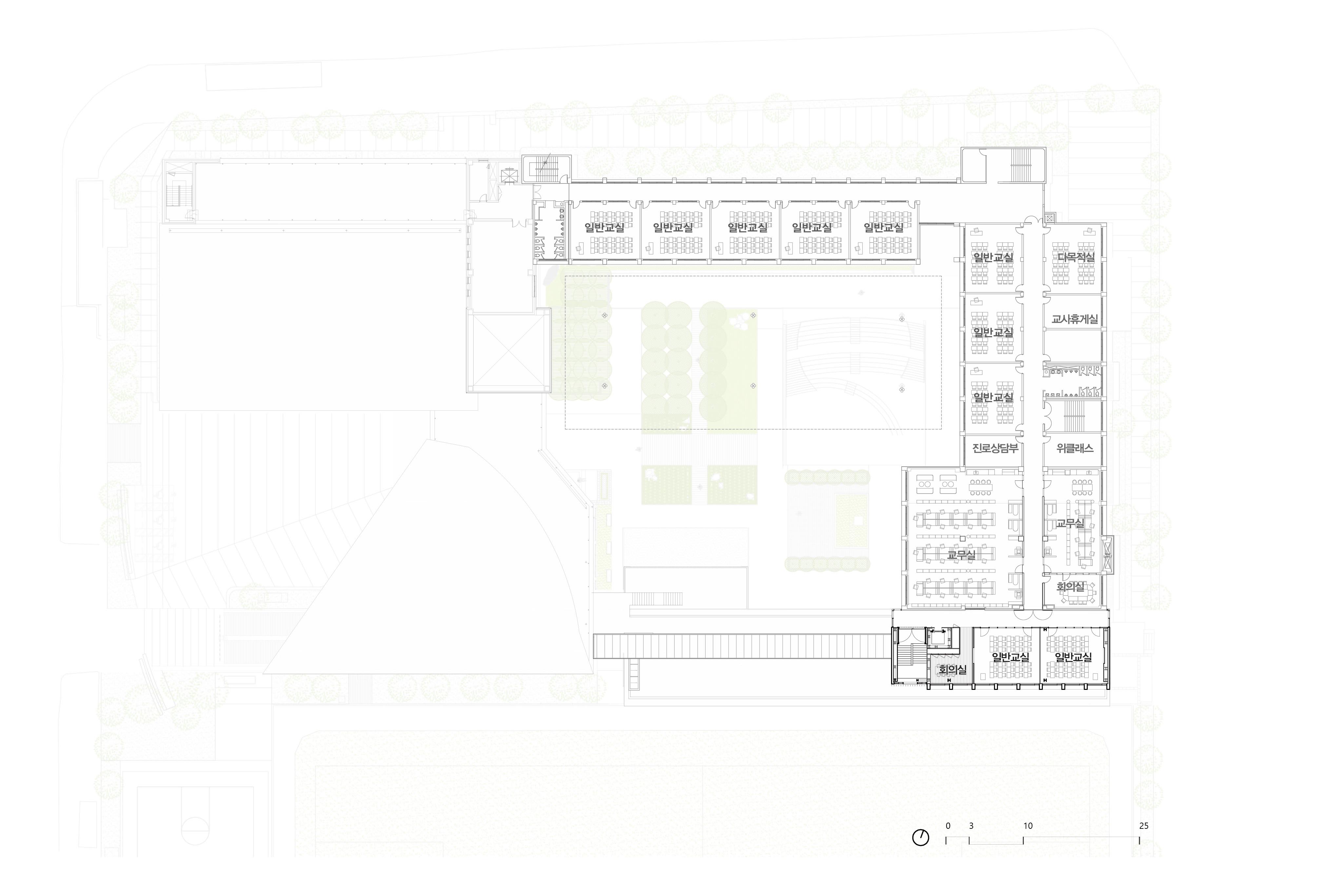
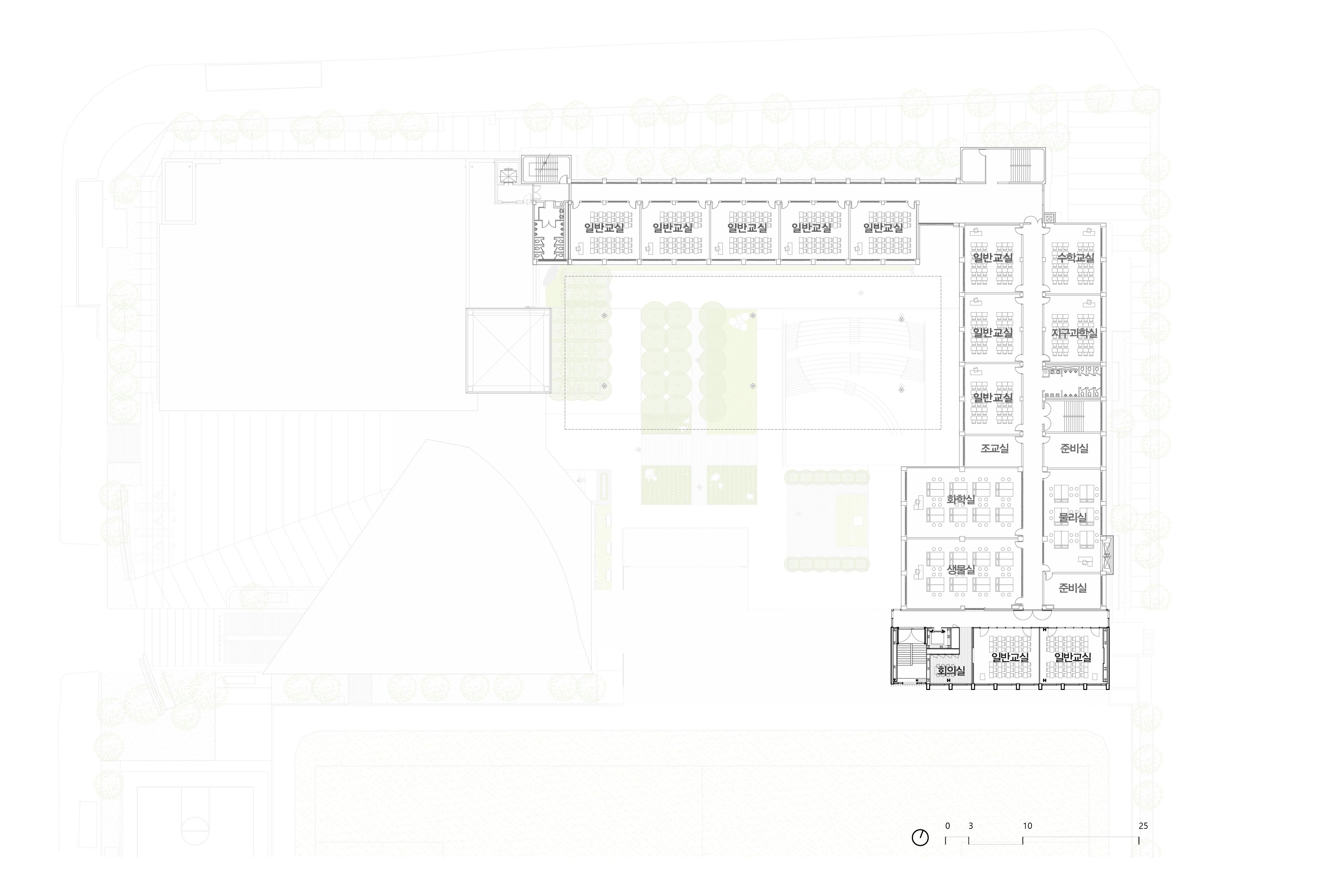
원익관은 1980년대에 지어진 교사동, 2000년대에 증축된 체육관과 다목적강당동 등 시대가 다른 건축물들을 유기적으로 연결하고 통합하고자 했다. 건물은 축구장 규격의 운동장을 보존하면서 기존 교사동과 다목적강당동을 잇고 순환 동선을 만들 수 있도록 운동장 장변을 따라 남향으로 배치했다.



증축을 통해 형성된 중정에는 조경을 계획해 구성원들이 자연스럽게 소통하고 쉴 수 있는 정원을 마련했다. 또한 3층 옥상정원을 더해 내부와 외부 공간을 넘나드는 일상 속 공간 경험을 만들고자 했다. 외관은 기존 학교 건물의 붉은 벽돌을 사용하되 새로운 재료로 섬세하게 정리하여, 여러 동이 하나의 건물처럼 인식되도록 했다. 이를 통해 과거와 현재가 공존하면서도 미래 교육의 정체성을 담은 학교의 이미지를 구축했다.








장스팬 트러스 무주공간: 미래 학교 공간의 실험
건물은 지하 주차장의 기초를 보강하고, 장스팬 철골 트러스를 활용해 무주공간을 형성한 2층 자율학습공간과 3~5층의 교실 공간으로 구성되었다. 집중학습공간, 학습카페, 다양한 세미나실 등은 학습, 휴식, 이동, 교류가 복합적으로 이루어지는 환경을 조성해 학생들의 창의적인 배움과 성장을 유도했다.
고교학점제 시행에 대비해, 학생들이 시간표에 따라 교실을 이동하고 공강 시간 동안 자율적으로 공간을 활용할 수 있도록 저층부에 다양한 학생 공간을 배치했다. 운동장과 중정을 조망할 수 있는 2층 자율학습실과 학습카페, 1층 카페테리아 등을 통해 일상 속에서 자연을 체감하고 사유할 수 있는 환경을 마련했다.


백년지대계(百年之大計): 과거 위에 쌓아올린 미래 교육의 터전
이 프로젝트의 핵심은 단순한 증축을 넘어서, 학교 전체의 통합적 재구조화를 실현한 데 있다. 하나의 순환 동선을 형성해 기존 공간을 유기적으로 연결하고, 학생들이 교실 안에 머무는 것을 넘어 학교 곳곳을 경험하며 주체적으로 성장할 수 있는 환경을 만들고자 했다. ‘교육은 백년지대계’라는 말처럼, 교육을 담는 학교 공간 역시 그만큼 중요하다. 이 공간에서 학생들이 더욱 풍부한 일상을 경험하며 미래세대의 주역으로 성장하길 기대한다.








건축가 (주)프로토건축사사무소, 건축사사무소 나날
위치 서울 강남구 일원동
용도 교육연구시설(고등학교)
대지면적 21,685.8㎡
증축면적 1,972.44㎡
증축후면적 19,150.25㎡
규모 지상 5층
설계기간 2022. 2. - 2022. 8.
시공기간 2023.2. - 2024.3.
준공 2024
대표건축가 윤선경, 조지현
구조엔지니어 ㈜윤구조기술사사무소
기계엔지니어 (주)청림이엔지
전기엔지니어 (주)대경전기설계사무소
사진작가 텍스쳐온텍스쳐
'Architecture Project > Education' 카테고리의 다른 글
| 형색의 빛이 드리우는 도서관 / 웨스트라인 스튜디오 (0) | 2025.09.11 |
|---|---|
| 학교 안으로 여과되는 것들, 휴식과 교육을 위한 공간 / 스튜디오 아시스 (0) | 2025.08.21 |
| 과거를 해석하는 새로운 해법의 건축 / 라몬 에스테베 에스투디오 (0) | 2025.08.08 |
| 콘크리트 루버로 경계를 만드는 고등학교 리모델링 / 아르피오 아키텍츠 (0) | 2025.07.15 |
| 공유형 업무시설의 새로운 프로토타입에 관한 제안, 메가플로어 / 에스티피엠제이 (0) | 2025.04.22 |
마실와이드 | 등록번호 : 서울, 아03630 | 등록일자 : 2015년 03월 11일 | 마실와이드 | 발행ㆍ편집인 : 김명규 | 청소년보호책임자 : 최지희 | 발행소 : 서울시 마포구 월드컵로8길 45-8 1층 | 발행일자 : 매일



