
이 프로젝트는 유럽 대학교가 자신의 가치와 원칙, 그리고 목표를 반영하는 장소에 새로운 도시 캠퍼스를 조성하고자 한 것에서 출발하였다. 그것은 미래에 책임을 다하는 전문가를 양성하면서도, 이전 세대의 유산과 지식을 보존하려는 교육적 의지를 담고 있다. 이전 산 후안 바우티스타 고아원은 1873년에 지어진 신고전주의 양식의 건물로, 역사적·건축적 가치가 뛰어나 재생의 잠재력이 크다. 발렌시아 도심의 전략적 위치는 이곳이 과거와 현재를 연결하는 중요한 지점으로 작용하도록 한다.

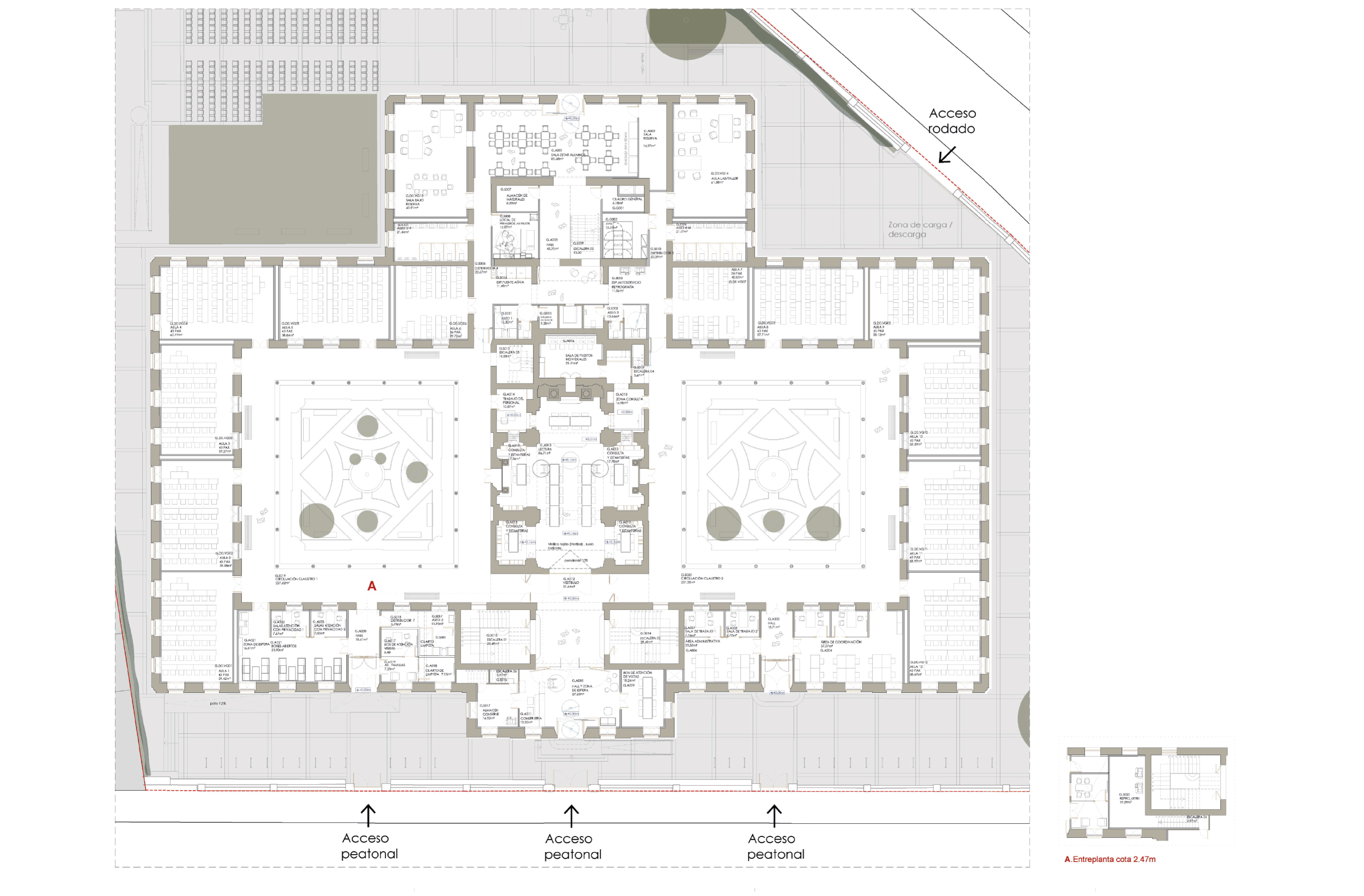
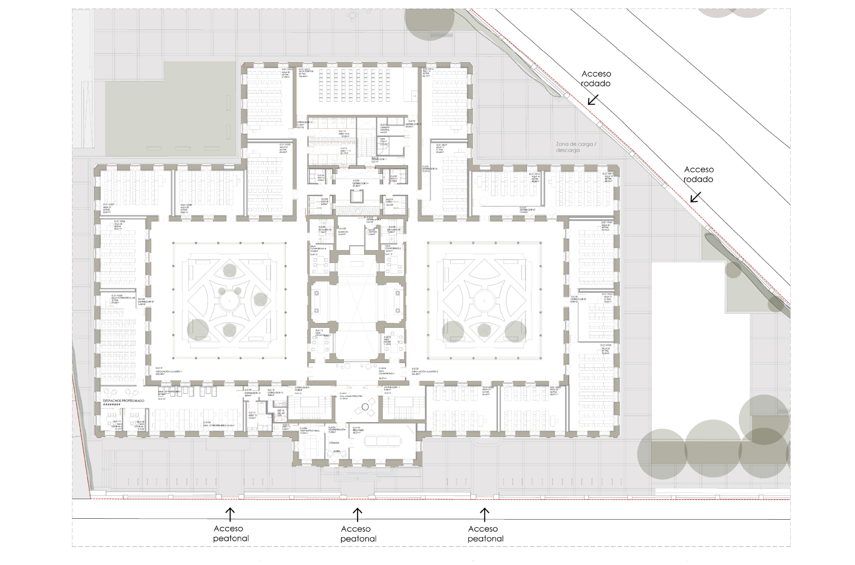
이 프로젝트는 과거의 고아원을 21세기형 교육 공간으로 탈바꿈시키는 데 목적이 있다. 단순한 복원이 아닌, 만남과 혁신, 학문적 성장을 위한 환경 조성이 핵심이다. 캠퍼스는 약2,000명의 학생들을 수용할 수 있도록 설계되었으며, 발렌시아 도심 중심부에서 학문적인 혁신을 이끈다. 프로젝트의 핵심 원칙 중 하나는 기존 건축에 대한 존중이다.



산 후안 바우티스타 고아원의 재생 과정에서, 모자이크, 석재 바닥, 예배당, 회랑과 같은 건축 요소의 보존과 복원이 우선시되었다. 기존 재료와 새로운 재료의 균형 속에서 현대적 해법이 통합되었으며, 건물 고유의 본질은 유지되었다.

건축 설계는 대학의 요구에 부응하여 공간의 다양성, 효율성, 기능성을 중심으로 구성되었다. 전체 구성은 명확하고 균형 잡힌 배치를 기반으로, 두 개의 회랑 동에는 강의실과 교직원실이 배치되고, 중앙부는 공용 공간으로서 만남과 협업을 유도하는 공간으로 설계되었다. 정면에 인접한 공간은 행정용도로 사용된다. 강의실은 이중 입면 구조로 정원과 회랑 양쪽 모두에 면하여 자연광을 풍부하게 받아들이도록 설계되었다. 회랑은 이동 동선이자 자연스러운 만남의 장소로 기능하여 학생과 교직원 간의 상호작용과 활기찬 교육 환경을 조성한다.


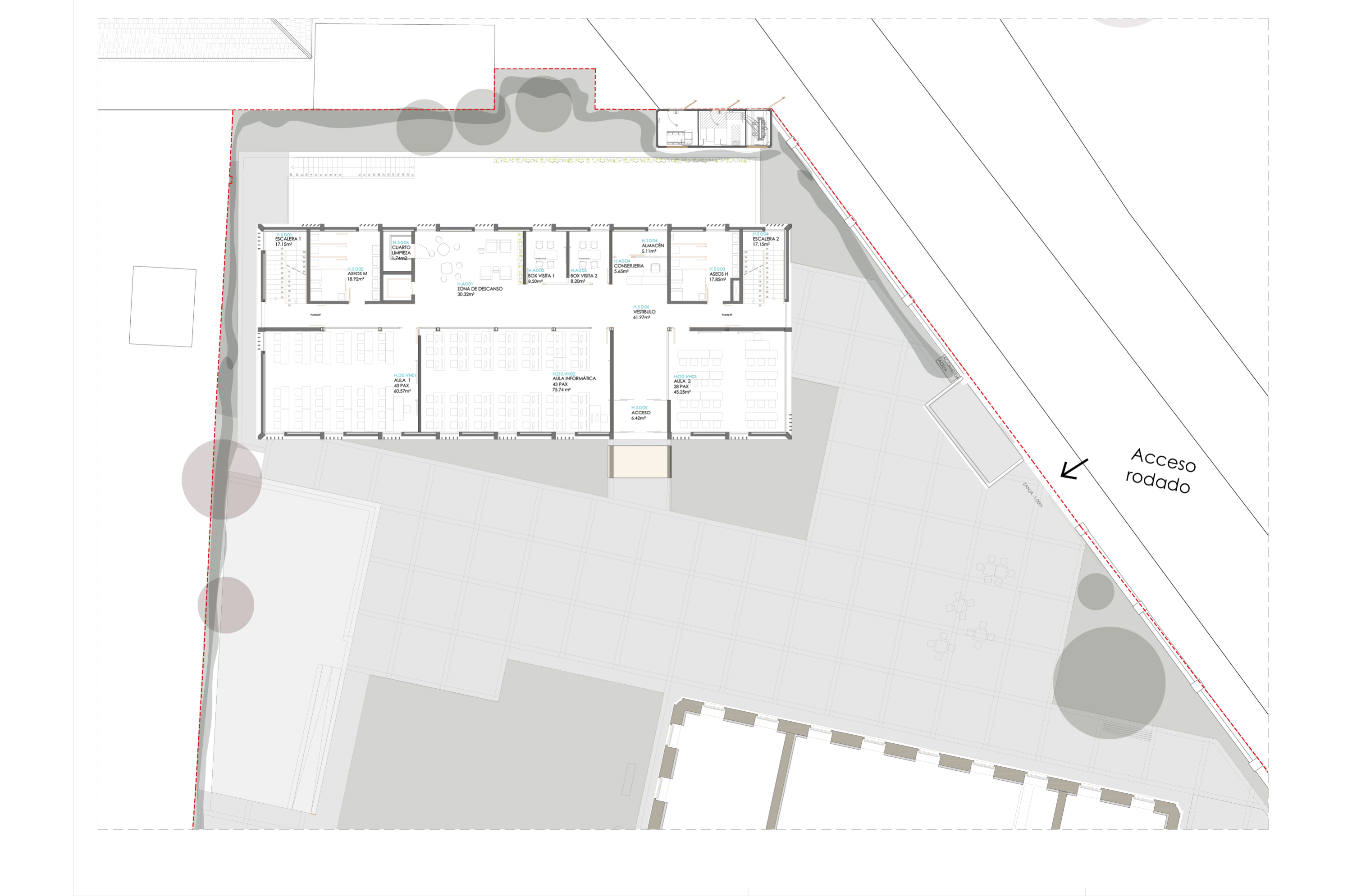
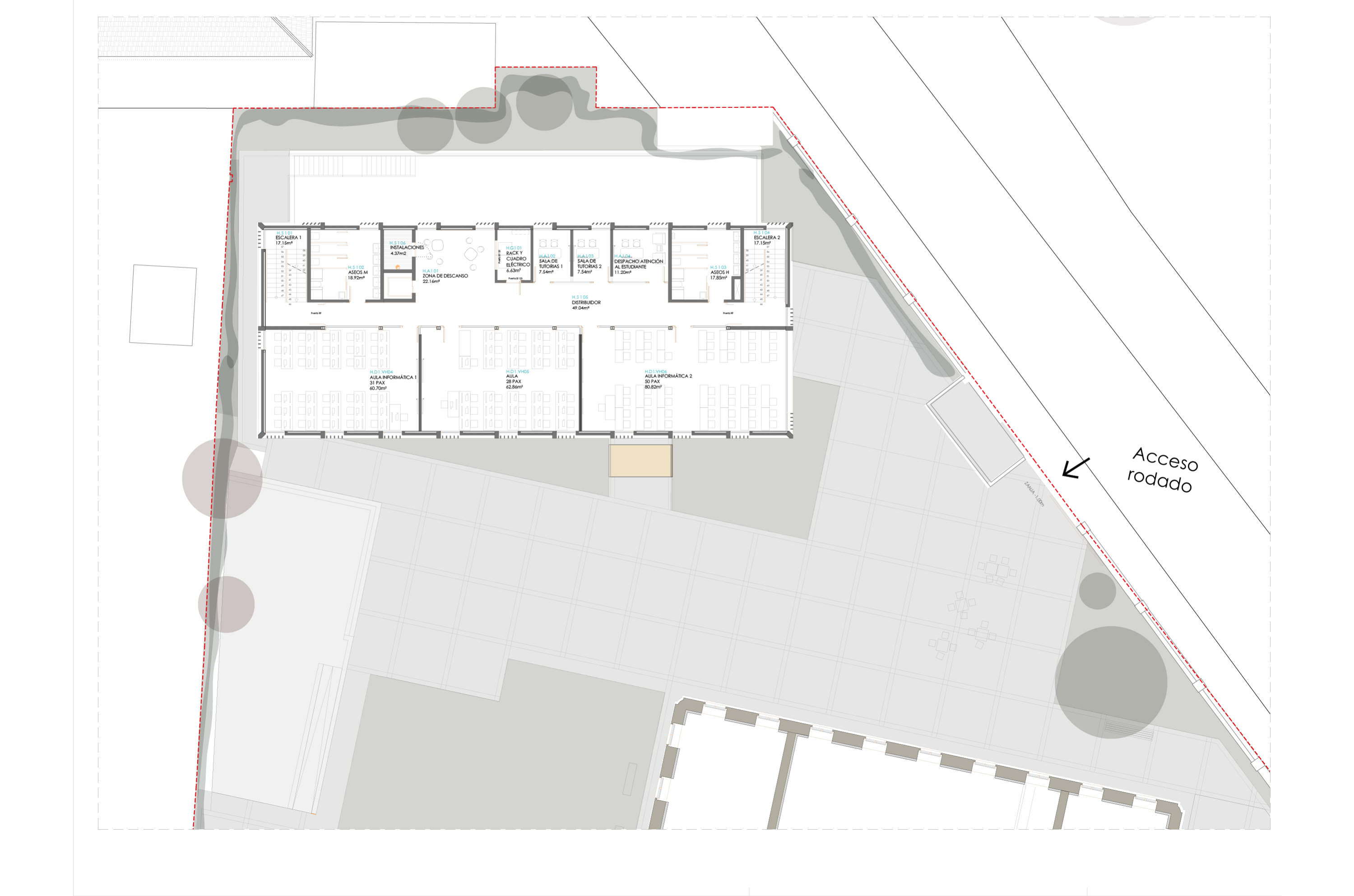
이 역사적 건물의 복원 외에도, 부지 서측에는 신축 부속동이 건립되었다. 이 새로운 매스는 기존 건물과 조화로운 대화를 형성하며, 재료, 색채, 구성 리듬에서 일관성을 유지한다. 이로써 보호 대상인 역사 건축물의 건축적 완결성을 해치지 않으면서도, 현대적 볼륨을 자연스럽게 통합하는 결과를 이끌어냈다. 발렌시아 중심에 자리한 이 건축적 복합체는 문화유산 개입의 모범 사례로 자리매김하며, 디자인과 기능이 조화를 이루는 공간 속에서 풍부한 경험과 효율적인 공간 활용을 가능하게 한다.











건축가 라몬 에스테베 에스투디오 (Ramón Esteve Estudio)
위치 스페인, 발렌시아, 기예름 데 카스트로 거리 175
용도 교육시설
대지면적 7,903㎡
건축면적 3,993㎡
연면적 5,406㎡
규모 지하 1층, 지상 3층
준공 2024
대표건축가 Ramón Esteve
디자인팀 Anna Boscá, Beatriz Gascón, Guillermo Sahuquillo, Beatriz Martín, Teresa Piá
발주자 Universidad Europea
사진작가 Alfonso Calza
'Architecture Project > Education' 카테고리의 다른 글
| 학교 안으로 여과되는 것들, 휴식과 교육을 위한 공간 / 스튜디오 아시스 (0) | 2025.08.21 |
|---|---|
| 과거와 현재를 관통하는 미래를 향한 공간, 중동고등학교 원익관 / (주)프로토건축사사무소, 건축사사무소 나날 (0) | 2025.08.14 |
| 콘크리트 루버로 경계를 만드는 고등학교 리모델링 / 아르피오 아키텍츠 (0) | 2025.07.15 |
| 공유형 업무시설의 새로운 프로토타입에 관한 제안, 메가플로어 / 에스티피엠제이 (0) | 2025.04.22 |
| 학문의 허브를 꿈꾸는 대학교 캠퍼스 / 씨씨비에이 디자인즈 (0) | 2025.04.21 |
마실와이드 | 등록번호 : 서울, 아03630 | 등록일자 : 2015년 03월 11일 | 마실와이드 | 발행ㆍ편집인 : 김명규 | 청소년보호책임자 : 최지희 | 발행소 : 서울시 마포구 월드컵로8길 45-8 1층 | 발행일자 : 매일



