
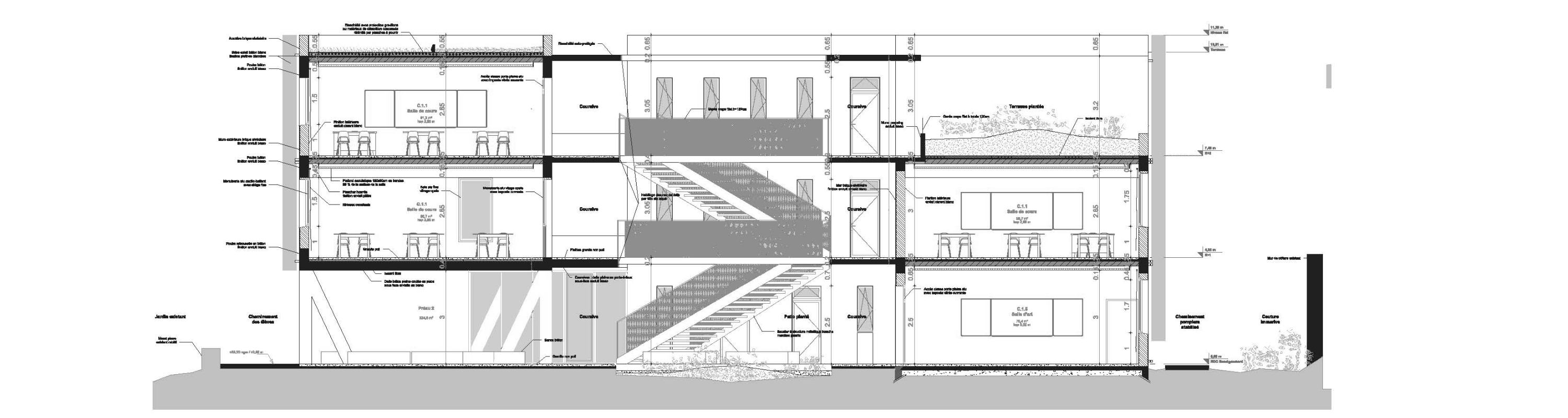
설계안은 중앙 중정을 중심으로 구성된 전통 모로코 주택에서 영감을 받았다. 중정에는 식재가 더해져 채광, 환기, 태양 노출을 조절하며 에너지 성능을 향상시키고, 학생과 교사 모두에게 쾌적한 열·음향 환경을 제공하는 것을 목표로 한다.건물은 각각의 주요 기능에 대응하는 세 개의 분절된 육면체 형태로 구성된다. 중정, 테라스, 빈 공간 등을 활용한 분절은 대지 전면과 중정 측에서의 건물 매스를 시각적으로 분산시켜 보다 가볍게 느껴지도록 한다. 이러한 건축적 접근은 설계 전반에 걸쳐 일관되게 유지·강화된다. 특히, 기존 3층 구조를 제거하여 전체 건물 높이를 정렬함으로써 교장 관사에서 교육동까지 하나의 수평적 입면선을 형성하였다. 행정 구역은 중정의 전면에 배치되어 학교 입구와 중정의 전경을 시야에 담는다.





중정을 따라 이어지는 복도는 사계절 활용 가능한 웰니스 공간으로 계획되었으며, 복도를 따라 이중 배향 교실들이 배치되어 있다. 이 복도에는 측면 배수 시스템이 통합되어 있고, 내구성 높은 금속 외피로 덮여 보호된다.

라바트의 강한 일사량에 대응하기 위해 신축 건물의 동·서측 입면에는 백색 섬유 강화 콘크리트로 제작된 수직 루버가 설치되어 이중 외피 역할을 한다. 중정에서는 개구부를 통해 수목이 자랄 수 있도록 하였다. 옥상에는 수평 루버가 태양광 차단과 구조적 외팔보 지지 역할을 하며, 동시에 옥상정원의 경계를 만든다. 이 루버는 난간 역할을 겸하는 60cm 높이의 스크린으로, 옥상 가장자리를 따라 설치되어 있다. 옥상은 식재된 녹지 스트립과 자갈 길이 교차하는 구성이며, 넓은 자갈 구역은 최대 99명이 모일 수 있는 게스트 테라스를 연장한 공간으로 활용된다.


옥상정원은 구조 보의 축을 따라 식재와 보호용 자갈이 교차 배치되어 있으며, 콘크리트 차양 구조 위에는 덩굴 식물이 자랄 수 있는 격자 구조물이 설치되어 테라스에 그늘을 제공한다. 외관 전체는 통일된 입면 디자인으로 구성되어, 기존 1963년 건물과 새로운 증축이 조화롭게 어우러지도록 하였다. 또한 3D 이미지에 표현된 매끈한 천장을 구현하기 위해, 역보 구조와 통슬래브 및 일체형 보 설계가 적용되었다. 창문 하부에는 높이 50cm의 불투명 스팬드럴이 설치되어 구조 보를 수용함과 동시에 저부 채광을 줄여 채광 효율과 열 성능을 향상시켰다.










건축가 아르피오 아키텍츠(ARPIO Architects)
위치 모로코, 라바트
용도 학교
연면적 6,700㎡
규모 지상 3층
준공 2021
대표건축가 Mohamed BERRADA
사진작가 Jean-Claude Laffitte
'Architecture Project > Education' 카테고리의 다른 글
| 과거와 현재를 관통하는 미래를 향한 공간, 중동고등학교 원익관 / (주)프로토건축사사무소, 건축사사무소 나날 (0) | 2025.08.14 |
|---|---|
| 과거를 해석하는 새로운 해법의 건축 / 라몬 에스테베 에스투디오 (0) | 2025.08.08 |
| 공유형 업무시설의 새로운 프로토타입에 관한 제안, 메가플로어 / 에스티피엠제이 (0) | 2025.04.22 |
| 학문의 허브를 꿈꾸는 대학교 캠퍼스 / 씨씨비에이 디자인즈 (0) | 2025.04.21 |
| 병영부지 안에 세워지는 물결무늬 대학 캠퍼스 / 마리오 쿠치넬라 아키텍츠 (0) | 2025.04.10 |
마실와이드 | 등록번호 : 서울, 아03630 | 등록일자 : 2015년 03월 11일 | 마실와이드 | 발행ㆍ편집인 : 김명규 | 청소년보호책임자 : 최지희 | 발행소 : 서울시 마포구 월드컵로8길 45-8 1층 | 발행일자 : 매일



