
Georgia Savannah와 New York Manhattan은 도시 내 공원을 형성하고 사용하는 방식이 크게 다르다. Savannah는 일정 거리마다 작은 공원을 여러 개 두어 지근거리에 있는 거주민들에게 일상적인 휴식을 제공하는 흡수형 포켓공원의 형태를 취하는 반면 Manhattan의 Central Park는 커다란 공원을 도시의 중심에 두고 시민 전체가 공유/향유하며 다양한 행동들과 이벤트가 가능한 통합형 공원으로 활용되고 있다.



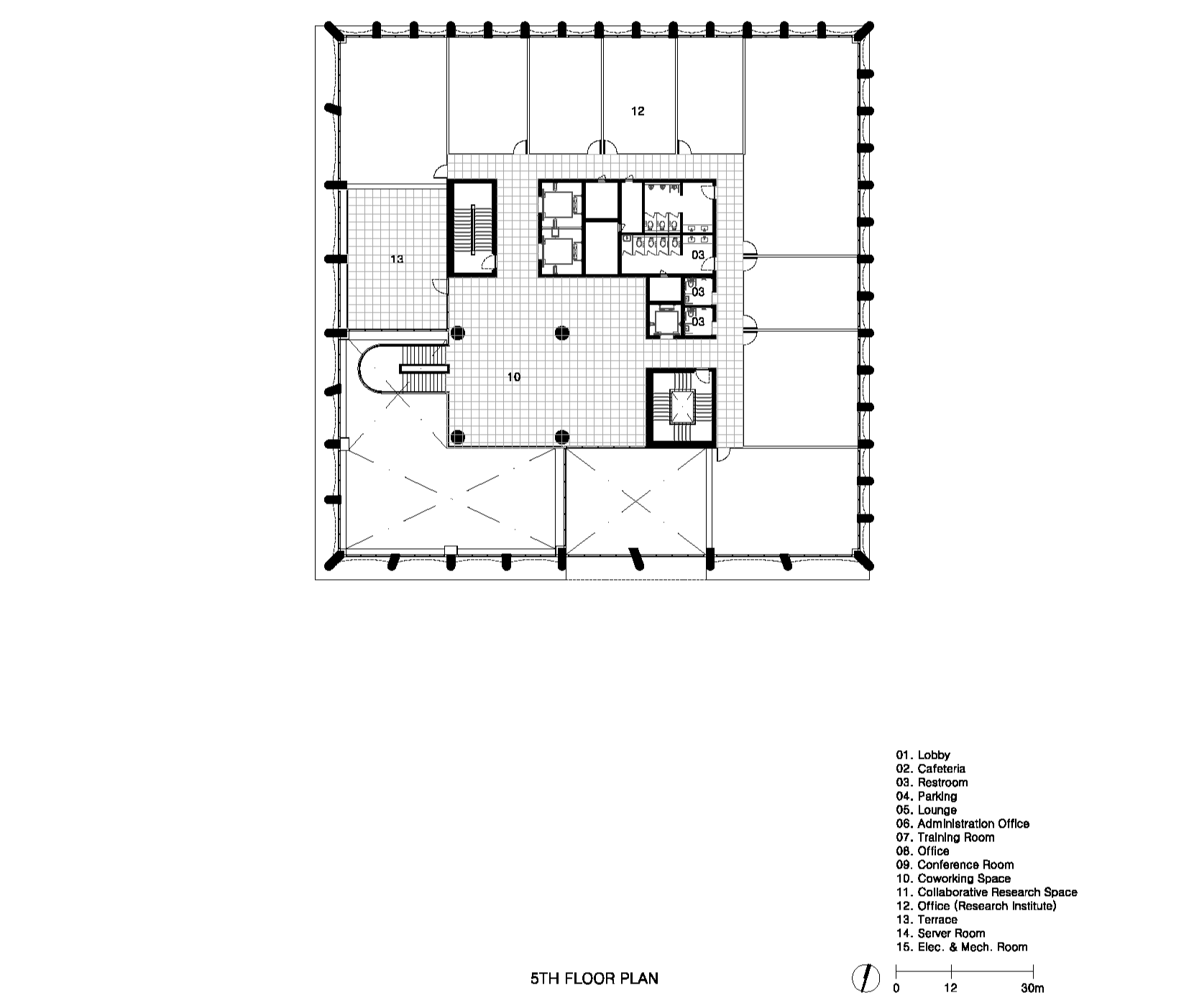
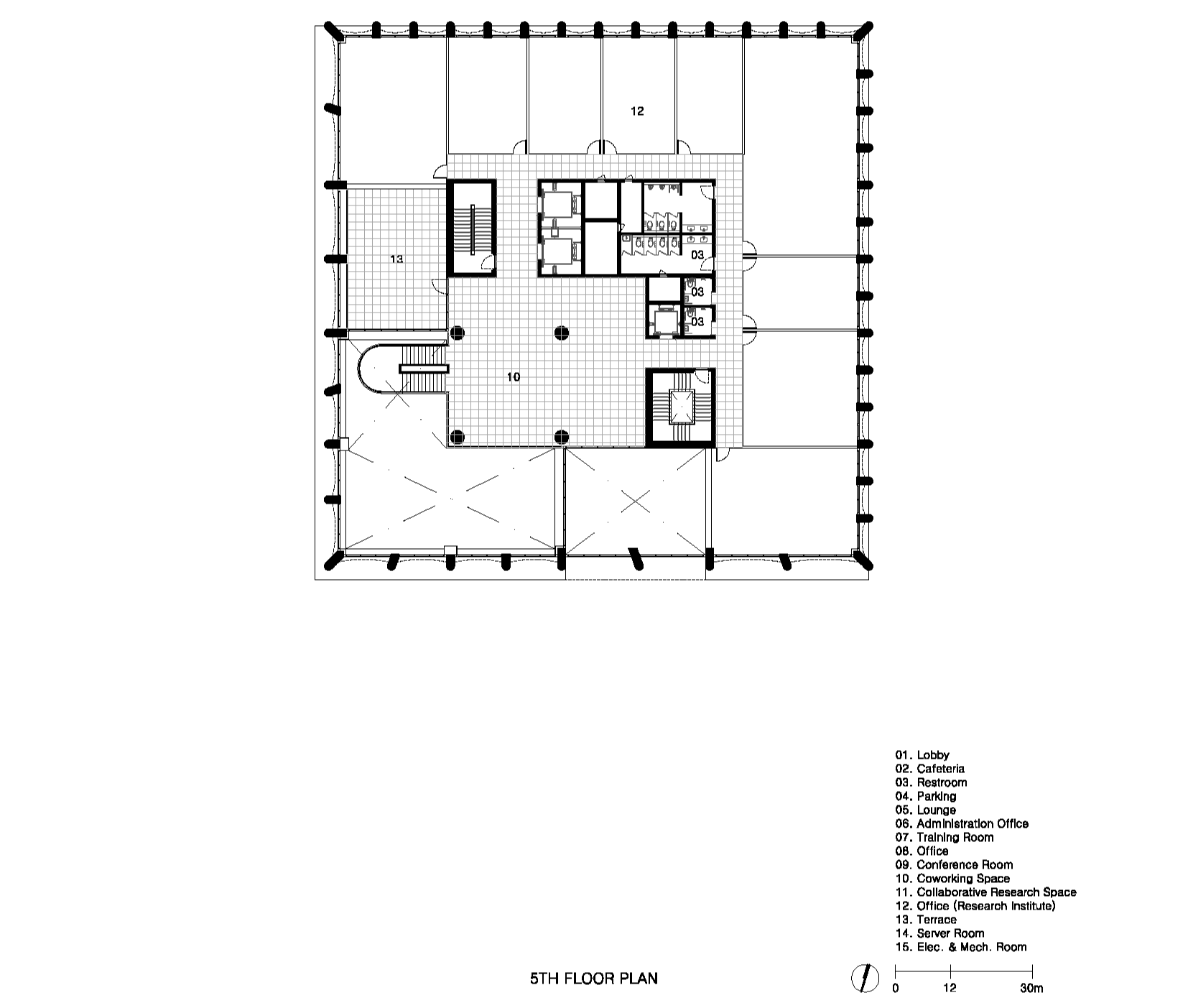
도시의 중심에 작은 공원을 모두 합쳐 놓은 듯한 커다란 공원은 도시의 그리드에 존재하는 길의 면적을 공원으로 통합하여 불필요한 동선을 절약하고 있으며 다양한 행동들과 이벤트 등을 담는 ‘커다란’ 공유&소셜의 기능을 하고 있다. Mega Floor는 공유형 업무시설의 새로운 프로토타입에 관한 제안이다. 일반적으로 코어를 중심에 두고 외기에 면하는 4면에 업무시설을 배치할 경우 공유, 소셜 공간은 환경적으로 소외당하는 중앙에 작은 면적으로 위치할 수밖에 없다. AI 중심의 4차 산업형 업무공간의 틀에서 다양한 산업과의 협력, 공유와 시너지를 고려하면 그 면적의 크기와 환경적 성능은 향상되어야 한다.




Mega Floor는 확장된 ‘공유’의 개념을 평면, 단면 및 외부공간에 적용하고 있다. ‘ㄱ’자 형태의 코어를 중심으로 조망이 좋은 북쪽과 동쪽으로는 입주기업을 위한 업무시설을 배치하고 채광이 좋은 남쪽과 서쪽으로는 프로그램을 특정하지 않은 커다란 공유공간(neutral space)을 계획한다. 이 공간은 입주기업의 목적에 맞게 회의실과 집중 업무공간은 코어의 한쪽에 통합하여 계획되며 층간 공유공간의 활용에 따라 그 위치를 달리한다. 결국 층별 평면 상의 위계는 사적이며 보안 영역에서 공적이며 개방 영역으로 확장되어 입주기업(Private/Secured), 코어 존의 공유업무(Semi-Private/Semi-Secured), 공유공간(Public/non-secured), 그리고 외부공간으로 연결된다. 이는 단면에서도 적용되는데, 두 개 층의 공유공간을 하나로 묶어 층간 시선과 동선이 확장되도록 계획하며 이는 전 층을 관통하는 void와 연계되어 채광, 온도 및 습도를 조절하여 에너지 소비를 줄이면서 쾌적한 내부 공간 환경을 제공한다.












건축가 에스티피엠제이(stpmj)
위치 서울, 서초구, 양재동
용도 교육연구시설
대지면적 5,098㎡
건축면적 1,901㎡
연면적 11,118㎡
규모 지하 1층, 지상 7층
건폐율 37.29%
용적률 163.25%
준공 2024
프로젝트건축가 Lee Seungteak, Lim Mijung
디자인팀 Kim Jeongho, Jang Ikjun, Kim Minyoung, Kim Seul
시공 Sae Chang Strctural Design
발주자 Seoul Metropolitan Government
사진작가 Bae Jihun
'Architecture Project > Education' 카테고리의 다른 글
| 과거를 해석하는 새로운 해법의 건축 / 라몬 에스테베 에스투디오 (0) | 2025.08.08 |
|---|---|
| 콘크리트 루버로 경계를 만드는 고등학교 리모델링 / 아르피오 아키텍츠 (0) | 2025.07.15 |
| 학문의 허브를 꿈꾸는 대학교 캠퍼스 / 씨씨비에이 디자인즈 (0) | 2025.04.21 |
| 병영부지 안에 세워지는 물결무늬 대학 캠퍼스 / 마리오 쿠치넬라 아키텍츠 (0) | 2025.04.10 |
| 사회와 지역을 포용하는 매도우즈 초등학교 / 프로젝트 12 아키텍처 (0) | 2025.04.03 |
마실와이드 | 등록번호 : 서울, 아03630 | 등록일자 : 2015년 03월 11일 | 마실와이드 | 발행ㆍ편집인 : 김명규 | 청소년보호책임자 : 최지희 | 발행소 : 서울시 마포구 월드컵로8길 45-8 1층 | 발행일자 : 매일



