
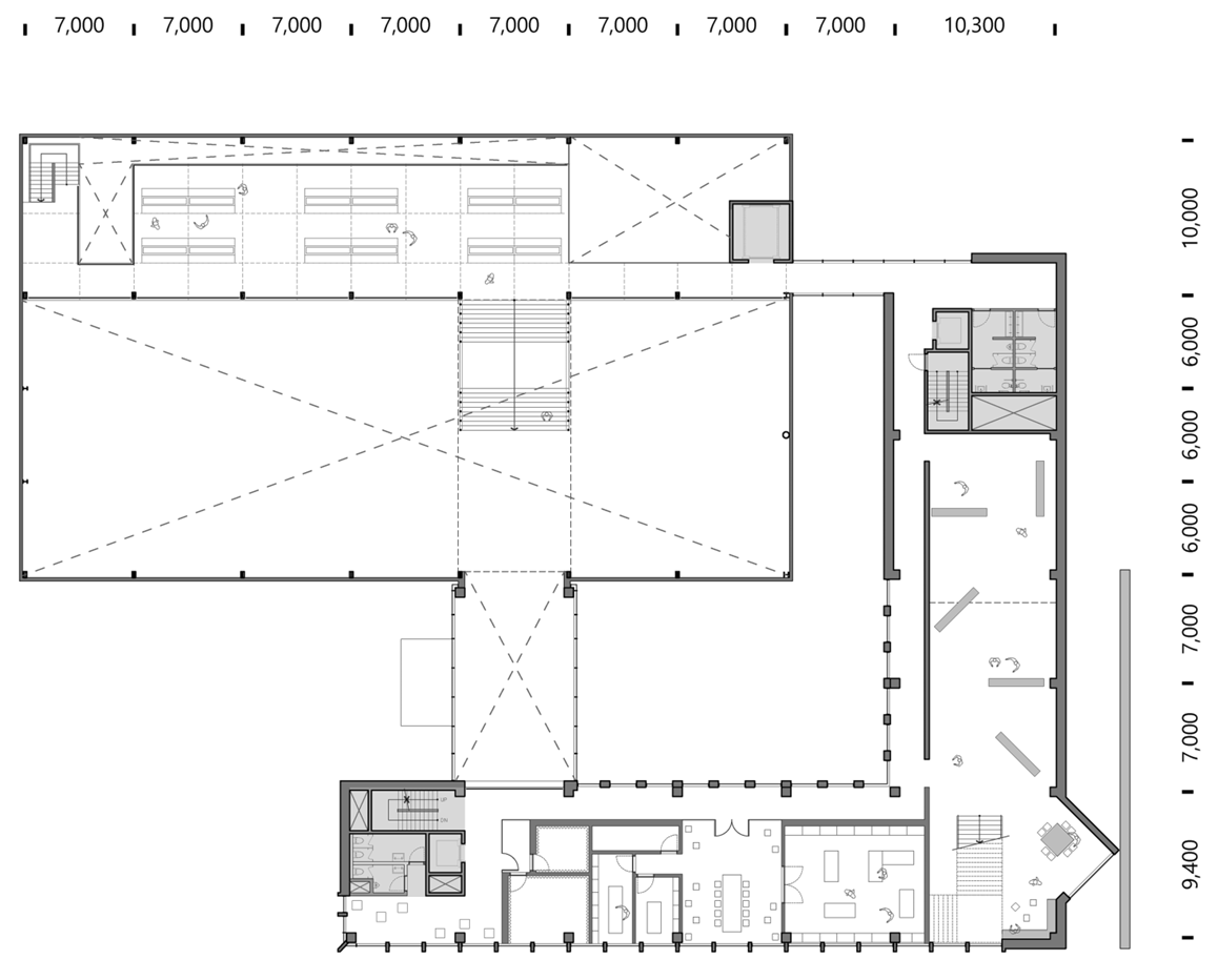
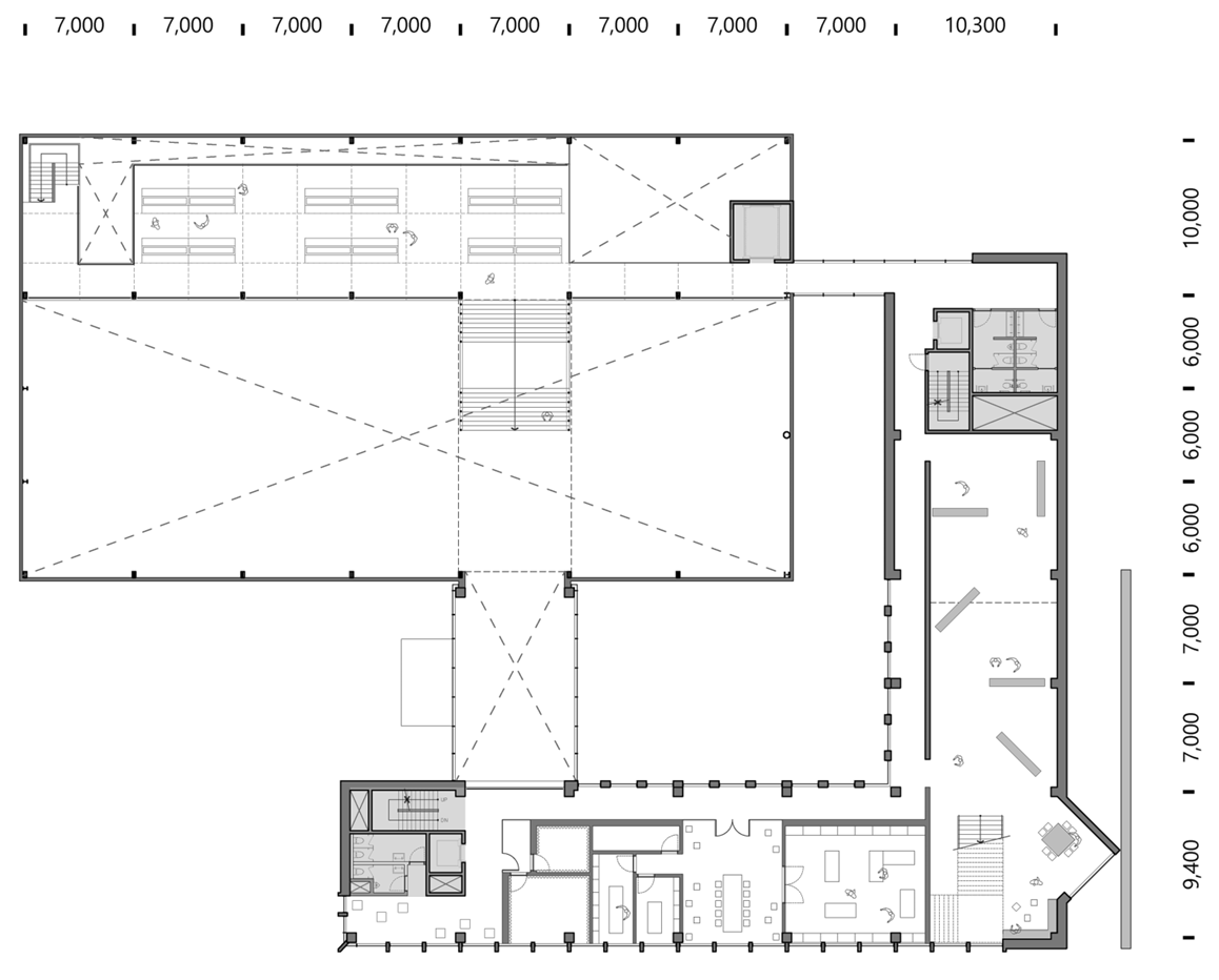
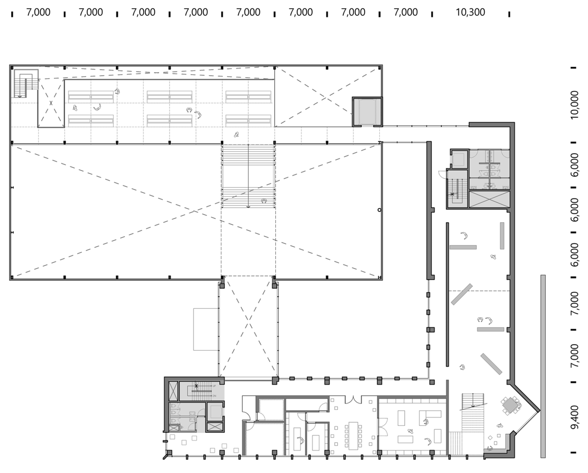
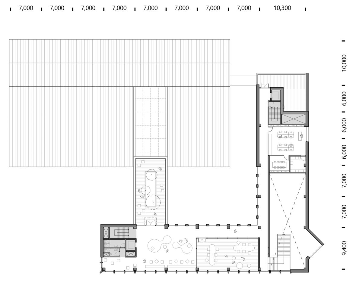
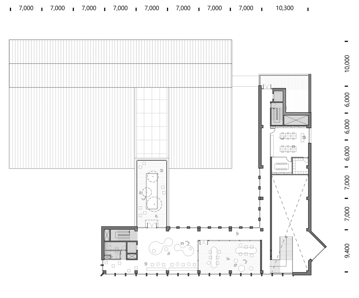
보령문화파크 대지의 단차를 적극적으로 활용하며 설계를 시작하다. 진입부터 5m의 단차를 극복하기 위해 별도의 주차 레벨을 제안한다. 최소한의 절토를 통해 건물보다 낮은 레벨의 주차공간을 확보하고 차량은 완만한 경사지로 진입하게 된다. 조성되는 외부공간에서 시각적으로 주차장이 보이지 않도록하며 보행자의 원활한 접근성을 가능케한다. 북측을 제외한 모든 향에 대해 자연경관을 조망할 수 있는 최적의 매스계획을 고려하여야 하며, 기존 대공간의 장소성을 그대로 보존하면서 천창을 계획해 공간을 더욱 풍요롭게 하고자 한다.
산업시설, 문화를 담다.
산업시설이 가지고 있는 공간적인 특성과 잠재력을 문화공간으로 치환하고자 한다. 효율적이고 반복적인 구조적 모듈, 다양한 공간활용이 가능한 과거 공장의 대공간은 시간이 축적된 날 것의 공간감과 함께 다양한 문화 및 전시를 담는 문화공장, 문화창고가 될 것이다.
원형의 장소성을 보존하다.
기존 건물이 가지는 순수한 물성과 기능적인 부재의 원형을 최대한 보존하여 축적된 장소성과 시간의 켜를 존중하고 극대화하고자 한다. 기존 부재에 구조 보강을 하고 기능적인 입면을 입히되 구조의 변형과 추가는 최소화하였다. 전시를 위한 장치 또한 기존 공간에 물리적으로 붙이는 것이 아닌 잠시 얹혀 놓고 매달아 놓는 개념으로 접근하였다. 이를 통해 기존 산업시설로서의 장소성을 더 부각해 공간의 매력도를 높이고자 한다.
기존건물은 메인 전시관, 증축건물은 지원시설이다.
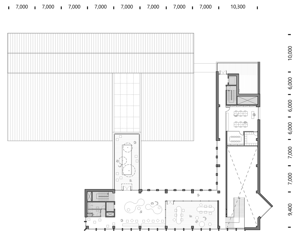
기존건물과 신축건물의 접점을 최소화 하였으며 기존 건물은 거대한 하나의 메인전시관으로, 덧대어진 신축 건물은 이러한 기능을 서포트하는 부속공간으로 생각하였다. 동선의 과정에서 기존건물과 신축건물을 오가며 시각적으로 시퀀스를 완성하게 된다. 또한 신축건물은 기존건물을 위요하는 배치로 각 매스 별로 부속 기능을 가지며, 다양한 외부공간을 조성하며 전체적인 문화테마파크를 완성한다.
경사지를 활용하다.
경사지 위에 숨겨져 있는 듯한 기존 부지와 건물을 시각적으로 노출시키고 접근성을 고려해 대지의 경사를 조정하였고 후면의 경사진 풍부한 녹지, 기존건물의 경사지붕은 또 하나의 경관으로 이용하고자 한다. 시각적 간섭과 방문객의 접근성을 고려해 주차장의 레벨을 조성하였다.








(주)코드아키텍츠건축사사무소
5등작_ (주)코드아키텍츠건축사사무소 (https://www.kodearchitects.com/)
대표건축가 김민호(주.코드아키텍츠건축사사무소)
대지면적 13,218㎡
연면적 3,847.87㎡
건축면적 2,426.59㎡
건폐율 18.35%
용적률 29.11%
최고높이 16.43m
층수 지상 3층
구조 철골구조, 철근콘크리트 구조
대표건축가 김민호
디자인팀 김민호, 홍동관, 송석민, 추연태
조경면적 5,957.63㎡
주차대수 60대(일반39대 / 확장 9대 / 장애인2대)
발주처 보령시청
'Plans' 카테고리의 다른 글
| 해남군 반려동물 테마파크 조성사업 설계공모_ 3등작 / 더아름건축사사무소 (0) | 2025.07.22 |
|---|---|
| 정촌 체육시설(수영장) 건립사업_ 2등작 / 건축사사무소 이색 (0) | 2025.07.22 |
| 앞산 문화관광 일자리 플랫폼 구축 설계공모_ 3등작 / 굳자인 건축사사무소 + 건축사사무소 서로가 (0) | 2025.07.03 |
| 제주위미우체국 건립공사 설계용역 설계공모_ 4등작 / 엠오에스피건축사사무소 (0) | 2025.07.03 |
| 정부대전지방합동청사 건립사업 설계공모_ 5등작 / (주)제제합건축사사무소 (0) | 2025.07.03 |
마실와이드 | 등록번호 : 서울, 아03630 | 등록일자 : 2015년 03월 11일 | 마실와이드 | 발행ㆍ편집인 : 김명규 | 청소년보호책임자 : 최지희 | 발행소 : 서울시 마포구 월드컵로8길 45-8 1층 | 발행일자 : 매일



