
대한민국은 문화, 사회 모든 측면에서 다양성이 가속화되는 방향으로 이동하고 있다. 어느 누구의 기대보다 빠른 기술의 진보와 급격한 산업의 변화로 다양한 이해 집단이 등장하고 있고, 이들의 갈등과 대립은 문화의 다양성까지 더해지며 심화되어 가고 있다. 이러한 다양성의 충돌은 사회의 불안요소이자 동시에 새로운 가능성이다. 서로 다른 의견과 목소리를 듣고 이를 바탕으로 하나의 통합된 사회를 만들기 위한 공공청사의 역할이 매우 중요해지는 시점이다.
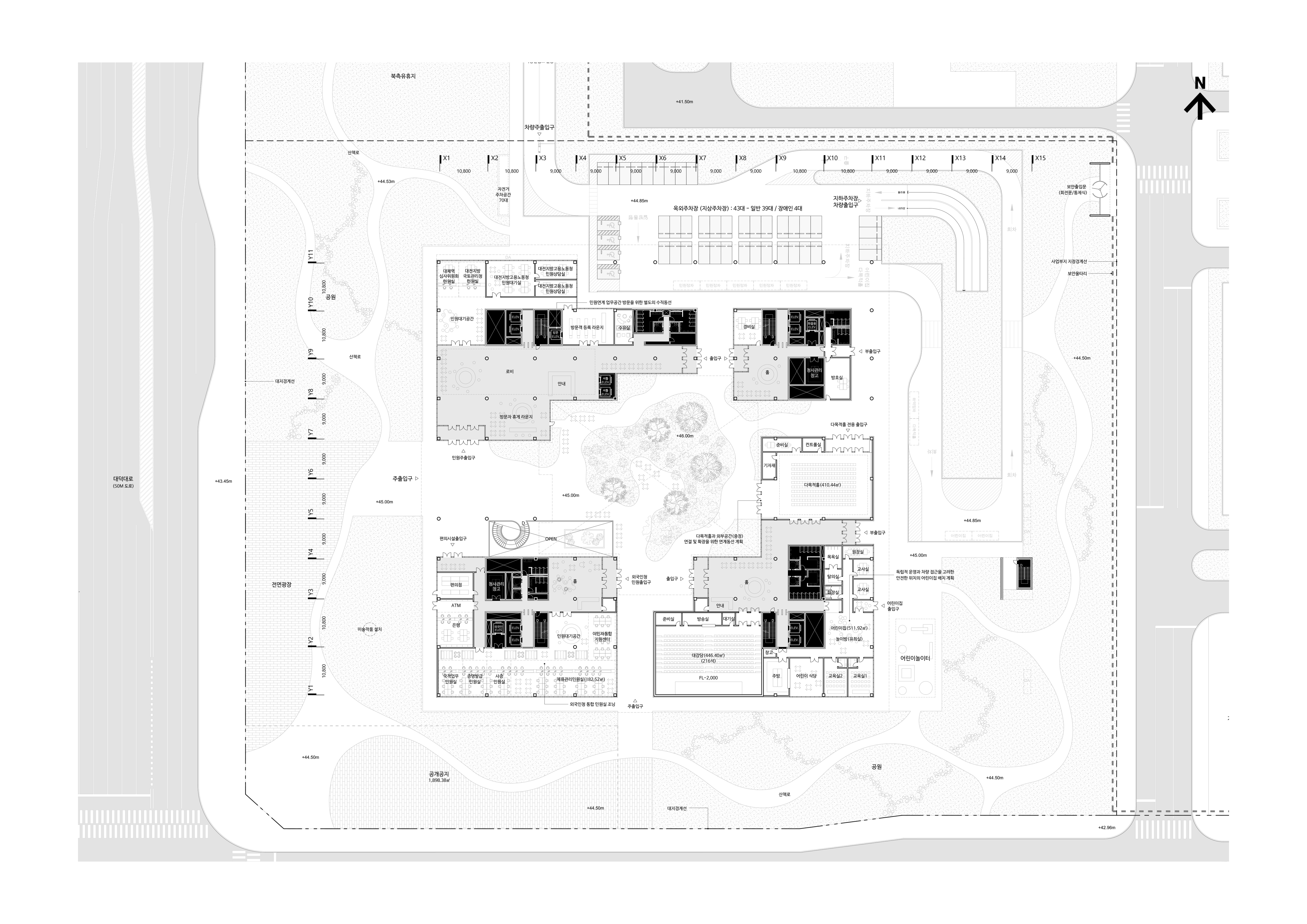
다양한 부처의 관계자들이 한 곳에 모여 협업을 진행할 정부대전지방합동청사는 다름의 가치가 시너지로 전환되는 소통과 협업을 위한 플랫폼으로 계획되어야 한다. 디자인은 건물의 중심에 하나의 커다란 중정을 계획하고 그 중정을 중심으로 주변에 휴식과 소통의 테라스를 배치하여 서로 다른 이해관계자들의 의식적, 무의식적 만남을 통해 협업과 시너지를 창출할 수 있는 공간구조를 제안한다. 숲으로 채워진 중정은 모두의 의견을 교류하는 오늘날의 열린 아고라 Common Void로 계획한다.








(주)제제합건축사사무소
5등작_ (주)제제합건축사사무소 (https://jejehaap.com/)
대표건축가 김진화, 박종대
대지면적 30,000㎡
연면적 39,756㎡
건축면적 9,590.96㎡
건폐율 32.97%
용적률 94.00%
최고높이 23.50m
층수 지하 1층, 지상 4층
구조 철근콘크리트 구조 + 철골구조(지붕)
대표건축가 김진화, 박종대
디자인팀 정승현, 양효실, 박나영, 조유정, 김성관, 김지연
조경면적 17,045.01㎡
주차대수 320대
발주처 행정안전부 정부청사관리본부
'Plans' 카테고리의 다른 글
| 앞산 문화관광 일자리 플랫폼 구축 설계공모_ 3등작 / 굳자인 건축사사무소 + 건축사사무소 서로가 (0) | 2025.07.03 |
|---|---|
| 제주위미우체국 건립공사 설계용역 설계공모_ 4등작 / 엠오에스피건축사사무소 (0) | 2025.07.03 |
| 앞산 문화관광 일자리 플랫폼 구축 설계공모_ 당선작 / (주)유선엔지니어링 건축사사무소 (0) | 2025.07.02 |
| 제주위미우체국 건립공사 설계용역 설계공모_ 당선작 / 시커몽스 건축사사무소 (0) | 2025.07.02 |
| 고창 터미널 도시재생 혁신지구사업 설계공모_ 5등작 / 가까운 건축사사무소 (0) | 2025.07.02 |
마실와이드 | 등록번호 : 서울, 아03630 | 등록일자 : 2015년 03월 11일 | 마실와이드 | 발행ㆍ편집인 : 김명규 | 청소년보호책임자 : 최지희 | 발행소 : 서울시 마포구 월드컵로8길 45-8 1층 | 발행일자 : 매일



