
길을 따라 숲으로
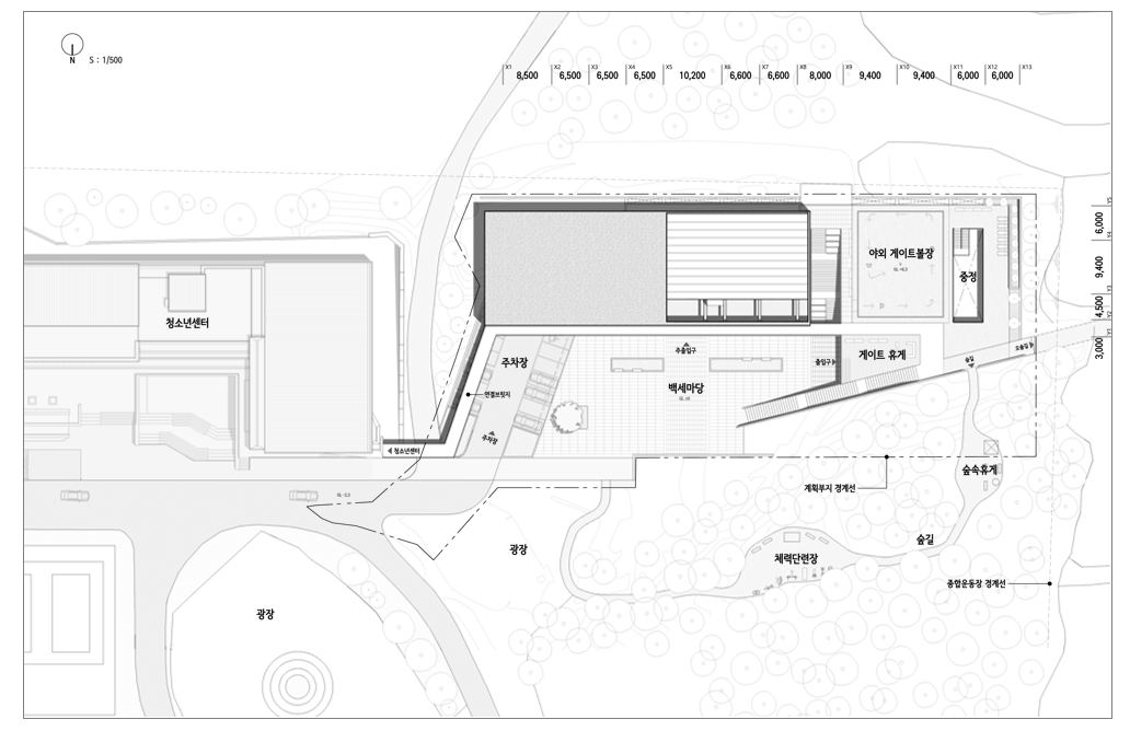
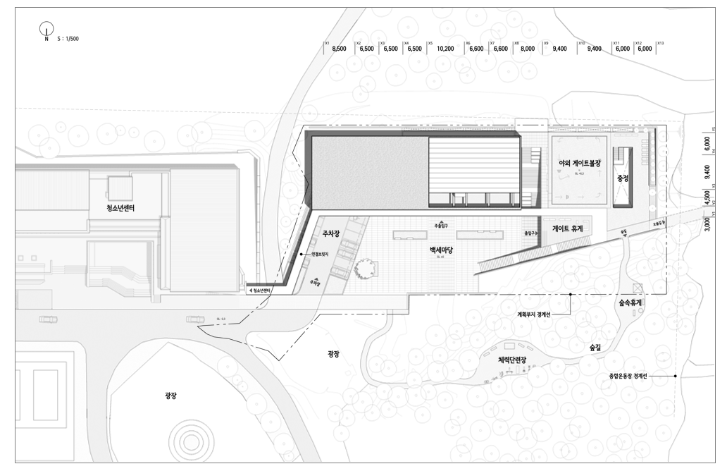
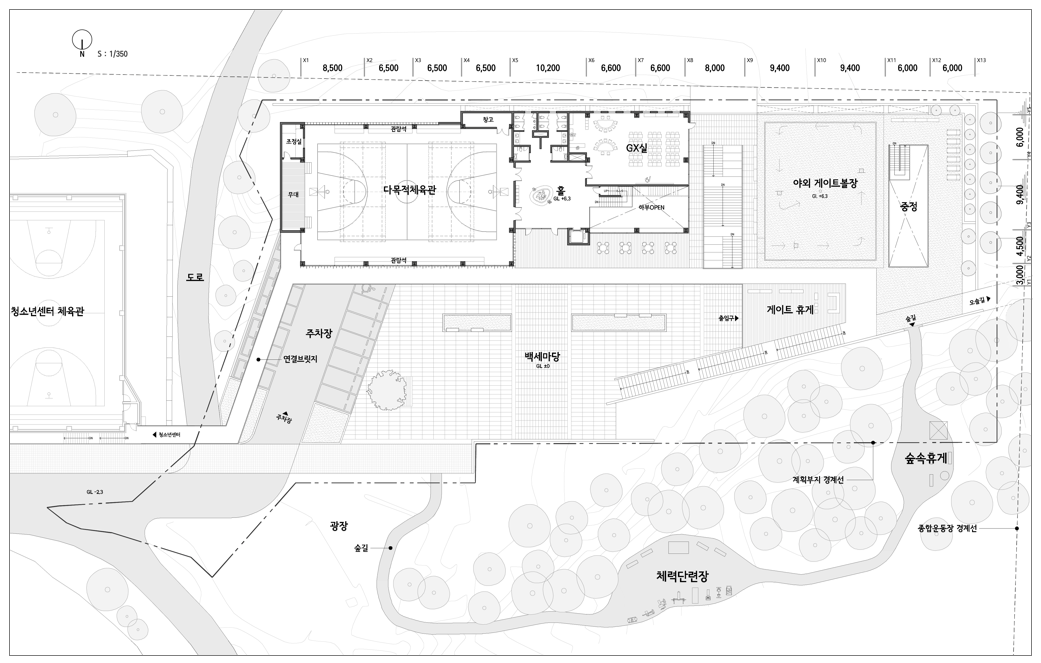
경사지형으로 둘러 쌓여 있는 부지는 주변과 단절되어 외부로 접근하는 영역을 한정하고 있다. 먼저, 범면의 높이에 맞추어 경사면과 평행이 되도록 1층을 배치하여 지형과 하나가 되게 한다. 그 위에 만들어진 또다른 대지에는 야외 게이트볼장과 중정 그리고 여러 휴식공간이 설치되어 마당과 입체적으로 만나 옥외 공간을 확장시킨다. 청소년센터와 이어지는 브릿지는 스포츠센터의 시설을 서로 공유하며, 길을 따라 숲으로 이어진다. 현존하는 숲길을 연장하여, 체력단련과 여가, 사색의 공간을 즐길 수 있도록 스포츠센터와 수평적으로 만나게 하여 한다. 그리하여, 지형으로 고립된 부지는 입체적인 이음의 길을 통하여 주변과 관계를 맺으며 경관과 어우러져 하나가 된다.
지형과 하나가 되다.
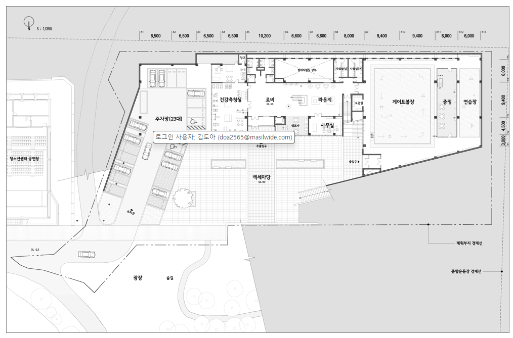
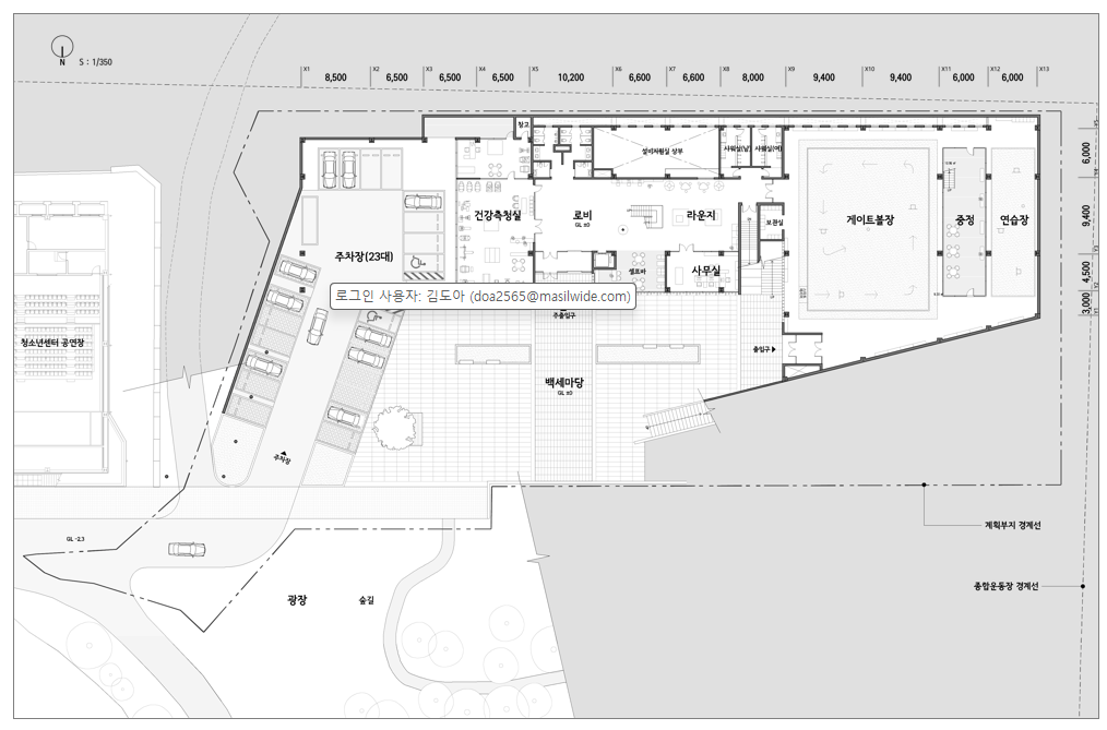
서쪽방향으로 높아지는 경사 지형의 부지 위에 지형의 높이에 순응되도록 조합하여 배치한다. 주변 경사면에 맞추어 평행하게 만나는 외벽은 옹벽의 역할을 하며, 절토면의 안전성과 주변으로 이어지는 흐름을 연속되게 한다. 또한, 채광과 환기 및 휴게공간으로 활용되는 중정과 계단 그리고 피로티는 막힌 공간의 환경을 해소하는 중립적인 역할을 하며, 물리적환경을 개선시킨다.
주변을 잇다.
경사지형과 건축물이 하나 되어, 청소년센터에서 산림지까지 수평으로 이어지는 길이 만들어진다. 청소년센터의 체육관과 다목적체육관을 서로 공유하며 연결되는 길은, 휴게공간을 거쳐 숲길과 만나며, 마당과 광장으로 이어져 자연을 품은 체육시설의 새로운 동선체계를 이루며 주변 시설을 순환시킨다.
경관을 담다.
두개의 건축물이 경관적 유사성을 갖도록 청소년센터의 외장재에 채도를 낮추어 외부를 마감한다 선형으로 펼쳐진 연결 브릿지 위에 가늘고 긴 면이 부유하 듯 파사드를 정리한다. 떠있는 면은, 주변 산림의 굴곡진 능선과 만나 사선과 수평선이 어우러지는 조화로운 경관을 만들고, 땅과 자연 속에 뭍혀 하나되는 모습으로 자리한다.
공간을 확장하다.
부지내 보존가치가 있는 교목을 마당의 초입에 이식하여 평상을 두른 정자나무와 같이 담소와 여가 공간으로 활용한다. 소음이 많은 게이트볼장은 옥외 계단을 중심으로 타 시설과 분리하고 별도의 출입구를 두어 독립성을 갖도록 한다. 실내게이트볼장 상부에 야외게이트볼장이 위치하며, 자연환경에 따라 두 시설이 분리 및 병합되게 운영한다. 중정과 옥외계단 그리고 길을 따라 수직 수평으로 자연과 마당 그리고 프로그램이 서로 만나 연장된 공간에서 일상의 행위가 이루어지는 여가생활의 공간으로 발전한다.











(주)삼풍이엔지종합건축사사무소
2등작_ (주)삼풍이엔지종합건축사사무소
대표건축가 정국한
대지면적 5,126㎡(종합운동장 전체조성면적 : 395,014㎡)
연면적 50,860.34㎡(금회증축 : 2,758.12㎡포함)
건축면적30,227.67㎡(금회증축 : 2,246.67㎡)
건폐율7.65%
용적률12.87%
최고높이 14.5m
층수 지하1층, 지상2층
구조 철골철근콘크리트구조, 철근콘크리트구조
대표건축가 정국한
주차대수 23대 (장애인 주차2대포함)
발주처 강원특별자치도 동해시
'Plans' 카테고리의 다른 글
| 제주위미우체국 건립공사 설계용역 설계공모_ 당선작 / 시커몽스 건축사사무소 (0) | 2025.07.02 |
|---|---|
| 고창 터미널 도시재생 혁신지구사업 설계공모_ 5등작 / 가까운 건축사사무소 (0) | 2025.07.02 |
| 보령 문화테마파크 조성사업 설계공모_ 당선작 / 건축사사무소 오드투에이 (0) | 2025.07.02 |
| 화랑대철도공원 커뮤니티센터 신축공사 설계용역 설계공모_ 4등작(가작 2) / 소나건축사사무소 (0) | 2025.06.30 |
| 화랑대철도공원 커뮤니티센터 신축공사 설계용역 설계공모_ 5등작(가작 3) / 건축사사무소 오삼일비 (0) | 2025.06.30 |
마실와이드 | 등록번호 : 서울, 아03630 | 등록일자 : 2015년 03월 11일 | 마실와이드 | 발행ㆍ편집인 : 김명규 | 청소년보호책임자 : 최지희 | 발행소 : 서울시 마포구 월드컵로8길 45-8 1층 | 발행일자 : 매일



