
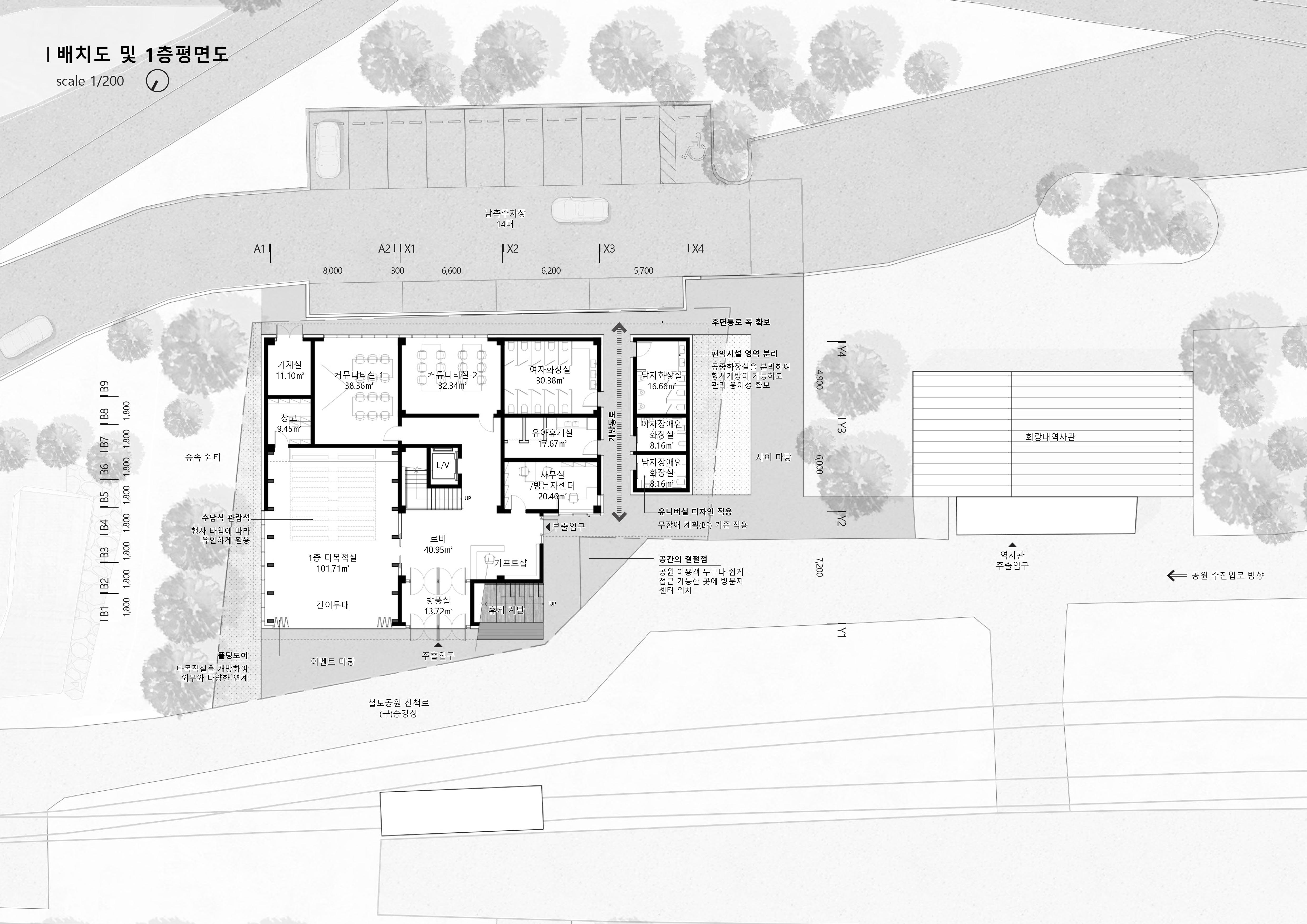
화랑대 철도공원은 경춘선의 일부였던 간이역과 폐선로를 활용한 선형 공원으로 많은 시민들의 사랑을 받고 있는 곳이다. 그 중 본 시설이 들어설 자리는 문화유산인 화랑대역과 인접한 곳이며, 공원 길로 이용되고 있는 옛 승강로가 꺽이는 지점에 위치한다. 1939년 건립된 화랑대 역은 화랑철도공원의 구심점이 되는 상징적인 건축으로, 이어내림 형태의 목조 지붕구조를 가진 독특한 형태를 현대적으로 재해석한 구조를 새로운 커뮤니티 공간에 적용하였다. 점진적인 크기의 매스 디자인을 통해 주어진 지침 면적을 확보하면서도 화랑대역을 존중하는 디자인을 제안한다.
방문객이 주로 한 방향으로 이동하는 선형공원의 특징을 이해하고 공원의 주요 시설과 연계 할수 있는 내외부공간을 계획하였다. 다목적실과 연계된 이벤트 마당, 공원 주요 동선이 꺽이는 부분에 위치해 직접 2층으로 연결되는 외부휴게계단, 책쉼터와 연계되는 테라스, 공원 진입로를 바라보는 독서 테라스 등이 공원의 기존 시설들과 관계를 맺으며 처마 공간에 위치한다. 공원의 주산책로와 유기적으로 연계되도록 정면에 주출입구 두고, 주차장과 산책로를 연결하는 오픈보행로를 두어 화장실이 별도 운영할 수 있도록 하였다.
커뮤니티 센터의 가장 중심이 되는 다목적실 및 공원과 연계된 외부활동을 하는 테라스는 화랑대역의 구조를 모티브로한 목구조를 커뮤티니센터 및 편의시설은 철근콘크리트 구조를 적용하여 합리적인 구조계획을 하였다. 기존 화랑대역의 지붕 목구조는 일반목재를 프랫 타입의 트러스에 도리 방향의 보를 추가로 설치한 방식이다. 이를 재해석해서 트러스의 형태는 유지하되 상하현재는 공학용 목재를 사용하고 사재는 금속강관을 사용해 좀 더 가볍고 합리적인 구조로 계획하였다. 이로서 화랑대 철도공원의 공간적인 컨텍스트에 잘 녹아들면서, 구화랑대역사의 건축적 특징을 현대적을 반영한 공원의 새로운 구심점이 되는 커뮤니티시설을 제안한다.










소나건축사사무소
당선작_ 소나건축사사무소 (https://www.son-a.com/)
대표건축가 손주휘(한양대학교), 소나건축사사무소(권순주)
대지면적 40,293㎡
연면적 625.69㎡ (공원시설 합계: 3,045.26㎡)
건축면적 519.09㎡ (공원시설 합계: 2,795.04㎡)
건폐율 6.94%
용적률 7.56%
최고높이 9.8m
층수 지상 2층
구조 철근콘크리트구조, 중목구조
대표건축가 손주휘(한양대학교), 소나건축사사무소(권순주)
디자인팀 이현우, 이예진
조경면적 23,414㎡
주차대수 14대 (목예원 5대 포함 총 19대)
발주처 노원구청
'Plans' 카테고리의 다른 글
| 백세건강스포츠센터 건립사업 건축 설계공모_ 2등작 / (주)삼풍이엔지종합건축사사무소 (0) | 2025.07.02 |
|---|---|
| 보령 문화테마파크 조성사업 설계공모_ 당선작 / 건축사사무소 오드투에이 (0) | 2025.07.02 |
| 화랑대철도공원 커뮤니티센터 신축공사 설계용역 설계공모_ 5등작(가작 3) / 건축사사무소 오삼일비 (0) | 2025.06.30 |
| 갯벌치유 관광플랫폼 조성 설계공모_ 당선작 / 와이즈건축사사무소 (0) | 2025.06.30 |
| 망성면 기초생활거점조성사업 세부설계 설계공모_ 당선작 / (주)더블유에이치와이건축사사무소 (0) | 2025.06.30 |
마실와이드 | 등록번호 : 서울, 아03630 | 등록일자 : 2015년 03월 11일 | 마실와이드 | 발행ㆍ편집인 : 김명규 | 청소년보호책임자 : 최지희 | 발행소 : 서울시 마포구 월드컵로8길 45-8 1층 | 발행일자 : 매일



